Parade工作室/常春藤工作室
Parade Studios / Ivy Studio
功能与美学的融合典范:Parade 工作室项目将一座两层的工业印刷建筑成功转变为创意中心。一楼为艺术家提供专业设施,黑暗美学与声学优化兼顾隐私与专注,木质和复古元素营造舒适氛围。二楼办公区明亮开阔,玻璃隔断保证视线通透。整体设计巧妙平衡了功能需求与独特美学,彰显创意与专业的完美结合。
自然采光与空间活力:该建筑的后部立面大开口和二楼天窗设计是亮点,为室内引入大量自然光,极大提升了空间活力与舒适度。特别是二楼,奶油色墙壁和浅色木地板增强采光效果,照亮各功能区域,让整个办公空间明亮宜人,为团队成员提供了激发灵感的环境,充分展现了自然采光在建筑设计中的重要价值。
俏皮元素与创意氛围营造:设计中的俏皮元素独具匠心,如淡蓝色的会议室、天窗下的双层长椅和隐藏式厨房等,通过色彩、家具布置和空间利用,营造出充满活力与创意的氛围。这些元素不仅满足功能需求,更以独特风格展现出 Parade 工作室的个性,使上下层空间形成鲜明对比又和谐统一,体现了对创造力和专注需求的深刻理解。

© Alex Lesage

© Alex Lesage
建筑师提供的文字描述Text description provided by the architects. Nestled on St-Hubert Plaza in the vibrant Rosemont neighborhood, Parade Studios has transformed a two-story industrial printer building into a dynamic hub for creativity. The renovated space seamlessly blends professional functionality with a quirky, colorful design that reflects the energy of its team and clientele. The building's façade remains largely unchanged, maintaining the charm of its commercial roots. However, the rear façade tells a different story: large openings flood the interior with natural light, particularly on the second floor, where the Parade team works. The entrance sets the tone with tiled flooring bearing the studio's name a modest yet personal touch.

© Alex Lesage

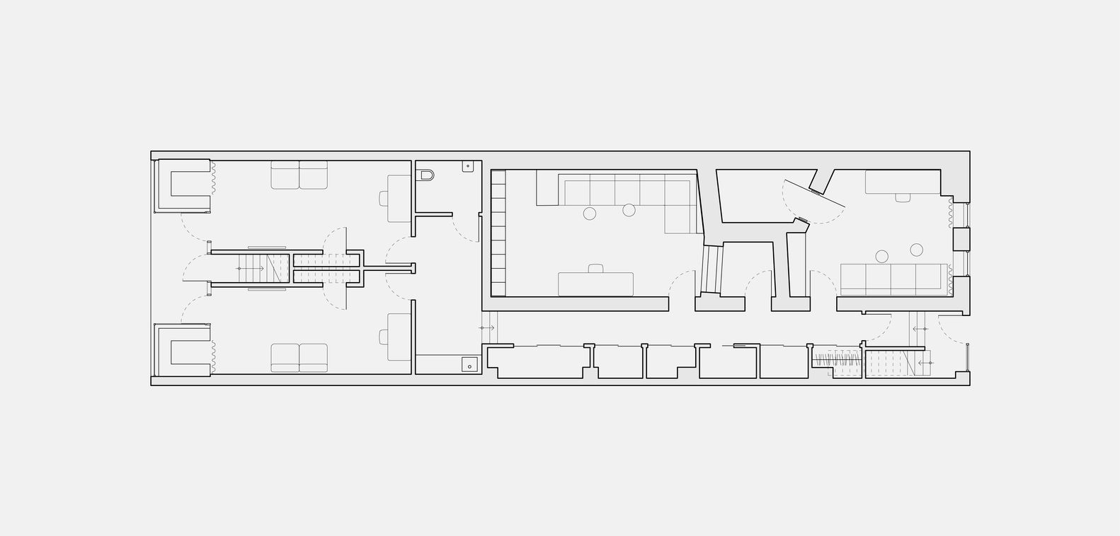
Ground Floor Plan

© Alex Lesage
Parade Studios位于一楼,为艺术家提供最先进的设施。两个专业录音室和一对可出租的制作室满足了蒙特利尔创意社区的多样化需求。这层楼采用了一种更黑暗的美学,黑暗的走廊确保了隐私和专注。在工作室内,天鹅绒面板覆盖的墙壁增强了声学效果,同时唤起了复古的魅力。木质元素和中世纪家具的结合与设计相得益彰,营造出舒适、鼓舞人心的氛围。精心整合的照明选项增添了氛围,确保艺术家感到舒适和灵感。二楼是Parade团队的办公空间,与下面的喜怒无常形成鲜明对比。这款地板旨在最大限度地提高亮度,其特点是奶油色墙壁和浅色木地板,增强了自然光的充足性。休息室上方的新天窗为建筑的核心地带带来了阳光,照亮了开放式办公区、两个呼叫室、一个会议室和一个厨房。工作空间由玻璃隔断构成,允许从一端到另一端的视线不间断。
On the ground floor, Parade Studios offers state-of-the-art facilities for artists. Two professional recording studios and a pair of rentable production rooms cater to the diverse needs of Montreal's creative community. This floor embraces a darker aesthetic, with blacked-out hallways ensuring privacy and focus. Inside the studios, walls clad in velvet panels enhance acoustics while evoking a retro charm. A mix of wood elements and mid-century furniture complements the design, creating a cozy, inspiring atmosphere. Thoughtfully integrated lighting options add to the mood, ensuring artists feel both comfortable and inspired. The second floor serves as the office space for Parade's team and offers a sharp contrast to the moodiness below. Designed to maximize brightness, this floor features cream-painted walls and light wood flooring, enhancing the abundance of natural light. A new skylight above the lounge brings sunlight to the building's core, illuminating the open desk area, two call rooms, a conference room, and a kitchen. The workspace is framed by glazed partitions, allowing uninterrupted sightlines from one end to the other.

© Alex Lesage

© Alex Lesage
设计中融入了俏皮的元素,为营造一个充满创意和热情的环境奠定了基调。例如,会议室从墙壁、家具到地毯都被淡蓝色完全包围,为协作创造了一个充满活力的茧状空间。在天窗下方,一个双层长椅,配有集成座椅和植物,为非正式会议提供了一个舒适的场所。厨房隐藏在一堵拱形墙后面,一个引人注目的蓝色瓷砖柜台向外延伸,兼作咖啡馆酒吧。Parade的标志性风格在这些并置中变得生动起来:上层的开放和光线与底层的亲密和深度形成鲜明对比,代表了创造力和专注的双重需求。
The design includes playful touches that set the tone for a creative and welcoming environment. The conference room, for instance, is fully enveloped in light blue, from walls and furniture to carpeting, creating a vibrant, cocoon-like space for collaboration. Beneath the skylight, a two-tiered banquette with integrated seating and plants provides a cozy spot for informal meetings. The kitchen is hidden behind an arched wall, with a striking blue-tiled counter extending outward to double as a café bar. Parade's signature style comes alive in these juxtapositions: the openness and light of the upper floor contrast with the intimacy and depth of the ground floor, representing the dual needs of creativity and focus.