LE'EVO美发店/由83设计
LE’EVO Hair Shop / design by 83
空间美学的突破:LE'EVO美发店在设计上摆脱了以木材为中心的旧有温暖风格,采用白色为基调并加入灰色调,运用金属、灰色大理石和光滑混凝土等冷材料展现出与木材相反的魅力和美学。这种独特的设计成功塑造了全新的品牌形象,让空间不再单调,而是充满了层次感和现代感,为顾客带来了焕然一新的视觉体验。
照明与空间布局的巧思:设计团队在化妆台上嵌入线条照明,确保顾客脸部清晰无阴影,同时精心调整了化妆台之间的间隙以及入口隔板的高度,既保证了空间的开阔感又维护了顾客的隐私。通过合理的隔断和材料运用,巧妙地区分了开放空间和私人空间,让顾客在无意识中舒适地使用空间,优化了顾客的行动路线和整体体验。
品牌理念的精准体现:设计团队深刻理解LE'EVO品牌专注于空间、设计和服务的理念,以实现客户满意度为目标。通过研究营造平静照明和氛围的材料,致力于让接受服务的顾客感到舒适,从各个细节上体现了品牌对顾客体验的重视,使得LE'EVO的品牌态度在空间中得以完美呈现,助力品牌形象进一步提升。

© Donggyu Kim

© Donggyu Kim
建筑师提供的文字描述LE'EVO是一家美发店,通过保持其理念和价值观,为客户提供最好的设计和服务。这位长期经营其总部的客户希望在新店营造一种不同的氛围。重点是在空间中表达升级的设计和全新的形象。
Text description provided by the architects. LE'EVO is a hair shop that provides the best design and service to customers by maintaining its philosophy and values. The client who has run its headquarters for a long time, wanted to create a different atmosphere at a new store. The focus was on expressing the upgraded design and brand-new image in the space.

© Donggyu Kim

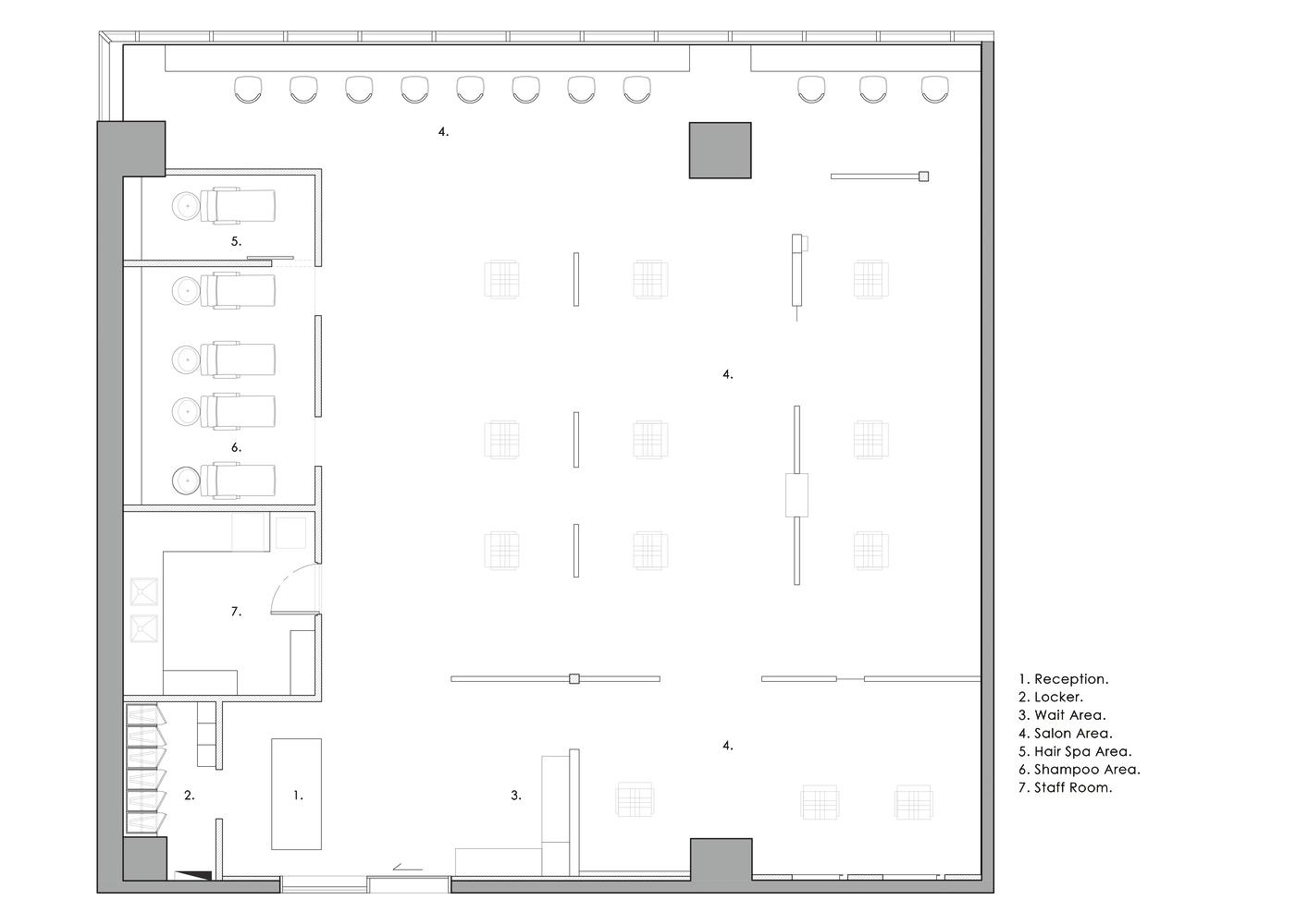
Plan

© Donggyu Kim
设计修改始于Old&;新它的目的是通过将以木材为中心的温暖感觉变成加工过的冷材料和色调来摆脱它的形象。与旧的不同,白色被用作基础,并添加了灰色调,为看起来平坦的白色空间增添了深度感。空间中使用的金属、灰色大理石和光滑混凝土的饰面展现了木材的相反魅力和美学。化妆台采用SUS材质,化妆台后墙采用白色石材抹灰。在入口氛围中,与等候区接触的墙上的软石看起来像石头,其质地散发出老房子的古董感。一个独特的空间只需排除现有美容店中占据大量侧面的木材即可完成。
Modification of design began with Old&New. It was intended to escape its image by changing the store created with a wood-centered warm feeling into processed cold materials and tone. Unlike the old, white was used as the base, and a gray tone was added, to give a sense of depth to the white space that could look flat. The finishes of metal, gray marble, and glossy concrete used in the space reveal the opposite charm and aesthetics of wood. SUS was used for the make-up table, and the back wall of the make-up table was finished with white stone plastering. The soft stone on the wall that touches the waiting area at the entrance atmosphere looks like stone, and its texture emits the antique feeling of the old house. A unique space is completed simply by excluding wood that occupies a lot of sides in the existing beauty shop.

© Donggyu Kim
设计团队对美发店的身份感到苦恼。设计团队将LE'EVO视为一个专注于空间、设计和理发师服务理念的品牌,以实现客户满意度。为了体现LE'EVO的态度,设计团队通过研究创造平静照明和氛围的材料来完成空间,目的是让接受服务的人感到舒适。
The design team agonized over the identity of the hair shop. The design team perceived LE'EVO as a brand that focuses on the space, design, and hairdressers' service mind for customer satisfaction. Reflecting the attitude of LE'EVO, the design team completed the space by studying materials that create a calm illumination and atmosphere, with the aim of making those receiving the service feel comfortable.

© Donggyu Kim

© Donggyu Kim
设计团队在化妆台上嵌入了线条照明,这样顾客的脸就可以清晰地看到,没有阴影。特别是,他们非常关注运动线和化妆台之间的间隙。入口处安装了一个隔板,这样进入空间的顾客的眼睛就不会与接受服务的顾客的视线相遇。然而,它的高度被调整了,这样空间就不会显得闷热。通过这种方式,设计团队通过隔断和不同的材料将开放空间和私人空间分开,让客户含蓄地感知到它们。在施工过程中,他们现场检查了几次单元,考虑了从入口到等候区、从等候区到化妆台、从化妆台到洗发水室的最佳移动路线。这是设计团队的想法,他们希望客户在不知不觉中足够舒适地使用空间,而不是注意到什么。
The design team embedded line lighting in the make-up table so that the customer's face could be seen clearly without shadows. In particular, they paid a lot of attention to the movement line and the gap between make-up tables. A partition was installed at the entrance so that the eyes of the customer entering the space would not meet those of the customer receiving the service. However, its height was adjusted so that the space did not look stuffy. In this way, the design team divided open space and private space through partitions and different materials, making the customers perceive them implicitly. During construction, they checked several times in units on the spot, considering the optimal movement line from the entrance to the waiting area, from the waiting area to the make-up table, and from the make-up table to the shampoo room. It is the mind of the design team who wanted the customers to use the space comfortably enough, unconsciously rather than noticing something.

© Donggyu Kim
通过设计团队的精心策划,LE'EVO实现了又一次飞跃,实现了Old&;全新的LE'EVO品牌形象更加明确。
Through the delicate planning of the design team, LE'EVO took another leap forward, and the harmony of Old&Newmakes LE'EVO brand image even more definite.

© Donggyu Kim