动态框架办公楼/巴尔贝克局
Dynamic Frame Office Building / balbek bureau
创新与功能性:Dynamic Frame项目以其创新的设计理念和对功能性的深刻理解脱颖而出。建筑师巧妙地将公司的动态特性融入到空间设计中,通过开放式结构和多功能区域的布局,成功地为电影制作团队创造了一个既适应性强又真正多功能的工作环境。
声学与照明设计:项目中的声学和照明设计体现了对细节的极致追求。穿孔石膏板和RGB照明系统的引入,不仅提升了空间的美观度,还有效地解决了噪音控制和照明需求,为编辑室等对声学有高要求的空间提供了完美的解决方案。
文化与情感的融合:Dynamic Frame项目不仅仅是一个办公空间,它还是一个文化和情感的融合体。通过使用公司名称中的“框架”概念,以及对电影制作细节的深刻理解,建筑师成功地将电影制作的幕后工作展现给外部观察者,同时在设计中融入了团队对温暖色调的偏好,创造出一个既专业又温馨的工作环境。

© Ivan Avdieienko

© Ivan Avdieienko
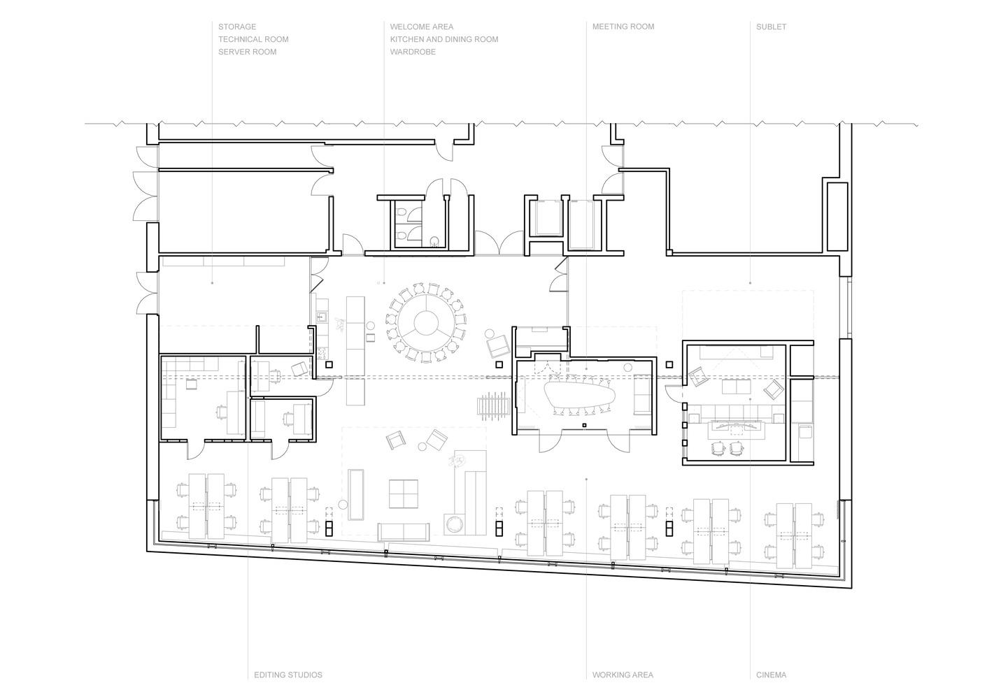
建筑师提供的文字描述Dynamic Frame是位于瑞士苏黎世市中心的同名电影制作公司的办公室。应客户要求,该局设计了一个多功能空间,以满足公司不同地区的需求。该空间包括编辑工作室、一个小型电影院、一个仓库、一个带餐厅的厨房和一个可供14人团队使用的开放空间。
Text description provided by the architects. Dynamic Frame is the office of the eponymous film production company in the center of Zurich, Switzerland. At the request of the clients, the bureau developed a design of a multifunctional space that meets the needs of different areas of the company. The space includes editing studios, a small cinema, a warehouse, a kitchen with a dining room, and an open space for a team of 14 people.

© Ivan Avdieienko

Plan

© Ivan Avdieienko

© Ivan Avdieienko
任务-此前,Dynamic Frame在苏黎世有两个办事处,一个负责小说和纪录片制作,另一个负责商业广告。然而,是时候将专家们团结在一个空间里了,所以客户选择了一个有成长空间的空间。他们决定在公司需要之前转租部分办公室,并最终占据整个空间。这部电影的名字很适合它的团队和他们的工作风格:员工们经常搬家,办公室通常会聚集很多人。头脑风暴、推销、向客户演示、制作视频材料及其后期制作——我们需要创造一个真正多功能、适应性强的空间,自然适合团队的任务。电影制作的细节需要多种功能:除了设计传统的工作空间外,我们还必须控制噪音,并为在隔音和声学方面要求很高的编辑室开发设计。
Task - Previously, Dynamic Frame had two offices in Zurich – one was responsible for fiction and documentary production and the other for commercials. However, it was time to unite the specialists in one space, so the clients chose a space with room to grow. They decided to sublease part of the office until the company needed it, and eventually occupy the entire space. The name of the film production suits its team and their work style: employees are constantly on the move, and the office usually gathers a lot of people. Brainstorms, pitches, presentations to clients, work on video material and its post-production – we needed to create a truly multifunctional and adaptive space that would naturally fit the team's tasks. The specifics of film production required a variety of functions: in addition to designing traditional workspaces, we had to control noise and develop a design for editing rooms that were demanding in terms of sound insulation and acoustics.

© Ivan Avdieienko
建设-新办公室位于苏黎世宾兹区一栋新建筑的一楼。这是一个曾经生产砖块的前工业区。我们在办公室内部用圆窗装饰了特色的立面。当我们开始着手这个项目时,这座建筑还没有完工——没有窗户或地板。也没有公用设施,这使我们能够根据未来空间的功能立即规划一切。裸露的混凝土梁和裸露的墙壁需要额外的声学解决方案,因此我们聘请了基辅的一位专家来开发一个项目。根据他的指示,我们用穿孔石膏板装饰了立方体,这不仅看起来很吸引人,而且吸收了声音。我们与乌克兰公司Expolight一起为办公室开发了一个照明项目:由于客户工作的特殊性,为他们提供高质量和有趣的照明非常重要。办公室每个区域的单独场景都可以通过手机上的应用程序进行控制:根据一天中的时间或心情调整温暖、颜色和强度。例如,在电影院,有处理视频材料、与客户一起看电影和讨论的场景。
Construction - The new office is located on the ground floor of a new building in Zurich's Binz district. This is a former industrial area where bricks were once produced. We played up the characteristic facade with round windows in the interior of the office. When we started working on the project, the building was unfinished – there were no windows or flooring. There were no utilities either, which allowed us to immediately plan everything according to the functions of the future space. The exposed concrete beams and bare walls required additional acoustic solutions – so we engaged a specialist from Kyiv to develop a project. According to his instructions, we decorated the cubes with perforated plasterboard, which not only looked attractive but also absorbed sound. Together with the Ukrainian company Expolight, we developed a lighting project for the office: due to the specifics of our clients' work, it was important for them to have high-quality and interesting lighting. Separate scenarios for each area of the office can be controlled via the app on the phone: adjust the warmth, color, and intensity according to the time of day or mood. For example, in the cinema, there are scenarios for working on video materials, watching a movie with a client, and discussing.

© Ivan Avdieienko

© Ivan Avdieienko
概念-我们的灵感来自公司的名字——Dynamic Frame。电影摄影中的框架是作者创作的最终产品,但所有最有趣和最重要的事情都发生在它背后。在建筑中,框架是建筑或结构的基础,赋予了它强度、刚度、耐用性和形状。但与此同时,它往往隐藏在我们的视线之外。以公司的名义,我们建议将框架作为概念的基础,并结合建筑框架对其进行重新思考。向外部观察者介绍电影制作过程,并通过展示开放式结构让他进入。我们将现有的房间分成一个网格状的框架,并开始沿着它建造一个开放空间。里面的功能室以立方体的形式分开——它们不与天花板相连,没有相邻的墙壁,由乌克兰承包商SKLO制造的玻璃隔断隔开。有横梁的天花板,就像一个开放式的框架,可以透过窗户看到。如果你看看办公室的布局,立方体的体积对应于经典的4:3纵横比。我们还注意到该团队对温暖、赭色和绿色色调的喜爱,并在室内使用了它们。主要参考的是Dynamic Frame投资组合中的短片《People on Saturday》/Menschen am Samstag。
Concept - We were inspired by the company's name – Dynamic Frame. A frame in cinematography is the final product created by the authors, but all the most interesting and important things happen behind it. In construction, a frame is the foundation of a building or structure that gives it strength, rigidity, durability, and shape. But at the same time, it is often hidden from our view. Playing on the company's name, we proposed to make the frame the basis of the concept and rethink it in conjunction with the architectural carcass. To introduce the outside observer to the process of film production and let him inside by showing open structures. We divided the existing room into a grid-like frame – and began to build an open space along it. Functional rooms inside it are separated in the form of cubes – they do not adjoin the ceiling have no adjacent walls, and are separated by glass partitions made by the Ukrainian contractor SKLO. The ceiling with beams, like an open frame, is visible through. If you look at the office layout, the volumes of the cubes correspond to the classic 4:3 aspect ratio. We also noticed the team's love for warm, ocher shades and accents of green, and used them in the interior. The main reference was the short film "People on Saturday" / Menschen am Samstag from the Dynamic Frame portfolio.

© Ivan Avdieienko
设计-衣帽间-在办公室入口处,游客会看到一个定制的镀锌钢衣帽间——我们想把它打造成一个复古的电影院售票处。它的功能必须比普通的衣帽间更广泛——在活动或聚会期间,它可以用来分发邀请函、门票或纪念品。架子是可折叠的,可以作为展示柜。在衣帽间的门上,我们为明信片提供了松紧带,为眼镜和小饰品提供了架子。门上还内置了一个RGB灯,可以更改和自定义背光的颜色厨房和餐厅-对客户来说,计划一个完整的厨房和足够的用餐空间很重要——团队喜欢做饭和聚在一起吃午饭。用餐组由HAY桌子和复古椅子组成。用餐区的墙上挂着电影制作公司拍摄的电影海报。厨房有你做饭所需的一切——它配备了烤箱、炉灶和油烟机。这个区域装饰着一条宽的不锈钢带。它由第二个视觉条带支撑——一个由单个块组装而成的木制厨房岛,由乌克兰承包商Cassone根据我们的草图制作。其中一块是留给有唱片的黑胶唱片播放器的。RGB灯提供额外的照明,并允许您通过选择不同的颜色来改变该区域的氛围。主要的开放空间和休息区沿着前窗排列,那里有很多自然光。在这个开放空间里,我们必须在公共区域和各个工作站的隔音需求之间取得平衡。开放空间中的桌子有隔音隔板。
Design - Cloakroom - At the entrance of the office, visitors are greeted by a custom galvanized steel cloakroom – we wanted to create it to look like a retro cinema ticket office. Its functionality had to be wider than a regular cloakroom – during events or parties, it can be used to distribute invitations, tickets, or souvenirs. The rack is foldable and can serve as a showcase. On the doors of the cloakroom, we have provided elastic bands for postcards and shelves for glasses and trinkets. There is also an RGB lamp built into the door, which allows you to change and customize the color of the backlight. Kitchen and Dining Room - It was important for the clients to plan a full kitchen and sufficient dining space – the team loves to cook and get together for lunch. The dining group is assembled from a HAY table and vintage chairs. The dining area wall has posters of movies shot by the film production. The kitchen has everything you need for cooking – it is equipped with an oven, stove and hood. This area is decorated with a wide strip of stainless steel. It is supported by a second visual strip – a wood-finished kitchen island assembled from individual blocks, which were made by the Ukrainian contractor Cassone according to our sketches. One of the blocks is reserved for a vinyl player with records. An RGB lamp provides additional lighting and allows you to change the mood of this area by choosing different colors. The main open space and lounge area are organized along the front windows, where there is a lot of natural light. In this open space, we had to strike a balance between common areas and the soundproofing needs of individual workstations. Tables in the open space have acoustic partitions.

© Ivan Avdieienko

© Ivan Avdieienko
休息室和开放空间-休息区通过木地板广场与办公室的其他部分在视觉上隔开。这里最吸引人的地方是一个贴面胶合板圆形剧场,在那里你可以坐下来聚在一起。它的外面摆满了书架。圆形剧场对面是一个带轮子的可移动矩形立方体沙发,可以转动到所需的一侧——背面是一个头脑风暴板。它也可以作为一个座位和一种开放空间的屏障。圆形剧场和移动立方体沙发是由Cassone承包商定制的。我们与客户一起组装了咖啡桌:它的顶部是一块壮观的大理石板,客户继承了这块大理石板,以前找不到它的用处编辑室-办公室有三个编辑室——两个有独立的工作站,一个更大的房间,在那里可以方便地聚在一起,在电视机前讨论材料。虽然传统上编辑室不应该有窗户,但我们提出了一个折衷方案,增加了玻璃块。当日光照射到它们时,它们会产生一种有趣的焦散效果,在视觉上丰富了空间。如有必要,可以从房间内用百叶窗关闭玻璃块。编辑室的沙发放在定制的讲台上(软垫部分由乌克兰品牌Propro Furniture制造)。设备、技术、屏幕和房间的架子也是定制的,以满足编辑的特定需求。其中一间编辑室的墙上装饰着乌克兰艺术家Viktor Barbara的“和平的天空”画作,我们将其呈现给了客户。
Lounge and Open Space - The lounge area is visually separated from the rest of the office by a wooden floor square. The main point of attraction here is a veneered plywood amphitheater where you can sit down and get together. Its outside is lined with bookshelves. Opposite the amphitheater is a mobile rectangular cube sofa on wheels that can be turned to the desired side – on the back side is a brainstorming board. It also serves as a seat and a kind of screen from the open space. The amphitheater and the mobile cube sofa were custom-made by the Cassone contractor. Together with the client, we assembled the coffee table: its top is a spectacular marble slab that the client inherited and could not find a use for before. Editing Rooms - There are three editing rooms in the office – two with individual workstations and one larger room, where it is convenient to get together and discuss the material in front of the TV. Although traditionally there should be no windows in the editing rooms, we offered a compromise and added glass blocks. When daylight hits them, they create an interesting caustic effect that visually enriches the space. If necessary, the glass blocks can be closed with shutters from inside the rooms. The sofas in the editing rooms are placed on custom podiums (the upholstered part was made by the Ukrainian brand Propro Furniture). Racks for equipment, technology, screens, and rooms were also custom-made to meet the specific needs of the editing. The wall of one of the editing rooms is decorated with a 'Peaceful Sky' painting by Ukrainian artist Viktor Barbara, which we presented to the clients.
会议室-为会议室预留了一个带玻璃隔断的街区。这里的主要元素是一个不规则形状的定制桌子。由于会议通常涉及观看视频材料,因此所有参与者都能看到电视屏幕非常重要——座位朝着电视屏幕。会议室的空间在视觉上被四个方形框架隔开——一个带声学面板的电视屏幕、两个头脑风暴板和一幅画——乌克兰艺术家Igor Nekraha的《粉云》版画。如果需要,透明玻璃隔断可以用窗帘关闭,以增加隐私。会议室的天花板用穿孔刨花板装饰,以改善声学效果影院-团队邀请客户参加最终演示,或在大屏幕上观看新电影的粗略剪辑。房间还有一个带屏幕的独立工作区。沙发单元是由乌克兰家具品牌Propro furniture根据我们的草图创建的。圆形窗户重复了建筑的特色圆形窗户。如果需要,可以在电影放映期间用舱口覆盖,并在房间用于讨论或工作时打开。舱口和工作台由Cassone承包商制造。放映室大楼的外墙上有一个小型打印机区和视频会议室,隐藏在开放空间之外。
Meeting Room - A block with a glass partition is reserved for a meeting room. The main element here is a custom table of irregular shape. Since meetings often involve watching video materials, it was important that all participants could see the TV screen – the seating is turned towards it. The space of the meeting room is visually divided by four square frames – a TV screen with an acoustic panel, two brainstorming boards, and a painting – a print of 'Pink Cloud' by Ukrainian artist Igor Nekraha. If desired, the transparent glass partition can be closed with curtains for more privacy. The ceiling of the meeting room is decorated with perforated chipboards to improve acoustics. Cinema - The team invites clients to the final presentation or watches the rough cut of a new film on the big screen. The room also has a separate workplace with screens. The sofa units were created according to our sketches by the Ukrainian furniture brand Propro Furniture. The round windows repeat the characteristic round windows of the building. If desired, they can be covered with hatches during movie screenings and opened when the room is used for discussions or work. The hatches and worktable were made by Cassone contractors. A small printer area and video conferencing booths are organized on the outer wall of the screening room block, hidden from the open space.
远程进行该项目并不容易——在全面战争和空域封闭的时期,后勤工作很复杂。来自乌克兰的大量承包商的参与使客户能够在不损失质量的情况下大幅降低项目成本,我们能够再次向世界介绍乌克兰设计师和艺术家。我们与客户密切合作,创建了动态框架电影制作办公室:我们一起寻找和选择家具,讨论最佳解决方案,并听取彼此的建议。客户的父亲,瑞士建筑师Ueli Fischer,帮助我们根据当地要求调整文件。因此,我们共同创造了一个充满创意团队活跃生活的空间,即使在施工过程中也是如此。作为建筑师,我们特别喜欢与创意行业的公司合作,因为我们知道他们的工作空间对他们有多重要,创意专业人员的要求有多高。在Dynamic Frame项目中,我们不仅满足了多功能办公室的技术需求,还为这个电影制作团队创造了一个充满活力的空间。
It was not easy to work on the project remotely – in times of full-scale war and closed airspace, logistics were complicated. The involvement of a large number of contractors from Ukraine allowed the client to significantly reduce the cost of the project without losing quality, and we were able to once again introduce Ukrainian designers and artists to the world. We created the Dynamic Frame film production office in close cooperation with the client: together we searched for and selected furniture, discussed the best solutions, and listened to each other's advice. The client's father, Swiss architect Ueli Fischer, helped us with the adaptation of the documentation to local requirements. As a result, together we created a space that was filled with the active life of the creative team even during the construction process. As architects, we especially enjoy the opportunity to work with companies from the creative industries because we know how important their workspace is to them and how demanding creative professionals can be. In the Dynamic Frame project, we managed not only to meet the technical needs of a multifunctional office but also to create a vibrant space for this film production team.