混凝土夹层办公楼/NOMAL
Concrete Sandwich Office Building / NOMAL
设计理念与趋势:该项目展现了建筑与土地比率的最大化利用,体现了“更宽、更高、更便宜”的设计理念。通过容积率游戏,建筑师在过去50年里不断探索如何实现建筑与土地的最佳比例,以适应市场和经济的变化。这种设计不仅响应了韩国建筑市场的需求,也反映了建筑师对空间利用和经济效益的深刻理解。
应对挑战的创新:面对2024年的挑战,如利率上升、贷款困难和建筑成本增加,该项目通过优化施工量、最小化成本和提高可施工性来应对。同时,它还关注了施工现场技术人员老龄化和质量标准规范化的问题。这种解决方案体现了建筑师在不断变化的环境中寻求创新和适应性的敏锐洞察力。
建筑美学与实用性的结合:该项目在追求建筑美学的同时,也注重实用性和成本效益。通过使用最少的元素和现成产品,以及外部隔热系统和精心设计的窗户布局,项目实现了既定的隔热标准和最小化对邻近土地的干扰。这种设计不仅满足了客户对外露混凝土外观的需求,也体现了建筑师在美学和实用性之间找到平衡的能力。

© Roh Kyung

© Roh Kyung
“更宽,更高,更便宜”-“更宽、更高、更便宜”并不是一个新趋势。在建筑中,房地产作为资产的价值与其与建筑物的关系密不可分,因此找到建筑物与土地比率和建筑面积比率的最大面积也很重要。2016年威尼斯建筑双年展韩国馆的主题是“容积率游戏”,它讲述了韩国建筑师在过去50年里为实现最大容积率所做的努力。当时,低利率和相对较高的土地价格通过土地担保贷款建造建筑来支付建筑成本,从而减轻了建筑业主的负担,这导致了多户住房市场的增长。许多建筑师在这一趋势中实施了各种方法,例如建筑面积比游戏。
'Wider, Higher, Cheaper' -'Wider, Higher, Cheaper' is not a new trend. In architecture, where real estate value as an asset cannot be separated from its relationship with the building, finding the maximum area of the building-to-land ratio and floor area ratio is also essential. The theme of the Korean Pavilion at the 2016 Venice Biennale Architecture Exhibition was the 'Floor Area Ratio Game,' it dealt with Korean architects' efforts over the past 50 years to achieve the maximum floor area ratio. At that time, the low interest rates and relatively high land prices reduced the burden on building owners by making a structure to pay for construction costs through a loan secured by land, which led to the growth of the multi-family housing market. Many architects implemented various methodologies in this trend, such as the floor area ratio game.

© Roh Kyung
“但是,太美了”-快到2024年底了,情况已经发生了变化。由于新冠肺炎和全球战争的长期影响,利率上升,贷款困难,建筑成本大幅增加。另一方面,由于产业结构和代际的变化,施工现场面临着现场技术人员的老龄化,难以规范质量标准。在这些不断变化的环境中,需要解决方案和关注点来最大限度地提高施工量、最小化成本并提高可施工性。尽管如此,美感对客户和建筑师来说都不是一个基本问题。
'But, beautiful' - It is almost the end of 2024, and the situation has changed. Due to the long-term effects of COVID-19 and global war, interest rates have risen, loans have become difficult, and construction costs have increased significantly. On the other hand, construction on-site faces the aging of field technicians due to changes in industrial structure and generations, making it difficult to standardize quality standards. In these changing circumstances, solutions and concerns were needed to maximize construction volume, minimize costs, and increase constructability. Despite this, aesthetic sense is an essential issue for neither the client nor the architect.

Site Plan
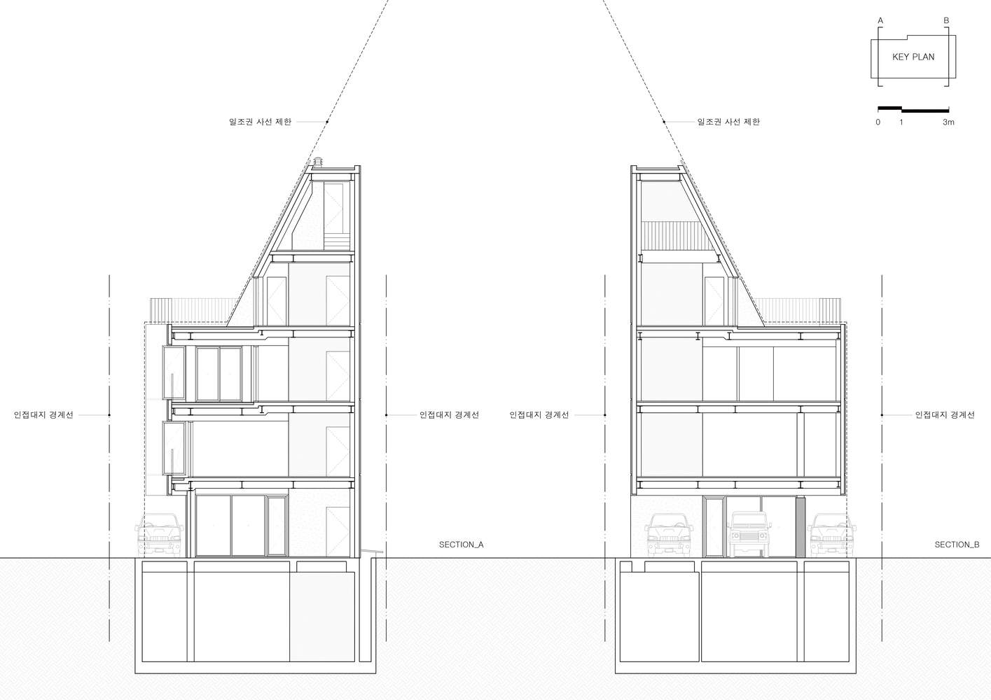
“附加游戏”-一座三角金字塔形状的建筑最初占用了土地,对道路对角线有限制,对阳光权利有朝北的对角线限制。2015年,道路对角线限制被废除,朝北对角线限制的高度最近从9米放宽到10米。这使得现有的土地空间能够增加其最大体积,并且由于道路对角线而造成的一些不便的斜墙空间可以通过填充建筑覆盖率和建筑面积比来垂直改变。
'Additional Game' -A triangular pyramid-shaped building originally occupied the land with road diagonal restrictions and north-facing diagonal restrictions for sunlight rights. The road diagonal restrictions were abolished in 2015, and the height of the north-facing diagonal restrictions was recently relaxed from 9m to 10m. This allowed the existing land room to increase its maximum volume, and some of the inconvenient slanted wall space due to the road diagonal could be changed vertically by filling the building coverage ratio and floor area ratio.

© Roh Kyung
就像容积率游戏的口号一样,建筑的形状被增加到土地的最大体积。一楼被改造成室内空间,不包括停车位的数量,垂直建造到三楼。由于对阳光权利的对角线限制,从四楼开始建造了一个露台和一个倾斜的屋顶。为了最大限度地降低成本,尽可能地维护了现有的核心、西侧和南侧,并拆除了东侧和北侧,以新的钢结构确保额外的空间。此外,利用总建筑面积中不包括的1米屋檐深度,在每层楼都固定了一个露台。这是一场激烈的“加法游戏”,以确保建筑覆盖率和建筑面积比。
Like the slogan of the floor area ratio game, the shape of the building was increased to the maximum volume of the land. The first floor was made into an indoor space, excluding the number of parking spaces, and it was built vertically up to the third floor. A terrace and a sloping roof were created from the fourth floor onwards due to the diagonal restriction on sunlight rights. To minimize costs, the existing core, west, and south sides were maintained as much as possible, and the east and north sides were demolished to secure additional space with a new steel structure. Additionally, a terrace was secured on each floor by utilizing the 1m eaves depth not included in the total floor area. It was a fierce 'addition game' to ensure the building coverage and floor area ratio.

© Roh Kyung

Section

© Roh Kyung
“减法游戏”-另一方面,这种形式是一种“减法游戏。”它试图通过使用最少的元素和现成的产品来简化。半导体可燃聚氨酯板(又名夹芯板)被用作预制建筑方法的外墙,以满足隔热标准,同时最大限度地减少施工。梯田采用台座,便于施工和排水,所应用的斜坡仅在防水层上覆盖一层波纹钢板,便于采用预制施工方法进行维护。雨水管也使用现成的产品暴露在外,以便于维护并与设计相匹配。
'Subtraction Game' -On the other hand, the form was a 'subtraction game.' It tried to simplify by using the minimum elements and ready-made products. Semiconductor-combustible urethane panels (aka. sandwich panels) were used as the prefabricated construction method's exterior walls to meet the insulation standards while minimizing construction. Pedestals were used for the terraces to facilitate construction and drainage, and the slopes applied were covered with only one layer of corrugated steel sheet over the waterproofing, making it convenient for maintenance with the prefabrication construction method. The rainwater pipes were also exposed using ready-made products to make maintenance easy and to match the design.

© Roh Kyung
根据客户的意见,他想要一个外露的混凝土外观,因此使用了外部隔热系统,并在夹芯板上仔细地涂上了瓷釉般的混凝土。窗户也被最小化到照明、通风和消防员进入窗户所需的程度,优先考虑减少对邻近土地上邻居干扰的标准。
According to the client's opinion that he wanted an exterior like exposed concrete, the exterior insulation system was used, and concrete was carefully applied like porcelain glaze on top of the sandwich panels. The windows were also minimized to the extent necessary for lighting, ventilation, and firefighter entry windows, prioritizing the criteria of reducing interference with neighbors on the adjacent land.

© Roh Kyung
“复活节彩蛋”-设计意图是让钢结构建筑看起来像混凝土建筑,但钢结构的真相却随处可见。通过前窗可以看到内部天花板的钢结构,通过立柱的缝隙可以看到原始的H型钢。它的外表留有一点幽默,看起来很冷酷和凄凉。当然,这些部分是只有建筑师才能识别和理解的微妙的复活节彩蛋。
'Easter Egg' -The design intention was to make the steel building look like a concrete building, but the truth about steel structures was exposed here and there. The steel structure of the interior ceiling is visible through the front window, and the raw H-beams are visible through the gaps in the piloti columns. It was left as a bit of humor in the facade that could look hard and bleak. Of course, these parts are subtle Easter eggs only architects can recognize and understand.

© Roh Kyung
“走钢丝”-翻修的缺点是施工范围有限,但由于老化而产生的变量对项目计划有重大影响。建筑物越小,由于变量导致的成本增加就越大。这就是为什么装修就像走钢丝。幸运的是,这个项目能够以相对较低的成本将现有的建筑改造成一个可用且舒适的空间。在快速变化的时代和社会中,没有完美的解决方案,但适当的解决方案对客户和建筑师至关重要。
'Tightrope walking' -A renovation has the disadvantage of a limited scope of construction, but variables due to aging have a significant impact on the project plan. The smaller the building, the more substantial the increase in cost due to variables. That's why renovations are like tightrope walking. Fortunately, this project was able to transform an existing building into a usable and comfortable space by renovating it at a relatively low cost. No perfect solution exists in a rapidly changing era and society, but the appropriate solutions are vital to clients and architects.

© Roh Kyung