Landschlacht小学/卢卡斯·伊姆霍夫建筑
Landschlacht Primary School / Lukas Imhof Architektur
设计理念:Landschlacht小学的扩建项目展现了对现有建筑群的深刻理解和创新的设计理念。建筑师通过创建新的主入口、公共广场和亲密的庭院空间,不仅增强了校园的功能性,还提升了空间的互动性和连通性。这种设计手法在尊重历史建筑的同时,巧妙地融入了现代元素,实现了新旧建筑的和谐共存。
空间秩序:项目中对空间秩序的重新诠释是其一大亮点。通过设计新的主入口、公共入口广场和内部庭院,建筑师成功地为学校创造了一个有序而富有层次的空间结构。这种设计不仅满足了功能性需求,还增强了校园的社交和学习氛围,使得学校成为了一个充满活力的教育环境。
可持续性与技术:在可持续性方面,该项目采用了“低技术”解决方案,通过合理的窗户设计、被动储热和地热系统来调节室内气候,体现了对环境的深刻关怀。同时,系统分离和组件解耦的设计理念,使得建筑的维护和升级变得更加便捷,体现了对建筑全生命周期的考虑。

© Hannes Heinzer

© Hannes Heinzer
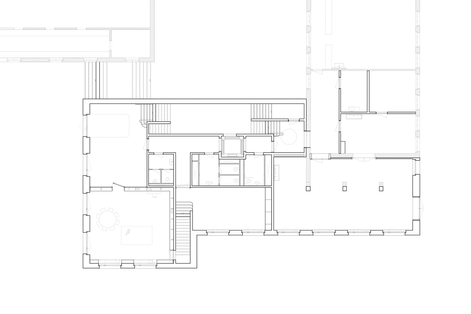
建筑师提供的文字描述项目-将现有的部分上市的学校综合体扩建为具有新环境的新建筑/扩建。扩建部分包括教室、小组室、图书馆、新工作室以及通往新旧建筑的新通道。
Text description provided by the architects. Program - Extension of an existing, partially listed school complex as a new building/extension with new surroundings. The extension contains classrooms, group rooms, a library, a new workroom and new access to the old and new buildings.

© Hannes Heinzer

Site Plan
描述-现有的学校综合体,包括列出的核心校舍、20世纪80年代的多功能厅和一所幼儿园,将扩建更多的教室。
Description - The existing school complex with the listed core school building, the multipurpose hall from the 1980s and a kindergarten were to be extended with additional classrooms.

© Hannes Heinzer

Ground Floor Plan

© Hannes Heinzer

© Hannes Heinzer
我们以一种在现场创造新的空间秩序的方式解释了这项任务:一方面是整个建筑群的新主入口,一方面是一个公共入口广场,另一方面是建筑群内的一个亲密的玩耍和学习庭院,第三个室外空间被重新设计为现有高大橡树下的“绿色教室”。
We interpreted the task in such a way as to create a new spatial order on the site: a new main entrance for the entire complex with a public entrance square on the one hand, and an intimate play and learning courtyard inside the complex on the other, with the third outdoor space being redesigned as a "green schoolroom" under the mighty existing oak tree.

© Hannes Heinzer

Section 2

© Hannes Heinzer
我们正在用未经设计和经济的“低技术”解决方案来解决可持续性问题。大面积的玻璃窗被“合理”的大窗户所取代,这些窗户的玻璃具有低太阳能控制功能。一个大而可访问的存储块可以实现被动储热。夜间制冷和地热探头加热以及地热制冷调节室内气候。
We are addressing the issue of sustainability with unagitated and economical "low-tech" solutions. Large areas of glazing are replaced by "sensibly" large windows with glass with a low solar control function. A large and accessible storage mass enables passive heat storage. Night cooling and geothermal probe heating with geo-cooling regulate the indoor climate.

© Hannes Heinzer
为了确保最佳的系统分离,我们解耦了具有不同寿命的组件,并最大限度地减少了相互连接的组件层(没有吊顶,没有粘在地板上等)。电缆没有铺设在混凝土中,但在爬行空间中仍然可以接近和追踪,并集成到木工工作中。通风管道集成到木工工程中,例如作为长凳。由单石砌体制成的外墙除了内外抹灰外,没有其他结构层。
To ensure the best possible system separation, we decoupled components with different lifetimes and minimized interconnected component layers (no suspended ceilings, no glued-on floors, etc.). Electrical cables were not laid in concrete, but remain accessible and traceable in a crawl space and integrated into carpentry work. Ventilation ducts are integrated into the carpentry work - for example as a bench. The outer wall made of single-stone masonry has no other structural layers apart from an inner and outer render.
© Hannes Heinzer