从褐煤到教育
From Brown Coal to Education / Sehw Architektur
乡村中的城市设计:该项目在乡村环境中呈现出独特的城市概念。扁平连贯的设计分为几卷,与景观完美融合。建筑广泛分布在场地,对各种因素做出反应,且由宽敞露台连接,外观迷人平衡。这种设计既考虑了功能性,又与自然环境相得益彰,为学生创造了一个和谐的学习空间。
功能与美学融合:内部设计清晰且空间结构灵活,楼上普通教室安静,一楼有专门房间等。集群单元创造交流空间,屋顶露台可作绿色教室。天然材料主导室内氛围,开放式百叶窗和隔音天花板确保互动与专注的最佳条件,实现了功能与美学的完美结合。
可持续发展典范:从自然通风到能源储存,从景观设计到材料选择,该项目处处体现可持续性原则。避免能源密集型通风系统,利用自然冷却,打造绿色庭院和屋顶等。它不仅在建筑上令人印象深刻,更符合功能、可持续性和包容性的最高标准。

© Helin Bereket

© Helin Bereket
建筑师提供的文字描述卢萨提亚地区的高中综合学校和三场体育馆。Lusatia是一个前褐煤开采区,正面临着深刻的结构转型的挑战。为了留住该地区的年轻家庭,正在开发更多的教育产品——不仅在小学,现在也在中学。Spree-Neisse区位于勃兰登堡州东部,沿波兰边境,为一所高中和一个三场体育馆的综合学校铺平了道路。Sehw Architektur在赢得比赛后,将该项目作为一个包容性和鼓舞人心的学习环境来实施。
Text description provided by the architects. Comprehensive School with Upper Secondary Level and Three-field Sports Hall in the Lusatia region. Lusatia, a former lignite mining region, is facing the challenges of a profound structural transformation. To retain young families in the area, more educational offerings are being developed – not only in elementary education but now also in secondary schools. The Spree-Neisse district, located in the eastern part of Brandenburg along the Polish border, has paved the way for a comprehensive school with an upper secondary level and a three-field sports hall. Sehw Architektur, after winning the competition, implemented the project as an inclusive and inspiring learning environment.

© Helin Bereket

© Helin Bereket

© Helin Bereket
乡村环境中的城市概念。城市规划概念以其扁平、连贯的设计给人留下深刻印象,该设计分为几卷,从而与景观完美融合。建筑群广泛分布在整个场地,其结构对场地的可达性、噪声污染和地形等因素做出了反应。一层和两层的建筑部分由宽敞的露台连接,使建筑群呈现出迷人而平衡的外观。
An urban concept in a rural setting. The urban planning concept impresses with its flat, cohesive design, which is divided into several volumes and thus optimally integrated into the landscape. The building ensemble spreads extensively across the site, with its structure responding to factors such as accessibility, noise pollution and topography of the site. The one- and two-storey building sections are connected by generous terraces, giving the complex an inviting and balanced appearance.

© Helin Bereket
功能与美学相结合。在内部,设计因其清晰的组织和灵活的空间结构而引人注目。楼上的普通教室提供了一个安静的学习氛围,而专门的房间、行政和公共区域位于一楼。特别引人注目的是集群单元,它们通过中央学习区和宽敞的楼梯创造了交流空间。较高建筑部分之间的屋顶露台可以用作绿色教室。
Functionality meets aesthetics. Inside, the design captivates due to its clear organisation and flexible spatial structures. General classrooms on the upper floor provide a quiet learning atmosphere, while specialised rooms, administration and communal areas are located on the ground floor. Particularly striking are the cluster units, which create communicative spaces through central learning zones and generous flights of stairs. The roof terraces between the taller building sections can be used as green classrooms.

© Helin Bereket

© Helin Bereket
可持续性和现代技术。浅色砖立面使建筑外观优雅,与周围的自然环境相协调。这种材料是该地区的典型材料,非常耐用。大型带状窗户提供充足的日光,突出了建筑的节奏感。在室内,木材、油毡和石头等天然材料主导了空间氛围。公共区域的开放式百叶窗和教室的隔音天花板确保了活跃互动和集中工作的最佳条件。
Sustainability and modern technology. The light-coloured brick façade lends the building an elegant appearance, harmonising with the surrounding nature. The material is typical of the region and highly durable. Large ribbon windows provide ample daylight and emphasise the rhythmic structure of the building. In the interior, natural materials such as wood, linoleum and stone dominate the spatial atmosphere. Open louvres in the communal areas and acoustic ceilings in the classrooms ensure optimal conditions for both lively interaction and focused work.

© Helin Bereket

© Helin Bereket

© Helin Bereket
能源概念。良好的室内空气质量是有效学习和教学的关键要求,通过手动操作窗户的自然通风来实现。交互式显示器配备了二氧化碳监测仪,以帮助控制空气质量。除科学实验室等特殊区域外,避免使用能源密集型通风系统。房间内产生的热量通过夜间自然冷却自动消散。
Energy concept. Good indoor air quality, a crucial requirement for effective learning and teaching, is achieved through natural ventilation via manually operable windows. Interactive displays are equipped with CO2 monitors to help control the air quality. Energy-intensive ventilation systems are avoided except in special areas, such as the science laboratories. Heat generated in the rooms is automatically dissipated through natural night-time cooling.

© Helin Bereket
更自然的凉爽温度。从比赛阶段开始,景观设计就成为总体规划不可或缺的一部分。景观建筑公司Schönherr与Sehw Architektur合作,确保了该场地的大部分未铺砌。室外区域的绿色庭院、绿色屋顶和芦苇床创造了一个自然降温的小气候,并确保了复杂的雨水管理系统。这些措施有助于气候适应,即使在炎热的夏季也能使该地区变得宜人。
More nature for cooler temperatures. Landscape architecture was an integral part of the general planning from the competition stage. The landscape architecture firm Schönherr, in collaboration with Sehw Architektur, ensured that a large part of the site remained unpaved. Green courtyards, green roofs and reed beds in the outdoor area create a microclimate with natural cooling and ensure a sophisticated rainwater management system. These measures contribute to climate adaptation and make the area pleasant even during the hot summer months.

Site Plan

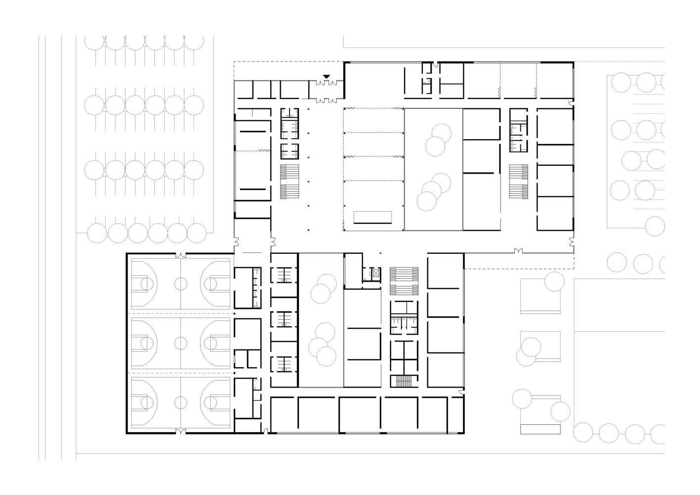
Ground Floor Plan
可持续性作为指导原则。建筑师Xaver Egger教授说:“我们希望尽可能少地使用技术。”。“例如,我们将可打开的通风口集成到带状窗户中,用于夜间制冷。凉爽的空气储存在混凝土天花板中,并在第二天释放。”通过这个项目,Sehw Architektur作为总规划师,与其合作伙伴一起创建了一个创新和前瞻性的教育中心,该中心不仅在建筑上给人留下深刻印象,而且符合功能、可持续性和包容性的最高标准。
Sustainability as a guiding principle. "We want to use as little technology as possible," says architect Prof. Xaver Egger. "For example, we've integrated openable vents into the ribbon window for night-time cooling. The coolness is stored in the concrete ceilings and released the next day." With this project, Sehw Architektur, as the general planner, together with its partners, has created an innovative and forward-thinking educational centre that not only impresses architecturally but also meets the highest standards of functionality, sustainability and inclusion.

© Helin Bereket