WDB幼儿园/HIBINOSEKI+有纪无Shiro+儿童设计实验室
WDB Kindergarten / HIBINOSEKKEI + Youji no Shiro + Kids Design Labo
自然融合与教育契机:此项目巧妙地将 Kiyo 自然景观融入幼儿园设计。借由建筑设计,让孩子们在日常中接触并学习场地特征与历史,贵州独特喀斯特地貌景观成为设计源泉,餐厅等室内空间模拟地形,露台游乐区与台阶设计亦呼应户外,使孩子感受城市地形,这不仅提供教育机会,更开启他们对自然与家乡的认知之旅。
空间创意与儿童成长:在空间打造上独具匠心,露台两层网构成游乐区,台阶兼具景观反射与游乐功能,让孩子在攀爬观察中体会乐趣,百叶窗处可触摸石笋,进一步拉近孩子与当地地形距离。这些设计促进孩子身体机能提升,在日常活动中实现身体素质的逐步改善,使空间成为儿童成长与探索自然的活力场所。
情感培养与环保意识:通过让孩子在日常生活中感受地形,成功构建起他们与地区的情感纽带,使其产生强烈的归属感与依恋。这种情感延伸为对当地环境的保护意愿,从小培养孩子的环保意识,让幼儿园成为塑造孩子热爱家乡、关注环境价值观的重要摇篮,意义深远且富有前瞻性。

Courtesy of HIBINOSEKKEI

Courtesy of HIBINOSEKKEI
建筑师提供的文字描述这是一个新建的5层高层住宅楼(约2220平方米)的一部分的室内设计项目,屋顶露台约570平方米。
Text description provided by the architects. This is an interior design project for a part of the newly constructed 5-story high-rise residential building (approx. 2220 m2) with a roof terrace of approximately 570 m2.

Courtesy of HIBINOSEKKEI

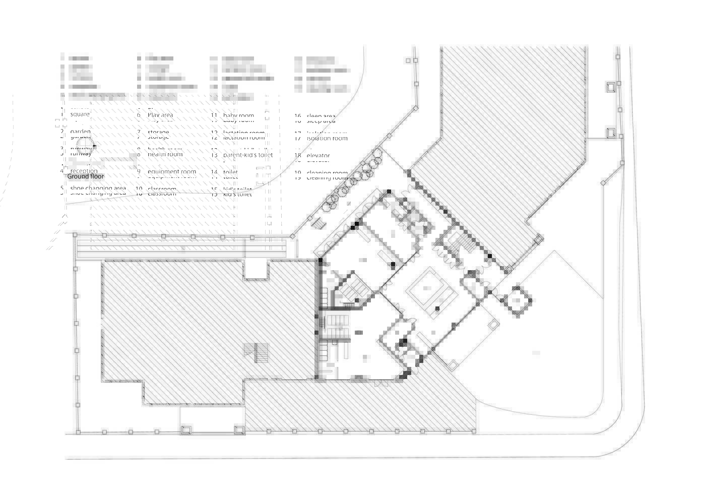
Plan - Ground Floor

Courtesy of HIBINOSEKKEI
我们与客户已经联系了几年,这个项目是我们从他们那里收到的第三个委托。在这个项目中,建筑的设计将Kiyo的自然景观融入了学校。这样的姿态为孩子们提供了学习该遗址特征和历史的不可或缺的机会。
We have been in contact with the client for several years, and this project is the third commission we have received from them. In this project, the building is designed in a way that incorporates the natural landscape of Kiyo into the school. Such a gesture provides indispensable opportunities for children to learn the characteristics as well as the history of the site.

Courtesy of HIBINOSEKKEI
贵州的景观是独特的,这要归功于喀斯特地貌的历史形成。它由山脉、河流、瀑布、石灰岩洞穴和湖泊等自然元素组成,这些元素都是由喀斯特地貌形成的。这个网站提供了一个有趣的轮廓,充满了起伏。孩子们经常聚集的餐厅、候诊室和托儿所的内部模仿了Kiyo的美丽地形。露台上有两层完全由网构成的游乐区。台阶不仅可以反映内部的户外景观,还可以让孩子们在观察溪流周围环境和拥抱他们的城市的同时享受上下攀爬的乐趣。通过这样做,孩子们在日常活动中感受到了自己城市贵阳的地形。通过这些日常活动,孩子们的身体健康和力量逐渐得到改善。此外,在孩子们可以触摸到贵阳喀斯特地貌石笋的地方安装了百叶窗,以便孩子们进一步欣赏当地的地形。
The landscape of Guizhou is unique thanks to the historical formation of the karst landform. It is composed of natural elements such as mountains, rivers, waterfalls, limestone caves, and lakes that are all shaped by the karst land formation. The site offers an interesting contour with full of ups and downs. The interior of the dining room, waiting room, and nursery, where children frequently gather, imitates such a beautiful topography of Kiyo. The terrace has two levels of play areas, created entirely by nets. Steps are also incorporated not only to mirror the outdoor landscape inside but also to let children enjoy climbing up and down while observing the surrounding environment of the creek and the city that embraces them. By doing so, children feel the topography of their own city, Guiyang, in their daily activities. From these daily activities, children improve their physical health and strength incrementally. Furthermore, louvers are installed at locations where children can touch the stalagmites from the karst landform of Guiyang so that children further appreciate the local topography.

Courtesy of HIBINOSEKKEI

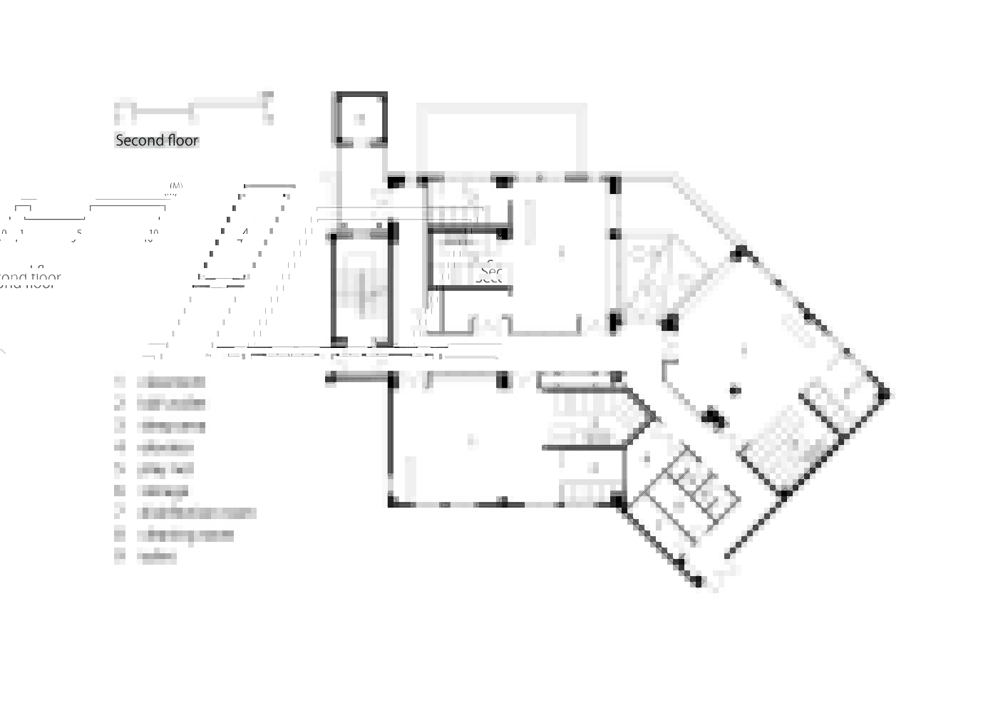
Plan - 2nd Floor

Courtesy of HIBINOSEKKEI
通过让孩子们在日常生活中感受到Kiyo的地形,他们就会对该地区产生强烈的联系和依恋感。通过这样做,孩子们培养了在未来许多年里保护和关心当地环境的意愿。
By making a place where children feel the topography of Kiyo as part of their daily lives, they then develop a strong sense of connection and attachment to the region. In so doing, children cultivate their willingness to protect and care for the local environment for many more years to come.

Courtesy of HIBINOSEKKEI