艺术学前/博伊德建筑师
Preschool of the Arts / Boyd Architects
巧妙布局:由于场地限制,新结构从原始建筑和街道间的小块空间精心雕琢而出。虽空间有限,但带来了新的建筑形象及增强儿童安全感等优势。新建筑通过有盖走道与原建筑相连,既保持了原有入口功能,又实现了功能扩展。整体布局虽具挑战,却也展现出设计师的巧妙构思与应对能力。
风格融合:新结构在材料上匹配原始建筑,如砖覆层与原建筑几乎一致,立缝金属板参考现有染色柏树覆层的颜色色调。同时,对比原建筑直线轮廓,新建筑的旋转脊线创造出不同立面轮廓,为场地增添俏皮个性。这种风格融合既保持了整体的协调性,又展现出独特的创新。
功能与美感兼具:新建筑包含两间新教室及配套空间,教室设计独特,有不对称拱形天花板提供阅读阁楼。大型店面开口保证充足日光和与室外的视觉联系。室内选择简单自然的材料调色板,让孩子和活动为空间增添活力。整体设计在满足功能需求的同时,也注重美感与实用性的结合。

© Mike Habat Photo

© Mike Habat Photo
建筑师提供的文字描述这个项目是查尔斯顿快速发展的艺术学前学校Chabad的扩建。在完成最初的建筑并开办学校后不久,该项目很快就超过了指定的两间教室。领导层试图将学校的出勤率提高一倍,同时保持该地点的独特性。不幸的是,由于11000平方英尺的现有建筑、该项目的停车要求、户外游乐区需求、广阔的缓冲区和受保护的湿地,2.5英亩场地上的开放空间基本上无法建造。
Text description provided by the architects. This project is an expansion of the Chabad of Charleston's rapidly growing Preschool of the Arts. Shortly after completing the original building and launching the school, the program quickly outgrew the two classrooms to which it was designated. The leadership sought to double the attendance of the school while also maintaining the unique character of the site. Unfortunately, the open space on the 2.5-acre site was largely unbuildable due to the 11,000 SF existing building, the program's parking requirements, outdoor play area needs, extensive buffer yards, and protected wetlands.

© Mike Habat Photo

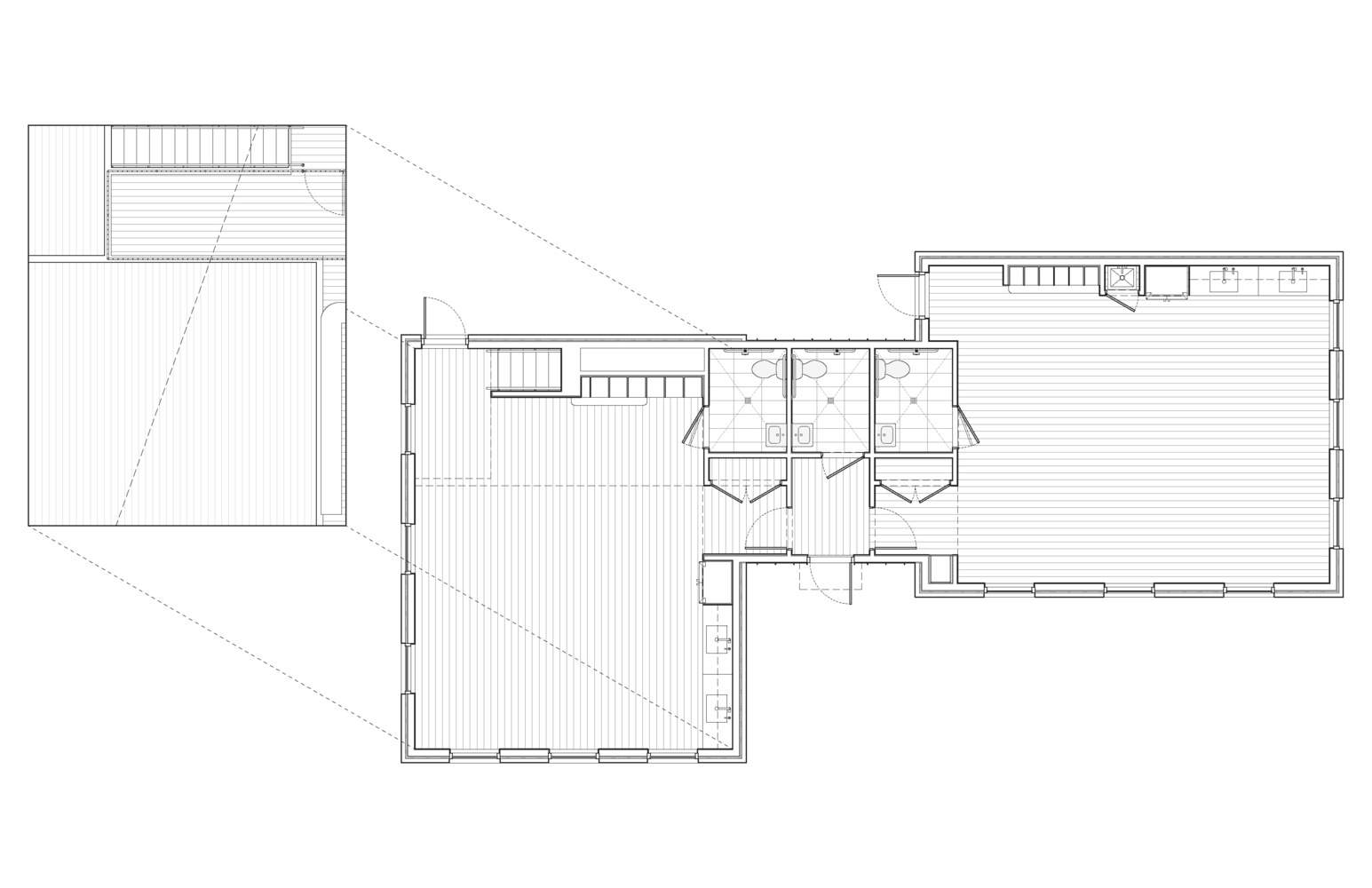
Site Plan

© Mike Habat Photo
因此,新结构必须从原始建筑和街道之间剩下的一小块可行空间中精心雕刻出来。然而,这种布局确实带来了几个优势,包括有机会在场地入口附近打造一个新的建筑形象。新建筑还取代了儿童户外游乐区的最前边界,增加了安全感。它通过一条有盖的走道与原始建筑相连,该走道允许现有结构的入口作为儿童的主要下车和登记地点。
As a result, the new structure had to be meticulously carved out of the one small pocket of viable space that remained between the original building and the street. This placement, however, did present several advantages including the opportunity to craft a new architectural presence near the site's entry. The new building also replaces the forward-most boundary of the children's outdoor play area, providing an increased sense of security. It is connected to the original building via a covered walkway that allows the existing structure's entrance to be maintained as the primary drop-off and check-in location for the children.

© Mike Habat Photo

Plan

© Mike Habat Photo

© Mike Habat Photo
新结构旨在与原始建筑形成对比,同时为该场地提供一种有凝聚力的建筑风格。决定匹配原始建筑的材料调色板,但对比其直线轮廓,直接反映了这一意图。砖覆层与原始建筑几乎完全匹配。立缝金属板的颜色和色调参考了现有的染色柏树覆层,但消除了木墙板的短期维护问题。
The new structure is intended to contrast the original building while still lending a cohesive architectural identity to the site. The decision to match the original building's material palette but to contrast its rectilinear silhouette is a direct reflection of this intent. The brick cladding is nearly an identical match to that of the original building. The color and tone of the standing seam metal panels reference that of the existing stained cypress cladding but eliminate the short-term maintenance concerns of wood siding.

© Mike Habat Photo
新建筑包含两间新教室和必要的配套空间。教室被连接成单独的体量,由一个建筑上从属的“连字符”连接起来,其中包含浴室、储藏室和紧急出口门厅。教室体量的旋转脊线创造了四个不同的立面轮廓,并为一个严肃有序的场所引入了俏皮的个性。虽然尺寸相同,但南部的教室有一个不对称的拱形天花板,为年龄较大的孩子提供了一个阅读阁楼。大型店面开口提供充足的日光,并与室外游乐区和邻近的森林地区保持视觉联系。选择了一种简单、有弹性、看起来自然的室内材料调色板,让孩子们、他们的玩具和他们的活动最终为室内空间增添活力。
The new building contains two new classrooms and the necessary supporting spaces. The classrooms have been articulated as separate volumes that are connected by an architecturally subservient "hyphen," which contains the bathrooms, storage, and the emergency exit vestibule. The rotated ridge lines of the classroom volumes create four distinct façade profiles and introduce a playful personality to an otherwise serious and ordered site. While the dimensions are identical, the south classroom contains an asymmetrical vaulted ceiling that accommodates a reading loft for the older children. Large storefront openings provide an abundance of daylight and maintain a visual connection to the outdoor play area and adjacent forested area. A simple, resilient, and natural-looking interior material palette was selected to allow the children, their toys, and their activities to ultimately animate the interior spaces.

© Mike Habat Photo