KDU校园中心/MEME工作室
KDU Campus Center / Atelier MEME
独特设计理念:该项目在神奈川牙科大学内打造校园中心,以悬浮云状结构的巨大屋顶结合空心板技术,创造出轻盈且宽敞的空间。下方多样化的娱乐空间与核心的混凝土框架结构办公楼和学习楼形成对比,特殊颜料的运用为校园增添柔软感。同时,学习区和屋顶下空间 24 小时开放,成为学生生活的中心枢纽,这种实验性尝试为校园带来新活力。
景观融合之美:校园中心与景观完美融合,通过透明围栏、大门、外露骨料饰面和种植带等模糊校园与公共公园小径的界限。宽阔的屋顶适应城市尺度,与景观融为一体,营造出温馨氛围,展现了向社区开放的大学形象。整体设计不仅提升了校园环境品质,也为居民提供了宜人的空间。
创新与突破:该项目在设计和功能上都有诸多创新。悬浮屋顶的技术运用减轻重量,创造独特空间感。24 小时开放的设施打破传统校园的使用限制,为学生提供无限制的学习和活动空间。景观融合的设计理念也为校园建筑树立了新的标杆,为其他校园建设提供了借鉴,有望推动校园建筑设计的发展与进步。

© Hiroyuki Oki

© Hiroyuki Oki
建筑师提供的文字描述校园中心项目位于日本神奈川县横须贺的神奈川牙科大学内,由于现有办公楼的老化而启动。该计划将办公功能与学生空间结合成一个多功能设施,旨在在校园内创造一个急需的广场式空间。
Text description provided by the architects. The Campus Center project, located within the Kanagawa Dental University in Yokosuka, Kanagawa Prefecture, Japan, was initiated due to the aging of existing office buildings. This plan combines office functions with student spaces into a multifunctional facility, aiming to create a much-needed plaza-like space on campus.

© Hiroyuki Oki

Exploded Axo - Composition

© Hiroyuki Oki
为了寻求正确的空间概念,建筑师设想了一个悬浮在整个校园上空的云状结构——一个使用空心板技术制成的巨大屋顶。这种技术将重量减轻到标准混凝土的一半,仅由细长柱支撑,没有梁。在这个柔软、宽敞的云状屋顶下,有各种各样的娱乐空间:入口大厅、可以欣赏到校园标志性树木的露台和休息室。
In the quest for the right spatial concept, architects envisioned a cloud-like structure levitating over the entire campus—a massive roof made using voided slab technology. This technique reduces the weight to half that of standard concrete, supported only by slender columns without beams. Beneath this soft, expansive cloud-like roof lies a variety of recreational spaces: an entrance hall, a terrace offering unobstructed views of the campus's iconic trees, and lounges.

© Hiroyuki Oki

Plans 1st and 2nd Floor

© Hiroyuki Oki
建筑核心的办公楼和学习楼采用经典的混凝土框架结构,与屋顶的柔和曲线形成鲜明对比。添加到混凝土中的特殊颜料会随着光线的变化而变化,为以白色为主的校园增添了一丝柔软。
The office and study blocks at the building's core employ a classic concrete frame structure, contrasting sharply with the gentle curves of the roof. Special pigments added to the concrete change their expression with the light, adding a touch of softness to the predominantly white campus.

© Hiroyuki Oki

Plans 3rd and 4th Floor

© Hiroyuki Oki
学习区和屋顶下的空间24小时开放,这是日本校园中罕见的实验性尝试,允许学生无限制地使用这些设施。该地区有望成为学生生活的中心枢纽。
The study block and the spaces under the roof are open 24 hours, a rare experimental endeavor in Japanese campuses, allowing students unlimited access to these facilities. This area is poised to become a central hub for student life.

© Hiroyuki Oki

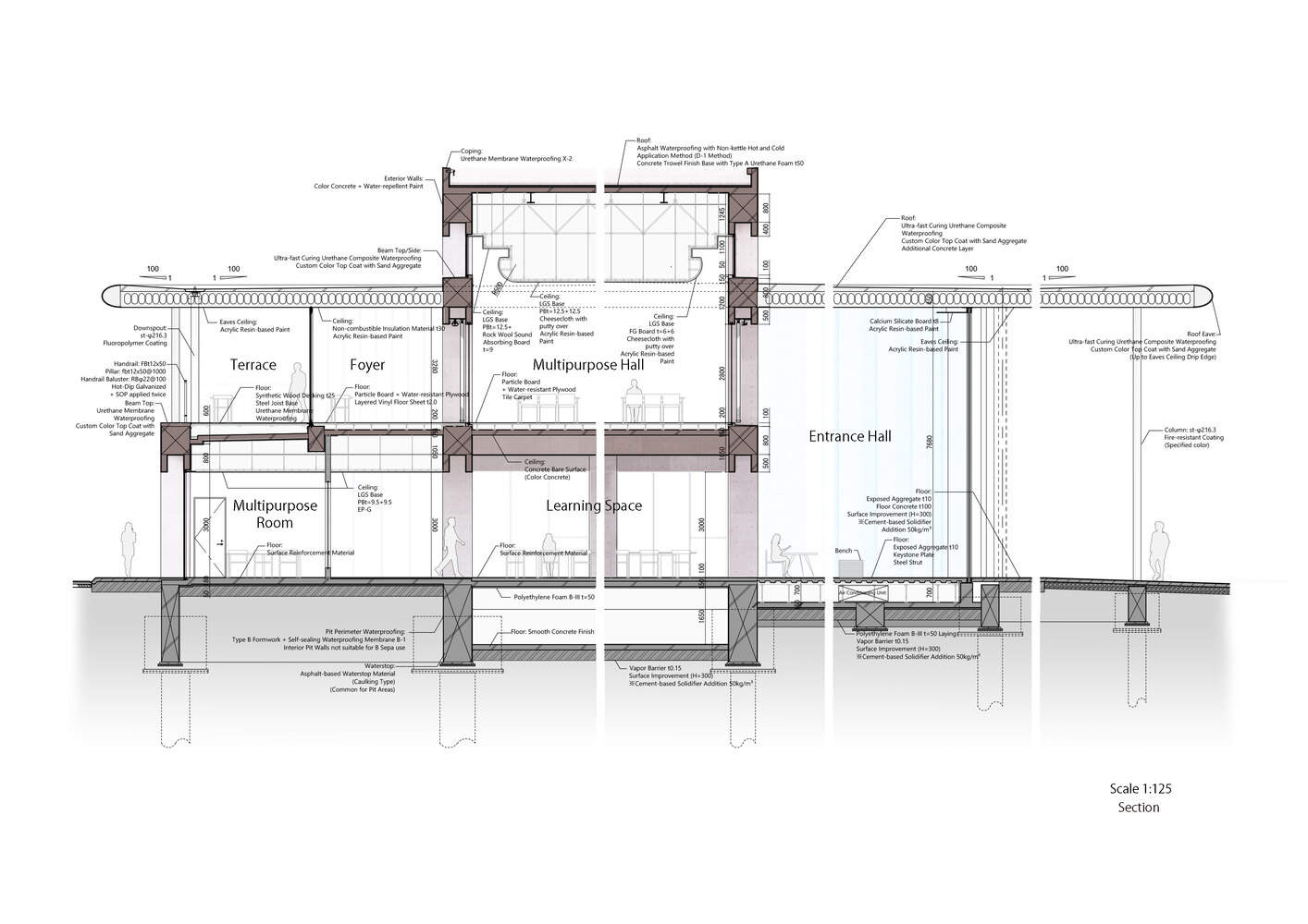
Section

© Hiroyuki Oki
将校园中心与景观融为一体,展现了一个向社区开放的大学形象。建筑师通过透明的杆围栏、宽大的大门、从室内延伸到室外的外露骨料饰面和种植带,模糊了校园和相邻公共公园小径之间的界限。宽阔的屋顶与城市尺度相适应,与这些景观融为一体,为居民营造出温馨的氛围。
Integrating the campus center with the landscape presents an image of the university open to the community. The architect blurred the boundaries between the campus and the adjacent public park trail through see-through pole fences, wide gates, exposed aggregate finishes extending indoors to outdoors, and planted strips. The broad roof, suited to urban dimensions, merges with these landscapes, creating a welcoming atmosphere for residents.

© Hiroyuki Oki