波士顿大学计算与数据科学中心/KPMB Architects
Boston University Center for Computing & Data Sciences / KPMB Architects
创新设计-打造垂直学术社区:波士顿大学计算与数据科学中心以其独特的设计令人瞩目。19 层的建筑大胆矗立在查尔斯河岸,悬挑体量和特色立面既增添了线性美学,又有助于舒适性和可持续性。中心作为上升的学术社区,不同楼层对应不同学科,中央中庭和互连楼梯促进了学科交叉与思想交流。其透明多孔的设计还充当了城市门廊,为人们提供抵达、学习和聚会的场所。
可持续发展-树立新标杆:该中心为未来学术建筑树立了可持续发展的新先例。目标是获得 LEED 白金认证,采用地热闭环系统、可再生能源和替代能源,如地下水补给系统和外部遮阳系统。这与波士顿大学的气候行动计划相契合,到 2040 年将碳排放量减少到零。绿色屋顶和露台也加强了与自然环境的连接。
以人为本-激发协作与灵感:建筑充分考虑了以人为本的设计理念。开放的室内空间利用独特位置提供广阔河景,教室和协作空间光线充足,落地窗提醒学生与自然世界的联系。核心的白板墙激发协作思维,展示流程。此外,众多协作空间、咖啡馆和活动空间促进了学生、教职员工之间的联系与协作。

© Tom Arban

© Tom Arban
建筑师提供的文字描述计算中心;波士顿大学的数据科学是该大学的一个里程碑。它改变了天际线,实现了值得称赞的可持续发展目标,并优先考虑以人为本的设计,最大限度地提高了协作和互联性。该项目汇集了数学、统计学和计算机科学系,在3000名学生、教职员工之间建立了社区。实现了垂直校园。
Text description provided by the architects. The Center for Computing & Data Sciences at Boston University is a landmark for the university. It transforms the skyline, meets laudable sustainability goals, and prioritizes human-centered design, maximizing collaboration and interconnectivity. The project brings together the mathematics, statistics, and computer science departments, building community among the 3000 students, faculty, and staff. Realized as a vertical campus.

© Tom Arban

Section
该中心高19层,占地345000平方英尺,大胆地矗立在查尔斯河岸之上,是波士顿最大的、可持续的、可运营的无化石燃料建筑。以其悬挑的体量而闻名,这些体量既有红棕色的斜百叶窗(以最大限度地减少太阳能增益并最大限度地遮阳),也有闪闪发光的镜面锯齿立面,这些立面位于覆盖结构的三层玻璃幕墙之上。在为建筑独特的线性美学做出贡献的同时,这些设计元素也有助于舒适性和可持续性,使建筑在冬季保持温暖,在夏季保持凉爽。
Towering boldly over the banks of the Charles River at 19 stories, and spanning 345,000 square feet, the Center is the largest, sustainable, operational fossil fuel-free building in Boston. Recognized by its cantilevered volumes that feature both reddish-brown-colored diagonal louvered (to minimize solar gain and maximize shading) and gleaming mirrored sawtooth facades that rest atop the triple-glazed curtain wall that clads the structure. While contributing to the building’s distinctive linear aesthetic, these design elements also contribute to comfort and sustainability efforts, keeping the building warmer in the winter and cooler in the summer.

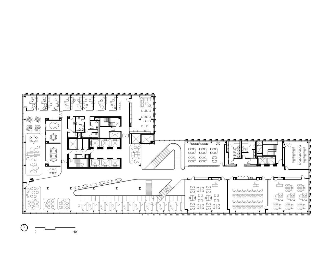
Plan - Site
平台突出,悬停在联邦大道上,以完成街景,并在大道上生成最大的底层动画。该中心高度透明且多孔,可作为抵达、学习和聚会的城市门廊。该中心的概念是作为一个上升的学术社区,较低的楼层用于数学和统计学,中间的楼层用于计算机科学,顶层用于跨学科工作和公共空间。一个中央中庭以协作的精神将教师和学生团结在一起,一个相互连接的楼梯从138层的区域向上延伸,连接了各个学科,培养了思想的交叉传播,并激发了偶然的相遇。
The podium juts out to hover over Commonwealth Avenue to complete the streetscape and generate maximum ground-floor animation on the avenue. Highly transparent and porous, it functions as an urban porch for arrival, study, and gathering. The Center is conceptualized to function as ascending academic neighborhood with lower floors devoted to math and statistics, middle floors for computer science, and top floors for interdisciplinary work and public space. A central atrium unites faculty and students in a collaborative spirit and an interconnected staircase emerges from the area weaving upwards of 138 floors to connect various disciplines, nurture cross-pollination of ideas, and spark serendipitous encounters.

© Tom Arban
该设计为波士顿及其他地区的未来学术建筑树立了雄心勃勃的可持续发展新先例。根据波士顿大学的气候行动计划,该计划旨在到2040年将该机构的碳排放量减少到零,该中心的目标是获得LEED白金认证,100%无化石燃料,并采用地热闭环系统,通过地源热泵系统为建筑供暖和制冷。
The design sets an ambitious new sustainability precedent for future academic buildings in Boston and beyond. In line with Boston University’s Climate Action Plan, which aims to reduce the institution’s carbon emissions to zero by 2040, the Center is targeted to attain LEED Platinum and is 100% operational fossil-fuel free with a geothermal closed-loop system that heats and cools the building through a ground source heat pump system.

© Tom Arban

Plan - First floor

Plan - Second floor
该建筑采用可再生和替代能源,包括地下水补给系统和尖端的外部遮阳系统。开放的室内空间利用了该中心在波士顿市中心的独特位置,从建筑的三面可以欣赏到广阔的河景。教室和协作空间被充足的光线照亮,落地窗提醒沉浸在数字领域的学生,要保持对自然世界的灵感,并记住技术与人类之间的联系。整个核心的白板墙激发了协作思维,同时展示了流程。
The building draws on renewable and alternative energy sources, including groundwater recharge systems and cutting-edge exterior shading systems. Open interior spaces take advantage of the Center’s unique position in the heart of Boston, with expansive river views afforded from three sides of the building. Classrooms and collaboration spaces are illuminated with an abundance of light with floor-to-ceiling windows to remind students enveloped in the digital realm to remain inspired by the natural world and remember the link between technology and humanity. Whiteboard walls throughout the core stimulate collaborative ideation while putting processes on display.

© Tom Arban

© Tom Arban
这座最先进的建筑包括12间教室、两个计算机实验室、一楼的一间咖啡馆、众多协作空间和一个带盖自行车棚的广场。堆叠的校园以一个活动空间和一个三层高的露天凉亭而告终。绿色屋顶和露台遍布整个中心,将学生、教职员工与自然环境连接起来,并提供城市景观。这些开放空间允许现在称中心为家的各个部门之间加强联系和协作。
The state-of-the-art building includes 12 classrooms, two computer labs, a cafe on the ground floor, numerous collaboration spaces, and a plaza with a covered bike shelter. The stacked campus culminates in an event space and a three-story-high open-air pavilion. Green roofs and terraces are located throughout the Center to connect students, faculty, and staff to the natural environment, and offer views of the city. These open spaces allow for increased connection and collaboration among the various departments that now call the Center home.

© Tom Arban