上海嘉定新城实验学校/建学建筑工程设计院
Jiading New City of Shanghai Experimental School / Jianxue Architecture and Engineering Design Institute
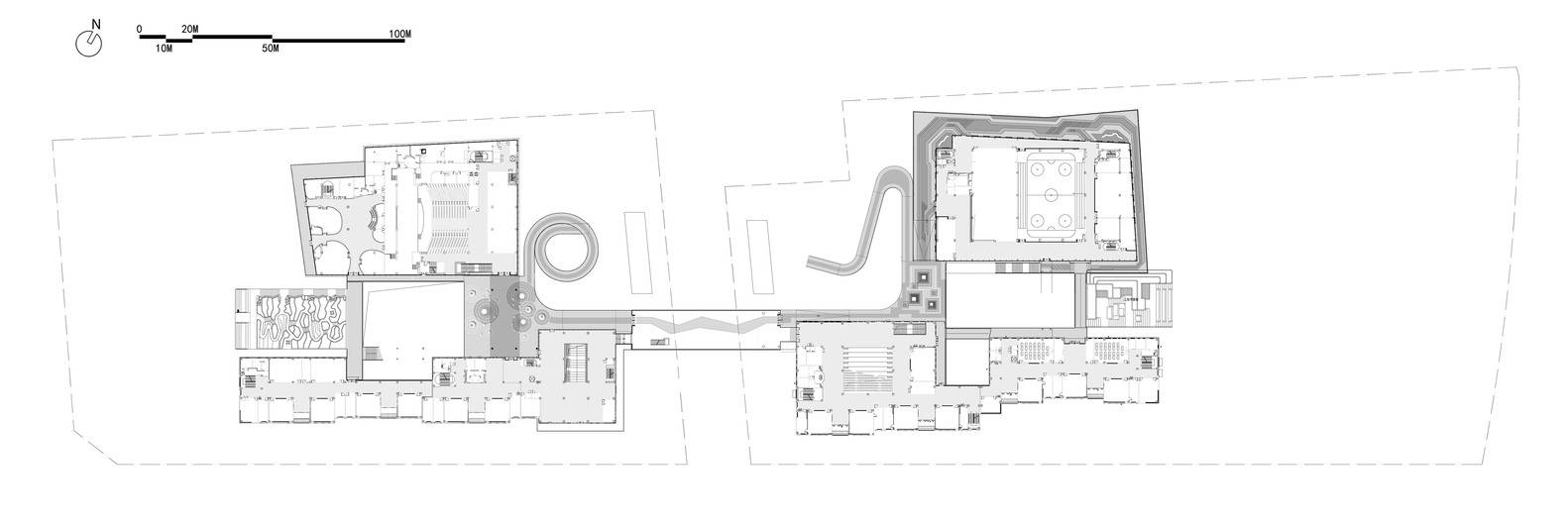
创新布局-打造复合校园空间:上海嘉定新城实验学校采用“一体、两翼、三轴”的复合布局,各建筑模块依据场地形状和环境设置。不同楼层的南北通道连接所有建筑,创造了方便无障碍的校园环境和丰富的室内外活动场所。南轴线教学楼的设计充分考虑了朝向和景观,走廊加宽满足学生课间需求。北轴线的大型单体建筑与樟树林结合,减少噪音干扰,艺术中心和体育中心功能多样,为学生提供了丰富的学习和活动空间。
活力公共空间-景观走廊贯穿校园:长达 550 米的中轴线被设计为完全开放的景观走廊,连接南北轴线上的建筑,创造出最具活力的校园公共空间。花园、庭院等元素将建筑相连,Track 公园提供了有吸引力的户外空间,地下大厅功能丰富,Halo 游乐场降低能耗。树桌花园和体育公园也为学生提供了不同的活动场景,整体设计提升了校园的活力和吸引力。
跨界创新-重塑教育与设计融合:跨境的上海嘉定新城实验学校改变了传统的接收模式,教育与设计的交叉创造了多样化场景,提升了空间的公共性和参与性。学校不再是简单的建筑集合,而是融入了对教育、未来和人与自然共存的思考。这种跨界创新为学校带来独特的魅力和个性,体现了对每个学生的关注和态度。


建筑师提供的文字描述作为上海“优质拓展”学校之一,JSES位于人口增长最快的新城。它源于“实验”的精神,可以被视为一所“跨界学校”。对于城市而言,校园跨越城市道路边界;对于该项目,学校校长的全程参与跨越了教育和设计的界限;在空间方面,建筑、室内和景观的专业界限被跨越和融合。
Text description provided by the architects. As one of the "high-quality expansion" schools in Shanghai, JSES is located in the New City with the fastest population growth. Derived from the spirit of "experimentation", it can be regarded as a "Cross-border School". For the city, the campus crosses the urban road boundary; for the project, the full-stage participation of the school principal crosses the boundary of education and design; for the space, the professional boundaries of architecture, interior and landscape are crossed and integrated.


Plan - 1st floor

学校的教学、艺术、体育、未来和学习中心建筑模块根据场地的形状和环境形成了“一体、两翼、三轴”的复合布局。不同楼层的多个南北通道连接着所有建筑,创造了一个方便无障碍的校园和各种室内外活动场所,融合了行人优先和儿童友好的概念。
The school's teaching, art, sports, future, and learning center building modules form a composite layout of "One Body, Two Wings, and Three Axes" based on the shape and environment of the site. Multiple north-south passages on different floors connect all buildings and create a convenient and accessible campus and a variety of indoor and outdoor activity places that integrate the concept of pedestrian priority and child friendly.


对于这两个独立的地块,设计提出了一个“街区综合体”战略,包括天空走廊和街道公共空间,形成一个“独立但不分离”的校园。东翼和西翼毗邻城市道路两侧,是学校最常用的区域,结合了建筑、公园和坡道。西翼的学习中心是一个低层的创新学习空间,东翼的未来中心通过叠加设计形成了一个多功能的会议、报告、表演、展览等空间。学校的两个主要入口是按照公园的概念设计的。
For the two independent plots, the design proposes a "Block Complex" strategy that includes Sky corridors and street public spaces to form an "independent but not separated" campus. The east and west wings, adjacent to both sides of the city road, are the most frequently used areas of the school, combining buildings, parks and ramps. The learning center in the west wing is an innovative learning space for low, The future center in the east wing area forms a multi-functional space for meetings, reports, performances, exhibitions, etc. through a superimposed design. The two main entrances of the school are designed with the concept of a park.


Plan - 2nd floor
南轴线包括沿河设置的教学楼和公共空间,教室和教师办公室的朝向和景观最好。教学楼每层包含三套“两室一厅”模块(每两间标准教室共享一个小讨论厅),教学楼走廊加宽,以满足学生在课间休息、活动和交流的需要。学校大楼旁边是一个游戏花园和一个休闲花园。消防通道经过景观美化,与凹形绿地相结合,形成一个透明的花园,供日常活动使用。花园的入口与“讨论厅”相连,便于学生进出。
The South Axis includes teaching buildings and public spaces set up along the river, where classrooms and teachers' offices have the best orientation and landscape. Each floor of the teaching building contains three sets of "two rooms and one hall" modules (every two standard classrooms share a small discussion hall),The corridor of the teaching building is widened to meet the needs of students for rest, activities and communication during class breaks. Adjacent to the school building is a games garden and a relaxation garden. The fire escape is landscaped, combined with the concave green space to form a transparent garden for daily activities. The entrance of the garden is connected to the "Discussion Hall", which makes it easy for students to enter and exit.


学校的大型单体建筑和北侧的樟树林形成了北轴线,减少了城市道路对校园的噪音干扰,形成了一个简单的校园空间天际线。分层的建筑挫折建立了与城市的对话。通过精心设计,艺术中心整合了剧院、教室和食堂等多种功能。体育中心是学校最大的单体建筑,可从地面、二楼和三楼进入,提供多种体育功能。东北角的一个有趣的滑梯通往地面,为这座大型建筑带来亲密友好的体验。
The large single building of the school and the Camphor Forest on the north side form the North Axis, which reduces the noise interference of urban roads on the campus and forms a simple campus space skyline. The layered building setbacks establish a dialogue with the city. Through intensive design, the Art Center integrates multiple functions such as theater, classrooms, and canteens. The Sports Center is the largest single building of the school, which can be accessed on the ground, second and third floors, and provides a variety of sports functions. A fun slide in the northeast corner leads to the ground level, bringing an intimate and friendly experience to the large building.


Section - Primary school

中轴线长550米,设计为一条完全开放的景观走廊,贯穿整个校园,末端与城市天际线相连。花园、庭院、桥梁、平台和地下空间将南北轴线上的建筑连接起来,创造出最具活力的校园公共空间。Track公园是一个8000平方米的无动力公园,位于中轴线西端,有三种功能:体育、游戏探索和自然体验。公园由一条“环绕式轨道”连接,为学生提供了一个有吸引力的户外空间。Geo Garden和Dry Creek Boardwalk结合了雨水渗透、收集和再利用的可持续设计。
With a length of 550 meters, the Central Axis is designed as a fully open landscape corridor that runs through the entire campus, connecting to the city skyline at the end. Gardens, courtyards, bridges, platforms, and underground spaces connect the buildings in the north and south axes, creating the most vibrant campus public space. The Track park is an 8,000-square-meter non-powered park at the west end of the Central Axis with three types of functions: sports, game exploration, and nature experience. The park is connected by a "wrap-around track" to provide students with an attractive outdoor space. The Geo Garden and Dry Creek Boardwalk incorporate sustainable designs for rainwater infiltration, collection, and reuse.


第二个平台和一楼5米高,由山谷花园和露台花园连接。地下大厅高10米,包括体育场馆、文艺演出、接送、分发等功能。大厅屋顶上的Halo游乐场包含多个可玩的采光井,提供自然光,降低了人工照明的能耗。高中中心的树桌花园是遮荫的树木和户外桌椅的组合,营造出学习、交流和休息的场景。体育公园是中轴线东端的一个户外运动空间。,包括300米标准跑道、足球场、球类运动场和健身器材场。一个有着柔软天然草的泛光灯足球场有可能向周围社区开放。
The 5-metre height of the second platform and the ground floor is connected by a valley garden and a terrace garden. The Underground Hall is 10 meters high, including sports venues, theatrical performances, pick-up, distribution and other functions. The Halo Playground on the roof of the lobby contains multiple playable light wells, providing natural light that reduces the energy consumption of artificial lighting. The Tree Table Garden in the center of the Senior School is a combination of shaded trees and outdoor tables and chairs to create a scene of learning, communication and rest.The Sports Park is an outdoor sports space at the east end of the Central Axis., including a 300-meter standard running track, a football field, a ball game field, and a fitness equipment field. A floodlit football pitch with soft natural grass has the potential to be open to the surrounding community.


跨境JSES学校改变了“交钥匙,搬进来”只作为接收者的传统。教育和设计之间的交叉创造了从“城市到办公桌”的多样化场景,最大限度地提高了空间的公共性和参与性。学校不再是单个建筑的简单集合,而是包含了对教育的理解、对未来的展望以及对人与自然共存的反思。“跨界”不是对现有规则的挑战,而是一种积极的创新,为每所学校带来独特的吸引力和个性,就像SES对每个学生的态度一样。
The cross-border JSES school has changed the tradition of "handing over the keys and moving in" as the receiver only. The crossover between education and design creates diverse scenes from the "city to desk" scale, maximizing the publicness and participation of the space. The school is no longer a simple collection of individual buildings, but contains an understanding of education, a vision of the future, and a reflection on the coexistence of man and nature. "Crossover" is not a challenge to existing rules, but a positive innovation that brings a distinctive appeal and personality to each school,just like the SES's attitude for every student.
