中学翻修和扩建/wulf建筑
Secondary School Refurbishment and Expansion / wulf architekten
独特设计成就新校园:该中学翻修和扩建项目充分展现了设计师的巧思。保留既有建筑外壳并进行改造,使其成为现代校园的核心元素,既保留了历史痕迹又满足了当下教育标准。新建筑环绕旧楼,打造“学习之家”,为学生提供了灵活多样的学习和活动空间。这种新旧融合的设计,让校园既有独特的历史韵味,又充满现代活力。
空间利用巧妙合理:扩建部分与现有建筑直接连接,减少了表面密封,为操场留出足够空间。建筑依坡而建,创造出与不同楼层相连的开放空间,丰富了校园景观层次。教室围绕集群区域分组,方便教学与交流。三层高的礼堂通过画廊连接学习室与专业教室,创造出有吸引力的视觉联系,同时因地形倾斜与室外空间相连,拓展了空间的使用可能性。
立面设计独具魅力:立面大窗户开口与光滑预制混凝土和粗糙灰泥交替带的水平连接,赋予了建筑特殊魅力。表面的微妙起伏增添了建筑的质感。阳光充沛的礼堂不仅是功能空间,更是连接各个楼层的重要节点。整体立面设计既美观又实用,为校园增添了一道亮丽的风景线。

© Brigida González for wulf architekten

© Brigida González for wulf architekten
建筑师提供的文字描述Text description provided by the architects. At the request of the town of Gerlingen, the secondary school built in the 1970s has been expanded to accommodate three classes per grade and adapted to current educational standards. The design defines the mid-level secondary school as a recognizable place of distinct identity within the existing school complex. The existing building remains as a shell and is transformed through modifications and additions into the central element of a modern school ensemble with flexible use potential.

© Brigida González for wulf architekten

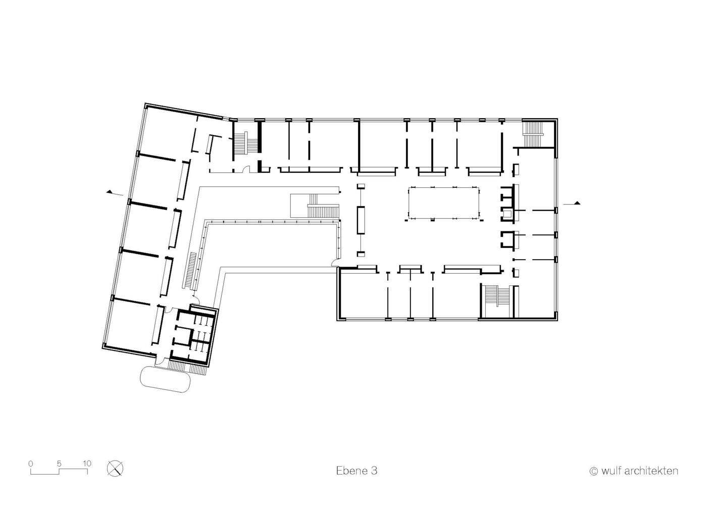
3rd Floor Plan

© Brigida González for wulf architekten

© Brigida González for wulf architekten
通过将扩建部分直接连接到现有建筑上,可以最大限度地减少表面密封,并为中学旁边的操场区域留出足够的空间。由于建筑建在斜坡上,因此创造了与建筑不同楼层相连的有吸引力的开放空间。
By attaching the addition directly to the existing building, surface sealing is minimized and ample space is left for playground areas alongside the middle school. Because the building is built on a slope, attractive open spaces are created with connections to the different levels of the building.

© Brigida González for wulf architekten
新建筑及其现代化的专业教室环绕着现有建筑,将其改造成一个带集群区域的“学习之家”,并具有教学理念的一个基本要素:灵活的空间,为安静或小组工作提供场所,也可供学生简单地聚聚和闲逛。每层楼六间教室围绕每个集群分组。
The new construction, with its modern, specialized classrooms, is arranged in a ring around the existing building, transforming it into a »learning house« with cluster areas and featuring an essential element of the pedagogical concept: flexible spaces that provide places for quiet or group work and can also be used by students to simply gather and hang out. Six classrooms per floor are grouped around each cluster.

© Brigida González for wulf architekten

Cross Section

© Brigida González for wulf architekten
立面以大窗户开口为特征,由光滑的预制混凝土和粗糙的灰泥交替带水平连接,表面的微妙起伏赋予了它特殊的魅力。三层楼高的礼堂沐浴在阳光下,通过画廊将学习室与专业教室连接起来,在各个楼层之间创造了有吸引力的视觉联系。由于地形倾斜,礼堂的三层中有两层与周围的室外空间相连。
The facade, characterized by large window openings, is horizontally articulated by alternating bands of smooth precast concrete and rough stucco, which is given a special charm by the subtle relief of the surfaces. The three-story auditorium, flooded with daylight, connects the learning houses to the specialized classrooms via galleries, creating attractive visual connections between the levels. Thanks to the sloping terrain, two of the auditorium's three levels offer connections to the surrounding outdoor spaces.

© Brigida González for wulf architekten