Appearance
《防火窗》GB 16809-2008
🗓️ 国家标准化管理委员会 实施时间:2009-01-01
前言
中华人民共和国国家标准
防火窗
Fire resistant windows
GB 16809—2008
代替 GB 16809—1997
发布部门:中华人民共和国国家质量监督检验检疫总局
中国国家标准化管理委员会
发布日期:2008年4月22日
实施日期:2009年1月1日
本标准的7.1.6、7.2.1、7.2.3、7.2.4、9.2为强制性条款,其余为推荐性条款。
本标准代替GB 16809—1997《钢质防火窗》。
本标准与GB 16809—1997相比,主要变化如下:
——扩大了标准的适用范围;
——将术语与定义单列一章,给出了本标准涉及到的一些关键术语及其定义,便于更好地理解标准内容(1997版的3.1,本版的3);
——修改了防火窗耐火性能分类方法,1997版按甲、乙和丙分类,本版按“隔热性(A类)”和“非隔热性(C类)”分类,且增加耐火等级分级方法(1997版的4.2,本版的4.2.2);
——明确防火窗的型号编制方法(见5.2);
——将要求分为防火窗通用要求和活动式防火窗附加要求两部分,便于标准的实施(见7.1、7.2);
——增加了防火窗上使用的防火玻璃的质量要求和试验方法(见7.1.2,8.3);
——增加了防火窗抗风压性能和气密性能要求和试验方法(见7.1.4、7.1.5、8.9、8.10);
——对活动式防火窗活动窗扇的扭曲度提出要求,并增加相应的试验方法(见7.2.3,8.8);
——增加了活动式防火窗的热敏感元件静态动作温度、窗扇关闭可靠性、窗扇自动关闭时间要求和试验方法(见7.2.1、7.2.3、7.2.4,8.4、8.11、8.12);
——将防火窗的耐火性能试验方法由GB 7633修订为GB/T 12513(1997版的7.6,本版的8.13);
——修改了防火窗的型式检验抽样方法和判定准则(1997版的6.3,本版的9.2);
——增加了资料性附录A、规范性附录B和参考文献。
本标准的附录A为资料性附录,附录B为规范性附录。
本标准由中华人民共和国公安部提出。
本标准由全国消防标准化技术委员会建筑构件耐火性能分技术委员会(SAC/TC 113/SC 8)归口。
本标准负责起草单位:公安部天津消防研究所。
本标准参加起草单位:广东金刚玻璃科技股份有限公司、天津名门防火建材实业有限公司。
本标准主要起草人:韩伟平、赵华利、周国平、李博、姜晖、曹顺学、王颖、张明罡。
本标准所替代标准的历次版本发布情况为:
——GB 16809-1997。
请注意本标准的一些内容有可能涉及专利。本标准的发布机构不应承担识别这些专利的责任。
1 范围
本标准规定了防火窗的产品命名、分类与代号、规格与型号、要求、试验方法、检验规则、标志、包装、运输和贮存等。
本标准适用于建筑中具有采光功能的钢质防火窗、木质防火窗和钢木复合防火窗,建筑用其他防火窗可参照执行。
2 规范性引用文件
下列文件中的条款通过本标准的引用而成为本标准的条款。凡是注日期的引用文件,其随后所有的修改单(不包括勘误的内容)或修订版均不适用于本标准,然而,鼓励根据本标准达成协议的各方研究是否可使用这些文件的最新版本。凡是不注日期的引用文件,其最新版本适用于本标准。
GB/T 5823-1986 建筑门窗术语
GB/T 5824-1986 建筑门窗洞口尺寸系列
GB/T 7106-2002 建筑外窗抗风压性能分级及检测方法
GB/T 7107-2002 建筑外窗气密性能分级及检测方法
GB/T 12513 镶玻璃构件耐火试验方法(GB/T 12513-2006,ISO 3009︰2003,Fire resistance tests–Elements of building construction – Glazed elements,MOD)
GB 15763.1-2001 建筑用安全玻璃 防火玻璃
3 术语和定义
3.1 固定式防火窗
固定式防火窗 fixed style fire window
无可开启窗扇的防火窗。
3.2 活动式防火窗
活动式防火窗 automatic–closing fire window
有可开启窗扇,且装配有窗扇启闭控制装置(见3.5)的防火窗。
3.3 隔热防火窗(A类)
隔热防火窗(A类) insulated fire window
在规定时间内,能同时满足耐火隔热性和耐火完整性要求的防火窗。
3.4 非隔热防火窗(C类
非隔热防火窗(C类) un–insulated fire window
在规定时间内,能满足耐火完整性要求的防火窗。
3.5 窗扇启闭控制装置
窗扇启闭控制装置 sash closing equipment
活动式防火窗中,控制活动窗扇开启、关闭的装置,该装置具有手动控制启闭窗扇功能,且至少具有易熔合金件或玻璃球等热敏感元件自动控制关闭窗扇的功能。
注:窗扇的启闭控制方式可以附加有电动控制方式,如:电信号控制电磁铁关闭或开启、电信号控制电机关闭或开启、电信号气动机构关闭或开启等。
3.6 窗扇自动关闭时间
窗扇自动关闭时间 automatic-closing time
从活动式防火窗进行耐火性能试验开始计时,至窗扇自动可靠关闭的时间。
4 产品命名、分类与代号
4.1 产品命名
防火窗产品采用其窗框和窗扇框架的主要材料命名,具体名称见表1。
表1 防火窗产品名称

4.2 分类与代号
4.2.1 防火窗按其使用功能的分类与代号见表2。
表2 防火窗的使用功能分类与代号

4.2.2 防火窗按其耐火性能的分类与耐火等级代号见表3。
表3 防火窗的耐火性能分类与耐火等级代号

5 规格与型号
5.1 规格
防火窗的规格型号表示方法和一般洞口尺寸系列应符合GB/T 5824-1986的规定,特殊洞口尺寸由生产单位和顾客按需要协商确定。
5.2 型号编制方法
防火窗的型号编制方法见图1。

图1 防火窗的型号编制方法
示例1:防火窗的型号为MFC 0909-D-A1.00(乙级),表示木质防火窗,规格型号为0909(即洞口标志宽度900mm),使用功能为固定式,耐火等级为A1.00(乙级)(即耐火隔热性≥1.00h,且耐火完整性≥1.00h)。
示例2:防火窗的型号为GFC 1521-H-C2.00,表示钢质防火窗,规格型号为1521(即洞口标志宽度1500mm,标志高度2100mm),使用功能为活动式,耐火等级为C2.00(即耐火完整性时间不小于2.00h)。
6 材料及配件
6.1 防火窗用材料性能应符合有关标准的规定,参见附录A。
6.2 密封材料应根据具体防火窗产品的使用功能、框架材料与结构、耐火等级等特性来选用。
6.3 五金件、附件、紧固件应满足功能要求,其安装应正确、齐全、牢固,具有足够的强度,启闭灵活,承受反复运动的五金件、附件应便于更换。
7 要求
7.1 防火窗通用要求
7.1.1 外观质量
防火窗各连接处的连接及零部件安装应牢固、可靠,不得有松动现象;表面应平整、光滑,不应有毛剌、裂纹、压坑及明显的凹凸、孔洞等缺陷;表面涂刷的漆层应厚度均匀,不应有明显的堆漆、漏漆等缺陷。
7.1.2 防火玻璃
7.1.2.1 防火窗上使用的复合防火玻璃的外观质量应符合GB 15763.1-2001表4的规定,单片防火玻璃的外观质量应符合GB 15763.1-2001表5的规定。
7.1.2.2 防火窗上使用的复合防火玻璃的厚度允许偏差应符合GB 15763.1-2001表2的规定,单片防火玻璃的厚度允许偏差应符合GB 15763.1-2001表3的规定。
7.1.3 尺寸偏差
防火窗的尺寸允许偏差按表4的规定。
表4 防火窗尺寸允许偏差 单位为毫米

7.1.4 抗风压性能
采用定级检测压力差为抗风压性能分级指标。防火窗的抗风压性能不应低于GB/T 7106-2002表1规定的4级。
7.1.5气密性能
采用单位面积空气渗透量作为气密性能分级指标。防火窗的气密性能不应低于GB/T 7107-2002表1规定的3级。
7.1.6 耐火性能
防火窗的耐火性能应符合表3的规定。
7.2 活动式防火窗的附加要求
7.2.1 热敏感元件的静态动作温度
活动式防火窗中窗扇启闭控制装置采用的热敏感元件,在(64±0.5)℃的温度下5.0min内不应动作,在(74±0.5)℃的温度下1.0min内应能动作。
7.2.2 活动窗扇尺寸允许偏差
活动窗扇的尺寸允许偏差按表5的规定。
表5 活动窗扇尺寸允许偏差 单位为毫米

7.2.3 窗扇关闭可靠性
手动控制窗扇启闭控制装置,在进行100次的开启/关闭运行试验中,活动窗扇应能灵活开启,并完全关闭,无启闭卡阻现象,各零部件无脱落和损坏现象。
7.2.4 窗扇自动关闭时间
活动式防火窗的窗扇自动关闭时间不应大于60s。
8 试验方法
8.1 一般原则
用于检验的防火窗试件,其结构、材料及配件应与实际使用的同一型号、规格的产品相符。
8.2 外观质量
防火窗的外观质量采用目测及手试相结合的方法进行检验。
8.3 防火玻璃
8.3.1 按GB 15763.1-2001中6.2的规定检验每一块防火玻璃的外观质量。
8.3.2 选防火窗上任意一块防火玻璃作为试样,按GB 15763.1-2001中6.1的规定检验该块防火玻璃厚度值,与图纸标注或图纸技术要求规定的防火玻璃厚度值相减,差值为其厚度偏差。
8.4 热敏感元件的静态动作温度
热敏感元件的静态动作温度试验见附录B。
8.5 防火窗的尺寸偏差
8.5.1 试验设备
钢卷尺:分度值为1mm;游标卡尺:分度值为0.02mm。
8.5.2 试验步骤
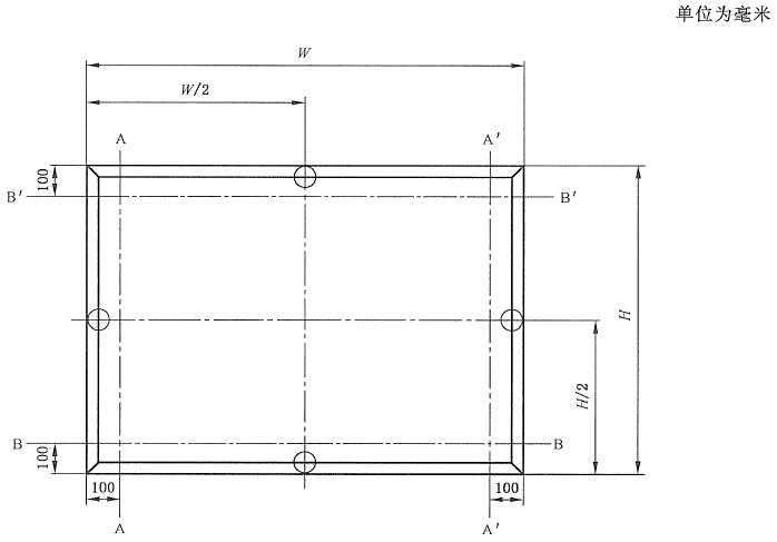
8.5.2.1 防火窗窗框高度采用钢卷尺测量,测量位置为距防火窗两边框各不少于100mm处(如图2的A-A位置和A′-A′位置),测量的高度值分别与图纸标注的防火窗高度值相减,取绝对值最大的差值为防火窗窗框高度偏差值。
8.5.2.2 防火窗宽度采用钢卷尺测量,测量位置为距防火窗上框、下框各不少于100mm处(如图2的B-B位置和B′-B′位置),测量的宽度值分别与图纸标注的防火窗宽度值相减,取绝对值最大的差值为防火窗窗框宽度偏差值。
8.5.2.3 防火窗窗框厚度采用游标卡尺测量,测量位置为防火窗两边框、上框、下框的中部(如图2中的圆圈位置),测量的厚度值分别与图纸标注的窗框厚度值相减,取绝对值最大的差值为窗框厚度偏差值。
8.5.2.4 防火窗的两对角线长度采用钢卷尺测量,测量位置为窗框内角,测量值之差的绝对值,即为防火窗对角线长度差。

图2 防火窗外形尺寸测量位置示意图
H——防火窗高度;
W——防火窗宽度;
O——窗框厚度测量位置。
8.6 活动窗扇的尺寸偏差
8.6.1 试验设备
钢卷尺:分度值为1mm;游标卡尺:分度值为0.02mm。
8.6.2 试验步骤
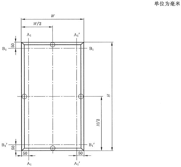
8.6.2.1 活动窗扇高度采用钢卷尺测量,测量位置为距窗扇两边挺各不少于50mm处(如图3的Al-A1,位置和A1′-A1′位置),测量的高度值分别与图纸标注的窗扇高度值相减,取绝对值最大的差值为活动窗扇高度偏差值。
8.6.2.2活动窗扇宽度采用钢卷尺测量,测量位置为距窗扇上挺、下挺各不少于50mm处(如图3的B1-B1位置和B1′-B1′位置),测量的宽度值分别与图纸标注的窗扇宽度值相减,取绝对值最大的差值为活动窗扇宽度偏差值。
8.6.2.3 活动窗扇框架厚度采用游标卡尺测量,测量位置为窗扇两边挺、上挺、下挺的中部(如图3中的圆圈位置),测量的厚度值分别与图纸标注的窗扇框架厚度值相减,取绝对值最大的差值为活动窗扇框架厚度偏差值。
8.6.2.4 活动窗扇的两对角线长度采用钢卷尺测量,测量位置为窗扇外角,两测量值之差的绝对值,即为窗扇对角线长度差。

图3 活动窗扇尺寸测量位置示意图
H——窗扇高度;
W——窗扇宽度;
O——窗扇框架厚度测量位置。
8.7 活动窗扇与窗框的搭接宽度偏差
8.7.1 将防火窗安装在试验框架上,活动窗扇处于关闭状态。
8.7.2 用划刀在活动窗扇上作搭接宽度测量标记线,标记线位置为活动窗扇与窗框各搭接边缘的中部。
8.7.3 采用深度游标卡尺测量活动窗扇上各标记线与对应窗扇边沿间的距离,测量的搭接宽度值分别与图纸标注的值相减,取绝对值最大的差值为活动窗扇与窗框的搭接宽度偏差值。
8.8 窗扇扭曲度
8.8.1 试验设备
试验平台:试验平台的长、宽尺寸应满足测量需求,其平面度不应低于三级;三个顶尖:高度差不大于0.5mm;高度尺:分度值为0.02mm。
8.8.2 试验步骤
8.8.2.1 任意选定窗扇的三个角为顶尖支撑角,标记为Pl、P2、P3角,并在其正反面分别标记出顶尖的顶放位置点,每个点与两角边等距,且不小于5mm;窗扇剩余一角为测量角,标记为P4角,见图4。
8.8.2.2 在试验平台上,将三个顶尖分别顶在窗扇Pl、P2和P3角正面的三个顶放位置点上,并平稳放置,用高度尺测量试验平台与窗扇P4角正面间的距离h1。
8.8.2.3 将窗扇反转,将三个顶尖分别顶在窗扇P1、P2和P3角反面的三个顶放位置点上,并平稳放置,用高度尺测量试验平台与窗扇P4角反面间的距离h2。
8.8.3 试验结果
窗扇的扭曲度(D)按下式计算,结果保留小数后一位有效数字:

图4 扭曲度测量示意图
1——试验平台;
2——高度尺;
3——防火窗活动窗扇;
4——顶尖。
8.9 抗风压性能
防火窗的抗风压性能按GB/T 7106-2002的规定进行检测。
8.10 气密性能
防火窗的气密性能按GB/T 7107-2002的规定进行检测。
8.11 窗扇关闭可靠性
8.11.1 将防火窗试件安装在试验框架上。
8.11.2 开启窗扇,采用手动控制窗扇关闭装置关闭窗扇,完成1次开启/关闭运行试验。
8.11.3 重复8.11.2规定的试验,使窗扇共进行100次开启/关闭运行试验。
8.11.4 每次试验时,仔细观察窗扇的关闭运行状况。
8.12 窗扇自动关闭时间
活动式防火窗的窗扇自动关闭时间按8.13.2的规定测试。
8.13 耐火性能
8.13.1 防火窗的耐火性能按GB/T 12513的规定进行试验。
8.13.2 活动式防火窗的耐火性能试验,除满足8.13.1的规定外,还应满足下述规定:
a)开始试验前,活动窗扇处于开启状态;
b)开始进行耐火试验的同时,采用秒表计时,观察并记录窗扇自动关闭时间;
c)若窗扇在耐火试验开始60s(含60s)内可靠地自动关闭,则继续进行耐火试验,否则耐火试验可以停止。
8.13.3 防火窗的耐火性能判定准则为:
a)隔热性防火窗的耐火性能按GB/T 12513关于隔热性镶玻璃构件判定准则的规定进行判定。
b)非隔热性防火窗的耐火性能按GB/T 12513关于非隔热性镶玻璃构件判定准则的规定进行判定。
9 检验规则
9.1 出厂检验
9.1.1 防火窗的出厂检验项目至少应包括7.1.1、7.1.2、7.1.3、7.2.1、7.2.2、7.2.3,出厂检验的抽样方法参见GB/T 2828.1,抽样方案由生产企业自主确定。
9.1.2 防火窗的出厂检验项目中任一项不合格时,允许通过调整、修复后重新检验,直至合格为止。
9.1.3 防火窗必须经生产厂的质量检验部门按出厂检验项目逐项检验合格,并签发合格证后方可出厂。
9.2 型式检验
9.2.1 防火窗的型式检验项目为本标准第7章规定的全部要求内容,防火窗的通用检验项目见表6,活动式防火窗的附加检验项目见表7。
9.2.2 一种型号防火窗进行型式检验时,其抽样基数不应小于6樘,且应是出厂检验合格的产品,抽取样品的数量和检验程序见图5。

图5 防火窗试验程序和样品数量
注:方框中数字为样品数量。
9.2.3 有下列情况之一时应进行型式检验:
a)新产品投产或老产品转厂生产时;
b)正式生产后,产品的结构、材料、生产工艺、关键工序的加工方法等有较大改变,可能影响产品的性能时;
c)正常生产,每三年不少于一次;
d)产品停产一年以上,恢复生产时;
e)出厂检验结果与上次型式检验结果有较大差异时;
f)发生重大质量事故时;
g)质量监督机构依法提出型式检验要求时。
9.2.4 防火窗型式检验的判定准则为:
a)固定式防火窗按表6所列项目的型式检验结果,不含A类不合格项,B类和C类不合格项之和不大于二项,且B类不合格项不大于一项,判型式检验合格;否则判型式检验不合格。
b)活动式防火窗按表6和表7所列项目的检验结果,不含A类不合格项,B类和C类不合格项之和不大于四项,且B类不合格项不大于一项,判型式检验合格;否则判型式检验不合格。
表6 防火窗通用检验项目

表7 活动式防火窗附加检验项目

10 标志、包装、运输和贮存
10.1 标志
10.1.1 在产品明显部位应标明下列标志:
a)制造厂名称与商标(如果有);
b)产品名称、型号和规格;
c)产品贴有标牌,标牌内容参见GB/T 13306的规定;
d)产品生产日期或生产批号、出厂日期。
10.1.2 产品包装箱的箱面标志要求参见GB/T 6388的规定。
10.1.3 产品包装箱上有明显的“怕湿”、“小心轻放”、“向上”字样和标志,其图形要求参见GB/T 191的规定。
10.2 包装
10.2.1 产品用无腐蚀作用的材料包装。
10.2.2 包装箱有足够的强度,确保运输中不受损坏。
10.2.3 包装箱内的各类部件,避免发生相互碰撞、窜动。
10.2.4 产品装箱后,箱内附有装箱单、产品合格证和安装使用说明书,说明书的编制方法参见GB 9969.1的规定,且宜将此类资料装在防水袋内。
10.3 运输
10.3.1 产品在运输过程中避免包装箱发生相互碰撞。
10.3.2 产品搬运过程中要轻拿、轻放,严禁摔、扔、碰击。
10.3.3 产品运输工具有防雨措施,并保持清洁无污染。
10.4 贮存
10.4.1 产品放置在通风、干燥的地方;避免与酸、碱、盐等腐蚀性介质接触,并有必要的防潮、防雨、防晒、防腐等措施。
10.4.2 产品严禁与地面直接接触,底部垫高大于100mm。
10.4.3 产品堆放时用垫块垫平,水平码放的高度不超过2.0m,立放时的角度不小于70°。
附录A(资料性附录)常用材料及配件标准
A.1材料及表面处理
GB/T 708-2006 冷轧钢板和钢带的尺寸、外形、重量及允许偏差
GB/T 716-1991 碳素结构钢冷轧钢带
GB/T 2518-2004 连续热镀锌薄钢板和钢带
GB/T 3280-2007 不锈钢冷轧钢板和钢带
GB/T 3880.1-2006 一般工业用铝及铝合金板、带材 第1部分:一般要求
GB/T 3880.2-2006 一般工业用铝及铝合金板、带材 第2部分:力学性能
GB/T 3880.3-2006 一般工业用铝及铝合金板、带材 第3部分:尺寸偏差
GB/T 4237-2007 不锈钢热轧钢板和钢带
GB/T 4238-2007 耐热钢钢板和钢带
GB/T 5213-2001 深冲压用冷轧薄钢板及钢带
GB 5237.1-2004 铝合金建筑型材 第1部分:基材
GB 5237.2-2004 铝合金建筑型材 第2部分:阳极氧化、着色型材
GB 5237.3-2004 铝合金建筑型材 第3部分:电泳涂漆型材
GB 5237.4-2004 铝合金建筑型材 第4部分:粉末喷涂型材
GB 5237.5-2004 铝合金建筑型材 第5部分:氟碳漆喷涂型材
GB/T 8814-2004 门、窗用未增塑聚氯乙烯(PVC-U)型材
GB/T 9799-1997 金属覆盖层 钢铁件上的锌电镀层
GB/T 11253-2007 碳素结构钢冷轧薄钢板及钢带
GB/T 15675-1995 连续电镀锌冷轧钢板及钢带
GB/T 17102-1997 不锈复合钢冷轧薄钢板和钢带
JG/T 122-2000 建筑木门、木窗
A.2配件
GB/T 7276-1987 合页通用技术条件
GB 8624-2006 建筑材料及制品燃烧性能分级
GB/T 13828-1992 多股圆柱螺旋弹簧
GB 16807-1997 防火膨胀密封件
GB 18428-2001 自动灭火系统用玻璃球
GB/T 18983-2003 油淬火 回火弹簧钢丝
YB/T 5318-2006 合金弹簧钢丝
附录B(规范性附录)热敏感元件的静态动作温度试验方法及判定准则
B.1抽样
热敏感元件的抽样基数不少于100件,任意抽取15件作为试验样品。
B.2试验设备
恒温水浴设备:试验区域内浴液的温度偏差不得超过0.5℃,其温度测量仪表的最小温度读数值不大于0.1℃;秒表:分度值为0.1s。
B.3试验方法
B.3.1 从15件热敏感元件试验样品中任意抽取5件,作为热敏感元件的静态动作温度试样。
B.3.2 将恒温水浴的浴液升温至(64±0.5)℃,并保持恒温;把热敏感元件试样置于恒温水浴浴液内并开始计时,观察热敏感元件试样在5.0min内的动作情况。
B.3.3 取出经B.3.2试验的所有热敏感元件试样,自然冷却至室温;同时,将恒温水浴的浴液升温至(74±0.5)℃,并保持恒温,将已冷却至室温的在B.3.2试验中未动作的所有热敏感元件试样置于浴液内并开始计时,观察热敏感元件试样在1.0min内的动作情况。
B.4判定准则
B.4.1 若5件热敏感元件试样在B.3.2规定的试验中有4件以上(包括4件)不动作,且在B.3.3规定的试验中每个试样均动作,则判定受检的热敏感元件的静态动作温度合格。
B.4.2 若5件热敏感元件试样在B.3.2规定的试验中有4件以上(包括4件)不动作,但在B.3.3规定的试验中有任意试样不动作,则取B.3.1中剩余的10件热敏感元件试验样品作为静态动作温度试样,重新按B.3.2、B.3.3的规定进行复验,并按下述规定进行判定:
a)若10件热敏感元件试样在B.3.2规定的试验中有9件以上(包括9件)不动作,且在B.3.3规定的试验中每个试样均动作,则判定受检的热敏感元件的静态动作温度复验合格;
b)若10件热敏感元件试样在B.3.2规定的试验中有9件以上(包括9件)不动作,但在B.3.3规定的试验中有任意试样不动作,则判定受检的热敏感元件的静态动作温度复验不合格;
c)若10件热敏感元件试样在B.3.2规定的试验中只有8件以下(包括8件)不动作,则可不必继续进行H.3.3规定的试验,直接判定受检的热敏感元件的静态动作温度复验不合格。
B.4.3 若5件热敏感元件试样在B.3.2规定的试验中只有3件以下(包括3件)不动作,则可不必继续进行B.3.3规定的试验,直接取B.3.1中剩余的10件热敏感元件试验样品作为静态动作温度试样,重新按B.3.2、B.3.3的规定进行复验,并按下述规定进行判定:
a)若10件热敏感元件试样在B.3.2规定的试验中有9件以上(包括9件)不动作,且在B.3.3规定的试验中每个试样均动作,则判定受检的热敏感元件的静态动作温度复验合格;
b)若10件热敏感元件试样在B.3.2规定的试验中有9件以上(包括9件)不动作,但在B.3.3规定的试验中有任意试样不动作,则判定受检的热敏感元件的静态动作温度复验不合格;
c)若10件热敏感元件试样在B.3.2规定的试验中只有8件以下(包括8件)不动作,则可不必继续进行B.3.3规定的试验,直接判定受检的热敏感元件的静态动作温度复验不合格。
参考文献
[1] GB/T 191 包装储运图示标志
[2] GB/T 2828.1 计数抽样检验程序 第1部分:按接收质量限(AQL)检索的逐批检验抽样计划
[3] GB/T 6388 运输包装收发货标志
[4] GB 9969.1 工业产品使用说明书 总则
[5] GB/T 13306 标牌
