Mr. Wu's Home/Jin Qiuye Architecture Studio
吴先生家 / 金秋野建筑工作室
空间布局的巧妙应对:面对狭长且采光不足的户型,设计师展现了卓越的空间规划能力。通过将长厅一分为三,巧妙地解决了空间采光和功能划分的难题。入口处作为玄关过渡,中部利用拱顶和卡座打造多功能家庭室,南端设置活动区,满足了不同家庭成员的需求。这种布局不仅最大化地利用了空间,更重要的是,它打破了传统单一的空间模式,营造了丰富多样的生活场景,使得每个区域都充满了活力。特别是主卧高低床的设计,既是对业主独特生活方式的尊重,也是对居住空间情感内涵的升华。
个性化需求的深度挖掘:该项目最令人印象深刻之处在于对业主个性化需求的深刻理解和回应。设计师并没有拘泥于传统的设计范式,而是将业主的生活习惯、情感需求融入到设计之中。例如,主卧高低床的设计,源于业主对过去生活方式的怀念和对彼此情感的珍视。儿童房的可攀爬设计、开放式厨房的设置以及对“娱乐中心”的打造,都体现了设计师对家庭成员需求的细致考量。这种以人为本的设计理念,使得整个空间充满了温度和个性,真正实现了“为生活而设计”的目的,而非仅仅是满足视觉上的美观。
色彩与材质的创新运用:在色彩和材质的选择上,该项目大胆创新,展现了设计师的艺术审美和对空间氛围的精准把握。红色洒金地毯、绿色瓷砖、金色拱顶、绿色大理石咖啡桌、猩红色的窗帘等元素的运用,构建了一个充满活力和个性的居住空间。走廊空间对深红和普兰的大面积运用,更是营造出了一种抽象画般的视觉效果,赋予了狭窄空间独特的领域感。这种对色彩和材质的巧妙运用,不仅提升了空间的视觉冲击力,更重要的是,它通过营造不同的氛围,丰富了居住者的感官体验,使空间更具表现力和感染力。

© Boris Shiu

© 金秋野
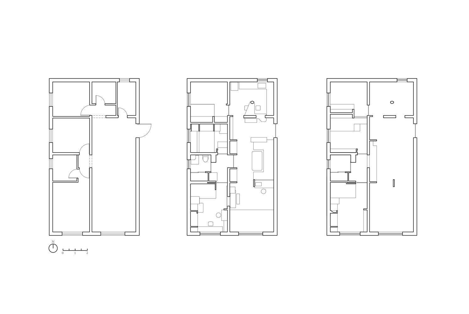
通长的客厅,狭窄的面宽和巨大的进深,让中部异常昏暗。三个卧室一字排开,其中两个之间夹着卫生间,另一个居然要从厨房进入。

© 金秋野

平面图

© 金秋野
Owners expect to complete necessary family communication at a large table; If you want an open kitchen, having a small island countertop would be even better; I hope the children's room can be climbed up and down, like a child's boat; Don't have a traditional living room, a large office desk, or a pretentious study. Instead, have a soundproof "entertainment center", a functional coffee corner, a place to store and display electric guitars and pianos, as well as various bottles and jars.
业主期待在一张大桌子上完成家人必要的交流;想要一个开放式厨房,如果有个小岛台就更好了;希望儿童房可爬上爬下,“如同孩子的小船”;不要传统的客厅,不要大办公桌和装模作样的书房,要一个隔音的“娱乐中心”,一个好用的咖啡角,要有地方收纳并展示电吉他和钢琴,以及各式各样的瓶瓶罐罐。

© 金秋野

© 金秋野

© 金秋野
The most unique requirement is regarding the layout of the master bedroom. The owner wants high and low beds that are the same as two older children. When we first got married, we lived in a 45 square meter room. Both of us were only children, and we had tolerant but not necessarily compatible attitudes towards our own habits. So since then, we have been living in staggered bunk beds together, talking and looking at each other. We don't have to endure different living habits, the beauty lies in each other being busy with their own small things, but we can always smile at each other
最独特的要求,是关于主卧的房间布置。业主想要两个大孩子一样的高低床。“刚结婚的时候住在一个 45 平米的开间里,两个人都是独生子女,对各自的习惯是包容但不一定相溶的态度。所以那时起就一起住错落的高低床,两个人一起说说话,互相可以对望到。不用忍耐彼此不同的生活习惯,美好在于各自忙碌自己的小事情,但是总能相视一笑。”

© 金秋野


© 金秋野
The lower bed in this bedroom is very spacious and can be used as a double bed; There are convenient steps leading to the upper level, as well as comfortable handrails and reasonable storage space, which is incomparable to the bunk beds in the dormitory back then. The surface distance at different elevations is appropriate, and it can also be used as a seat, like a three-dimensional "sleeping device".
这间卧室下层床非常宽大,可以当作双人床来用;有方便的踏步通往上层,也有舒服的扶手和合理的置物空间,与当年宿舍的上下床不可同日而语。不同标高的表面距离合适,同时可充做座椅,像一个立体的“睡眠装置”。

© 金秋野

© 金秋野
As for the most difficult to handle long hall, the approach is to divide it into three parts, with the entrance serving as a foyer, and the darkest part in the middle adding a dome and a booth to become a multifunctional family room; At the southernmost end, near the french window, there is a couch slightly higher than the ground, which becomes an activity room for playing on the ground. At the east side, there is a high desk. Create a window opening between the activity room and the bedroom at the original doorway location, and add a mirrored stainless steel sliding window to allow the scenery to flow. When the sliding window is opened, the scenery on both sides is connected; It reflects itself when closed. This cave opening is somewhat like a round fan in ancient paintings, neither square nor circular, making the people and objects in the frame a small scenery within the fan.
至于最难处理的长厅,做法是一分为三,入口作为玄关,中间一段最暗的部分加上拱顶和卡座,成为多功能的家庭室;最南端靠近落地窗设一个略高于地面的榻,成为席地玩耍的活动室,东侧有高坐的写字台。活动室与卧室间,在原来门洞的位置做出一个窗洞,加一扇镜面不锈钢推拉窗,让风景流动起来。当推拉窗拉开的时候,两侧景物连通;关起来又反射自身。这个洞口有点像古画中的团扇,非方非圆,让框中的人和物成为团扇中的小景。

© 金秋野

© 金秋野

© 金秋野
We made some bold attempts in terms of color. The floor is a red linen carpet sprinkled with gold, the curved tiles outside the hexagonal pillars of the kitchen are green, the dome is golden yellow, the coffee table on the south side of the family room is made of green marble, and the curtains are crimson. The blue double door facing the card seat leads to two bedrooms, which is the same size and shape as the lockers on both sides, bringing about dramatic space conversion. In this short corridor space, I used a large area of deep red and plain, including the tiles and baseboards in the washroom, and borrowed light from the frosted glass doors and cabinets in the bathroom and the gaps between the ceiling. When I closed it all around, I immediately found myself in an abstract painting. In this way, the narrow and dim negative space gained a sense of territory.
色彩方面我们做了些大胆的尝试。地面是红色洒金的亚麻地毯,厨房的六边形柱子外面的弧形瓷砖是绿色,拱顶金黄色,家庭室南侧的咖啡台用绿色大理石,窗帘猩红色。卡座对着的蓝色双开门通往两间卧室,大小和形状与两侧的储物柜一模一样,带来戏剧性的空间转换。这一小段走廊空间,我使用了大面积的深红和普兰,包括盥洗区的瓷砖和踢脚线,又从卫生间的毛玻璃门和柜体与拱顶间的缝隙中借来光亮,当四下关闭,人顿时置身于抽象画中。就这样,狭窄昏暗的消极空间获得了领域感。

© 金秋野

© 金秋野