Coffee Rules - Time Crystal Cafe/CPD Interiors
咖啡法则——时光结晶咖啡馆 / CPD interiors
项目概念与可持续性: 咖啡馆的设计巧妙地抓住了城市更新的脉搏,将“解构”作为核心设计理念。项目选址于即将拆除的破败建筑中,充分利用现有空间,减少了时间和成本的投入。更重要的是,它倡导可持续发展,采用可回收钢材等材料,为城市再生提供了实践范例。设计师以“结晶”为视觉原型,捕捉了城市转型过程中转瞬即逝的美感,并通过光影的反射、材料的选择,营造出一种既冷峻又充满活力的氛围。这种设计不仅与咖啡馆“快节奏、时尚”的品牌形象相契合,更传递了对城市未来发展的积极思考,展现了建筑设计在城市更新中的重要作用。
空间设计与功能性: 咖啡馆的空间设计在强调功能性的同时,也注重了体验感。高吧台的设计鼓励顾客驻足品味,而轻便的折叠椅则为举办活动提供了便利。这种灵活的布局,既满足了快闪店的特性,也呼应了项目对城市更新的关注。 室内设计元素如钢制吧台、水泥墙、光管等,营造出一种粗犷而冷峻的质感,与城市过渡期的状态相呼应。警示胶带的使用,既是设计元素,也提醒着顾客项目的短暂性,增强了项目的特殊性。整体设计并非追求舒适,而是更注重便捷和流动性,鼓励顾客体验展览,从而体现了咖啡馆与城市更新展览的联动性。
材料选择与循环经济: 项目对材料的选择是其精髓所在。设计者选用可回收的钢制单元作为主要材料,不仅响应了可持续发展的理念,也为项目后期拆卸和材料再利用提供了便利。12x12厘米的单元易于组装和拆卸,最大程度地提高了材料的循环利用率。这种设计思路体现了设计师对循环经济的深刻理解。通过对建筑材料的精心选择和处理,项目不仅展示了短期的实用价值,也为城市未来的可持续发展提供了借鉴。 这种循环经济的理念在整个设计中贯穿始终,从材料的选择、组装方式,到最终的拆卸和再利用,都体现了建筑设计在促进城市可持续发展中的积极作用。

© Han image studio

© Han image studio
This three-month pop-up coffee shop is located in a dilapidated building that is about to be demolished. It adopts a deconstructive approach, integrating basic building materials with the originally rough and undeveloped primitive environment. This approach not only saves time and money, but also provides an example for urban regeneration through the use of sustainable materials and reused space. Deconstruction is the starting point. Light rays from different angles reflect off the surface, creating a crystalline effect similar to the changes that occur during urban transformation and revealing its transitional nature.
这家为期三个月的快闪咖啡馆设在一座即将被拆除的破败建筑中。它采用解构的方法,运用基础建筑材料与原本粗犷、待拆的原始环境相融合。这一做法不仅省时省钱,而且所用的可持续材料和再利用的空间还为城市再生提供了一个范例。解构是起点。来自不同角度的光线在表面反射,营造出一种结晶效果,这与城市转型过程中发生的变化相似,并揭示了其过渡性的本质。

© Han image studio

© Han image studio
The client's' Coffee Law 'aims to combine the act of drinking coffee with urban regeneration exhibitions. They collaborate with Lianyu Group to develop and utilize idle buildings awaiting demolition, while making contributions to the local community. The result aims to showcase the transitional stage of urban regeneration projects, therefore "crystallization" was chosen as the visual prototype. The angle formed by the small steel unit, the cold and agile appearance of the lamp, and the reflection of various materials all associate with the cold and fleeting image of snowflakes.
客户“咖啡法则”(Coffee Law)旨在将喝咖啡的行为与城市再生展览相结合。他们与联裕集团合作,开发利用待拆闲置建筑,同时为当地社区做出贡献。其成果旨在展示城市再生项目的过渡阶段,因此选择了“结晶”作为视觉原型。小型钢制单元所形成的角度、灯具的冷峻灵动外观以及多种材料的反射,都与雪花那冰冷且转瞬即逝的形象产生联想。

© Han image studio

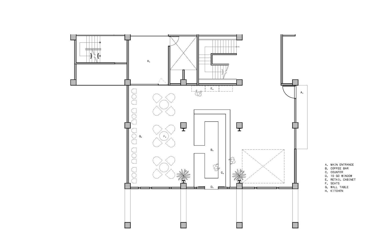
平面图

© Han image studio

© Han image studio
The choice of recyclable steel units was inspired by spatial deconstruction. It magnifies the exposed structure, showcases multifunctionality, and aims to achieve a sustainable circular economy. The repaired cement walls and exposed steel and bricks reveal the construction situation on site. This intervention project aims to integrate into the landscape and form a smooth connection with the architecture and exhibition. We chose materials such as steel bars, cement walls, and light pipes to present a cold and rough texture. The warning tape divides the space, reminds customers of the temporary nature of the project, and provides inspiration for one of the brand's iconic products. The sharp angles, reflective surfaces, and ice crystal like frosted steel bars all imply crystallization, representing the vitality of the city in the transitional stage, just like the calm and restrained tension of the late era. This style also resonates with the marketing characteristics of coffee brands that are "fast and fashionable".
选择可回收的钢制单元是受到空间解构的启发。它放大了裸露的结构,展示了多功能性,并旨在实现可持续的循环经济。修补过的水泥墙和裸露的钢材与砖块,揭示了现场的建造情况。这一介入项目旨在融入景观,与建筑和展览形成流畅的连接。选择了钢制吧台、水泥墙和光管等材料,以呈现出冷峻、粗糙的质感。警示胶带划分了空间,提醒顾客项目的临时性,并为该品牌的一款标志性产品提供了灵感。锐角、反射表面以及冰晶般的磨砂钢制吧台,都暗示着结晶,代表着城市在过渡阶段的活力,就像时代末期那种平静而克制的张力。这种风格也与咖啡品牌“快捷、时尚”的营销特色相共鸣。

© Han image studio

© Han image studio
This coffee brand has been offering a diverse range of coffee drinking experiences throughout the city. Due to its location within the urban regeneration exhibition, this store does not pursue comfort like other branches, but rather places greater emphasis on convenience and mobility. There is a high bar counter in the store, facing the entrance and equipped with lighting fixtures below. The ceiling is also very high, suggesting that customers can stand close to the bar and drink coffee. The seating area equipped with lightweight folding chairs is similar to an outdoor camping site, making it convenient to hold events in this space. The small table and hard chair remind coffee drinkers to move around and feel the memories that are about to fade away. The shop encourages customers to visit the exhibition instead of stopping to drink coffee, so the seating design is mainly for taking a nap.
这家咖啡品牌一直在全市范围内提供多样化的咖啡饮用体验。由于此店址位于城市再生展览之中,它并未像其他分店那样追求舒适感,而是更加注重便捷性和流动性。店内设有高高的吧台,正对入口,下方配有灯具,天花板也很高,暗示顾客可以站着靠近吧台饮用咖啡。配有轻便折叠椅的座位区类似于户外露营地,便于在此空间举办活动。小桌和硬椅提醒着咖啡饮用者四处走动,感受那些即将消逝的记忆。店家鼓励顾客参观展览,而非驻足喝咖啡,因此座位设计主要便于小憩。

© Han image studio

© Han image studio
This aesthetic concept aims to create a light, relaxed yet fleeting atmosphere, while the renovation model is based on the circular economy. The project started with the concept of change and the future, which prompted us to think: if the service life of the building is limited, what will happen to this site after the project is completed? In order to facilitate rapid demolition, the project selected fully recyclable steel as the main material. These materials will not be discarded, but can be recycled and reused. The 12x12 centimeter unit is easy to assemble and disassemble, and the multi-layered structure symbolizes the construction of the building. Despite its short duration, the project has become a model of sustainable fashion through a cycle of assembly, disassembly, and on-site material procurement. The project is constructed by assembling units, which not only efficiently utilizes resources but also facilitates subsequent disassembly, allowing the builders to efficiently control the construction process and meet the customer's expectations for a short 136 day construction period. These materials can be used for other sustainable urban development projects in the future, achieving reuse.
该美学理念旨在营造一种轻盈、轻松却又稍纵即逝的氛围,而翻新模式则基于循环经济。项目起始于变革与未来的理念,促使我们思考:如果建筑的使用寿命有限,那么项目结束后,这片场地将何去何从?为了便于快速拆除,项目选用了可完全回收的钢材作为主要材料。这些材料不会被丢弃,而是可以回收再利用。12x12 厘米的单元易于组装和拆卸,多层结构象征着建筑的构造。尽管项目为期短暂,但通过组装、拆卸和现场材料采购的循环,它成为了可持续时尚的一个典范。项目通过组装单元进行建造,既高效利用了资源,又便于后续拆卸,使得建造者能够高效控制建造过程,并符合客户对 136 天短工期的期望。这些材料日后可用于其他可持续城市发展项目,实现再利用。

© Han image studio

© Han image studio
Everything changes, and cities are no exception. The key is how we perceive these changes. This project replaces abandonment with a positive attitude, transforming idle buildings into cafes and exhibition venues, injecting vitality into the site with mottled cement and cracked bricks. May this space serve the local community and convey the message of urban regeneration.
万物皆变,城市亦不例外。关键在于我们如何看待这些变化。本项目以积极态度取代遗弃,将闲置建筑转变为咖啡馆和展览场地,用斑驳的水泥和开裂的砖块为场地注入活力。愿这片空间服务于当地社区,并传递城市再生的信息。

© Han image studio