Island Cinema Wrapped in "Brick Waves"/Yizheng Plan
裹在 “砖浪” 里的海岛影院 / 壹正企划
项目亮点:“砖浪”影院在设计理念上独具匠心,巧妙地将海口市的地理环境与建筑元素相结合。设计师没有简单地采用海洋蓝的刻板印象,而是选择了砖块作为设计核心,砖块的原材料沙子与海洋生态有着天然的联系,体现了可持续发展的理念。这种选择不仅赋予了建筑独特的视觉语言,也使其与当地环境产生了深层次的对话。整个影院空间通过砖块的堆砌和排列,营造出波浪般的形态,赋予了空间动态感和流动性。阳光的照射下,光影在砖红色的波浪上交织,营造出丰富的视觉效果,令人印象深刻,也赋予了室内空间更具层次感和故事性。
项目亮点:室内设计对光线的运用堪称精妙。自然光透过窗户进入,与砖红色波浪墙体相互作用,营造出独特的空间氛围。照明灯具和通风口被巧妙地隐藏在波浪结构之间,使得空间在满足功能需求的同时,保持了整体的纯粹和美观。地面的小波浪设计也颇具巧思,侧面涂成灰色,既与整体色调形成对比,又起到了引导和安全提示的作用。此外,波浪形的柜台设计以及儿童活动区的设计,都体现了设计者对细节的关注和对使用者体验的重视。整个空间的设计,无论是材料的选择、色彩的搭配还是功能的布局,都体现了设计者对建筑与环境、人与空间之间关系的深刻理解。
项目精髓:该项目最令人赞叹的是其对材料的创新运用和对空间叙事的独特构建。砖块这一常见的建筑材料,在设计师的手中被赋予了新的生命力。通过精心的排列和组合,砖块不再仅仅是结构元素,而是成为了塑造空间形态、表达设计理念的载体。波浪造型贯穿整个影院,从天花板到地面,形成了统一的视觉语言,也构建了一个充满故事性的空间。色彩的运用同样出彩,暖色调的砖红色营造出温馨舒适的氛围,与海口市的地域特色相呼应,而在影厅内部,大胆的色彩搭配和富有艺术感的造型则为观影体验增添了活力。整体来说,这是一个将建筑、艺术与文化完美融合的项目。

© 雷坛坛

© 雷坛坛
As the southernmost provincial capital city in China, Haikou is enveloped by the sea, like a warm autumn bed, and can be smelled with a faint pumpkin fragrance. The designer's design concept is to create a cinema that is closely connected to the geographical environment of Haikou without using the classic ocean blue color. The final designer decided to use bricks as the design theme because bricks are made of sand, which is also an important component of marine ecology and has sustainability.
海口市作为中国最南端的省会城市,被大海包裹着,就像秋天温暖的被窝,可以闻到淡淡的南瓜香。设计师的设计思路是想在不使用经典海洋蓝色的情况下,创造一个与海口地理环境紧密联系的影院。最终设计师决定选用砖块作为设计主题,因为砖块是由沙子制成的,且沙子也是海洋环境生态的重要组成部分,所以其具有可持续性。

© 雷坛坛

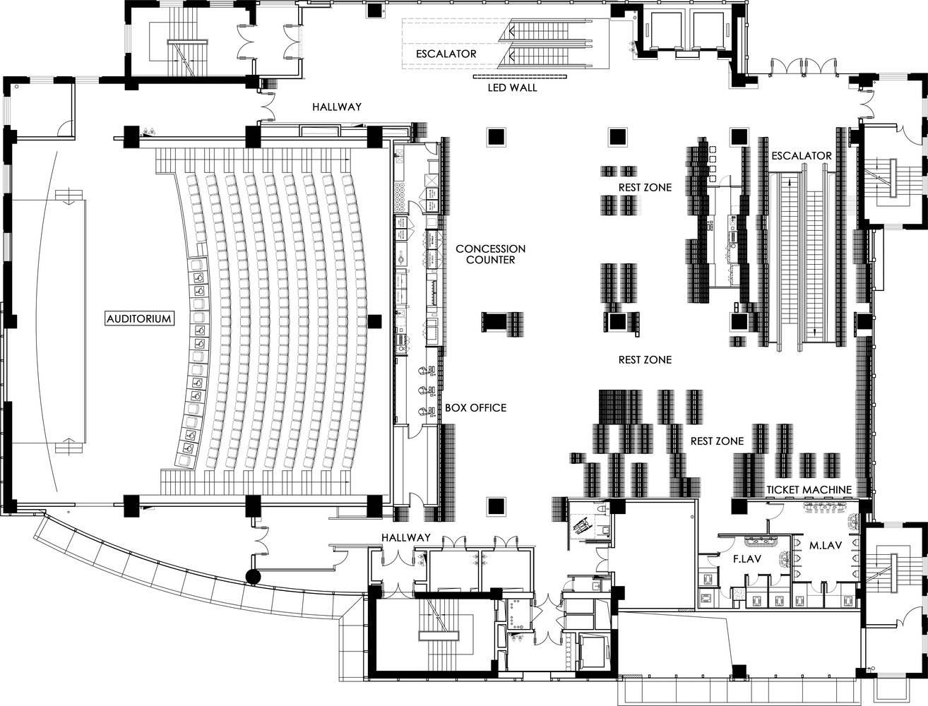
平面图
Entering this space, you can completely construct an interesting story in your mind. Bricks, due to their inherent characteristics, can create beautiful and durable spaces. Bricks are precisely laid out in a wave like pattern, with waves layer by layer that can be seen clearly from any angle. The cinema project occupies a building with many windows, so during the day, sunlight can enter the space. The light and shadow effect formed by natural light hits the brick red waves, enriching the visual effect and spatial texture. The lighting fixtures and ventilation openings are cleverly placed in hidden corners between waves, and only by looking up can they be found. In fact, the size of each brick is the same, but by adjusting the quantity, it forms a wavy shape with varying degrees of curvature. Going deeper into the cinema lobby, you will find that in addition to the wavy shape of the ceiling, the ground is also undulating with waves, further forming tables and chairs for guests to rest and wait.
进入这个空间,你完全可以在脑海中自行构建一个有趣的故事。砖块因其本身特性可以创造出美丽且耐久的空间,砖块被精准地搭放成波浪的样子,波浪一层接一层,从任何角度都能看得一清二楚。该影城项目占据了一栋楼,有不少窗口,所以白天的时候,阳光可以照进空间内,自然光线形成的光影效果打在砖红色的波浪上,丰富了视觉效果和空间质感。照明灯具和通风口被巧妙安置于波浪间隐秘的角落,抬头寻找,才能找到它们。其实每块砖的尺寸是一样的,但是通过调整数量便搭成了弧度大小不一的波浪形。再往影城大堂深处走,会发现除了天花的波浪造型,地面也是翻涌的波浪,并进一步形成可供客人休息等候的桌椅。

© 雷坛坛

平面图
Bricks are piled up to form a wall, carefully arranged like neatly arranged books in a library. Although the surface roughness and particle size of the bricks are high up close, the atmosphere presents a soft feeling when the entire space is coated with the orange yellow tone of topaz. The essence of the lobby design can be captured by people, whether it is in low light or with sunlight and lighting. The small waves on the ground are painted gray on the side, slightly distinguishing them from the overall color of the space, allowing people to recognize the shape of the small waves from a distance. The lights echoed on the waves, not only for aesthetics, but also to prevent guests from tripping. If you look around, you can see a wavy counter with all the curves sloping in different directions.
砖块堆砌成墙,精心排列,就像图书馆里被整齐摆放的书籍。虽然近看砖块的表面粗糙颗粒度大,但是当整个空间都被涂上托帕石橙黄的色调后,气氛却呈现出柔和的感觉。无论是光线较暗的时候还是有阳光、灯光的时候,大堂的设计精髓都可以被人捕捉到。地面的小波浪在侧面涂成了灰色,与整体空间颜色稍微做区分,让人很远之外都能辨认出小波浪的造型。灯光在波浪上回荡,这一切不仅仅是为了美观,也是为了防止客人被绊倒。如果你环顾四周,就能看到波浪形的柜台,所有的曲线都向不同的方向倾斜。

© 雷坛坛

© 雷坛坛
There is a dedicated children's activity area in the cinema for children who watch movies with their parents to relax, play and pass the time. The cylindrical pipes meander through the ceiling, and the color blocks are made of soft velvet cloth and arranged neatly in imitation of bricks. These colors complement the spatial atmosphere and give people a warm and happy feeling. The halo of cylindrical lights surrounding the ceiling illuminates the sense of hierarchy in the ceiling. Many cute figurines hand drawn by designers are woven into handmade carpets, performing different actions such as floating, dancing, jumping... The entire children's activity area is surrounded by soft colors and lively and cute patterns. The designer considers that cinemas are also places where children often visit, so they deliberately add fun and vitality elements to the space.
影城内专门设有儿童活动区,供与家长一起来看电影的小朋友们休闲玩耍消磨时光。圆柱管道蜿蜒穿梭于天花,色块由柔软绒布制成并模仿砖块整齐排布。这些颜色与空间氛围相得益彰,给人温暖幸福之感。环绕着天花圆柱灯光环照亮天花的层次感。设计师手绘的很多可爱公仔被编织成手工地毯,它们做着不同的动作如漂浮、跳舞、跳跃……整个儿童活动区被柔和的色彩和活泼可爱的图案包围着,设计师考虑到电影院也是孩童经常光顾的地方,所以特意为空间增添趣味和活力元素。

© 雷坛坛

© 雷坛坛

© 雷坛坛
The cinema has a total of 13 theaters and also features the world's largest LED screen. The spatial design of the cinema is consistent with other spaces in the cinema. When you enter one of the cinemas, you are attracted by the colors dancing on the walls and floor, like a paintbrush dancing freely in the space. The color and texture within the space can also be perceived from other spaces. The three-dimensional fabric cutting is neat and full of artistic sense. Designers use bold and avant-garde color combinations to create layered wave shapes. Another theater will imitate the elements of tiger skin lily petals and rough bricks for infinite repetition, creating a powerful sense of spatial depth. The lighting strip from top to bottom is like the edge of a book page, flat and continuous. The decoration of the wall extends all the way to the top of the cinema ceiling, with a curved outline leaving enough space and a height that ensures the safety of the space, so as not to harm people entering the space. From an aesthetic perspective, the subtle similarity between the shape of the space and the warm blanket surrounding the islands in the South China Sea, the warmth of waves and tides embracing each other, is like a joyful emotion.
该影城共有 13 个影厅, 且影城內还拥有全球最大的 LED 荧幕。影厅的空间设计与影城其他空间保持一致。当你走入其中一个影厅,便被墙身和地板上飞舞的色彩所吸引,就像一支画笔在空间内随意舞动挥洒。空间内的颜色和质地也可以从其他空间中感知到。立体的织物剪裁利落,充满艺术感。设计师用大胆前卫的色彩搭配来创作出层次感丰富的波涛造型。另一个影厅将模仿虎皮百合花瓣和粗糙砖块的元素进行无限重复,形成很有冲击力的空间纵深感。灯带至上而下的照明就像书籍页边线,平整而绵延。墙身的装饰一直延申至影厅天花顶部,曲线的轮廓留有足够的空间,高度也保证了空间的安全,不至于伤害进入空间的人。从美感的角度来看,空间的造型与温暖的毯子一样环绕着岛屿的南海的微妙相似之处,波潮相拥时的温暖,就像欢愉的情绪一般。

© 雷坛坛