Yeonheun Bakery/Sherpa
Yeonheun 烘培坊 / Sherpa
尊重与再利用:Yeonheun烘培坊的设计核心在于对原有建筑的尊重与巧妙再利用。设计团队并未选择大刀阔斧的改造,而是保留并修复了旧的水磨石地面,仅更换了玻璃就重新启用了隐藏的窗户。这种做法不仅节约了资源,更赋予了空间历史的沉淀感和独特的韵味。通过这种方式,建筑自身的“历史”成为了设计的一部分,与新元素的融入和谐共存,体现了设计师对原有建筑的深刻理解和尊重,也展现了可持续设计的理念。
拱形结构的呼应与延续:项目中的拱形结构被巧妙地提取并融入到家具设计中,形成了一种空间语言的延续性和统一性。这种设计手法打破了传统设计中建筑与室内割裂的界限,使室内外空间在视觉上形成一种呼应关系。同时,家具材质的选择也颇具匠心,旧木材与橡木的结合,展现了木材的年轮和岁月痕迹,更增添了空间的质感和故事性。这种细节的考量,体现了设计师对材料的深入理解和对整体氛围的营造能力。
人文关怀与生活方式:设计将木材的年轮与人类指纹、伤痕联系起来,赋予了空间更深层次的人文意义。此外,通过劈烧木材的处理方式,展现了木材的多样性和独特性。古老的石质立柱、雕琢精美的横梁以及与天花板灯光设计的呼应,共同营造出温暖、温馨的氛围,也为社区居民提供了一个充满活力和归属感的生活场所。项目不仅是一个烘培坊,更是一个引领西村日常生活的文化场所,展现了设计对社区和生活方式的积极影响。

© inandoutstudio

© inandoutstudio
The design team strives to respect the appearance of the existing building as much as possible during the construction process and intentionally leaves some traces. The old terrazzo floor has been restored, while the windows hidden within the existing building have been put back into use after only replacing the glass.
设计团队在施工过程中尽可能尊重现有建筑的外观,并有意留下一些痕迹。旧的水磨石地面得到了修复,而隐藏在现有建筑内的窗户,仅更换了玻璃后便重新投入使用。

© inandoutstudio

© inandoutstudio
In addition, the arch structure originally embedded in the building facade has been introduced and reflected in the structural design of furniture, and this correlation has been continued. The furniture also harmoniously uses old wood and oak, displaying the annual rings of the wood while leaving traces of time everywhere.
此外,原本镶嵌在建筑立面上的拱形结构被引入并体现在家具的结构设计中,这种关联性得以延续。家具还和谐地运用了旧木材与橡木,在展现木材年轮的同时,处处留存下岁月的痕迹。

© inandoutstudio

© inandoutstudio

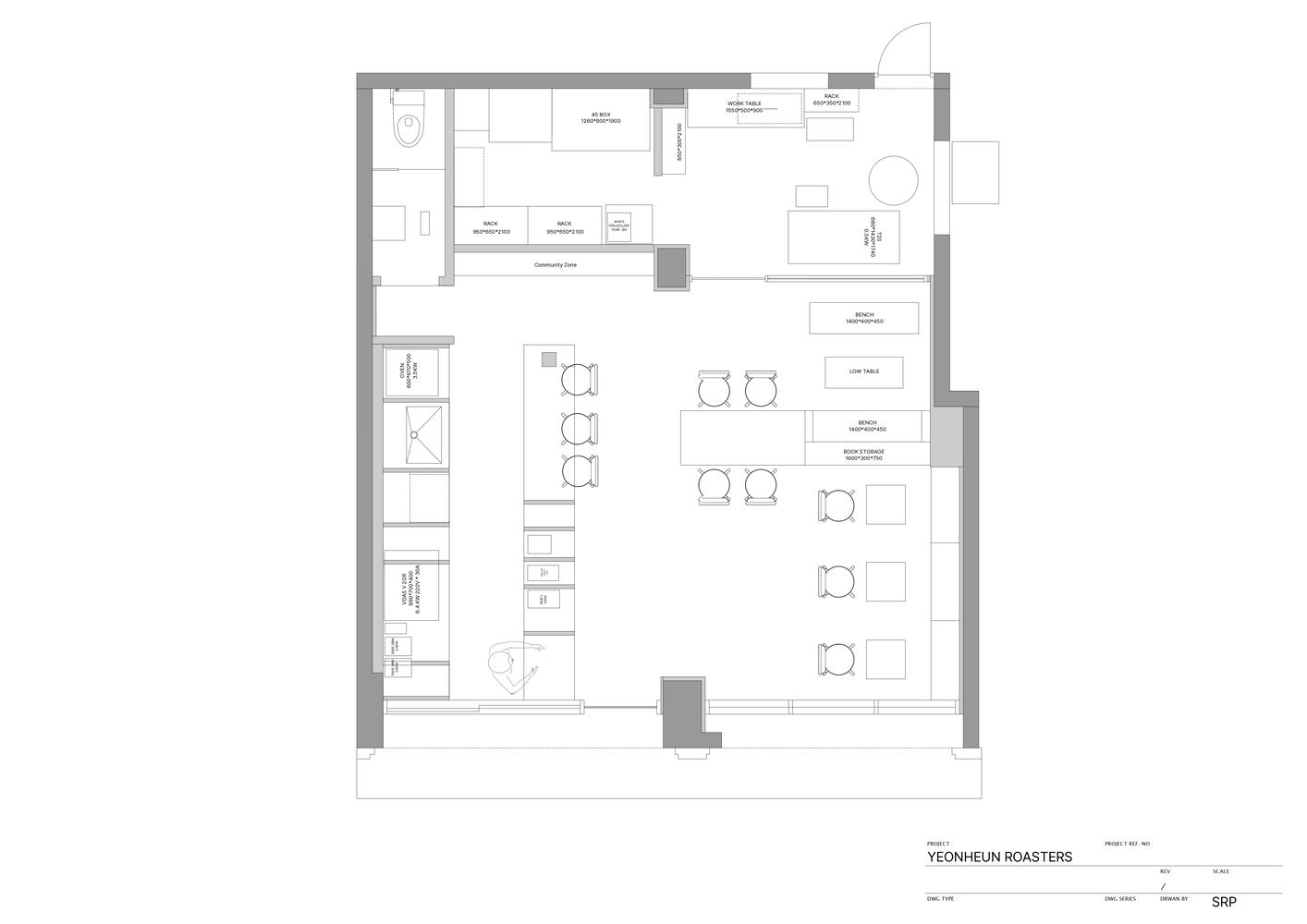
平面图

© inandoutstudio
An interesting point is that the annual rings of wood resemble human fingerprints, and this similarity is also associated with the appearance of scars, which are borrowed and applied in design. In addition, some households use the split firing method to fire wood and treat its cross-section, so that both the treated and fired wood can be clearly visible.
有趣的一点是,木材的年轮酷似人类的指纹,而这种相似性也与伤疤的外观产生了关联,并在设计上加以借鉴运用。此外,一些家庭采用劈烧法来烧制木材并处理其横截面,这样一来,处理过的木材与烧制过的木材都能清晰可见。

© inandoutstudio

© inandoutstudio
The ancient stone pillars are fixed on the cornerstone to highlight the Korean style. This design indirectly creates a space where exquisitely carved beams can be placed on the wall, conveying a warm atmosphere, and this design echoes the lighting arrangement on the ceiling. These traces converge and remain, sharing warmth with the loving room in the alley of Xicun, making daily life shine with brilliance. Yeonheun Bakery leads the daily life in the West Village area.
古老的石质立柱被固定在基石之上,以此凸显韩式风情。这种设计间接营造出一个空间,在这里,雕琢精美的横梁可置于墙上,传递出温暖的气息,而这一设计又与天花板上的灯光布置相呼应。这些痕迹汇聚并留存,与西村小巷里那间充满爱意的房间一同分享温暖,让日常生活也焕发出光彩。Yeonheun 烘焙坊引领着西村这一带的日常生活。

© inandoutstudio