距离和尺寸/灰色地带设计办公室
Distance and Dimensions / GRAY-ZONE Design Office
设计理念的精妙:该项目最引人入胜之处在于其对“距离感”的独特思考,远远超越了传统的设计考量。设计师没有仅仅关注空间的尺寸和功能,而是深入探讨了设计办公室与其周边环境、与社会之间的互动关系。这种对“距离感”的关注体现在多个层面:设计师与客户、当地居民、甚至与整个建筑行业之间的距离。通过这种细致入微的视角,项目试图打破传统界限,创造一个更开放、更具包容性的空间,旨在消除公众对设计办公室的疏远感,并使其成为社区的一部分。
空间设计的创新:“agari-doma”的设计是该项目的点睛之笔。设计师巧妙地将传统日式住宅中的“doma”元素进行了三维化演绎,创造了一个既连接内外空间,又具有多重功能的独特区域。这个抬高的“土地板”空间,不仅提供了内部和外部的互动场所,还可用作季节性活动空间,使得建筑的立面随着人们的活动而变化,充满了生机与活力。这种设计手法巧妙地融合了地域特色、功能需求和文化内涵,展现了设计师对空间的高度掌控力,创造了一个具有场所精神的建筑。
项目价值的升华:项目不仅仅是一个办公空间的设计,更是一次对设计行业与社会之间关系的重新定义。通过将办公空间打造成一个开放、友好的场所,设计师试图改变人们对设计办公室的传统印象。这种开放性体现在建筑的形态、功能和使用方式上,鼓励人们自由进出、交流互动。项目最终目标是希望建筑成为一个联系社区、激发灵感、甚至改变人们对建筑和设计认知的场所。这种超越了功能需求的设计理念,使得该项目具有了更深远的社会意义和文化价值,值得赞赏。

© Nao Takahashi

© Nao Takahashi
“如果附近开一家设计办公室,人们会高兴吗?”这是我们位于城市化控制区的建筑设计办公室的翻修计划(用于混合用途住宅)。基本思想该项目是在考虑适当的尺寸之前考虑适当的“距离感”。
"Would people be happy if a design office opened nearby?" This is a renovation plan (for a mixed-use residence) for our architectural design office in an urbanization control area. The underlying idea of the project was to consider the appropriate "sense of distance" before considering the appropriate dimensions.

© Nao Takahashi
距离感的具体例子包括我们日常生活中“设计师和访客(客户、当地居民、朋友、熟人、未来客户)”之间的距离感,以及建筑设计行业的更广泛视角,“设计办公室和社会(承包商、与制造商销售的会议、其他行业的人、没有工作关系的人)”。由于该地点可能会受到便利店的青睐,该项目开始考虑创造一个不仅能提供合理办公空间,还能使不熟悉设计办公室或不要求办公室工作的人受益的地方。
Specific examples of sense of distance include the sense of distance between "designer and visitors (client, local residents, friends, acquaintances, future client)" in our daily lives, and the broader perspective of the architectural design industry, "design office and society (contractors, meetings with manufacturer sales, people from other industries, people with no work-related ties)." Since the location would likely be appreciated by a convenience store, this project began with thinking about creating a place that would not only provide a rational office space but also benefit people who are not familiar with design offices or who do not request work from the office.

© Nao Takahashi

© Nao Takahashi
场地-规划场地位于神奈川县唯一的盆地哈达诺市。该项目的主楼与两侧的三栋房屋相互关联。前方道路是农民汽车进出南侧田地的主要路线,因此在某些时候与邻居的交通量很大。挑战在于如何将其设计成一个熟悉的沟通中心。这里曾经有一家大型制造厂,当时扩建为单层木材加工厂,后来又增加了二楼。有必要在尊重遗址历史的同时,完善即兴添加的“建筑线条”。
Site – The planned site is in Hadano City, the only basin in Kanagawa Prefecture. The main house of this project and the three houses on either side are related to each other. The road in front is the main route used by farmers' cars going in and out of the fields on the south side, so there is a lot of traffic with neighbors at certain times. The challenge was how to design it to be a familiar hub of communication. A large-scale manufacturing plant used to be run on this site, and at that time, it was expanded as a single-story wood processing plant, and a second floor was added later. It was necessary to refine the "architectural lines" that had been added impromptu while respecting the history of the site.

© Nao Takahashi

© Nao Takahashi

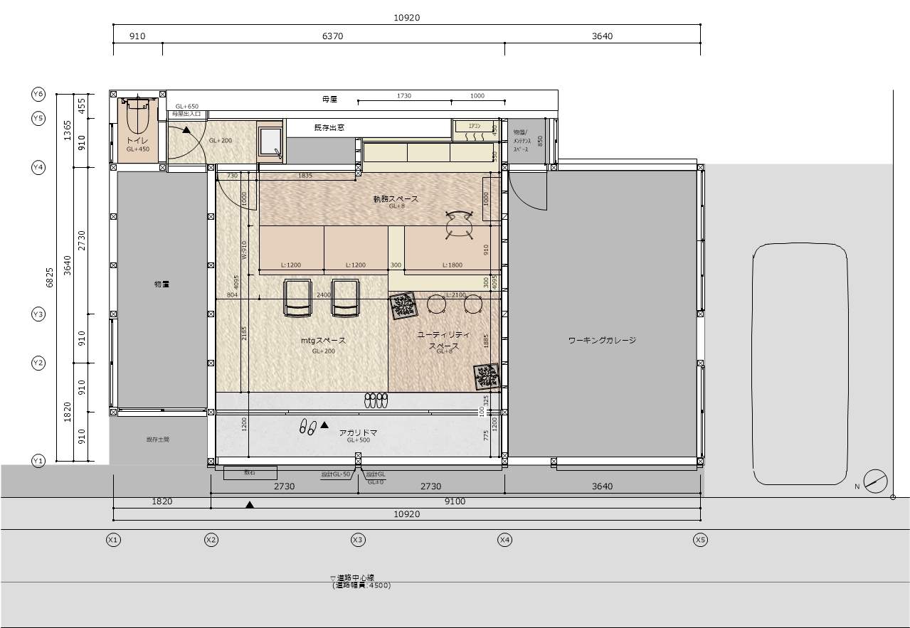
Floor Plan

© Nao Takahashi
平面图-为了在该地区的地理特征和内部空间体验之间建立连续的关系,在面向道路边界的部分,在大约GL(从地面开始)+500mm处创建了一个名为“agari doma”的三维土地板空间。※日本老房子有一个“doma”(一个有泥土地板的空间),用于储存、工作和娱乐。该项目以三维方式表达了doma。“Agari”的意思是崛起。agari doma计划用作设计办公室这一非凡场所的一种令人印象深刻的方式,作为人们可以从内部和外部坐下来的阳台,以及作为一个季节性活动空间,这样人们的活动本身就会成为建筑的面貌,每次经过办公室时,立面都会发生变化。
Plan – In order to create a continuous relationship between the geographical characteristics of the area and the spatial experience inside, a three-dimensional earthen floor space called "agari-doma" was created at about GL (from ground level) + 500mm in the part facing the road boundary. ※Old Japanese houses had a "doma" (a space with a dirt floor) that was used for storage, work, and play. This project expresses the doma in three dimensions."Agari" means rise. The agari-doma was planned to be used as an impressive approach to the extraordinary place that is the design office, as a veranda where people can sit from inside and outside, and as a seasonal event space so that the people's activities themselves would become the face of the building, and the facade would change every time they pass by the office.

© Nao Takahashi

© Nao Takahashi
前景-虽然这是一个小规模的办公项目,但通过像房子一样邀请人们,像商店一样开放,我们希望创造一个机会来改变每位访客的“设计办公室和建筑之间的距离感”。
Prospects – Although this is a small-scale office project, by inviting people like a house and opening up like a store, we hope to create an opportunity to change the "sense of distance between the design office and the building" that each visitor has.

© Nao Takahashi