咖啡法结晶时间咖啡厅/CPD室内设计
Coffee Law-Crystallization Temporal Cafe / CPD interiors
可持续与解构的先锋: 该项目最引人注目的亮点在于其对可持续设计的深刻理解与实践。在即将拆除的建筑中,设计团队并未选择传统的装修方式,而是以“解构”为核心,巧妙地利用原始建筑材料,并结合可回收的钢材,创造出一种富有张力的空间。这种设计理念不仅节约了成本和时间,更重要的是,它为城市更新提供了宝贵的范例。项目充分利用了建筑的“过渡”状态,强调了可持续的循环经济模式,从材料的选择到后期拆卸都体现了对环境的尊重和对资源的最大化利用。这种对环境的责任感,使该项目在众多设计中脱颖而出。
结晶美学的独到诠释: 项目的精髓在于其对“结晶”主题的精彩演绎。设计团队将喝咖啡的行为与城市更新展览紧密结合,通过钢制单元、灯具的冷峻、反光材质以及锐利的角度,营造出一种独特的“结晶”效果。这种视觉效果不仅与咖啡馆的品牌形象相符,也巧妙地象征着城市在过渡阶段的活力与变化。这种设计手法在视觉上给人以冰冷、轻盈之感,却又蕴含着深层次的思考:在城市更新的背景下,如何在短暂的快闪空间里传达对城市变迁的思考。这种对“结晶”的视觉原型探索,是对城市更新主题的创新性诠释,赋予了项目独特的艺术价值。
空间利用与体验设计的巧妙结合: 除了可持续和美学理念,项目在空间利用和用户体验方面也展现了卓越的设计能力。针对快闪咖啡馆的特性,设计团队并未一味追求舒适,而是注重便利性和机动性。站立式吧台、轻便的折叠椅以及鼓励顾客参与展览的设计,都体现了对空间利用的精准把握。项目并非仅仅是一个咖啡馆,更像是一个展示城市更新理念的场所。这种对空间使用的精准把控和用户体验的精心设计,使得该项目不仅在视觉上引人入胜,更能引发人们对城市更新的思考,并提供了一个全新的咖啡体验,使其成为一个具有社会意义的设计项目。

© Han image studio

© Han image studio
建筑师提供的文字描述这家为期3个月的快闪咖啡馆位于一栋即将拆除的破旧建筑内。以解构为方法,将基础建筑材料与即将拆除的原始粗糙环境融为一体。结果不仅具有时间和成本效益,而且可持续的材料和重新利用的空间也为城市再生提供了一个例子。解构是开始。从不同角度在表面上的反射产生了一种结晶效果,类似于城市转型过程中发生的反应,并揭示了其过渡性质。
Text description provided by the architects. The 3-month pop-up cafe is located in a gutted, soon-to-be-demolished building. Using deconstruction as a method, basic building materials are applied to meld with the original rough-looking environment of impending demolition. Not only is the result time- and cost-efficient, but the sustainable materials and repurposed space also offer an example of urban regeneration. The deconstruction is the beginning. The reflections on the surfaces from various angles create a crystallization effect, which resembles the reactions that occur during urban transformation and reveals its transitional nature.

© Han image studio

© Han image studio
客户Coffee Law旨在将喝咖啡的行为与城市更新展览联系起来。他们与Lienyu集团合作,在拆除前利用闲置的建筑,同时为当地社区做出贡献。结果应该展示城市更新项目的过渡阶段,因此选择结晶作为视觉原型。由小钢单元创造的角度、灯具的冷峻、灵活的外观以及各种材料的反射,都与雪花的冷峻和短暂的形象联系在一起。
The client, Coffee Law, aimed to connect the act of having coffee with the urban regeneration exhibition. They worked with the Lienyu Group to exploit the idle building before demolition, all while contributing to the local community. The outcome is supposed to demonstrate the transitional phase of the urban regeneration project, so crystallization was chosen as a visual prototype. The angles created by the small steel units, the cold, agile look of the light fixtures, and the reflections of various materials, all draw associations with the cold and short-lived image of the snowflake.

© Han image studio

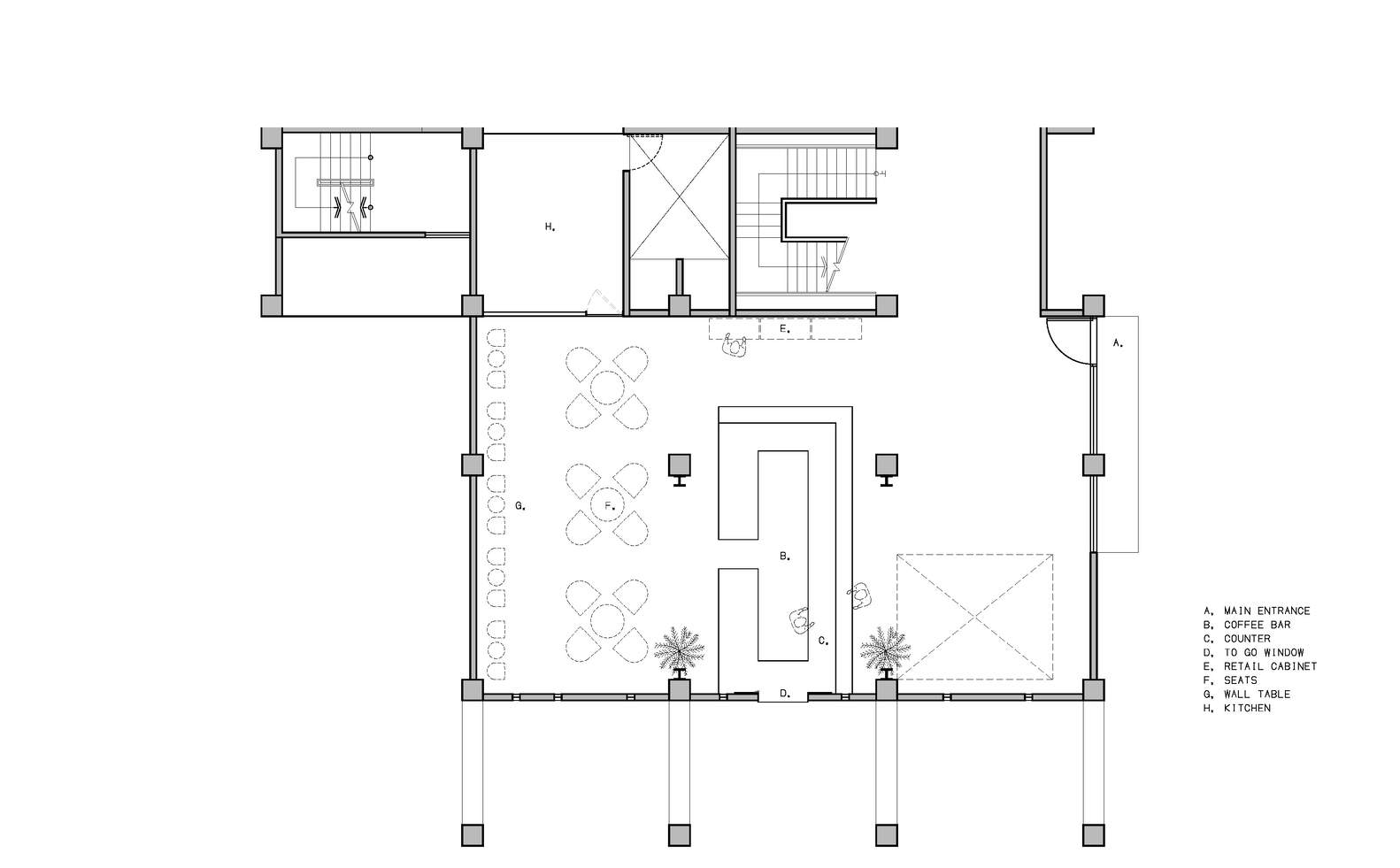
Floor Plan

© Han image studio

© Han image studio
可回收钢单元的选择受到了空间解构的启发。它放大了暴露的结构,展示了多功能性,旨在实现可持续的循环经济。修补过的水泥墙和裸露的钢铁和砖块掩盖了现场的建设。介入项目旨在融入景观,并与建筑和展览融为一体。选择钢制柜台、水泥墙和灯管等材料,以呈现冰冷粗糙的质感。危险胶带将空间隔开,提醒顾客该项目的临时性,并为该品牌的标志性产品之一提供灵感。锐利的角度、反光的表面和冰冷的拉丝钢台面暗示着结晶,代表了城市在过渡阶段的活力,就像一个时代结束时感受到的平静和自我克制的紧张。这种语气也与咖啡馆品牌“快速时尚”的营销特征产生了共鸣。
The choice of recyclable steel units is inspired by the deconstruction of the space. It amplifies the exposed structure, demonstrates versatility, and aims to realize a sustainable circular economy. The patched cement walls and exposed steel and bricks belie the construction of the site. The intervening project aims to fit into the landscape and gives rise to a flow with the building and the exhibition. Materials like the steel counter, cement walls, and light tubes were chosen to present a cold, rough texture. Hazard tape divides the space, reminds patrons of the temporary nature of the project, and provides inspiration for one of the brand's signature products. Sharp angles, reflective surfaces, and an ice-like brushed steel countertop suggest crystallization, representing the city's vitality during the transitional phase like the calm and self-restrained tension felt at the end of an era. The tone also resonates with the cafe brand's "fast and fashionable" marketing character.

© Han image studio

© Han image studio
这个咖啡品牌一直在整个城市提供多样化的咖啡饮用体验。由于这个地方嵌入了城市更新展览中,而不是像其他地方那样追求舒适,它更注重便利性和机动性。在灯具下面向入口的凸起柜台和高高的天花板表明,顾客可以站着靠近并喝咖啡。座位区配有轻便的折叠椅,类似于一个户外露营地,以方便在这个空间举行活动。小桌子和硬椅子提醒喝咖啡的人四处走走,感受消失的记忆。我们鼓励顾客参观展览,而不是停下来喝咖啡,这就是为什么座位的设计主要是为了快速停留。
This coffee brand has been providing diverse coffee-drinking experiences throughout the city. As this location is embedded within an urban regeneration exhibition, instead of pursuing coziness, as their other locations do, it focuses on convenience and mobility. The raised counter facing the entrance under the light fixtures and the high ceiling suggest that customers approach and drink their coffee while standing. The seating area with lightweight folding chairs resembles an outdoor campsite to facilitate events held in this space. Smaller tables and hard chairs remind coffee drinkers to walk around and feel the vanishing memories. Customers are encouraged to take in the exhibition instead of halting for coffee, which is why the seating is designed mainly for a quick stop.

© Han image studio

© Han image studio
美学概念旨在创造一种轻盈、凉爽但褪色的氛围,而装修模式则基于循环经济。该项目从变革和未来的理念出发,让我们思考:如果建筑寿命有限,项目结束后,场地会变成什么样子?为了便于快速拆卸,选择了完全可回收的钢材作为主要材料。它可以被回收和重新利用,而不是被丢弃。12X12厘米的单元易于组装和拆卸。多层象征着建筑的建造。尽管该项目是短期的,但它是一个通过组装、拆卸和现场材料采购循环的可持续时尚模式。为了有效利用资源并便于事后拆卸,该项目是通过组装单元建造的,使建筑商能够有效地控制过程,并符合客户对136天短项目工期的期望。这些材料以后可以重新用于进一步的可持续城市发展项目。
The aesthetic concept aims to create a light, chill, yet fading ambiance, while the renovation model is based on circular economics. The project began from the ideas of change and the future, making us ponder: if the building lifespan is limited, what will become of the site when the project ends? To facilitate rapid dismantling, fully recyclable steel was chosen as the main material. Instead of being discarded, it can be recycled and repurposed. The 12X12 cm units are easy to assemble and take apart. The multiple layers symbolize the construction of the building. Although the project is short-term, it is a model of sustainable fashion through the cycle of assembly, disassembly, and on-site material sourcing. In keeping with the efficient use of resources and being easy to take apart afterward, the project is constructed through assembling units, allowing the builder to control the process efficiently and align with the client's expectation of the short 136-day project duration. The materials can later be repurposed for further sustainable urban development projects.

© Han image studio

© Han image studio
一切都在变化,包括城市。关键在于我们对这些变化的看法。该项目以主动取代遗弃,将一座闲置的建筑改造成咖啡馆和展览场所,为斑驳的水泥和开裂的砖块注入活力。愿空间为当地社区服务,传播城市更新的信息。
Everything changes, including cities. The key point is our perspective on those changes. This project replaces desertion with proactivity, and transforms an idle building into a cafe and an exhibition venue, injecting vitality into the site with mottled cement and cracked bricks. May the space serve the local community, and spread the message of urban regeneration.

© Han image studio