齐宇美发沙龙/FATHOM
qiyu Hair Salon / FATHOM
空间叙事与情感连接: 这个项目最引人入胜的地方在于它超越了传统的商业空间设计,转而构建了一个充满情感和故事性的场所。建筑师巧妙地捕捉了一对夫妇特殊的居住和工作模式——他们分隔两地,却渴望在事业中维系紧密的关系。设计方案将这种需求转化为具体的空间语言,通过“yuqi桌”等核心元素的设置,以及H形木框架的象征性运用,赋予了空间交流、连结和生命力的特质。这不仅仅是一个美发沙龙,更是一个承载着夫妇共同记忆和情感的场所,体现了设计师对空间叙事和人际关系的深刻理解。
材质与光线的精妙运用: 项目在有限的空间内,通过对材质和光线的精妙运用,实现了视觉上的通透性和空间的延展性。丙烯酸材料的衣帽间设计,有效减轻了视觉负担,也使空间显得更加轻盈和通透。设计师还巧妙利用了光线,使得整个空间在保持功能性的同时,更富于变化和层次感。这不仅提升了顾客的体验,也增强了空间的情感氛围。木材的运用也为空间带来了温暖和自然的质感,与现代设计形成了巧妙的平衡,创造出一种既现代又温馨的氛围,与美发沙龙的定位相得益彰。
功能布局与象征意义的融合: 在45平方米的紧凑空间内,设计师成功地将高效的功能布局与深刻的象征意义融合在一起。四个理发位、两个洗发位以及接待台的布局,在满足基本功能需求的同时,也创造了流动性和开放性。“yuqi桌”作为多功能的中心,既是接待区域,也是展示和交流的平台,象征着夫妇共同生活的交汇点。H形木框架不仅是结构支撑,更是夫妻情感联系的隐喻,电流的象征性描述,更是将这种联系具象化。这种将功能与象征深度融合的设计手法,使得空间不仅仅是一个美发场所,更是一个充满活力和情感的文化载体。


建筑师提供的文字描述一对夫妇在广岛开设了一家美发沙龙,他们在东京和广岛的两个基地经营模特和发型师业务。他们彼此分开居住,只能在一起度过很短的时间,所以他们想知道是否可以将他们在东京和广岛之间的生活投射到他们的商店空间,而这不是他们的家。
Text description provided by the architects. A project to open a hair salon in Hiroshima by a couple who run a modelling and hairstylist business from two bases in Tokyo and Hiroshima. They live apart from each other and can only spend a short time together, so they wondered if they could project their lives between Tokyo and Hiroshima into the space of their shop, which is not their home.

该物业位于广岛市一栋面向纳米木通的小建筑的五楼。从街上看,它并不显眼,电梯旁边有一个小公共空间。起初,考虑到我们两人的潜力,我们觉得这有点不够。因此,我们考虑是否有可能创造一个空间,在打开门的那一刻,立即向游客传达他们两人编织在一起的世界观,同时保持建筑的设计接近入口,并敢于屏蔽有关商店的信息。
The property is located on the fifth floor of a small building facing Namiki-dori in Hiroshima City. It is inconspicuous from the street, with a small common space off the elevator. At first, we felt that it was a little inadequate, considering the potential the two of us had. So, we thought about whether it would be possible to create a space that would instantly convey to visitors the world view that the two of them have woven together the moment they open the door while keeping the building's design close to the approach and daring to shut out information about the shop.


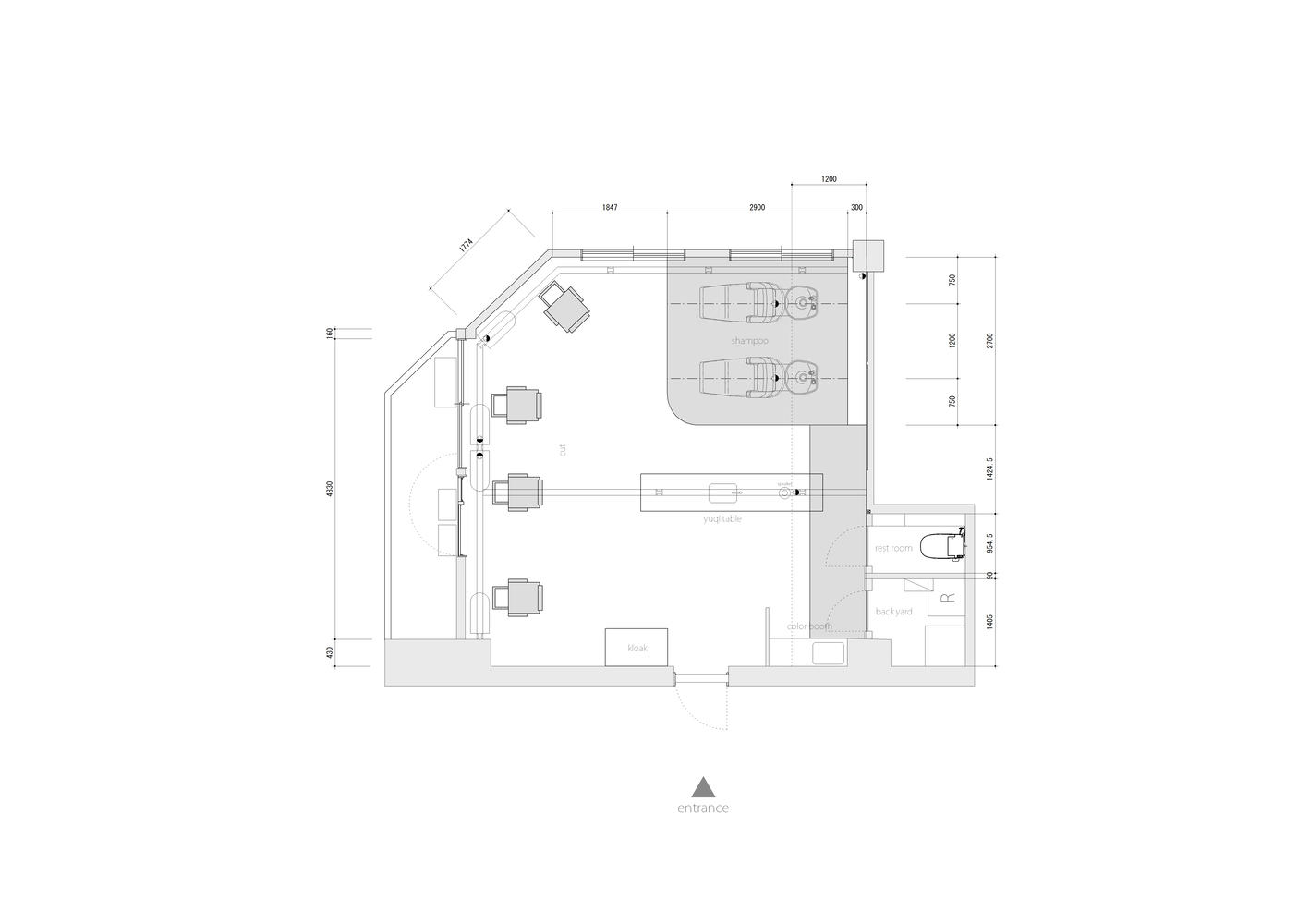
Floor Plan

我们确保了四个切割空间和两个洗发水单元,这是45平方米空间内可以容纳的最大数量,并在入口门的末端放置了一个大型接待台,以创造一个浮动的空间。我们将这个空间命名为“yuqi桌”,这样当妻子从东京回来时,她就可以尝试各种各样的东西,比如快闪店。衣帽间由丙烯酸制成,使其存在透明和明亮,因为小空间里充满了椅子和柜台等大量物品。
We secured four cutting spaces and two shampoo units, the maximum number that can be taken in a 45sqm space, and placed a large reception counter at the end of the entrance door to create a floating space. We named this space "the yuqi table" so that when the wife returns from Tokyo, she can try various things, such as a pop-up store. The cloakroom is made of acrylic to make its presence transparent and light, as the small space is filled with voluminous objects such as chairs and counters.

为修复后的建筑框架的骨架设计了一种由木材制成的H形木框架,类似于H形钢架。玉祁桌的台面由这个框架支撑,这个框架连接到丈夫的切割空间,在那里,一面镜子悬挂在梁架上,柱子上有一个脸架和插座。我希望电流像血液一样在框架中循环,这样生活在不同地方、从事不同工作的两个人就可以在这里作为夫妻工作,感觉彼此相连,仿佛他们的血液在他们的意识下流动。
An H-shaped timber frame made of wood, resembling an H-shaped steel frame, was devised for the skeleton of the restored building frame. The counter of the yuqi table is supported by this frame, which is connected to the husband's cutting space, where a mirror is suspended from the beam frame, and the pillars have a face stand and sockets attached to them. I hope that the electric current circulates through the frame like blood so that the two people, who live in different places and have different jobs, can work here as husband and wife, feeling connected to each other as if their blood is flowing under their consciousness.


当你打开大门的那一刻,你立刻会看到一对相距甚远的夫妇能够联系一会儿,这是一种与广岛仍然罕见的生活方式交织在一起的新业务。通过在这对夫妇在东京和广岛之间旅行时工作的空间中创建一个中心,我们相信他们编织在一起的生活方式将成为一种独特的文化,如果它能在广岛以各种方式传播和传播,这座城市将变得更加有趣。
The moment you open the entrance door, you are immediately struck by the sight of a couple who live far away from each other being able to connect for a moment, a new business interwoven with a lifestyle that is still rare in Hiroshima. By creating a hub in the space where the couple work as they travel between Tokyo and Hiroshima, we believe that the lifestyle they weave together will become a unique culture, and if it can be derived and spread in various ways in Hiroshima, the city will become more interesting.
