OZBE咖啡厅/KKOL工作室
OZBE Cafe / KKOL Studio
设计亮点-空间与材料的巧妙融合: OZBE咖啡馆的设计巧妙地利用了灰色混凝土与枫木硬木的对比,营造出一种独特的视觉平衡。这种材料的搭配不仅在视觉上形成了鲜明的对比,更在情感上传递出一种温暖与质朴的氛围。设计师通过保留原始混凝土饰面,让水果的色彩在空间中更加突出,展现出一种“灰色缝隙中绽放的花朵”的意境。这种设计不仅增强了空间的层次感,还赋予了整个场所一种独特的生命力和活力。
功能精髓-多用途空间的合理布局:该项目的布局充分考虑了功能的多样性与实用性。一楼的水果市场为顾客提供了新鲜的食材,而二楼的办公室则为运营提供了便利。三楼和四楼的休息区则为顾客提供了舒适的社交空间。这种分层布局不仅满足了不同顾客的需求,还通过植物的点缀和家具的巧妙布置,营造出一种温馨的氛围,使整个空间成为一个适合所有年龄段的共享场所。
人文关怀-满足不同用户需求:OZBE咖啡馆的设计充分体现了对不同用户需求的关注。考虑到中年顾客和家庭的需求,设计师在空间中设置了舒适的休息区和不同高度的桌子,同时利用弯曲的长椅和大型定制家具吸引儿童。这种设计不仅提升了空间的实用性,还增强了场所的包容性,使其成为一个适合所有年龄段的社交场所。这种对细节的关注体现了设计的人文关怀,是该项目的一大亮点。

© Donggyu Kim

© Donggyu Kim
建筑师提供的文字描述OZBE是一个新的咖啡馆品牌,占地四层,提供优质水果,并通过直接榨汁或现场电镀这些水果来供应。一楼是水果市场,二楼是办公室,三楼和四楼是顾客休息区。
Text description provided by the architects. OZBE is a new café brand occupying four floors that offers premium fruits and serves them by directly juicing or plating these fruits on the spot. The first floor is the fruit market, the second floor contains the offices, and the third and fourth floors consist of lounge areas for customers.

© Donggyu Kim

Plan - 1st floor

© Donggyu Kim
在设计的早期阶段,首先考虑的是建筑本身固有的灰色混凝土饰面。有人担心,水果和混凝土之间的并置特征——这不可避免地让人期待新鲜和绿色的印象——可能会削弱彼此的内在魅力。经过深思熟虑,我们设想了“灰色混凝土缝隙中绽放的花朵”的形象。虽然这与花园中盛开的花朵相比可能看起来很可怜,但每一片花瓣都充满了光,散发出一种无与伦比的强大存在感和生命力。这样,该设计旨在使OZBE的水果能够在空间内携带“驼背活力的能量”。
During the early stages of design, contemplation about the gray concrete finish intrinsic to the building itself came first. There were concerns that the juxtaposed characteristics between fruit – which inevitably make one expect impressions of freshness and greenery – and the concrete may potentially lead to detracting from each other's innate charm. After thorough consideration, we envisioned the image of "flowers blossoming from the crevices in gray concrete." Though this may look pitiful relative to flowers in full bloom in a garden, each petal brimming with light, it exudes a powerful presence and life force unmatched by any other. With that, the design was intended to empower OZBE's fruits to carry the "energy of hunched vitality" within the space.

© Donggyu Kim

Section B,C

© Donggyu Kim

© Donggyu Kim
为此,设计旨在尽可能多地保留原始混凝土饰面,同时与空间的主要材料枫木硬木在视觉和情感上保持平衡。当彩色水果被放置在空间中时,这种平衡的感觉就会实现。这种连接不仅存在于一楼,也存在于其上的所有楼层。各种大小的植物的散布是为了保持这种平衡,而不是水果,并增添一丝温暖和质感。
To that end, the design aimed to retain as much of the original concrete finish as possible while creating visual and affective balance with the space's main material, maple hardwood. The sensibility of this balance reaches fruition when the colorful fruit is placed in the space. This connectivity exists not only on the ground floor but also on all floors above it. The scattering of plants of a variety of sizes was intended to maintain this balance instead of fruit and add a touch of warmth and texture.

© Donggyu Kim

© Donggyu Kim

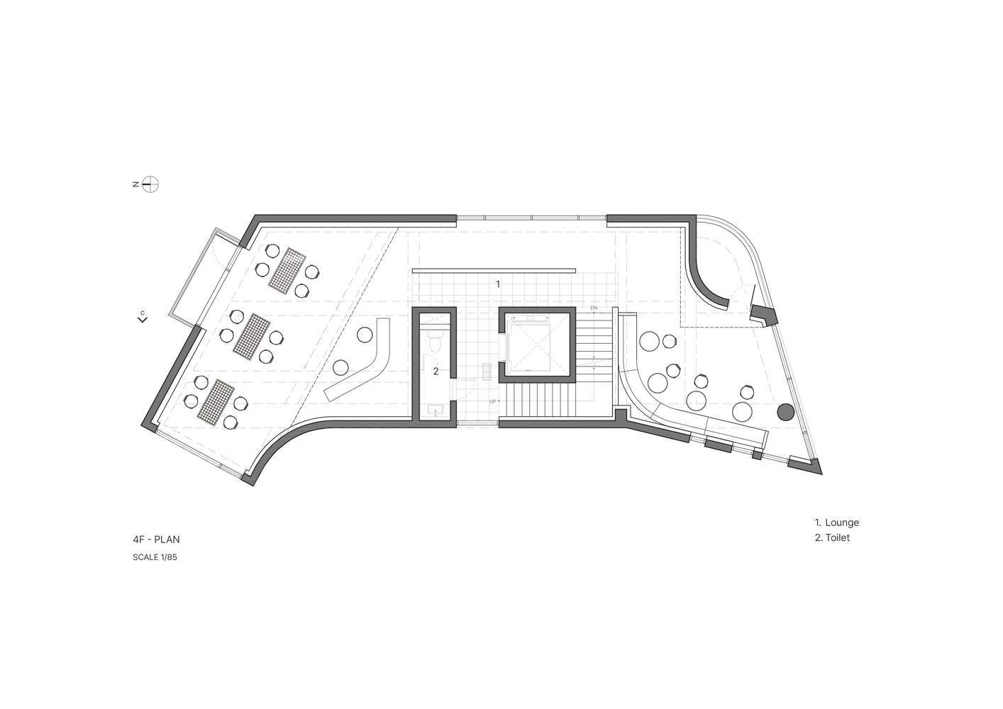
Plan - 4th floor

© Donggyu Kim

© Donggyu Kim
由于水果市场,预计该空间将吸引许多中年顾客或家庭,建立所有年龄段都能共享的美丽和实用性是另一个挑战。为了解决这个问题,除了舒适的休息室座位和考虑到中年顾客的不同高度的桌子外,利用板条和独特的大型定制家具吸引儿童的弯曲长椅均匀地分布在所有楼层。
Anticipating that the space would attract many middle-aged customers or families due to the fruit market, establishing beauty and utility that can be shared by all age groups was another challenge. To address this, curved benches utilizing slats and unique, large-scale custom furniture that appeal to children in addition to comfortable lounge seating and tables of varying heights in consideration of middle-aged patrons were distributed evenly on all floors.