ITSUMO Dessert Shop/Kousou
ITSUMO 甜品店 / kousou
项目亮点:建筑语言的独特与反思:ITSUMO甜品店项目最引人注目的亮点在于其建筑语言的独特性,它在巴淡岛这个以实用主义和快速开发著称的环境中,逆向而行,创造了一种截然不同的体验。设计团队巧妙地运用了天然材料,打造了静谧、内敛的内部空间,这与周围喧嚣的“ruko”环境形成了鲜明对比。白色极简主义立面的运用,不仅提升了建筑的辨识度,也预示着内部空间的宁静氛围。这种对当地建筑风格的反思和突破,是项目在设计理念上的一个重要突破,展现了建筑师对环境的深刻理解和对设计的独特见解。
项目精髓:情感与功能的完美融合:项目的精髓在于客户情感需求与实际功能需求的完美融合。设计团队将客户对“雨”的情感融入设计,通过隐藏式雨水槽的设计,将自然光和雨水引入室内,创造了独特的空间体验。同时,这种设计方案也兼顾了建筑的自然通风功能,体现了设计师对细节的精准把握和对技术创新的追求。此外,项目在色彩和材料的选择上,也体现了设计团队对地域文化和客户需求的深刻理解。黑色主色调的选择,搭配天然材料,营造出静谧、精致的氛围,避免了沉闷感,实现了情感、功能与美学的统一。
设计启示:协作与超越的实践:ITSUMO项目展示了建筑设计中协作的重要性以及建筑本身所蕴含的变革力量。项目成功的关键在于建筑师、客户与承包商之间的持续沟通和反复推敲。Room Studio的工匠们全身心投入,制作了大量样品,确保了设计理念的精准落地。通过这个项目,建筑师对现有场地条件有了全新的认识与欣赏,从而选择将原始结构暴露出来,作为空间的核心亮点。项目还展现了有意义的建筑能够超越地理位置的限制。它挑战了人们对巴淡岛建筑的固有认知,传递出建筑可以激发灵感,突破界限的理念,同时深刻影响了设计师的工作方法,突显了信任与协作的力量,以及建筑将平凡空间升华的非凡能力。

© Kung Photograph

© Kung Photograph
The renovation project of ITSUMO dessert shop in Batam was initially a collaborative renovation project aimed at challenging local building codes. This store is of great significance because it is the first store opened by a customer and was originally designed by her herself. This renovation aims to enhance the recognition of the building in a typical "ruko" (a common Indonesian architectural form that combines commercial and residential spaces) environment, surpassing the scope of simple retail spaces.
巴淡岛(Batam)ITSUMO 甜品店的翻新工程起初是一项合作翻新项目,旨在挑战当地的建筑规范。这家店铺意义非凡,因为它是客户开设的第一家店,最初也是由她亲自设计的。此次翻新旨在提升建筑在典型“店屋(ruko,即印尼常见的集商铺与住宅于一体的建筑形式)”环境中的认知度,使其超越单纯的零售空间范畴。

© Kung Photograph
The client's desire to create a space that showcases bold style in the birthplace of the brand has injected momentum into the project. This means designing works that are different from the pragmatic and rapid development architectural style of Batam. In the lively environment of Batam Island, filled with vibrant colors and artificial materials, the design team strives to do the opposite: create a space based on natural materials that creates a quiet and subtle experience. The final presentation is a striking white minimalist facade, implying a peaceful atmosphere within the interior space.
客户希望在品牌发源地打造一处彰显大胆风格的空间,这一愿景为项目注入了动力。这意味着要设计出有别于巴淡岛(Batam)实用主义、快速开发式建筑风格的作品。在巴淡岛这个充斥着鲜艳色彩和人造材料的热闹环境中,设计团队力求反其道而行之:打造一个以天然材料为基础、营造出静谧而微妙体验的空间。最终呈现出的,是一面引人注目的白色极简主义立面,暗示着内部空间的宁静氛围。

© Kung Photograph

© Kung Photograph

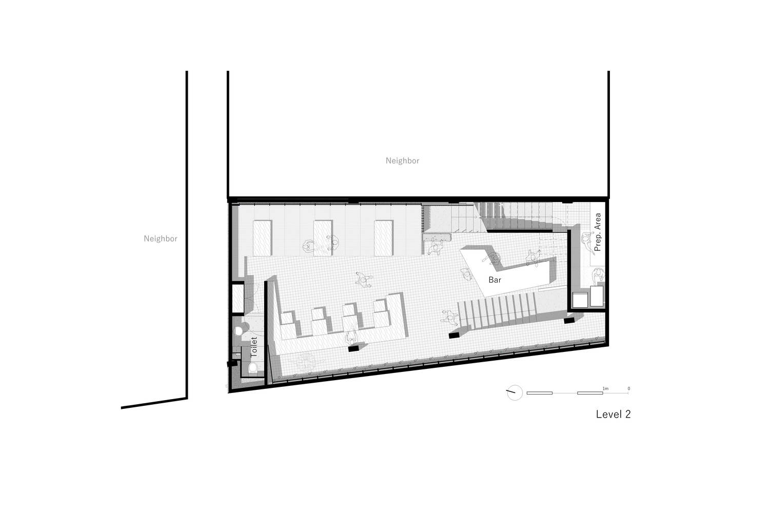
二层平面图

© Kung Photograph

© Kung Photograph
Another key driving force is to endow each ITSUMO branch with a unique personality. Unlike the flowing, lively, and curvaceous style of Bali, the design requirements for the Batam project are more stringent and the lines are sharper - this is a deliberate contrast. Black has been chosen as the main color tone. We draw inspiration from the layered texture of avant-garde Japanese fashion - the serene and subtle yet confident and rich style. More importantly, the deep emotional connection between the customer and the rain inspired our design inspiration for the innovative atrium, which incorporates natural light and rainwater into the interior. However, translating these inspirations into practical designs faces many challenges. Firstly, to create a building with unique identity, we need to find a balance point in the design: we adopt a simple form and restrained yet textured facade to create a "peaceful declaration" that is harmonious with the surrounding environment. Secondly, considering that black is the main color scheme in interior design, it is necessary to avoid giving people a dull feeling. For this purpose, the research team delved into natural black or dyeable materials such as stone, metal, and wood.
另一个关键驱动力是赋予每一家 ITSUMO 分店独特的个性。与巴厘岛(Bali)那种流动、热烈且富有曲线美的风格截然不同,巴淡岛(Batam)项目的设计要求更为严格、线条更加锐利 —— 这是一种刻意为之的对比。黑色被选定为主色调。我们从先锋日本时尚的层次质感中汲取灵感 —— 那种静谧而微妙,却又自信且丰富的风格。尤为关键的是,客户与雨的深厚情感联结激发了我们对创新中庭的设计灵感,将自然光线与雨水引入室内。然而,将这些灵感转化为实际设计面临着诸多挑战。首先,要打造出具有独特标识性的建筑,需要在设计上找到平衡点:我们采用简约的形式与克制且富有质感的立面,营造出一种与周边环境相和谐的“静谧宣言”。其次,鉴于室内设计以黑色为主色调,需避免给人以沉闷之感。为此,研究团队深入探索了天然黑色或可染色的材料,如石材、金属和木材。

© Kung Photograph

© Kung Photograph

© Kung Photograph

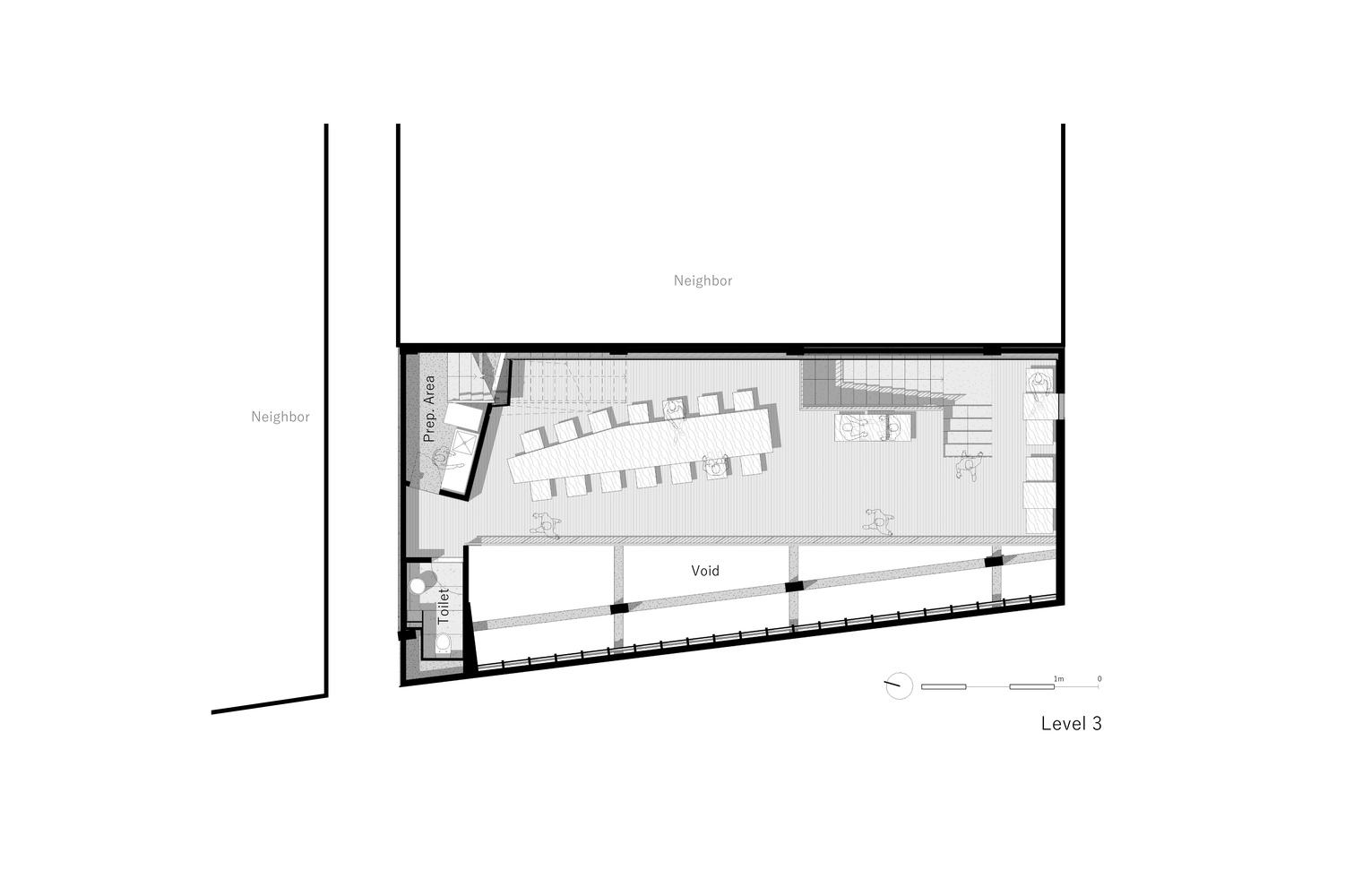
三层平面图

© Kung Photograph

© Kung Photograph

分析图

© Kung Photograph

© Kung Photograph

© Kung Photograph
By juxtaposing natural grey concrete with various black and brown elements, a harmonious and layered visual effect is created. The most poetic challenge lies in the customer's desire to 'bring rain indoors'. For this reason, we have designed a hidden rainwater trough between the building facade wall and the skylight. In rainstorm, the controlled rainwater will drip into the atrium along these troughs, while providing natural ventilation for the interior. In addition, a second hidden drainage channel has been set up to guide the discharge of excess rainwater. This solution cleverly combines the emotional connection between customers and rain with practical functional requirements. In addition, the full trust given by customers also brings unusual challenges. We, who are accustomed to various restrictions, have gained rare artistic freedom this time. This transformation has also affected our internal creative process, transforming us into 'critical observers' of our clients. This is undoubtedly a profound practice, where we interpret and showcase the essential needs of our clients through an artistic perspective.
将天然灰色混凝土与各种黑色和棕色元素并置,营造出和谐且富有层次感的视觉效果。最具诗意的挑战在于客户渴望“将雨引入室内”。为此,我们在建筑立面墙与天窗之间设计了隐藏式雨水槽,在暴雨时,受控的雨水会顺着这些水槽滴入中庭,同时还能为室内提供自然通风。此外,还设置了第二条隐藏式排水槽以引导多余雨水排出。这一解决方案巧妙地将客户与雨的情感联结与实际功能需求相结合。此外,客户给予的充分信任也带来了不同寻常的挑战。习惯了各种限制条件的我们,这次获得了难得的艺术创作自由。这种转变也影响了我们内部的创作流程,使我们化身为客户的“挑剔审视者”。这无疑是一次深刻的实践,我们通过艺术视角去诠释并展现客户的本质需求。

© Kung Photograph
In the end, communication and repeated polishing (iteration) became the key to the success of the ITSUMO project. Continuous dialogue between architects, clients, and contractors is crucial. A design process that involves repeated deliberation and exploration of numerous solutions for every detail has been proven to be indispensable. The craftsmen of Room Studio devoted themselves wholeheartedly to creating countless samples, which played a crucial role in accurately achieving the expected results. These experiences have once again made us deeply aware of the collaborative nature of architectural design, and have given us a new understanding and appreciation of the existing site conditions, which has prompted us to choose to expose the original structure and showcase it as the core highlight of the space.
最终,沟通与反复打磨(迭代)成为了 ITSUMO 项目成功的关键。建筑师、客户与承包商之间持续不断的对话至关重要。一个反复推敲的设计过程,对每个细节都进行诸多方案的探索,被证明是不可或缺的。Room Studio 的工匠们全身心投入,制作了数不胜数的样品,这对于精准实现预期效果起到了关键作用。这些经历让我们再次深刻认识到建筑设计的协作本质,也让我们对现有场地条件有了全新的认识与欣赏,进而促使我们选择将原始结构暴露出来,并将其作为空间的核心亮点加以展现。

© Kung Photograph

© Kung Photograph
Essentially, ITSUMO conveys a strong manifesto that meaningful architecture can transcend geographical limitations. Although Batam is known for its practicality and emphasis on functionality rather than external expression, we firmly believe that every place deserves carefully crafted and innovative design. The response we demonstrated in the ITSUMO project is that such a design can inspire inspiration and break boundaries in any environment. ITSUMO is like a catalyst, showcasing the transformative power of architecture and challenging people's inherent perceptions. This project has reshaped our working methods, allowing us to deeply understand the impact of trust, the value of collaboration, and the extraordinary ability of architecture to elevate ordinary spaces.
从本质上讲,ITSUMO 传递出了一个强有力的宣言:有意义的建筑能够超越地理位置的限制。尽管巴淡岛(Batam)这座城市以务实著称,更注重功能而非外在表达,但我们坚信,每一个地方都值得拥有精心雕琢、富有创新性的设计。我们在 ITSUMO 项目中所展现出的回应是:无论处于何种环境,这样的设计都能激发灵感、突破界限。ITSUMO 就像是一个催化剂,彰显了建筑所具备的变革力量,并挑战了人们的固有认知。该项目重塑了我们的工作方法,让我们深刻认识到信任所产生的影响力、协作的价值,以及建筑将平凡空间升华的非凡能力。

© Kung Photograph