Ts VEIL Restaurant/KHOA VU
Ts VEIL 餐厅 / KHOA VU
“面纱”的巧妙运用: 项目的核心亮点在于“面纱”的设计概念,它并非简单的装饰,而是对建筑与城市环境关系的深刻思考。建筑师通过金属网板构成的多层表皮,巧妙地实现了在喧嚣的城市街道和私密的室内空间之间的过渡。这种“面纱”既保证了建筑的通透性与采光,又提供了必要的遮蔽和私密性,更重要的是,它在城市中创造了一处“呼吸”的空间,尤其是在狭窄的转角处,形成友好的城市姿态,邀请人们进入。这种设计策略,使得建筑与周围环境互动,而不是孤立存在,赋予了建筑生命力和城市活力。
可持续设计的实践: Ts VEIL项目在可持续设计方面展现了卓越的理念。项目并未选择推倒重建,而是保留了原有建筑的核心结构框架,体现了对现有资源的尊重和再利用。 “面纱”的设计不仅具有美学价值,更重要的是它在被动和主动环境控制方面发挥了重要作用。多孔的金属网板促进了自然通风,降低了对空调的需求;同时,集成的喷雾系统在炎热的夏季创造了宜人的微气候。这种结合了被动式设计与主动式技术的策略,降低了建筑的能源消耗,提升了环境舒适度,也体现了对可持续建筑的深刻理解和实践。
室内外空间的和谐统一: 室内设计与“面纱”的外表皮相辅相成,共同营造了和谐统一的空间氛围。室内采用了质朴的材料,如玻璃砖、外露混凝土和未经处理的钢材,营造了简洁、质感真实且现代的风格。玻璃砖的运用特别巧妙,它柔和地散射光线,兼顾了隐私保护和温馨氛围的营造。这种内外的呼应,共同塑造了建筑开放且适应性强的特质。这种内外统一的设计手法,不仅提升了空间的美学价值,更增强了建筑的整体性和连贯性,展示了建筑师对空间、材料和光线的高度掌控能力。

© Chuong Nguyen

© Chuong Nguyen
From the architect. Ts VEIL is a renovation project for a 300 square meter three story villa in the center of Ho Chi Minh City's Second District - an area that is rapidly developing with a dense distribution of residential buildings, small shops, and local restaurants. The project did not choose to demolish and rebuild, but carefully preserved the core structural framework of the building, including the concrete frame, stairs, floor slabs, and roof. At the same time, through a new set of internal and external skin systems, the exterior style and spatial utilization efficiency of the building were reimagined.
来自建筑师。Ts VEIL 是对胡志明市第二区中心一栋 300 平方米的三层别墅进行的翻新改造项目——该区域正迅速发展,住宅、小型商铺和当地餐馆密集分布。该项目并未选择拆除重建,而是精心保留了建筑的核心结构框架,包括混凝土框架、楼梯、楼板和屋顶,同时通过一套全新的内外表皮系统,重新构思了建筑的外观风貌与空间使用效能。

© Chuong Nguyen

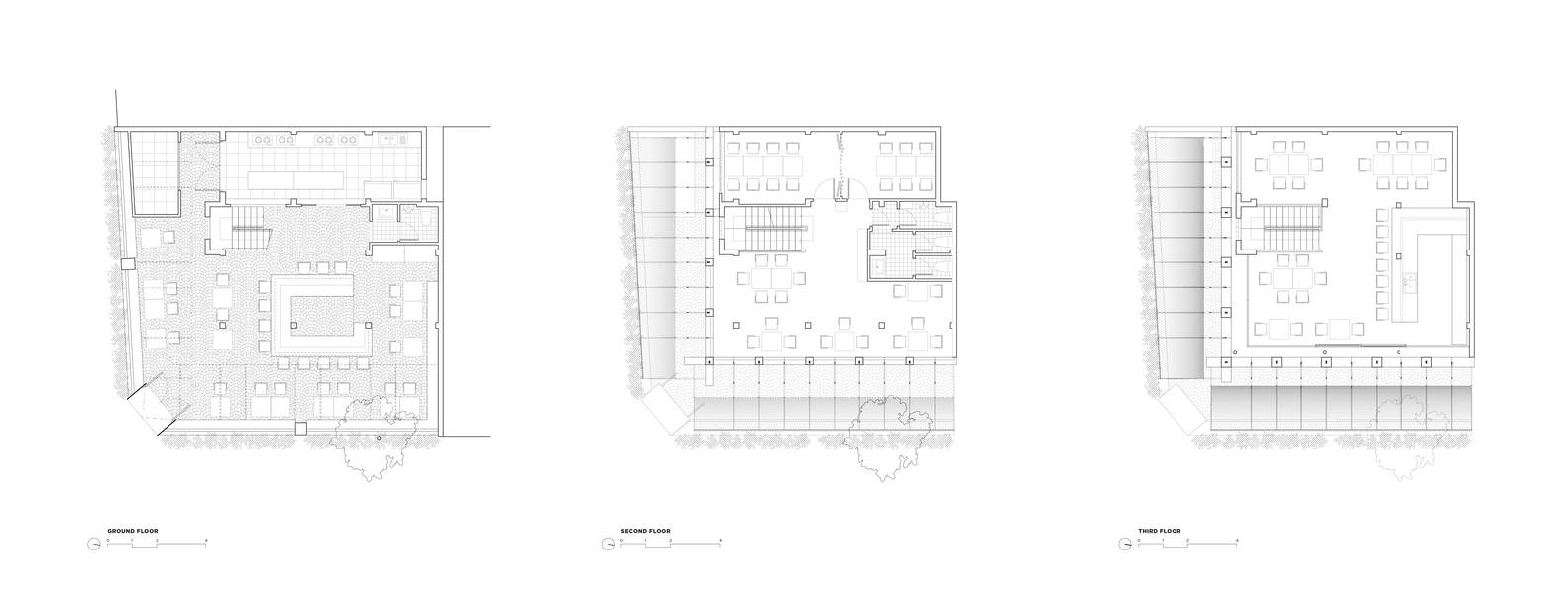
Plans

© Chuong Nguyen
The core design concept revolves around the concept of "veil": it is a soft, multi-layered boundary that harmonizes between bustling streets and private, atmospheric indoor spaces. This brand new outer layer is composed of stretched metal mesh panels, which are supported by prefabricated concrete and steel structure bases, forming a porous enclosure structure that ensures air circulation and allows light to pass through after filtering, while also creating a sense of change that is sometimes transparent and sometimes closed. At the narrow corners of the site, the veil opens outward, creating a gentle urban posture - a shaded and inviting entrance space that attracts people into the interior of the building. This posture makes the building a gentle turning point in the city, creating a breathable and interactive corner in dense and vibrant neighborhoods.
核心设计理念围绕“面纱”这一概念展开:它是一种柔和、多层次的边界,在热闹的街道与私密且富有氛围感的室内空间之间起到调和作用。这一全新的外层表皮由拉伸金属网板构成,这些网板由预制混凝土和钢结构基座支撑,形成了一个多孔的围护结构,既能保证空气流通,又能让光线经过滤后透入,同时还营造出一种时而通透、时而封闭的变幻之感。在场地较为狭窄的转角处,面纱向外打开,形成了一个柔和的城市姿态——一处有遮荫且引人入内的入口空间,吸引人们进入建筑内部。这一姿态让建筑成为城市中一处柔和的转折点,在密集且充满活力的街区中打造出一个透气且富有互动性的角落。

© Chuong Nguyen

© Chuong Nguyen
In addition to its formal expression, this veil also has both passive and active environmental regulation functions. Its porous surface promotes the natural ventilation inside the building, while the integrated spray system embedded in the veil structure can create a cool microclimate environment during the hot summer peak period in Saigon (formerly known as Ho Chi Minh City). The metal mesh and spray work together as a climate buffer belt to create a comfortable environment while minimizing the need for mechanical refrigeration.
除了其形式上的表达,这层面纱还兼具被动与主动的环境调节功能。其多孔表面促进了建筑内部的自然通风,而嵌入在面纱结构中的集成喷雾系统则能在西贡(胡志明市旧称)酷热的夏季高峰时段,营造出凉爽的小气候环境。金属网与喷雾协同作用,充当气候缓冲带,在营造舒适环境的同时,最大程度减少了对机械制冷的需求。

© Chuong Nguyen

Exploded Axo

© Chuong Nguyen
Indoors, this renovation introduces a complementary inner skin layer, enhancing the original and exquisite aesthetic style of the project. The glass brick wall, exposed concrete, untreated steel, and simple detail treatment together shape a new spatial characteristic - simplicity, realistic touch, and quiet modernity. The use of glass bricks further enhances the interaction between light and texture, gently reflecting sunlight while balancing privacy protection and creating a warm atmosphere. These carefully considered surface treatments create an open and adaptable indoor space, where the building maintains a balance between stability and tranquility, as well as a sense of freedom and design.
在室内,此次翻新引入了一层与之相辅相成的内表皮,强化了项目原始且精致的美学风格。玻璃砖墙、外露混凝土、未经处理的钢材以及简洁的细节处理,共同塑造了全新的空间特质——质朴、触感真实且静谧现代。玻璃砖的运用进一步增强了光线与质感之间的互动,柔和地折射日光,同时兼顾隐私保护与营造温馨氛围。这些经过精心考量的表面处理,打造出一个开放且适应性强的室内空间,建筑在其中既保持了稳固与宁静的平衡,又兼顾了随性与设计感。

© Chuong Nguyen

Axonometric View
面纱与室内空间共同构成了一种双层策略,这种策略重新界定了街道与空间之间的关系,模糊了室内与室外、封闭与开放之间的界限。
Ts VEIL is not just a renovation project; It is a reinterpretation of the vitality of architecture in tropical urban environments - a breathing, shaded, and captivating space that showcases a pattern of how to reshape existing buildings in a delicate, resilient, and understated manner through lightweight architectural interventions.
Ts VEIL 不仅仅是一次翻新工程;它是对热带城市环境中建筑生命力的一种重新诠释——这是一个会呼吸、能遮荫且引人入胜的空间,它展示了一种模式,即如何通过轻巧的建筑干预手段,以细腻、坚韧且低调有力的方式重新塑造既有建筑。

© Chuong Nguyen