Idle Home/STEPS Large Staircase Building
闲心宅 / STEPS 大台阶建筑
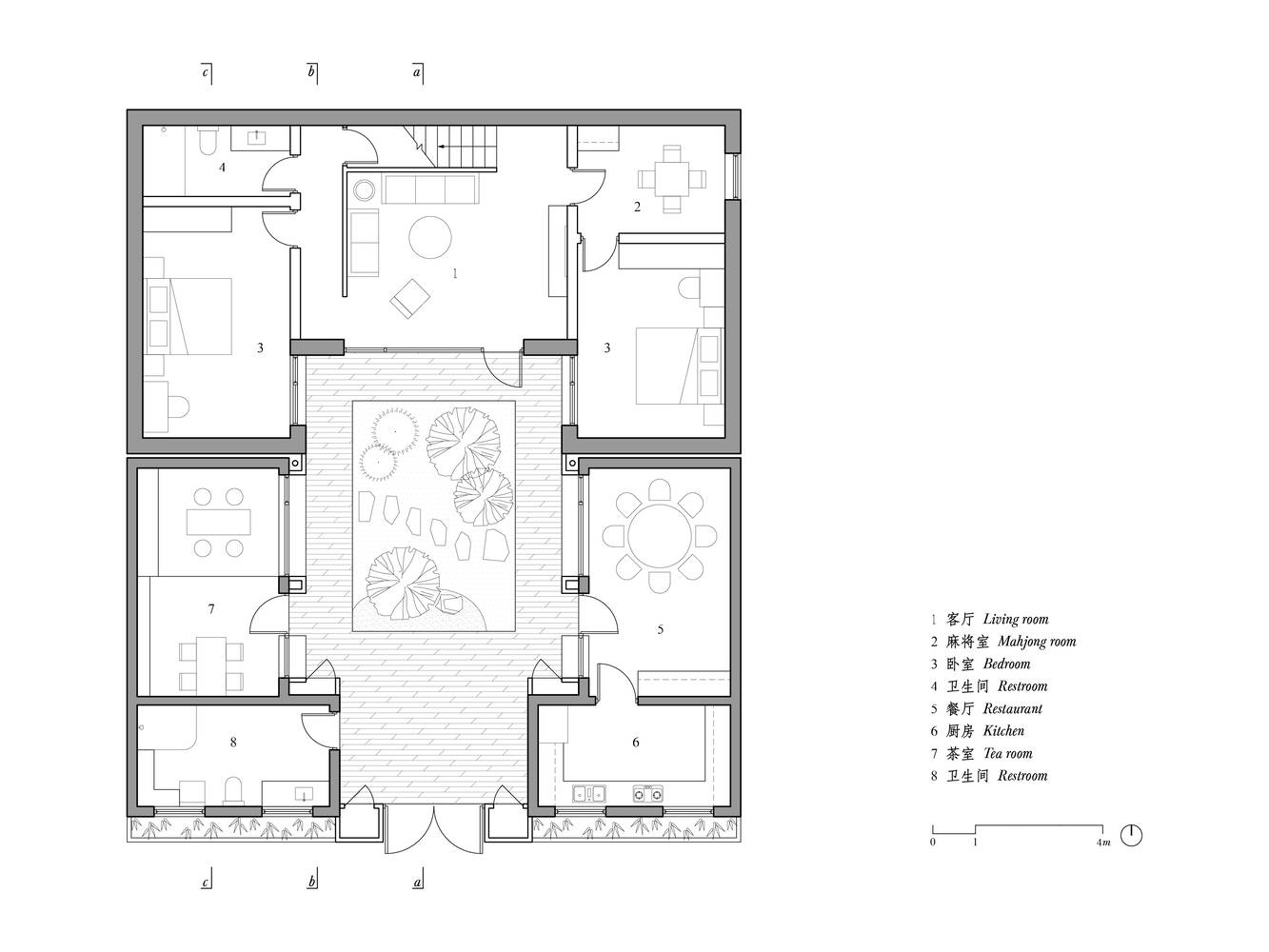
庭院空间的精妙设计:该项目最引人注目的亮点在于对庭院空间的巧妙运用。设计师并未将老房与厢房割裂,而是通过巧妙的连接,将两者融为一体,创造出一个内向、稳固的庭院。这种设计不仅串联了所有生活空间,也使得每个房间都能与庭院建立起联系,从而提升了居住体验。通过利用原有挑檐、内凹墙面、以及窗台形成的室外座位,设计师成功地将庭院的景观引入室内,营造出一种随时随地都可以欣赏自然美景的氛围,完美契合了“闲心”的主题,让居住者真正感受到放松和惬意。
对远山景观的巧妙借景:项目对远山景观的捕捉和利用也堪称精髓。设计师将二层与屋顶平台相连,使其成为欣赏山景和日出日落的绝佳场所。通过加宽和外挑二层通往屋顶平台的过道,形成了一层客厅的挑檐,同时也为二层创造了一个可供驻足观景的空间。横向水平长窗的窗台与屋顶平台的女儿墙共同构成了完整而连续的庭院界面,这种设计使得居住者在室内即可饱览庭院、远山、以及落满鸽子的屋顶,将自然景观最大程度地引入生活。这种借景手法,不仅提升了建筑的美学价值,更增强了居住者的精神享受。
光影与建造细节的完美结合:设计师在光影的运用和建造细节的处理上也展现了卓越的专业素养。考虑到与周边建筑的协调性,采用了无组织排水的双坡屋顶,雨水通过墙内的雨水管排入庭院。坡屋顶天窗与通高的二层空间,共同打造了宽敞明亮的客厅。 L 型楼梯栏板的设计,既形成了舒适的沙发空间,又巧妙地创造了楼梯洞口的框景。同时,在采光不足的区域,设计师通过顶面开小窗来引入天光,并在天窗反坎处设计观景座位,充分利用了每一处空间。而根据当地施工条件调整的砖混结构设计,也体现了设计师务实的态度,最终实现了低成本、高品质的建筑效果。

© 张霁

© 张霁
This project is located in Miyun District, Beijing. The owner hopes to renovate an old house in the suburbs as a weekend leisure space for the family. The old house is a common courtyard in the north, consisting of a main house and east and west wing rooms. In order to meet the living needs of the whole family, we have decided to retain the wing room to accommodate auxiliary living spaces: kitchen, dining room, and tea room; And demolish the original main house, build a new two-story main house, accommodating the main living space: living room and four bedrooms. We hope to create a residence where residents can sit down and rest at any time, observe the courtyard, sky, and distant mountains, forget about the troubles of the external world, return to nature, and truly "relax" their busy bodies and minds.
本项目位于北京市密云区。业主希望改造郊区的老房子,作为家庭周末休闲空间。老房子是北方常见的一进院落,由正房及东西厢房组成。为了满足全家人的生活需求,我们决定保留厢房容纳辅助生活空间:厨房、餐厅、茶室;并拆除原有正房,新建二层正房,容纳主要生活空间:客厅及四间卧室。我们希望通过打造一座可以随时坐下来休息,静观庭院、天空、远山的住宅,让居住者忘记外部世界的烦恼,回归自然,让忙碌的身心可以真正“闲”下来,得以彻底放松。

© 张霁

平面图

© 张霁

© 张霁
Courtyard
The courtyard is the core of design, connecting all living spaces. Before the renovation, the main room and the wing rooms were separated, with no landscape inside the courtyard and a lack of connection between indoors and outdoors. We directly connected the main room with the east and west wing rooms, and reorganized the building interface to create a stable and inward courtyard space, with each room having a relationship with it. We utilize the eaves of the original east-west wing rooms to make the walls of the tea room and dining room concave, maximizing the window view. The window sills naturally form outdoor seats, allowing you to sit down and enjoy the courtyard at any time. The first floor bedroom faces the courtyard directly, and for privacy reasons, the windows are relatively small; The french window in the living room on the first floor let the landscape of the courtyard directly enter the interior, and the horizontal overhanging eaves let the view of the living room extend to the courtyard, while forming an outdoor gray space under the eaves.
庭院
庭院是设计的核心,它串连起所有生活空间。改造前正房与厢房是割裂的,院内没有景观,室内外缺乏联系。我们将正房与东西厢房直接相连,并重新梳理了建筑界面,创造出一个稳固内向的庭院空间,每个房间都与之产生了关系。我们利用原有东西厢房的挑檐,让茶室和餐厅的墙面内凹,最大化窗景,窗台处自然形成室外座位,可随时坐下观赏庭院。一层卧室直面庭院,出于隐私考虑,窗户相对较小;一层客厅的落地窗让院子的景观直接进入室内,水平挑檐让客厅的视野向庭院延伸,同时形成室外的檐下灰空间。

© 张霁

剖面图

© 张霁
Far Mountain
Due to the connection between the main rooms, the roof platform can be expanded and directly accessed from the second floor of the main room, making it an excellent place to enjoy mountain views and sunrise and sunset.. The aisle leading to the rooftop platform on the second floor of the main building is widened and cantilevered outward, forming a eaves for the living room on the first floor. At the same time, it creates a space for the second floor to stop and enjoy the view: through the horizontal long window, one can admire the courtyard, distant mountains, and the gray tile roof covered with pigeons. The window sill of the horizontal long window and the parapet of the roof platform form a complete and continuous courtyard interface. The second floor bedroom wall is concave inward to form a eaves, avoiding excessive sunlight and allowing for a natural transition between indoor and outdoor spaces.
远山
由于正房厢房相连,屋顶平台得以扩大,并且可从正房二层直接到达,这是观赏山景及日出日落绝佳的地方。正房二层通向屋顶平台的过道扩宽并向外悬挑,形成一层客厅的挑檐,同时为二层创造了一个可以驻足观景的空间:透过横向水平长窗可以观赏院子、远山、落满鸽子的灰瓦顶。横向长窗的窗台与屋顶平台的女儿墙形成了一圈完整而连续的庭院界面。二层卧室墙面向内凹形成檐口,避免过度的日照,同时令室内外空间得到自然过渡。

© 张霁

© 张霁
Tian Guang
Considering the coordination with surrounding buildings, the roof of the main house is a double sloped roof with unorganized drainage. Rainwater is discharged into the courtyard through rainwater pipes wrapped in the wall on the roof platform.. The sloping roof skylight and the elevated second floor space form a spacious and bright living room. The L-shaped staircase railing leading to the second floor is made into two straight walls and a hole is opened on the wall facing the courtyard, creating a stable and comfortable sofa space, while also creating a frame view of the staircase opening. The bedrooms on the east and west sides of the first floor of the main room are connected to the wing rooms, and the living room eaves are in front of the windows, which does not provide ideal lighting. Therefore, a small window is opened on the top to introduce daylight. The reverse ridge of the skylight naturally forms a viewing seat on the roof platform.
天光
考虑到与周边建筑的协调性,正房的屋顶形式为无组织排水的双坡屋顶,雨水在屋顶平台通过包进墙面的雨水管排到庭院。坡屋顶天窗与通高的二层空间形成宽敞明亮的客厅,通向二层的 L 型楼梯栏板做成两面直墙并在面向庭院的一面墙上开洞,形成稳定舒适的沙发空间,同时创造了楼梯洞口的框景。正房一层东西两侧的卧室由于与厢房相连,窗前是客厅挑檐,采光不够理想,所以在顶面开小窗引入天光。天窗的反坎在屋顶平台自然形成观景座位。

© 张霁
Construction
At the construction level, we have made practical choices that are suitable for local construction conditions, climate environment, and budget conditions.. A tricky situation is that the local civil construction team can only make brick and concrete structures, so we had to change the frame structure plan to brick and concrete midway, which added several sections of walls. However, fortunately, the construction team was able to make concrete upturned beams. The upturned beam on the roof leaves space for the waterproof insulation layer, while also preventing the crossbeam at the eaves from appearing too heavy. The second floor cantilevered upturned beam is hidden in the horizontal window sill, making the eaves and ceiling clean. Due to the relatively extreme winter climate in the suburbs of Beijing, we use the method of external insulation with water and sand to wrap the exterior walls. In the end, Xianxin Mansion was completed at a relatively low cost, and the owner's family enjoyed this relaxed and comfortable atmosphere very much after moving in, which made us very pleased.
建造
在建造层面,我们做出了适合本地施工情况、气候环境、预算条件的务实选择。一个棘手的情况是本地的土建施工队只能做砖混结构,我们只好中途将框架结构的方案改为砖混,这增加了几段墙体,不过还好施工队可以做出混凝土上翻梁。屋顶的上翻梁给防水保温层留出了空间,同时让檐口处的横梁不会显得太厚重。二层悬挑的上翻梁被藏到横窗窗台里,让挑檐天花处变得干净。由于北京郊区冬季相对极端的气候,我们采用外保温加水包砂的做法包裹外墙。最终,闲心宅以相对低的造价完成,业主一家入住后非常享受这种闲适自在的氛围,这让我们十分欣慰。

© 张霁