Aurore Building/Sisto Studios
Aurore 大楼 / Sisto studios
整体概念与空间体验:Aurore Building 的设计核心在于挑战拉德芳斯地区传统的建筑理念,并重新定义城市空间的使用方式。项目将“生命建筑”的概念融入设计,通过创新的生活方式规划,将建筑打造为多元、开放的工作与休闲场所,包括商铺、餐厅、共享办公区等,旨在创造一种活力四射、鼓励互动的新型城市体验。建筑师充分利用其地理位置,并结合灯笼意象,捕捉并折射光线,从而在周围被高楼环绕的环境中营造出一种独特的光影效果和空间感。这种设计策略不仅考虑了建筑的功能性,更注重提升使用者和公众对空间的感受和体验。
立面设计与材料选择:项目的立面设计是其最引人注目的亮点之一。通过竖向磨砂玻璃百叶的设计,建筑师巧妙地将光线过滤,在建筑内部营造出柔和的光影效果,并在白天和夜晚呈现不同的视觉感受。这种“有机表皮”的设计在以办公楼为主的区域内创造了一种独特的亲密感。此外,建筑师并未拘泥于传统的直角构造,而是赋予建筑的每个转角独特的意义,从而增强了建筑的雕塑感和表现力。材料的选择同样体现了项目的精髓。建筑内部核心采用了不透明、温暖且富有肌理的材料,与光滑的玻璃外立面形成对比,增强了空间的层次感和丰富性。
结构创新与可持续性:Aurore Building 在结构设计上展现出卓越的创新性。采用跨度达 15 米的钢结构,最大程度地减少了竖向支撑,使得建筑外立面能够自由展开,如同幕帘般轻盈。这种结构上的创新,不仅赋予了建筑独特的形态,也为内部空间的自由度和灵活性提供了保障。此外,项目对可持续性的关注也体现在材料的选择上。所选用的材料都具备天然、未经修饰、可持续且生态友好的特性,这不仅是一种美学上的考虑,更是对环境保护的承诺,与传统商业建筑的模式形成鲜明对比。这种设计理念体现了对可持续建筑发展的深刻理解。

© Nicolas Sisto

© Nicolas Sisto
From the architect. The Aurore project is a complex of buildings that includes the renovation and expansion of the Aurore Tower in La D é fense, as well as the construction of a ten story service building in front of the tower - the Aurore Building. As a co architect, Sisto Studios is responsible for designing the public spaces of the building and some of the towers.
来自建筑师。Aurore 项目是一组建筑综合体,包括对拉德芳斯的Aurore 塔的翻新和扩建,以及在塔前建造一座十层的服务建筑——Aurore 大楼。作为联合建筑师,Sisto Studios 负责设计大楼和部分塔楼的公共空间。

© Nicolas Sisto

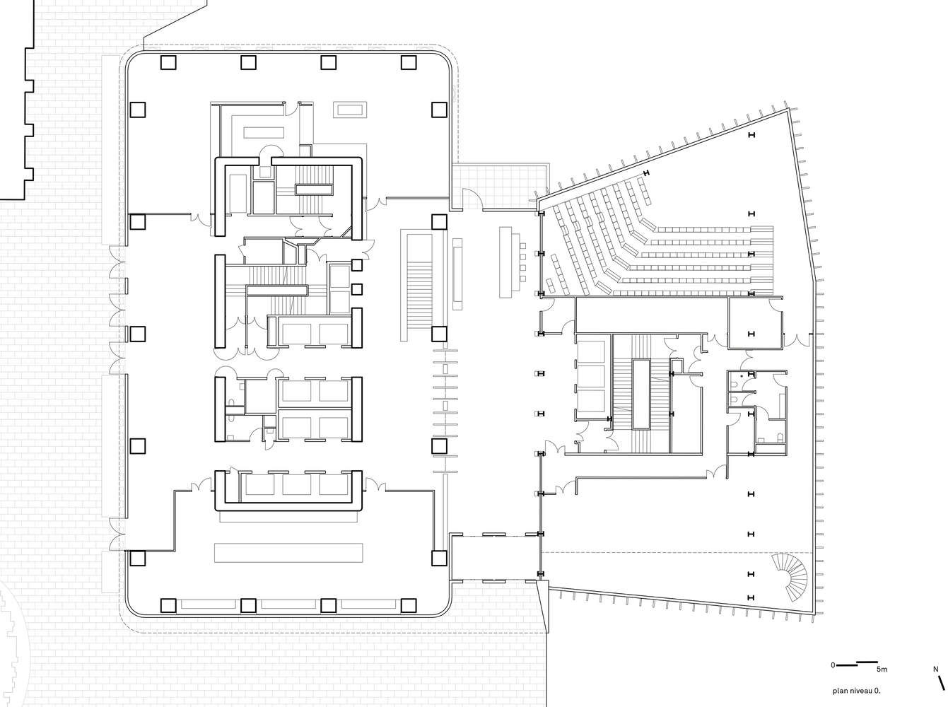
Ground Floor Plan

© Nicolas Sisto
大楼宣言 - 在拉德芳斯区挑战主流建筑趋势。
The Aurore Building is located between three towers that can reach heights of 100 to 200 meters. Its location is obscured by tall buildings, with only the south facade facing Place de l'Iris and the historic axis of La D é fense. To redefine the usage and spatial experience of this area, the design of Shuguang Pavilion follows two organic principles: innovative lifestyle planning: Shuguang Pavilion provides users of Shuguang Tower and surrounding buildings with diverse and open work and leisure spaces, including shops, restaurants, business centers, auditoriums, lounges, shared office areas, and rooftop gardens. Free flowing 'life architecture': Inspired by the lantern imagery, the Dawn Pavilion captures and refracts light, creating an open and vibrant space. Its design emphasizes fluidity, encourages interaction between people and space, and allows the building to naturally blend into the surrounding environment.
Aurore 大楼坐落于三座高达 100 至 200 米的塔楼之间,其所处位置被高楼遮蔽,唯有南立面朝向鸢尾广场(Place de l’Iris)及拉德芳斯历史轴线。为重新定义这一地区的使用方式与空间体验,曙光馆的设计遵循两大有机原则:创新的生活方式规划:曙光馆为曙光塔及周边建筑的使用者提供多元、开放的工作与休闲空间,包括商铺、餐厅、商务中心、礼堂、休息厅、共享办公区以及屋顶花园。自由流动的“生命建筑”:受灯笼意象的启发,曙光馆捕捉并折射光线,打造开放且充满活力的空间。其设计强调流动性,鼓励人与空间的互动,让建筑自然融入周围环境。

© Nicolas Sisto

© Nicolas Sisto
Deformation - The building is like a precious glass artwork, reflecting light during the day and being transparent and bright at night. The vertical frosted glass louvers surrounding the building serve as both a filter for light and a barrier between the building and its occupants. This' organic skin 'changes with light and shadow throughout the day, either enhancing or softening the light, creating a unique sense of intimacy in the area dominated by office buildings. The rhythm of the facade louvers is most likely to be displayed at the corners of the building. However, the Aurore building is not limited to strict right angled construction, with each corner carrying a unique meaning: some protruding forward, some inward, some serving as breakpoints for the longest facade, while the building also establishes connections with the surrounding environment through three levels of urban platforms (slabs). This building is a true 'living building', and its organic characteristics are not only reflected in form, but also in function. The public can freely walk inside and outside the Aurore building, leading from the circular walkway to the roof, entering Place des Reflets from Iris Square, or entering the reception hall of the Aurore building. An internal street serves as an extension of the Reflection Square, connecting the tower and the Aurora Pavilion, enhancing the fluidity of the space. This new way of transportation breaks the original design of La D é fense, which was to separate the circular walkway from the pedestrian plaza in a closed mode.
变形 - 大楼如同一件珍贵的玻璃艺术品,日间反射光线,夜间通透明亮。环绕建筑的竖向磨砂玻璃百叶既是光的过滤器,也是建筑与使用者的屏障。这层“有机表皮”在一天之中随着光影变化,或增强或柔化光线,使建筑在以办公楼为主的区域内形成独特的亲密感。立面百叶的韵律在建筑转角处展现出最大的可能性。然而,Aurore 大楼并不受限于严格的直角构造,每个转角都承载着独特的意义:有的向前探出,有的内收,有的作为最长立面的断点,同时建筑还通过三层城市平台(slabs)与周围环境建立联系。这座建筑是真正的“生命建筑”,其有机特性不仅体现在形式上,更体现在功能上。公众可以自由穿行于 Aurore 大楼内外,从环形步道通向屋顶,从鸢尾广场步入倒影广场(Place des Reflets),或进入 Aurore 大楼的接待大厅。一条内部街道作为倒影广场的延伸,串联起塔楼与曙光馆,加强了空间的流动性。这种全新的通行方式打破了拉德芳斯最初的设计——即将环形步道与步行广场割裂的封闭模式。

© Nicolas Sisto

South Section

© Nicolas Sisto
Materials - The materials used for the construction of Aurore Building are an integral part of its identity and urban design. In sharp contrast to the smooth and enclosed glass facade, the interior core of the building is made of opaque, warm, and textured materials. The steel structure with a span of up to 15 meters is used to minimize vertical support, allowing the building facade to unfold freely like a curtain. The strict repetition of glass louvers, combined with the "irrational" geometric form and organic flow of architecture, gives the building a sense of elegance that transcends time. The selected materials all possess natural characteristics - unmodified, sustainable, and eco-friendly. This choice is not only an aesthetic consideration, but also a commitment to environmental sustainability, breaking through the traditional gypsum wall and carpet decoration patterns commonly used in commercial spaces.
材料 - 用于 Aurore 大楼建设的材料是其身份和城市设计不可分割的一部分。与光滑且封闭的玻璃外立面形成鲜明对比,建筑内部核心采用了不透明、温暖且富有肌理的材料。采用跨度达 15 米的钢结构,最大限度减少了竖向支撑,使建筑立面得以如幕帘般自由展开。玻璃百叶的严格重复,与建筑“非理性”的几何形态及有机流动相结合,赋予建筑一种超越时间的优雅感。所选材料均具备天然特性——未经修饰、可持续且生态友好,这种选择不仅是审美考量,也是对环境可持续性的承诺,突破了传统商业空间惯用的石膏墙面和地毯装饰模式。

© Nicolas Sisto