AD Classics: Hermes House Ginza/Renzo Piano Building Workshop
AD Classics: 银座爱马仕之家/ Renzo Piano Building Workshop
幕墙设计的精妙:爱马仕银座之家最令人印象深刻的特质之一就是其玻璃幕墙设计。由超过13000块定制的玻璃砖构成,每块砖都经过特殊处理,呈现出半透明的质感,这种设计灵感来源于日本传统的纸灯笼,在白天,幕墙能够柔和地散射自然光线,减少眩光,同时保证室内的私密性。到了夜晚,幕墙则会散发出温暖的光芒,与银座的霓虹灯相互辉映。更值得称道的是,为了应对东京的地震活动,幕墙系统采用了创新的悬挂和连接方式,允许一定程度的位移,从而保证了建筑的安全性和耐久性,同时也保持了视觉上的完整性和美观性。
空间与文化融合:该项目巧妙地将建筑设计与品牌文化和东京的城市特质融合在一起。建筑师充分利用了银座的紧凑用地,通过垂直构图,塑造了纤细而优雅的建筑轮廓。建筑的内部空间设计也体现了爱马仕的品牌精神,从旗舰店的沉浸式零售体验,到工作室和办公室的创意环境,再到双层高的展览空间,都旨在展示爱马仕的精致工艺和永恒优雅。此外,建筑的顶部还设有一个法式风格的露天庭院花园,为人们提供了一个宁静的休憩之所,进一步丰富了建筑的空间体验和文化内涵。这种对空间、文化和品牌的深度融合,是该项目的精髓所在。
技术创新与可持续:除了美学价值,爱马仕银座之家在技术创新和可持续性方面也表现出色。采用的玻璃幕墙不仅具有独特的光学效果,还具备良好的热工性能,能够调节室内温度,提高建筑的能效,这体现了伦佐·皮亚诺对可持续发展的承诺。在结构设计方面,建筑师针对东京的地震环境,采用了创新的幕墙安装技术,确保了建筑的安全性。这种创新设计理念,以及对细节的精益求精,使得爱马仕之家超越了其功能性,成为了一个具有深远意义的建筑作品,展现了建筑设计在应对城市挑战、体现品牌价值和推动可持续发展方面的潜力,堪称典范。

Ginza Hermes House/Renzo Piano Building Workshop © Michel Denancé, courtesy of Renzo Piano Building Workshop
银座爱马仕之家/ Renzo Piano Building Workshop © Michel Denancé, courtesy of Renzo Piano Building Workshop
In the bustling Ginza district of Tokyo, where tradition and modernity intersect, Maison Herm è s stands out like a dazzling architectural landmark. The building was designed by Renzo Piano Architecture Studio and completed in 2001. It is a 15 story structure that serves as the Japanese headquarters of the famous French luxury brand Herm è s, renowned for its exquisite craftsmanship and timeless elegance. In addition to serving as a commercial hub, this building also embodies the spiritual core of Herm è s, transforming its urban land into a dialogue between light, material, and background.
在东京繁华的银座区,传统与现代交汇之处,爱马仕之家(Maison Hermès)犹如一座璀璨的建筑地标脱颖而出。该建筑由伦佐·皮亚诺建筑工作室设计,于 2001 年竣工,是一座 15 层高的结构,作为法国著名奢侈品牌爱马仕的日本总部,该品牌以其精湛工艺和永恒优雅而闻名于世。除了作为商业枢纽的功能外,这座建筑还体现了爱马仕的精神内核,将其城市用地转变为光、材质与背景之间的一场对话。

Ginza Hermes House/Renzo Piano Building Workshop © Kakidai via Wikipedia under CC BY-SA 4.0
银座爱马仕之家/ Renzo Piano Building Workshop © Kakidai via Wikipedia under CC BY-SA 4.0
Hermes Home uses delicate techniques to handle scale and texture, blending into the dense urban texture of Ginza, creating a sculptural yet porous presence. Its slender silhouette, limited by the compact 11 meter wide and 56 meter deep land, harmoniously blends into the vibrant street landscape through vertical composition, responding to the spatial limitations of the city. Its iconic glass curtain wall is composed of over 13000 custom-made glass bricks, not only in response to Tokyo's dense population, but also a reinterpretation of Japan's traditional paper lantern. This glowing curtain not only reflects the vibrant energy of the surrounding environment, but also highlights the exquisite elegance of Herm è s, demonstrating how architecture cleverly combines brand identity with cultural and spatial characteristics.
爱马仕之家以细腻的手法处理尺度和纹理,融入银座密集的城市肌理之中,创造出一种既具雕塑感又多孔洞的存在。其纤细的轮廓,受限于紧凑的 11 米宽和 56 米深的用地,以垂直构图和谐地融入充满活力的街道景观,回应了城市的空间限制。其标志性的玻璃幕墙由超过 13000 块定制玻璃砖组成,不仅是对东京密集人口的回应,也是对日本纸灯笼传统的重新诠释。这层发光的帷幕既反射出周围环境的蓬勃活力,又彰显出爱马仕的精致高雅,展示了建筑如何巧妙地将品牌身份与文化和空间特性相结合。

Ginza Hermes House/Renzo Piano Building Workshop © Michel Denancé, courtesy of Renzo Piano Building Workshop
银座爱马仕之家/ Renzo Piano Building Workshop © Michel Denancé, courtesy of Renzo Piano Building Workshop
The Herm è s House, commissioned in 1998, aims to become a shining light in the densely built Ginza shopping district of Tokyo. Renzo Piano's design responds to busy urban backgrounds with vertical structures, maximizing space within compact land while creating an open and transparent atmosphere. This 10 story building reflects the layered urban landscape of Ginza, establishing a visual dialogue with the surrounding environment while maintaining an intimate spatial experience. This project balances the demands of complex urban environments with Herm è s' desire for architecture to embody its refined craftsmanship traditions. This building cleverly transforms urban constraints into opportunities for creative expression, integrating its own narrative into the dense texture of the region, creating a space that is both sculptural and practical.
1998 年委托设计的爱马仕之家,旨在成为东京密集建造的银座购物区中的一束光芒。伦佐·皮亚诺的设计以垂直结构回应繁忙的城市背景,在紧凑的用地内最大化空间,同时营造出开放和透明的氛围。这座 10 层高的建筑反映了银座的层叠城市景观,与周围环境建立视觉对话,同时保持亲密的空间体验。该项目平衡了复杂城市环境的需求与爱马仕希望建筑体现其精致工艺传统的愿望。这座建筑巧妙地将城市限制转变为创意表达的机会,从而将自身叙事融入该地区的密集肌理之中,创造出一个既具雕塑感又实用的空间。
相关文章
AD Classics: Interdesign 大楼 / Khalil KhouriThe core of Herm è s House is its intricate glass curtain wall, composed of customized glass bricks manufactured by Vetroarredo, a company based in Florence, Italy. Each brick has a size of 450 millimeters square, much larger than standard glass bricks, and has an embossed texture finish that makes it appear semi transparent rather than transparent. This subtle translucency creates a shimmering surface that evokes the soft glow of Japanese lanterns, scattering natural light indoors during the day and emitting warm ambient light at night.
爱马仕之家的核心是其错综复杂的玻璃幕墙,由意大利佛罗伦萨的 Vetroarredo 公司制造的定制玻璃砖组成。每块砖尺寸为 450 毫米见方,远大于标准玻璃砖,且具有压印纹理的饰面,使其呈现半透明而非透明状态。这种微妙的半透明性创造了一种闪烁的表面,唤起日本灯笼的柔和光芒,白天将自然光散射到室内,夜晚则散发出温暖的环境光。

Ginza Hermes House/Renzo Piano Building Workshop © Michel Denancé, courtesy of Renzo Piano Building Workshop
银座爱马仕之家/ Renzo Piano Building Workshop © Michel Denancé, courtesy of Renzo Piano Building Workshop

Hermes House Ginza/Renzo Piano Building Workshop Courtesy of Renzo Piano Building Workshop
银座爱马仕之家/ Renzo Piano Building Workshop Courtesy of Renzo Piano Building Workshop
The curtain wall wraps around the building like a semi transparent film, extending from the rooftop courtyard to the ground floor. It provides a continuous outer layer that covers the upper floors of the office and shops, while showcasing a vibrant indoor environment through strategic openings. On the longer side street facade, occasional transparent glass bricks adorn the curtain wall, framing the display of Herm è s products, while the compact Harumi Avenue facade features full height display windows that directly interact with busy streets. This careful arrangement of transparency and reflection allows the building to blend into the urban vitality of Ginza while maintaining an elegant and restrained posture.
幕墙像一层半透明的薄膜包裹着建筑,从屋顶庭院延伸至底层。它提供了一层连续的外皮,遮挡了办公楼层和店铺的上层,同时通过战略性开口展现出充满活力的室内环境。在较长的侧街立面上,偶尔出现的透明玻璃砖点缀着幕墙,框出爱马仕产品的展示,而小巧的晴海通(Harumi Avenue)立面则设有全高橱窗,直接与繁忙的街道互动。这种对透明度和反射的精心编排使建筑能够融入银座的都市活力之中,同时保持优雅而克制的姿态。

Ginza Hermes House/Renzo Piano Building Workshop © japanese_craft_construction via Wikipedia under CC BY 2.0
银座爱马仕之家/ Renzo Piano Building Workshop © japanese_craft_construction via Wikipedia under CC BY 2.0
Renzo Piano's sensitivity to architectural details is reflected in the subtle curvature of the glass bricks in the corners of the building, which softens the edges and enhances the sculptural quality of the structure. This subtle modulation blurs the boundary between indoors and outdoors, creating a seamless visual continuity that invites light to flow naturally through the space. The curved edges also reveal emergency escape stairs, helping to define the boundaries of the building while maintaining the rhythm of the curtain wall. During the day, the curtain walls shimmer with silver and sparkling luster, reflecting the urban vitality of Tokyo. At night, the building emits a warm glow from its interior, turning into a glowing lantern that illuminates the neon landscape of Ginza. This duality of stillness and motion, light and texture makes the Herm è s House an indispensable part of Tokyo's architectural tapestry, combining contemporary dynamism with timeless aesthetics.
伦佐·皮亚诺对建筑细节的敏感性体现在建筑角落玻璃砖的微妙曲率上,这柔化了边缘并增强了结构的雕塑品质。这种微妙的调制模糊了室内与室外的界限,创造出一种无缝的视觉连续性,邀请光线自然流过空间。弯曲的边缘还露出了紧急逃生楼梯,有助于定义建筑的边界,同时保持幕墙的节奏韵律。白天,幕墙闪烁着银色、闪闪发光的光泽,反射出东京的都市活力。夜晚,建筑从内部散发出温暖的光芒,变成一盏发光的灯笼,点亮了银座的霓虹景观。这种静止与运动、光与纹理的双重性使爱马仕之家成为东京建筑织锦中不可或缺的一部分,将当代动感与永恒美学相结合。

Ginza Hermes House/Renzo Piano Building Workshop © Michel Denancé, courtesy of Renzo Piano Building Workshop
银座爱马仕之家/ Renzo Piano Building Workshop © Michel Denancé, courtesy of Renzo Piano Building Workshop
Hermes Home is an extraordinary practice in material innovation and structural ingenuity. Given the seismic activity in Tokyo, there is a need for a curtain wall system that can withstand earthquakes without compromising its delicate translucency. To achieve this, glass bricks are suspended on the building structure through steel arms and connected using flexible silicone seals, allowing for a maximum movement of 4 millimeters during earthquakes. This innovative design enables the curtain wall to absorb, rather than resist, earthquake impacts like curtains. The curtain like flexibility enhances the resilience of the building, ensuring safety and durability while maintaining seamless visual continuity of the glass skin.
爱马仕之家在材料创新和结构巧妙性方面是一次非凡的实践。鉴于东京的地震活动,需要一种能够承受地震而不损害其精致半透明性的幕墙系统。为实现这一点,玻璃砖通过钢臂悬挂在建筑结构上,使用柔性硅酮密封件连接,在地震期间允许最多 4 毫米的移动。这种创新设计使幕墙能够像窗帘一样,吸收而非抵抗地震冲击。窗帘般的灵活性增强了建筑的韧性,确保安全耐用,同时保持了玻璃表皮的无缝视觉连续性。

Ginza Hermes House/Renzo Piano Building Workshop © Michel Denancé, courtesy of Renzo Piano Building Workshop
银座爱马仕之家/ Renzo Piano Building Workshop © Michel Denancé, courtesy of Renzo Piano Building Workshop

Hermes House Ginza/Renzo Piano Building Workshop Courtesy of Renzo Piano Building Workshop
银座爱马仕之家/ Renzo Piano Building Workshop Courtesy of Renzo Piano Building Workshop
Functionally, glass curtain walls also serve as a thermal buffer, regulating indoor temperature and improving building energy efficiency. Its semi transparent nature scatters natural light indoors, reducing glare while maintaining privacy. This response to environmental change reflects Piano's commitment to sustainable development, transforming technological needs into artistic expression and blurring the boundaries between functional and symbolic elements.
功能上,玻璃幕墙还起到热缓冲作用,调节室内温度,提高建筑的能效。其半透明特性将自然光散射到室内,减少眩光,同时保持隐私。这种对环境变化的响应反映了皮亚诺对可持续发展的承诺,将技术需求转变为艺术表达,模糊了功能性和象征性元素之间的界限。

Ginza Hermes House/Renzo Piano Building Workshop © Michel Denancé, courtesy of Renzo Piano Building Workshop
银座爱马仕之家/ Renzo Piano Building Workshop © Michel Denancé, courtesy of Renzo Piano Building Workshop
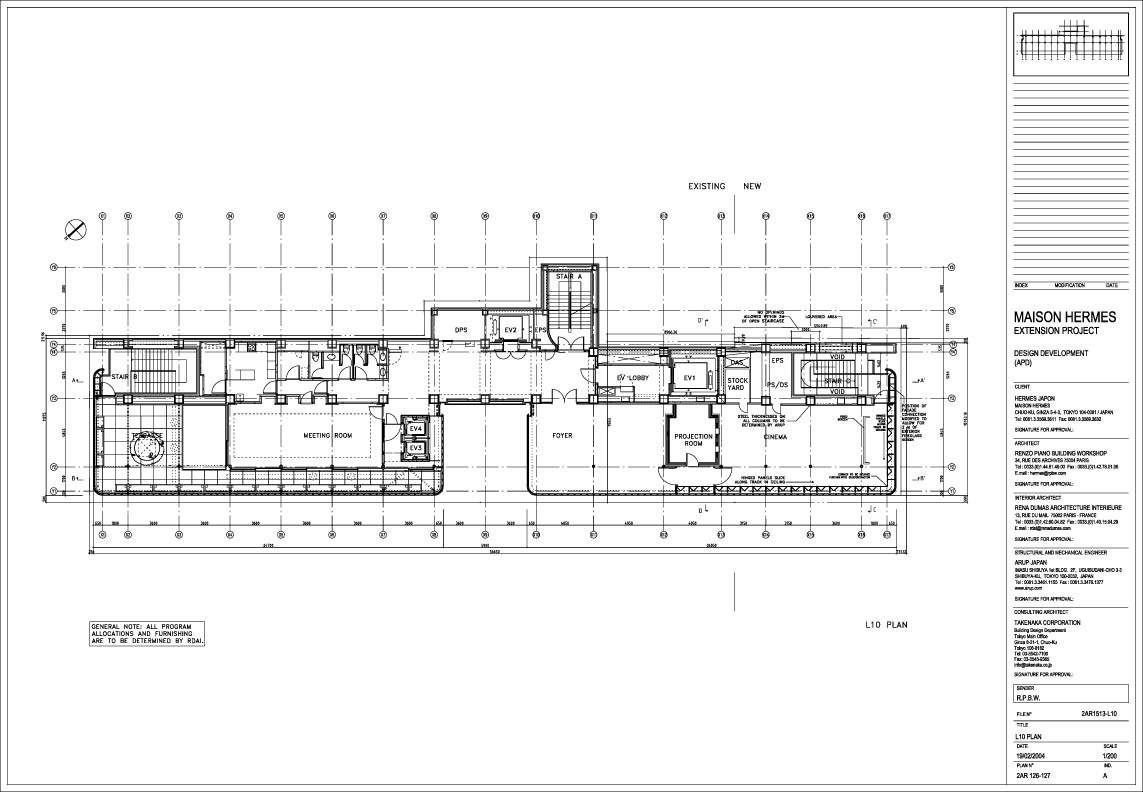
Herm è s House spans 15 floors with a total area of 6000 square meters (6071 square meters for Phase I and 8543 square meters for Phase II), including three basement levels that maintain a coherent architectural language while meeting multiple functions. The first four floors feature flagship stores, creating an immersive retail environment that showcases Herm è s' elegance. Above the retail space, there are studios and company offices within the building, creating a creative environment that balances collaboration and privacy. There is a double height exhibition space on the seventh floor, showcasing the heritage of Herm è s and connecting the brand's tradition with contemporary identity.
爱马仕之家跨越 15 层,总面积 6000 平方米(一期 6071 平方米;二期 8543 平方米),包括三层地下室,在满足多种功能的同时保持连贯的建筑语言。前四层设有旗舰店,营造出沉浸式的零售环境,彰显爱马仕的优雅。零售空间之上,建筑内设有工作室和公司办公室,营造出一个平衡协作与隐私的创意环境。七楼设有一个双层高的展览空间,展示爱马仕的传承,将品牌的传统与当代身份相连。

Hermes House Ginza/Renzo Piano Building Workshop Courtesy of Renzo Piano Building Workshop
银座爱马仕之家/ Renzo Piano Building Workshop Courtesy of Renzo Piano Building Workshop

Hermes House Ginza/Renzo Piano Building Workshop Courtesy of Renzo Piano Building Workshop
银座爱马仕之家/ Renzo Piano Building Workshop Courtesy of Renzo Piano Building Workshop
At the top of the building is a French style open-air courtyard garden, providing a peaceful resting place. The garden is surrounded by glass brick curtain walls, allowing natural light to enter while maintaining privacy, creating an introspective oasis. The interior decoration adopts exquisite materials and handcrafted details, including the contribution of Lena Dumas Interior Architecture Company. These decorative elements enrich the tactile and visual experience of the interior, reflecting Herm è s' dedication to exquisite craftsmanship and timeless design. The careful integration of these elements enhances the brand's identity through spatial experience.
建筑顶部是一座法式风格的露天庭院花园,提供一处宁静的休憩之所。花园被玻璃砖幕墙包围,保持私密性的同时允许自然光透入,营造出一个内省的绿洲。室内装饰采用精致材料和手工艺细节,包括雷娜·杜马斯室内建筑公司的贡献。这些装饰元素丰富了室内的触觉和视觉体验,反映了爱马仕对精湛工艺和永恒设计的奉献。这些元素的精心整合通过空间体验强化了品牌的身份。

Ginza Hermes House/Renzo Piano Building Workshop © Michel Denancé, courtesy of Renzo Piano Building Workshop
银座爱马仕之家/ Renzo Piano Building Workshop © Michel Denancé, courtesy of Renzo Piano Building Workshop

Ginza Hermes House/Renzo Piano Building Workshop © Michel Denancé, courtesy of Renzo Piano Building Workshop
银座爱马仕之家/ Renzo Piano Building Workshop © Michel Denancé, courtesy of Renzo Piano Building Workshop
After more than 20 years of completion, the Herm è s House remains an iconic building in Ginza and an important piece of contemporary architecture. It demonstrates how architecture can transcend its functional role and become a resilient, elegant, and contextually sensitive cultural and architectural narrative. This building is like a shining monument, reminding us how architecture can enhance spatial quality, reflect identity, and enrich human experience. It is a witness to the ongoing dialogue between tradition and innovation, harmoniously integrating cultural heritage with contemporary expression.
在竣工二十余年后,爱马仕之家依然是银座的一个标志性建筑,也是当代建筑中的一件重要作品。它证明了建筑如何能够超越其功能角色,成为坚韧、优雅和情境敏感性的文化与建筑叙事。这座建筑如同一座熠熠生辉的纪念碑,提醒我们建筑如何能够提升空间品质、体现身份认同并丰富人类体验。它是传统与创新之间持续对话的见证,将文化遗产与当代表达和谐统一。

Hermes House Ginza/Renzo Piano Building Workshop Courtesy of Renzo Piano Building Workshop
银座爱马仕之家/ Renzo Piano Building Workshop Courtesy of Renzo Piano Building Workshop
Hermes House embodies the architectural philosophy of Renzo Piano, integrating technological innovation, cultural resonance, and a people-oriented design concept. Its brilliant existence continues to inspire people, demonstrating how architecture can transcend the boundaries of space and time, reflecting the evolving narrative of place, identity, and cultural memory.
爱马仕之家凝聚了伦佐·皮亚诺的建筑哲学,融合了技术创新、文化共鸣和以人为本的设计理念。其璀璨的存在持续激发着人们的灵感,展示了建筑如何能够跨越空间与时间的界限,反映着地点、身份和文化记忆不断演变的叙事。

Ginza Hermes House/Renzo Piano Building Workshop © Michel Denancé, courtesy of Renzo Piano Building Workshop
银座爱马仕之家/ Renzo Piano Building Workshop © Michel Denancé, courtesy of Renzo Piano Building Workshop