Portuguese Energy Company Headquarters/Elemental
葡萄牙能源公司总部 / ELEMENTAL
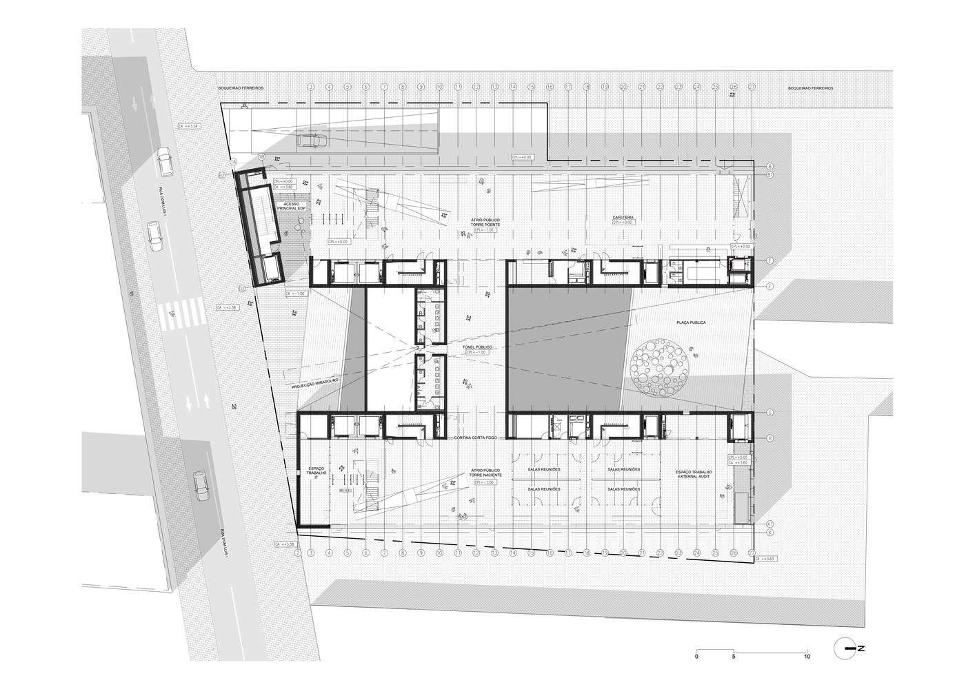
应对城市矛盾的巧妙手法: 葡萄牙能源公司总部项目最突出的亮点在于其对城市规划限制的巧妙应对。设计师将建筑体量分解为两个线性体块,以符合城市总体规划中公共空间连续性的要求。然而,为了保持建筑的统一性,设计师创造性地将公共空间的地面折叠成一个小坡度,连接了这两个线性体块,并以此解决建筑与周边环境的冲突。这种设计手法不仅巧妙地解决了功能需求,更创造了一个富有动态感、引人入胜的公共空间,将建筑与城市肌理融为一体,体现了设计师对城市环境深刻的理解和对建筑设计的创新精神。
建筑与环境的和谐共生: 该项目的精髓在于其对可持续性和建筑特性的有机结合。设计师将核心的公共广场处理为一块巨石,利用其热质量来稳定建筑的室内温度,从而降低能耗。外立面设计则采用了深度的线性元素网格,既作为遮阳百叶,又有效阻挡阳光,营造舒适的室内环境。更值得称道的是,设计师在建筑内部引入“邀请型楼梯”,鼓励人们选择步行,节约能源。这些设计细节体现了设计师对可持续发展的深刻理解,以及在建筑中融合环保理念的决心,实现了建筑与环境的和谐共生,赋予了建筑独特的生命力。
以人为本的设计理念: 项目的核心理念在于以人为本,为员工创造理想的工作环境。设计师提出“工作四形态”理论,将空间划分为个人与集体、正式与非正式四种类型,并在建筑的每个楼层均匀分布这些空间,方便员工使用。此外,屋顶的健身房和底层的咖啡馆等设施,更体现了设计师对人文关怀的追求。这种设计理念不仅关注建筑的功能性,更注重员工的体验和感受,创造了一个充满活力、促进交流、激发灵感的办公场所,展现了建筑师对未来办公空间设计的前瞻性思考,真正实现了以人为本的设计目标。

© Francisco Nogueira

© Francisco Nogueira
This project must resolve a contradiction: two opposing forces pulling each other apart. On the one hand, the project must comply with the overall urban planning requirements, ensuring the continuity of public space from hills to rivers (north-south direction), which results in the building's volume being divided into two linear blocks; On the other hand, buildings must function as a unified whole, so these two linear blocks need to be connected in the east-west direction, thereby threatening the north-south continuity of public spaces. Therefore, in order to respond to both forces simultaneously, the design team folded the ground of the public space into a small slope that conforms to the continuity of the hill river, and then connected the two linear volumes at the highest point of the folded ground.
该项目必须解决一个矛盾:两股相反的力量相互拉扯。一方面,项目必须符合城市总体规划要求,保证公共空间从山丘到河流(南北方向)的连续性,这导致建筑的体量被分割为两个线性体块;另一方面,建筑必须作为一个统一的整体发挥作用,因此这两个线性体块需要在东西方向上连接,从而威胁到公共空间的南北连续性。因此,为了同时回应这两股力量,设计团队将公共空间的地面折叠成一个符合山丘-河流连续性的小坡度,然后在折叠地面的最高点将两个线性体量连接起来。

© Francisco Nogueira

© Francisco Nogueira
This artificial slope provides a solution to another problem with the site: as the building is located in the second row of the Lisbon city grid, the visual continuity towards the river is not significant in practice. Although the building opposite EDP follows a north-south continuity in overall volume, at the pedestrian level, it completely blocks the view of the river. We designed the building volume as a cantilevered structure, located on a slope facing the river, and by raising the height, we crossed over the opposite building, allowing the building to have a clear view of the Tajo River. Therefore, the core square of the project is entirely a public space.
这一人工坡地为解决场地的另一个问题提供了解决方案:由于建筑位于里斯本城市网格的第二排,朝向河流的视觉连续性在实际中并不显著。尽管对面 EDP 的大楼在总体体量上遵循了北南方向的连续性,但在人行道层面,它完全遮挡了河流的视野。我们将建筑体量设计成一个悬挑的结构,位于坡地之上,朝向河流,并通过提升高度,越过对面建筑,从而使建筑能够获得清晰的塔霍河(Tajo)视野。因此,项目核心的广场完全是公共空间。

© Francisco Nogueira
We intentionally avoid the entrance of the building from the square to prevent citizens from feeling that the company is giving them the opportunity to use this high-quality space. The people on the square should feel that this is their right, rather than benefiting from the tolerance of the enterprise. Therefore, the entrance of the building is located on the south side, which can interact with the square but does not dominate the atmosphere of the square. At the same time, we will set the entrance of the public parking lot at the northern end of the building to provide services for the entire block. In addition, a caf é has been set up on the ground floor of the building, aiming to activate the public space and enhance the public nature of the surrounding community through this facility.
我们有意将建筑的入口避开广场,以避免让市民觉得是公司“恩赐”他们使用这一优质空间。广场上的人应当感到这是他们的权利,而非受益于企业的宽容。因此,建筑的入口设置在南侧,既能与广场互动,但又不主导广场的氛围。同时,我们将公共停车场的入口设置在建筑的北端,以便为整个街区提供服务。此外,建筑底层设置了一个咖啡馆,旨在通过这一设施活跃公共空间,提升周边社区的公共性。

© Francisco Nogueira

© Francisco Nogueira
Sustainability and architectural features. We aim to organically combine efficient building strategies with design methods that shape the uniqueness of buildings. For example, the core public square of the project is treated as a carved giant stone to ensure sufficient thermal quality, thereby enhancing the building's thermal stability and helping to reduce energy consumption. At the same time, by eliminating the concept of traditional floors, the square gives the building a sculptural sense of documentary. In the design of the facade, we are committed to creating a friendly and living scale working environment. Therefore, we not only emphasize the scale of each floor, but also adopt a deep linear element grid, which can serve as sunshade louvers and effectively block direct sunlight, reduce greenhouse effect, and ensure indoor comfort.
可持续性与建筑特色。我们旨在将高效能的建筑策略与塑造建筑独特性的设计手段有机结合。例如,项目核心的公共广场被处理为一块雕刻的巨石,以确保足够的热质量,从而增强建筑的热稳定性,帮助减少能耗。同时,通过消除传统楼层的概念,广场赋予了建筑一种雕塑般的纪实感。在外立面的设计中,我们致力于创造一种亲切的、具有人居尺度的工作环境。因此,我们不仅强调每层楼的尺度,而且采用了深度的线性元素网格,这些元素既能作为遮阳百叶,又能有效阻挡直射阳光,减少温室效应,保证室内的舒适性。

© Francisco Nogueira
Inside the building, we have also adopted another design approach that combines sustainability with architectural personality. We have designed an "invitation type staircase", which is a simple and easy-to-use staircase facility, making walking a practical and feasible alternative to elevators. We usually believe that energy comes from external sources and needs to be saved or replaced with renewable energy, but we should also recognize that the human body itself is an energy source. Every time we choose to take stairs instead of elevators, we are actually saving energy, and architectural design can play a positive role in this process.
在建筑内部,我们还采取了另一种将可持续性与建筑个性结合的设计手段。我们设计了“邀请型楼梯”,即形式简洁、便于使用的楼梯设施,从而使得步行代替电梯成为一种实际可行的选择。我们通常认为能源来源于外部,需要加以节约或替代为可再生能源,但我们也应当认识到,人体自身便是一种能源。每次我们选择走楼梯而非乘电梯,实际上是在节约能源,而建筑设计则能够在这一过程中起到积极作用。

© Francisco Nogueira

Plan
Human centered functionalism. Finally, the ultimate goal of architecture is to create an ideal working environment for people. We spend a lot of time in the workplace, so improving the quality of life in the workplace is often more important than improving the home environment. We propose the "Four Forms of Work" theory in architecture: a dual entry matrix that divides spaces for individual and collective use, with formal and informal use types.
人本功能主义。最后,建筑的最终目标是为人们创造一个理想的工作环境。我们在工作场所中度过了大量的时间,因此,提升工作场所的生活质量,往往比改善家庭环境更加重要。我们在建筑中提出了“工作四形态”理论:一个双入口矩阵,矩阵中分别划分了个人使用与集体使用的空间,并且有正式与非正式使用的空间类型。

© Francisco Nogueira
In other words, architecture provides a variety of spaces ranging from personal desks and meeting rooms to leisure areas, lounges, and more. We evenly distribute these spaces on each floor of the building to ensure easy access to these functional areas from anywhere in the building. In addition, we have designed a gym on the roof and a caf é on the ground floor, which reflect our pursuit of humanistic care (rather than purely functional) design concepts for future offices.
换句话说,建筑提供了从个人的常规办公桌、会议室到休闲区、休息室等多种空间。我们将这些空间均匀地分布于建筑的每个楼层,确保从建筑的任何一处都能方便访问这些功能区。此外,我们还在屋顶设计了一个健身房,并在底层设置了一个咖啡馆,这些设计元素体现了我们对未来办公室人文关怀(而非单纯功能性)设计理念的追求。

© Francisco Nogueira