Street Corner Home/Department of Architecture
街角之家 / Department of ARCHITECTURE
设计理念与环境适应:“街角之家”项目最突出的亮点在于其对环境的深刻理解和积极响应。它不仅满足了马尼拉城市对热带气候下公共空间的需求,还通过可操作的建筑围护结构(电动百叶墙、卷帘)实现了高度的适应性。这种设计策略使得建筑能够在适宜的天气条件下提供自然通风,而在季风季节则能够有效封闭空间,从而营造出舒适宜人的环境。项目很好地将建筑与环境相结合,体现了对气候变化和城市需求的敏感性和创新精神,是可持续建筑设计理念的成功实践。
空间组织与多功能性:该项目在空间组织上展现出极高的创造性。层叠式地面层与四层中庭的结合,创造出独特的户外体验,吸引人们进入建筑内部。500米长的螺旋坡道是设计的核心,它不仅连接了建筑的各个功能区域,更提供了一种全新的活动和互动方式,从慢跑到用餐,再到展览和聚会,都赋予了建筑多样化的活力。这种设计打破了传统建筑的封闭性,鼓励人们与建筑内部和周边环境建立联系,使“街角之家”成为一个充满活力的城市公共空间。
材料运用与细节处理:建筑在材料和细节方面也颇具匠心。轻质钢结构、可移动的墙壁、吊扇以及双色镜天窗,共同营造出凉爽舒适的室内环境。屋顶的活动空间被郁郁葱葱的土丘环绕,既控制了视野,又提供了一个宁静的休憩场所。色彩鲜艳的天窗立方体,既是聚会的场所,又是景观照明,为建筑增添了戏剧性和趣味性。这些细节的精心设计,提升了建筑的整体品质,使其不仅仅是一个建筑物,更是一个充满诗意和想象力的城市景观,展示了设计者对建筑的深刻理解和对品质的追求。

© Jar Concengco

© Greg Mayo
The Corner House is located at the intersection of two busy streets in San Juan, Manila, meeting the city's demand for outdoor public spaces suitable for tropical climates. It has become a refuge for dense urban environments, providing a space for relaxation and socializing.
街角之家位于马尼拉圣胡安两条繁忙街道的交汇处,满足了城市对适合热带气候的露天公共空间的需求。它成为了密集城市环境的避难所,提供了一个放松和社交的空间。

© Jar Concengco

© Jar Concengco
The design features a stacked ground level that connects the street to a four story atrium, creating a unique outdoor experience and immersing oneself in a floating glass restaurant box. Under suitable weather conditions, electric louver walls and rolling shutters can provide natural ventilation, while during the monsoon season, operable building enclosures enclose the space, making the project a highly adaptable and well ventilated building that can respond to environmental changes.
该设计采用层叠式地面层,将街道与四层高的中庭相连,营造出独特的露天体验,置身于漂浮的玻璃餐厅盒中。在适宜的天气条件下,电动百叶墙和卷帘可提供自然通风,而在季风期间,可操作的建筑围护结构则将空间封闭起来,使该项目成为适应性强、通风良好的建筑,能够响应其环境变化。

© Jar Concengco

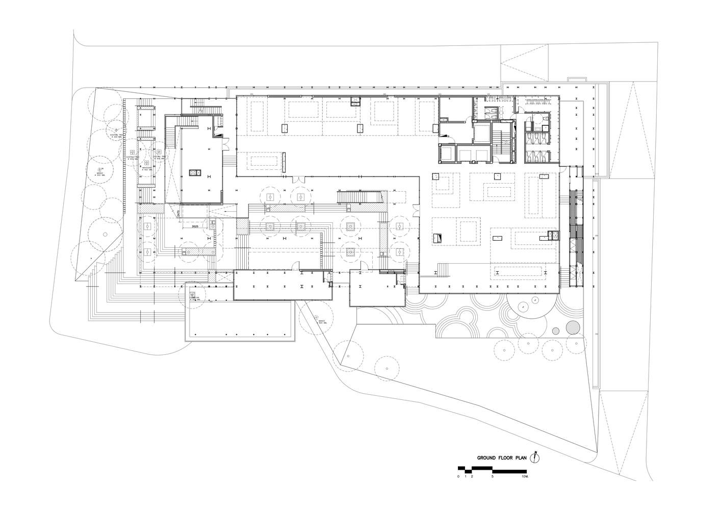
一层平面图

© Jar Concengco

三层平面图

© Jar Concengco

© Jar Concengco

© Jar Concengco
A 500 meter long spiral ramp starts from the ground, surrounds and runs through the entire building, serving multiple functions: from jogging and dining to hosting events and exhibitions. It invites visitors to interact with the interior of the building and establish connections with the surrounding environment, rather than isolating it.
一条 500 米长的螺旋式坡道从地面开始,环绕并贯穿整座建筑,兼具多种功能:从慢跑、用餐到举办活动和展览。它邀请访客与建筑内部互动,并与周边环境建立联系,而非将其隔绝开来。

© Jar Concengco

© Jar Concengco
The lightweight steel structure, movable walls, and ceiling fan ensure a cool and comfortable environment throughout the year, while the two-color mirror skylight injects vibrant light into the interior. The activity space on the roof is nestled among lush mounds, which control the view of the skyline and provide a peaceful haven for the bustling city. The brightly colored skylight cube can be used as a high table for gatherings or as a landscape lighting device, adding dramatic effects.
轻质钢结构、可移动的墙壁和吊扇确保了全年都凉爽舒适,而双色镜天窗则为室内注入了充满活力的光线。屋顶的活动空间掩映在郁郁葱葱的土丘之间,这些土丘控制着对天际线的视野,为喧嚣的城市提供了一个宁静的避风港。色彩鲜艳的天窗立方体既可用作聚会的高桌,也可作为景观照明装置,增添了戏剧性的效果。

© Jar Concengco

© Jar Concengco
The Corner House is not just a physical building; It is a highly adaptable urban ecosystem that combines flexible, climate responsive buildings with vibrant public spaces, providing a harmonious space that evolves in sync with the pace of the city.
街角之家不仅仅是一座实体建筑;它是一个适应性强的城市生态系统,将灵活的、能响应气候的建筑与充满活力的公共空间相结合,提供了一个与城市节奏同步演进的和谐空间。

© Jar Concengco