Erosis Buz ë Mustaqe Exhibition Hall/Phi+Architects
Erosion Buzë Mustaqe 展厅 / Phi+Architects
核心设计理念:“Erosion 展厅”的核心设计理念无疑是其最引人入胜之处。建筑师巧妙地将“侵蚀”的概念融入设计,通过“剥离浮华”来展现建筑的原始结构。这种设计手法颠覆了传统的商业空间设计,打破了对完美表面的追求,转而强调材料的本真性和质感。人为控制的裂痕并非简单的装饰,而是对时间、变革、以及建筑与时尚之间对话的象征。这种概念性的表达,使得展厅不仅仅是一个展示空间,更是一个引人深思的艺术装置,充分体现了建筑师对空间、材料、和理念的深刻理解与精准把握。
材料与施工的精湛运用:项目的另一个亮点在于对材料和施工的精湛运用。建筑师选择了裸露混凝土、未经处理的钢材、原始灰泥和透明玻璃等材料,营造出一种粗犷而富有质感的空间氛围。材料的“不完美”状态被刻意保留,凸显了其自然纹理和独特性。特别是结构玻璃面板与CNC精密切割裂痕的结合,体现了高超的施工工艺。这种对细节的极致追求,使得看似简单的材料组合,却产生了极具视觉冲击力的效果。这种对材料的真实表达,与“侵蚀”的设计主题相呼应,赋予了空间更深层次的内涵。
空间布局与城市融合:项目的空间布局和与城市环境的融合也是其成功之处。310平方米的展厅被设计成流动、开放的空间,为私人预约和策展展览提供了灵活的条件。破碎的建筑元素引导着参观者的视线,自然光线的运用也十分巧妙,通过裂痕玻璃幕墙,投射出变幻的光影,增强了空间的深度。更重要的是,展厅的建筑外观与周围环境形成了鲜明对比,在繁华的商业区中,保持了建筑的克制与内敛,既激发了人们的好奇心,又展现了对当地城市文脉的尊重。这种设计理念,使得展厅成为一个引人注目的城市地标,更体现了建筑师对城市环境的深刻理解。

© Dea Zogiani

© Dea Zogiani
From the architect. The Erosion Exhibition Hall is a fashion exhibition hall designed by PHI+Architects, located in a core commercial district of Pristina, Kosovo. This project demonstrates a deliberate architectural technique - stripping away flashy design to showcase the original structural core of the space. Its core design concept originates from the process of natural erosion: this slow and transformative force can reveal the essence beneath the surface. This concept is presented concretely through broken walls and glass surfaces, with artificially controlled cracks becoming a unique architectural expression. These cracks symbolize the intersection of architecture and fashion, reflecting the dialogue between eternity and transience, structure and expression.
来自建筑师。Erosion 展厅是一家时尚展厅,由 PHI+Architects 设计,坐落于科索沃普里什蒂纳的一处核心商业区。该项目彰显了一种刻意为之的建筑手法——剥离浮华设计,以展现空间原始的结构内核。其核心设计理念源自自然侵蚀过程:这种缓慢而具变革性的力量能揭露表象之下的本质。这一理念通过破碎的墙面与玻璃表面得以具象化呈现,其中,人为控制的裂缝成为独具匠心的建筑表达。这些裂痕象征着建筑与时尚的交汇,体现着永恒与短暂、结构与表现之间的对话。

© Dea Zogiani

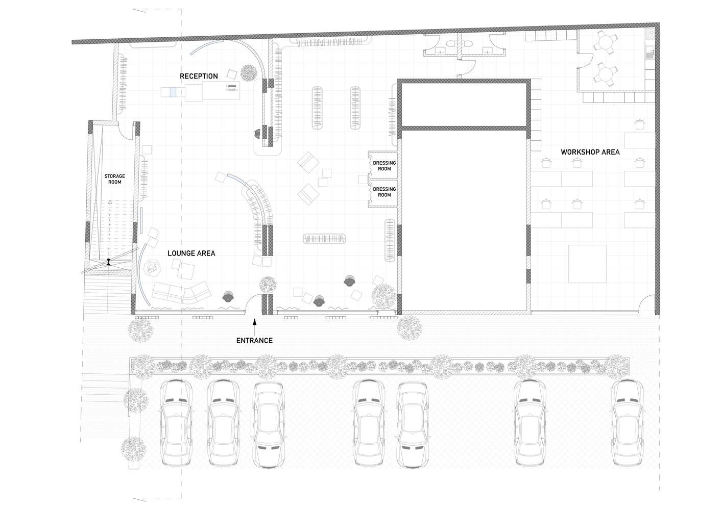
平面图

© Dea Zogiani
Challenge and Development
Since the beginning of the project, the challenge has been how to reimagine a typical retail space as an immersive, conceptual environment.. Given the rigid geometric characteristics of existing building structures, introducing organic cracks and showcasing the true texture of materials requires both exquisite techniques and rigorous building standards. The process of combining structural glass panels with CNC precision cut cracks is particularly complex, requiring meticulous coordination between the design and production teams.
Materials and Construction
This project adopts a simple combination of materials, including exposed concrete, untreated steel, original plaster, and transparent glass.. All finishes are deliberately kept in an imperfect state, fully showcasing the natural texture and irregular characteristics of each material. The use of precision technology to cut cracked structural glass panels reinforces the design language of exposure, fragmentation, and material authenticity conveyed by the building. The customized design of furniture, display units, and lighting fixtures seamlessly integrates with the space, showcasing the unique customization characteristics of both the architectural renovation and the high-end fashion series displayed.
挑战与发展
自项目伊始,挑战便在于如何将典型的零售空间重新构想为一个沉浸式、概念化的环境。鉴于现有建筑结构的刚性几何特征,要引入有机形态的裂痕并展现材料的本真质感,既需要精湛的技术,又需严谨的建筑规范。将结构玻璃面板与数控精密切割的裂痕相结合,这一过程尤为复杂,要求设计与制作团队之间进行细致入微的协调。
材料与施工
该项目采用了简约的材质组合,包括裸露混凝土、未经处理的钢材、原始灰泥和透明玻璃。所有饰面均刻意保留不完美状态,充分展现每种材料的自然纹理与不规则特性。采用精密技术切割裂痕的结构玻璃面板,强化了建筑所传达的暴露、破碎与材料本真的设计语言。定制设计的家具、展示单元和照明装置与空间完美融合,彰显了建筑改造与所展示的高端时尚系列二者独有的定制化特质。

© Dea Zogiani
Space Layout
The exhibition hall covers an area of 310 square meters and is designed as a mobile, open space suitable for private appointments and curatorial exhibitions.. Broken architectural elements guide people's action routes and frame display areas, ensuring a balance between functionality and experiential design. Natural light shines through the cracked glass curtain wall, projecting unpredictable light and shadow, highlighting the texture of the material and enhancing the depth of the space. The minimalist artificial lighting system complements the original aesthetics, avoiding excessive lighting that makes the space appear overwhelming.
Facade design and urban integration
Minimally cut glass curtain walls with surgical precision, eliminating the boundary between indoor and outdoor.. The exhibition hall is located within the dense urban fabric of Pristina, and its serene and primitive appearance contrasts sharply with the surrounding environment, arousing people's curiosity while maintaining architectural restraint and restraint.
空间布局
该展厅面积达 310 平方米,被构思为一个流动、开放的空间,适用于私人预约与策展展览。破碎的建筑元素引导着人们的行动路线,并框定出展示区域,确保功能性与体验式设计之间的平衡。自然光透过带有裂痕的玻璃幕墙洒入,投射出变幻莫测的光影,凸显了材料的质感,并增强了空间的纵深感。简约的人工照明系统与原始美学相得益彰,避免了过度照明而让空间显得喧宾夺主。
立面设计与城市融合
以外科手术般的精准度切割出裂痕的极简玻璃幕墙,消弭了室内与室外的界限。展厅坐落于普里什蒂纳密集的城市肌理之中,其静谧、原始的外观与周围环境形成鲜明对比,既激发着人们的好奇心,又保持着建筑上的克制与内敛。

© Dea Zogiani

剖面图

© Dea Zogiani

© Dea Zogiani
Conclusion
The Erosion Exhibition Hall is not just a display space; It is a spatial exploration of material authenticity and architectural simplicity. Through carefully designed cracks, raw materials, and clear conceptual expression, PHI+Architects has created a space that reflects the constantly evolving characteristics of contemporary fashion while showcasing the original urban style of Pristina.
结语
Erosion 展厅不仅仅是一个展示空间;它是对材料本真性与建筑简约性的一次空间探索。通过精心设计的裂痕、原始质感的材质以及清晰明确的概念表达,PHI+ Architects 打造出了一个既映照当代时尚不断演变特质,又彰显普里什蒂纳原始都市风貌的空间。

© Dea Zogiani