Bangkok King's International School New Central Building/Onion
曼谷国王国际学校新高中部大楼 / Onion
空间布局与功能整合: 这所学校的新建筑在空间布局和功能整合方面展现了卓越的设计理念。设计师将“The Refactory”打造为全天候开放的用餐区,打破了传统学校食堂的使用限制,满足了学生多元化的需求。高中部中心(Sixth Form Centre)则被精心设计成一个多功能的学生休闲和学习场所,包括储物柜、生活区、学习区、游戏室等,为学生提供了自由支配的课余活动空间。图书馆则通过铜层压楼梯和桥梁的连接,营造出开放且富有层次感的空间体验,并提供不同类型的座位安排,鼓励学生选择自己喜欢的方式进行学习和交流,体现了对学生个性化需求的尊重。
材质与色彩的巧妙运用: 项目在材料和色彩的运用上独具匠心,营造了独特的视觉氛围。例如,餐厅的主色调采用了浅蓝色,与建筑外墙的橙色砖墙形成对比,创造出轻松愉悦的用餐环境。高中部中心则以海军蓝作为主色调,呼应了学校的代表色,同时与浅色木材和银色等材质搭配,打造出清新现代的风格。图书馆内橙色砖墙与铜层压板的对比,则为空间增添了视觉冲击力,并突出了空间的层次感。此外,白色玻璃墙的运用,不仅增加了空间的通透性,也为学生提供了涂鸦的创意空间,赋予了空间更多的活力与个性。
以人为本的设计理念: 项目的核心在于以人为本的设计理念。设计师充分考虑了学生的需求,提供了多样化的座位选择、学习和活动空间,鼓励互动和交流。开放式的空间布局、透明玻璃的运用、以及中央楼梯的设计,都旨在促进学生之间的交流和互动。在图书馆的个人阅读区,设计师通过使用特殊的玻璃薄膜,既保证了学生的隐私,又兼顾了安全性。项目中的每一个细节都体现了设计师对学生身心健康的关注,以及创造一个积极、舒适、充满活力的学习环境的愿望。这种设计理念是现代教育建筑的精髓所在。

© W Workspace

© W Workspace
The Refactory "is the dining area of the newly constructed high school building at King's International School in Bangkok. This new building is specifically designed for high school students. Usually, the school cafeteria is only available for teachers and students to use during lunch, and may be empty in the afternoon. Onion Design Company has decided to create a cafeteria that is available 24/7.
“The Refectory”(餐厅)是曼谷国王国际学校新建高中部大楼的用餐区。这栋新楼专为高中生而建。通常情况下,学校的餐厅只供师生在午餐时使用,午后便可能空无一人。Onion 设计公司决定打造一个全天候可用的食堂。

© W Workspace
Onion's design includes two areas: 156 seats located in air-conditioned rooms and 90 seats located in naturally ventilated areas. The total seating capacity is 246, and various types of chairs are designed to accommodate different sitting positions. Each space is divided by material color rather than partitions. The main color of the restaurant is light blue, which is the representative color of the high school department of King's International School in Bangkok. The design team wanted a relaxed atmosphere in the space, so they chose a lighter blue tone to contrast with the orange brick walls of the building.
Onion 的设计包含两个区域:156 个座位位于空调房内,90 个座位位于自然通风区。总座位数为 246 个,并设计了多种类型的椅子以适应不同的坐姿。每个空间通过材料颜色而非隔断进行划分。餐厅的主色调为浅蓝色,这是曼谷国王国际学校高中部的代表色。设计团队希望空间氛围轻松,因此选择了较浅的蓝色调,与建筑的橙色砖墙形成对比。

© W Workspace

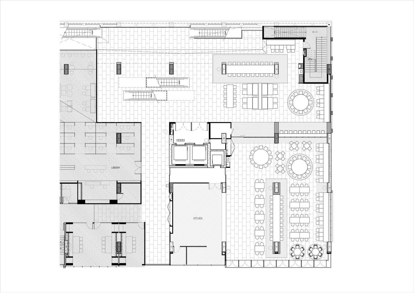
平面图

© W Workspace
Table design primarily serves group dining rather than individual dining. From bar stools and 2-person square tables to 12 person round tables and 20 person long tables, everything is available. Each restaurant has a visual connection with other parts of the school, and the naturally ventilated area of the restaurant is also part of the main atrium of the building. Besides lunchtime, teachers and students can also read, do homework, rest, and discuss here.
餐桌设计主要服务于团体用餐而非个人。从吧台凳、2 人方形桌到 12 人圆桌和 20 人长桌应有尽有。每个餐厅与学校的其他部分都有视觉联系,餐厅的自然通风区也是建筑主中庭的一部分。除了午餐时间外,师生还可以在此阅读、做作业、休息和讨论。

© W Workspace
The "Sixth Form Centre" in the new building of the school occupies space on two floors, including storage cabinets, living areas, study areas, game rooms, teacher and consultant rooms, water dispensers, and snack vending machines. The function of this new center is similar to that of a student lounge, which they can use during their extracurricular time. Onion offers various types of chairs and seating arrangements to meet the different sitting needs of students. There are individual seats, group seats, and seats for reading, work, and rest. The entire high school department center uses navy blue as the accent color and surface color, which is the representative color of the school's high school department and part of the light wood, silver, and light blue color palette.
学校新楼的“Sixth Form Centre”(高中部中心)占据了两层楼的空间,包括储物柜、生活区、学习区、游戏室、教师和顾问室、饮水处以及零食自动售货机。这个新中心的功能类似于学生的休息室,供他们在课外时间使用。 Onion 提供了多种类型的椅子和座位安排,以满足学生不同的坐姿需求。有单人座、团体座以及用于阅读、工作和休息的座位。整个高中部中心都使用了海军蓝作为点缀色和表面色,这是学校高中部的代表色,也是浅色木材、银色和浅蓝色调色板的一部分。

© W Workspace

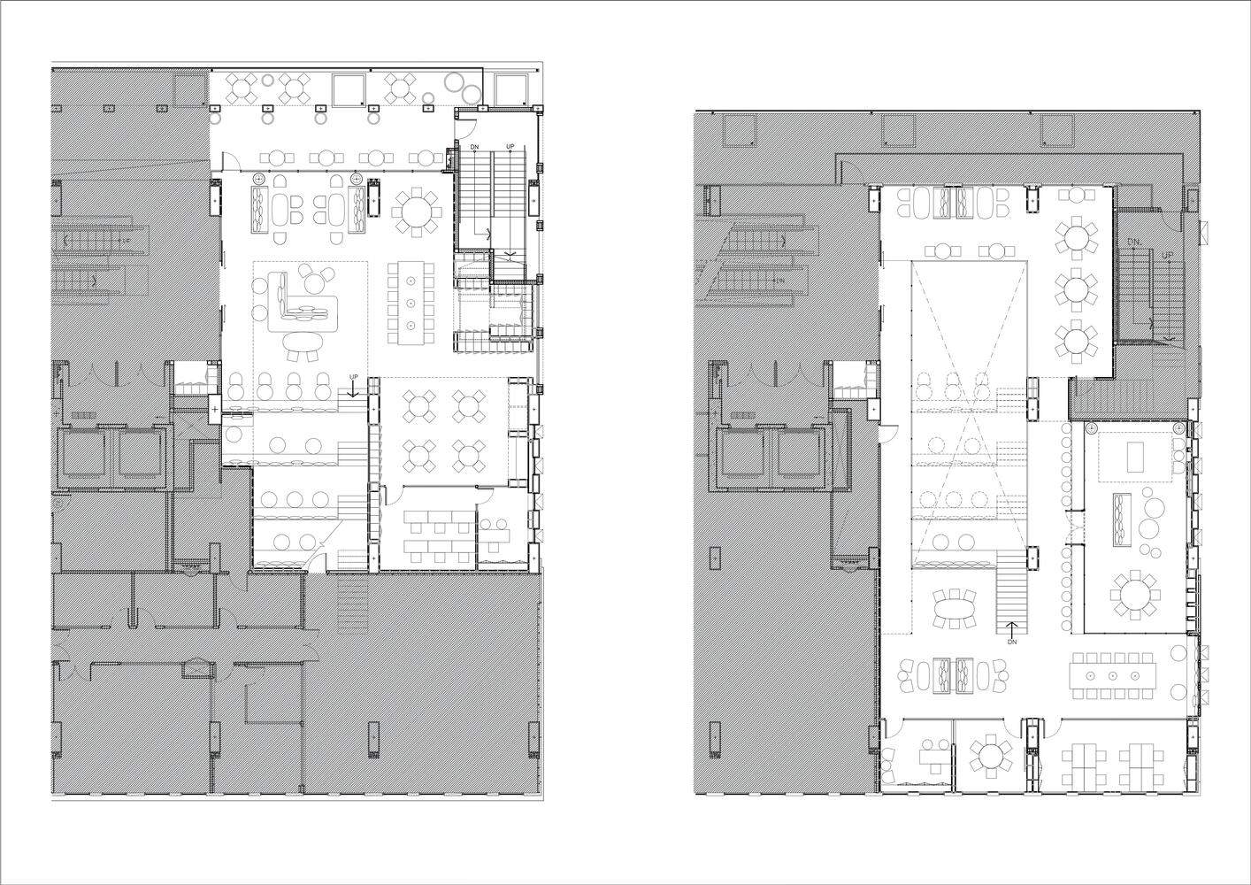
平面图

© W Workspace
Each space in the high school center overlooks other spaces without enclosed or unobservable areas, for safety reasons. Many walls are covered with white glass, which students can write on and is easy to wipe clean. The central staircase is designed to connect the rest areas on the fourth and fifth floors. In this space, students can see the activities around them and also be seen by others. The seats face the school's football field, which is the green area of the school, allowing students to see outdoor activities and movements.
高中部中心的每个空间都能俯瞰到其他空间,没有封闭且无法观察到的区域,这是出于安全的考虑。许多墙面都覆盖着白色玻璃,学生可以在上面写字,而且易于擦拭干净。中央楼梯被设计成连接四楼和五楼的休息区。在这个空间里,学生可以看到周围的活动,同时也能被别人看到。座位面向学校的足球场,即学校的绿色区域,让学生可以看到室外的活动和动静。

© W Workspace
The game room is enclosed by transparent glass. Indoors, light blue metal laminates are mainly used as materials, with exposed grid structures covering walls and ceilings. This enclosed space looks like an enlarged student's checkered paper notebook. The same pattern is used in different positions of the high school center.
游戏室被透明玻璃封闭。室内主要使用浅蓝色金属层压板作为材料,有裸露的网格结构,覆盖墙面和天花板。这个封闭空间看起来就像一个放大的学生用的方格纸笔记本。高中部中心的不同位置都使用了相同的图案。

© W Workspace
The 'library' occupies two floors of the new building, connected by copper laminated staircases and bridges, diagonally spanning over the double height workspace. The total area of the library is 864 square meters. The main exterior elements of this building are brick walls. Therefore, Onion decided to introduce orange bricks into the indoor space. Copper laminates have a shiny effect, forming a sharp contrast with the matte texture of bricks.
“图书馆”占据了新楼的两层楼,由铜层压楼梯和桥梁连接,斜跨于双层高的工作空间之上。图书馆总面积为 864 平方米。这栋建筑的外墙元素主要是砖墙。因此,Onion 决定将橙色砖块引入室内空间。铜层压板具有闪亮效果,与砖块的哑光质感形成鲜明对比。

© W Workspace

平面图

© W Workspace
The arrangement of furniture allows students to choose their preferred sitting posture and working style. Students can sit by the window and overlook the city, or sit on the bridge and overlook the rest of the library. The design team has designed 175 group seats, equipped with tables, chairs or sofas. There are also 5 study and meeting rooms available for group discussions.
家具的布置让学生可以选择自己喜欢的坐姿和工作方式。学生可以坐在窗边眺望城市,也可以坐在桥上俯瞰图书馆的其余部分。设计团队设计了 175 个团体座位,配有桌椅或沙发。还有 5 个学习和会议室供小组讨论使用。

© W Workspace
There is a personal reading space on the first floor of the library near the entrance, reception desk, and bookshelves, with a maximum collection of 11200 books. The reading table is separated by a glass wall, and the design team has covered the glass with a layer of white film for the privacy and safety of students. The film gradually transitions from opaque at the bottom to transparent at the top, and only the silhouette of reading and learning can be seen from the outside.
图书馆一楼靠近入口、接待台和书架的位置设有个人阅读空间,最大藏书量为 11200 本。阅读桌由玻璃墙隔开,设计团队为了学生的隐私和安全,在玻璃上覆盖了一层白色薄膜。薄膜从底部的不透明渐变到顶部的透明,从外面只能看到阅读和学习的身影轮廓。

© W Workspace