Davos School Renovation/CURA Architekten
达沃斯学校改造 / CURA Architekten
可持续与创新并存:这座达沃斯学校的改造项目,其核心在于对现有资源的巧妙利用和可持续设计的深度践行。 放弃拆除重建的传统方案,转而采用“修旧如新”的策略,是项目最为出彩之处。通过在原有建筑的基础上扩建,最大限度地保留了原有结构的“能量”和历史价值。 外壳的包裹和内部的木结构扩建,不仅满足了功能上的需求,更在视觉上赋予了建筑新的生命力。这种设计理念是对环境负责任的体现,也是对建筑领域可持续发展趋势的积极回应,显示了设计师对环境保护的高度重视和对建筑材料的深刻理解。
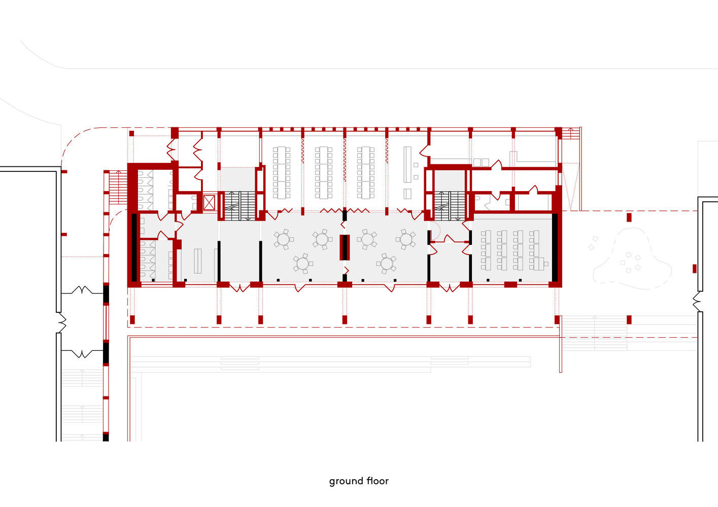
空间与功能的完美融合:设计巧妙地在现有建筑的基础上增加了新的功能空间。 通过扩建和加层,满足了学校对集会厅、餐厅等空间的需求,同时在内部创造了一个中央交流中庭,将新旧建筑巧妙地连接起来。这种设计手法不仅增加了建筑的实用性,还提升了建筑的整体美学价值。 中央中庭的设计,为学生提供了丰富的活动空间,同时也增强了建筑的采光和通风效果,体现了设计师对学生使用体验的深入思考。多功能走廊区域的设计,也为学生提供了多元的学习和休息选择,丰富了传统的学校运营模式,真正实现了空间与功能的完美融合,提高了学生的体验感和舒适度。
材料与技术的和谐统一:项目在材料的选择上展现了对可持续性和地域性的深度思考。 全新的扩建部分大量采用了木材,不仅赋予了建筑温暖的质感,更实现了对二氧化碳的长期储存,这与现有建筑的混凝土结构形成了鲜明对比,凸显了新旧材料的对话。 同时,项目采用了“低技术”的设计理念,避免了复杂控制通风系统,通过自然通风和交叉通风来实现室内空气流通,降低了能源消耗。 地热系统和光伏模块的应用,进一步提升了建筑的能源效率。这种材料与技术的有机结合,充分体现了设计师对可持续建筑的深刻理解和实践能力,为未来的建筑设计提供了有益的参考。

© Daisuke Hirabayashi

© Daisuke Hirabayashi
The school complex located in Davosplatz is transitioning its operational model to a day care structure, thus requiring additional space for a meeting hall, cafeteria, administrative office, and extra classrooms. Therefore, the original plan was to demolish the existing buildings built in the 1960s to construct a new ecological building. But in order to preserve the existing energy, a solution that combines with the existing building has been proposed, which is to expand the long side of the existing building and add one floor to meet the increasing demand of the project.
位于达沃斯普拉茨的学校建筑群正将其运营模式转变为日间照料结构,因此需要一个集会厅、餐厅、行政办公室和额外教室的额外空间。为此,原本计划拆除 20 世纪 60 年代建造的现有建筑,以建造一座新的生态建筑。但为了保留既有能量,提出了一个与现有建筑相结合的解决方案,即在现有建筑的长边进行扩建,并增加一层,以满足项目日益增长的需求。

© Daisuke Hirabayashi

地面层平面图

© Daisuke Hirabayashi
For this purpose, the design team placed a new structure on top of the entire existing building and completely surrounded it with a new shell that meets both insulation requirements and pursues new aesthetic standards. From the appearance, this hybrid building appears to be a new building, but in reality, 40% of its volume is composed of existing structures.
为此,设计团队在整个现有建筑之上放置了一个新结构,并用一个新的外壳将其完全包围,这个外壳既满足了保温要求,又追求了新的美学标准。从外观上看,这座混合建筑似乎是一座新建筑,但实际上,其 40% 的体积是由现有结构构成的。

© Daisuke Hirabayashi

© Daisuke Hirabayashi
The expansion section is constructed using an efficient wooden grid structure based on the existing building's wall axis. The third layer added above the old roof is supported by the expansion on the side, which means it will not cause additional load on the existing structure. The public area on the first floor faces the covered school playground, while the classrooms and offices upstairs are arranged around a central communication atrium. Combined with the multifunctional corridor area, this provides students with various personal learning and rest options, enriching traditional school operations in multiple ways. The expansion of the school playground allows classrooms to be located away from the core area, creating a central circular route within the building. At each level of the atrium, players can switch between existing and new buildings in a game like manner.
扩建部分采用高效的木网格结构建造,该结构基于现有建筑的墙体轴线。在旧屋顶上方增加的第三层通过侧面的扩建部分进行支撑,这意味着不会对现有结构造成额外的负荷。一楼公共区域面向有顶棚的学校操场,而楼上的教室和办公室则围绕着一个中央的交流中庭进行布置。与多功能走廊区域相结合,这为学生提供了各种个人学习和休息的选择,以多种方式丰富了传统的学校运营。向学校操场的扩建使得教室可以远离核心区域,从而在建筑内部形成了一条中央圆形路线,在每层中庭都可以在游戏般地在现有建筑和新建建筑之间切换。

© Daisuke Hirabayashi

中庭剖面图

© Daisuke Hirabayashi
All new expansion sections are constructed with wood, which means the building has the function of long-term storage of carbon dioxide. Due to the sturdy existing structure having sufficient thermal mass, achieving efficient heat storage in the new lightweight structure is not a problem. For all newly constructed parts of the building, emphasis is placed on using local and renewable building materials. The open wooden structure, heavy wool sound-absorbing wood ceiling, and cork flooring create a warm atmosphere, which contrasts sharply with the existing building's heavy concrete structure. Therefore, the design team intentionally distinguished between new and old components so that students could see the renovation process.
所有新的扩建部分均采用木材建造,这意味着该建筑具有长期储存二氧化碳的功能。由于坚固的现有结构具有足够的热质量,因此在新的轻型结构中实现高效蓄热是不成问题的。对于建筑的所有新建部分,都着重使用了当地和可再生的建筑材料。开放式木结构、厚重的羊毛吸音木天花板和软木地板营造了一种温馨的氛围,与现有建筑的厚重混凝土结构形成了鲜明对比。因此,设计团队有意区分了新旧构件,以便学生能够看到改造过程。

© Daisuke Hirabayashi
The overall low tech concept allows for the avoidance of using controlled ventilation systems. All study and work areas can achieve cross ventilation by opening windows leading to the outside and windows in the central atrium. This nine meter high room leads to a rooftop garden and functions like a natural chimney. The energy demand of buildings is provided by geothermal systems and photovoltaic modules.
整体低技术概念使得可以避免使用受控通风系统。所有学习和工作区域都可以通过打开通向室外的窗户和中央中庭的窗户来实现交叉通风。这个九米高的房间可以通向屋顶花园,起到了类似自然烟囱的作用。建筑的能源需求由地热系统和光伏模块提供。

© Daisuke Hirabayashi