Turkayamjar International School/Studio Sacred Geometry
Turkayamjal 国际学校 / Studio Sacred Geometry
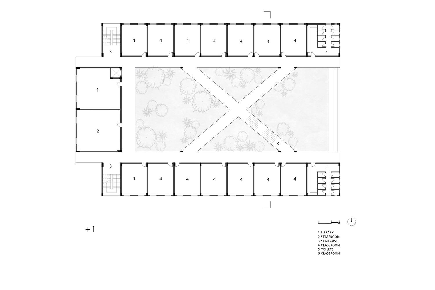
空间与自然的和谐统一: Turkayamjal国际学校的设计核心在于创造一个与自然紧密相连的学习环境。建筑师巧妙地运用U型布局,最大化地营造了绿意盎然的庭院空间,让孩子们亲近自然。这种设计理念超越了传统学校建筑的封闭性,鼓励学生在不同尺度的空间中探索和体验。项目对光线的运用也值得称道,穿孔砖艺术的应用不仅美化了楼梯间,更创造了斑驳的光影效果,增强了空间的趣味性和舒适度。此外,走廊的设计也别具匠心,它作为室内外空间的过渡,通过展示学生作品和引入热带植被,营造出充满活力且亲近自然的学习氛围。
传统与现代的融合: 项目最引人注目的亮点之一是其建筑立面,它完美地融合了传统砖砌工艺与现代设计语言。精致的砖雕图案和几何元素是对当地传统手工艺的致敬,也展现了设计师对当代审美的理解。立面采用深浅不一的凹槽设计,与大面积玻璃面板相互映衬,创造出独特的视觉效果,象征着传统与创新的平衡。这种设计不仅赋予了学校独特的身份标识,也传递了对当地文化遗产的尊重。这种对材料的精心选择和对细节的极致追求,使得建筑本身成为一件艺术品,激发了人们对建筑的兴趣和欣赏。
可持续与本土化的实践: Turkayamjal国际学校的设计充分体现了可持续发展的理念。项目大量使用了当地材料,例如砖块,这不仅降低了建筑成本,也减少了环境负担,同时使建筑与周围环境融为一体。此外,开放的空间设计、一体化的绿化和对自然采光与通风的巧妙利用,都体现了“生物亲和设计”的原则。这些设计策略营造了一个舒适、健康的学习环境,同时也节约了能源,减少了对环境的负面影响。项目在应对城市化挑战的同时,也兼顾了对当地文化和自然环境的尊重,为未来的教育建筑提供了有益的借鉴。

© Vivek Eadara

© Vivek Eadara
Background - With the rapid development of urbanization, the main urban area of Hyderabad continues to expand eastward, which also prompts Turkayamjal International School to expand in a new environment. The architectural design of this school is a powerful example of how educational spaces can be transformed into nurturing environments that foster creativity, community, and sustainability through careful spatial planning and material utilization.
背景——随着城市化的快速发展,海得拉巴的主要城区不断向东扩展,这也促使 Turkayamjal 国际学校在新的环境中进行扩建。该学校的建筑设计是一个强有力的例证,展示了如何通过周密的空间规划和材料运用,将教育空间转变为有利于培养创造力、社区感和可持续性的滋养环境。

© Vivek Eadara
Concept - The project adopts a simple U-shaped layout to meet functional requirements, while creating as much green courtyard space as possible, allowing children to get close to nature and enjoy unique experiences in spaces of different scales. The design cleverly integrates functional spaces with nature and local architectural traditions, creating a vibrant and warm environment.
概念——该项目采用简单的 U 型平面布局以满足功能需求,同时尽可能多地创造绿意盎然的庭院空间,让孩子们能在不同尺度的空间中亲近自然,享受独特的体验。设计巧妙地将功能空间与自然及当地建筑传统融为一体,营造出一个既充满活力又温馨宜人的环境。

© Vivek Eadara
Space Design - The building facade serves as a striking visual focal point, cleverly combining traditional brick masonry techniques with modern aesthetics. The exquisite brick carving patterns and geometric elements not only pay tribute to local traditional craftsmanship, but also showcase contemporary design thinking. The grooves of varying depths complement the large glass panels, creating a solid and transparent rhythm that symbolizes the balance between tradition and innovation. This facade not only serves a protective purpose, but also becomes an expression of the school's unique identity.
空间设计——建筑立面作为引人注目的视觉焦点,将传统砖砌工艺与现代审美巧妙结合。精致的砖雕图案和几何元素既是对当地传统技艺的致敬,也展现了当代设计思维。深浅不一的凹槽与大块玻璃面板交相辉映,形成坚实与透明的节奏,象征着传统与创新之间的平衡。这一立面不仅起着保护作用,更成为了学校独特身份的表达。

© Vivek Eadara
The staircase cleverly utilizes perforated brick art, allowing sunlight to penetrate in the form of mottled light and shadow. This design element not only enhances the aesthetic charm of the space, but also ensures optimal ventilation and thermal comfort.
楼梯间巧妙运用了穿孔砖艺术,让阳光以斑驳的光影形式透入。这一设计元素不仅提升了空间的美学魅力,还确保了最佳的通风效果和热舒适度。

© Vivek Eadara

二层平面图

剖面图

© Vivek Eadara
Corridor - In this project, the corridor becomes the central stage for the integration of indoor and outdoor elements. The corridor serves as a buffer zone, reducing direct sunlight indoors and controlling heat gain and glare by blocking sunlight.
走廊——在该项目中,走廊成为了室内与室外元素交融的中心舞台。走廊作为缓冲区,减少了室内的阳光直射,通过阻挡阳光来控制热量增加和眩光。

© Vivek Eadara

© Vivek Eadara
The brick walls are embellished by the entrance of the classroom, displaying students' lively art works on the walls, making the corridor a lively and practical central axis of the school. Adjacent to it is dense tropical vegetation, providing a natural barrier that creates a peaceful atmosphere while improving air quality. This design promotes connection with the natural world and creates a rich and colorful environment for learning and exploration.
砖墙被教室入口所点缀,墙上展示着学生生动活泼的艺术作品,使走廊成为学校生动且实用的中轴线。紧邻其旁的是茂密的热带植被,提供了一道天然屏障,营造出宁静的氛围,同时改善空气质量。这一设计促进了与自然界的联系,为学习和探索创造了一个丰富多彩的环境。

© Vivek Eadara
This school is a model of contemporary educational architecture. Using local materials such as bricks not only aligns the design with the environment, but also ensures durability and sustainability. The open space, integrated greening, and creative use of light and ventilation embody the principles of biological affinity design, creating a comfortable learning environment.
这所学校是当代教育建筑的典范。使用当地材料如砖块,不仅使设计与环境相契合,还确保了耐用性和可持续性。开放空间、一体化绿化以及对光线和通风的创造性运用,体现了生物亲和设计的原则,营造了一个舒适的学习环境。

© Vivek Eadara