Garden house/HIBINOSEKEI+Youji no Shiro+Kids Design Labo
园舍 / HIBINOSEKKEI + Youji no Shiro + Kids Design Labo
因地制宜的卓越设计:该项目最引人注目的亮点在于其对场地地形的巧妙利用和尊重。面对7米的高低落差,设计师没有选择大刀阔斧的平整,而是顺应地势,将建筑布局与地形完美融合。这种设计理念不仅减少了土方工程量,降低了环境负荷,更重要的是,它创造了独特的游戏空间。建筑师将坡地转化为孩子们自由玩耍、探索的自然“游乐场”,将挑战转化为机遇。这种设计策略体现了对环境的尊重,以及对孩子们身心健康发展的深刻理解,将建筑设计提升到了一个新的高度,展现了可持续发展和以人为本的理念。
街道景观的诗意再现:该项目的精髓在于其将当地街道景观融入儿童日常生活的尝试。设计师从深堀町的狭长街道中汲取灵感,将连廊设计成充满趣味性的攀爬空间,鼓励孩子们自由探索、玩耍。这种设计不仅仅是物理空间的塑造,更是对当地文化和历史的致敬。园舍内外一体化的布局,也为孩子们提供了更加丰富和自由的活动空间。更令人赞叹的是,设计师将长崎当地的色彩元素巧妙地融入到建筑的内外装饰中,让孩子们在潜移默化中感受本土文化。这种设计手法让建筑不仅仅是幼儿园,更像是一个承载着文化记忆的场所。
融合自然的创新理念:该项目的核心价值在于其对自然环境的尊重和对儿童身心发展的关注。设计师将庭院设计成起伏的“山地”,让孩子们在其中体验如同在大自然中玩耍的乐趣。建筑师利用地形特征,创造出多层次、多角度的游戏空间,激发孩子们的探索欲和创造力。这种设计理念摆脱了传统幼儿园的束缚,将室内外空间有机结合,为孩子们提供了更多元化的活动选择。通过这种设计,孩子们可以亲密接触自然,感受城市景观,在自由、开放的环境中茁壮成长。整个项目体现了建筑设计与环境和谐共生的理念,为未来幼儿园的设计提供了宝贵的参考。

© 井上隆司

© 井上隆司
The garden house is located in Fukori cho, Nagasaki City, Nagasaki Prefecture. This coastal town has prospered and developed since ancient times due to its fishing and shipbuilding industries, and its historical culture is still deeply engraved in the street landscape to this day. The terrain in this area is undulating, and residential buildings are built along the roads, forming a unique style with scattered streets and alleys. The aim of this project is to integrate the "street landscape" of Fukori Town, which coexists with nature, into the daily lives of children.
园舍位于长崎县长崎市深堀町。这座临海小镇自古以来因渔业和造船业而繁荣发展,其历史文化至今仍深深镌刻在街道景观之中。该地区地势起伏较大,民居沿道路而建,错落有致的街巷形成了独特的风貌。本项目旨在将深堀町与自然共生的“街道景观”融入孩子们的日常生活。

© 井上隆司
The height difference of the project location is nearly 7 meters, and the terrain features with slopes are very obvious. Generally speaking, sloping terrain is often seen as a design challenge. However, this project fully utilizes the terrain features, follows the layout of buildings according to the terrain, minimizes excavation to the greatest extent possible, and reduces the amount of earthwork transportation to reduce carbon dioxide emissions and environmental load. By designing according to local conditions, create a unique gaming space.
项目所在地的高低落差近 7 米,带有斜坡的地形特征十分明显。一般而言,斜面坡地常被视为设计上的挑战。然而,本项目充分利用地形特征,顺应地势布局建筑,最大限度减少挖掘,同时降低土石方运输量,以减少二氧化碳排放,降低环境负荷。通过因地制宜的设计,打造出独一无二的游戏空间。

© 井上隆司

© 井上隆司
The garden house consists of three parts: two buildings located above and below the slope, and a connecting corridor connecting them. The courtyard is designed to conform to the shape of the slope, with undulating terrain resembling a natural mountain environment. Inspired by the narrow streets of Fukori cho, the corridor is designed as a space with large staircases and mesh climbing facilities. Children can freely climb and run in the undulating courtyards, large stairs, and mesh climbing facilities like wild mountains, explore creative ways of play, and promote physical growth. In terms of overall spatial design, an integrated layout of indoor and outdoor has been achieved, making the game space more three-dimensional and fluid.
园舍由位于坡地上方与下方的两栋建筑及连接它们的连廊三部分构成。顺应坡地形态打造的庭院,拥有宛如山间自然环境般的起伏地势。受深堀町狭长街道的启发,连廊设计为具有大阶梯和网状攀爬设施的空间。孩子们可以在野山一样起伏不平的庭院、大阶梯、网状攀爬设施间自由攀爬奔跑,探索创造性的游戏方式,促进身体成长。整体空间设计上,实现了室内外一体化的布局,使游戏空间更加立体且富有流动性。

© 井上隆司

© 井上隆司

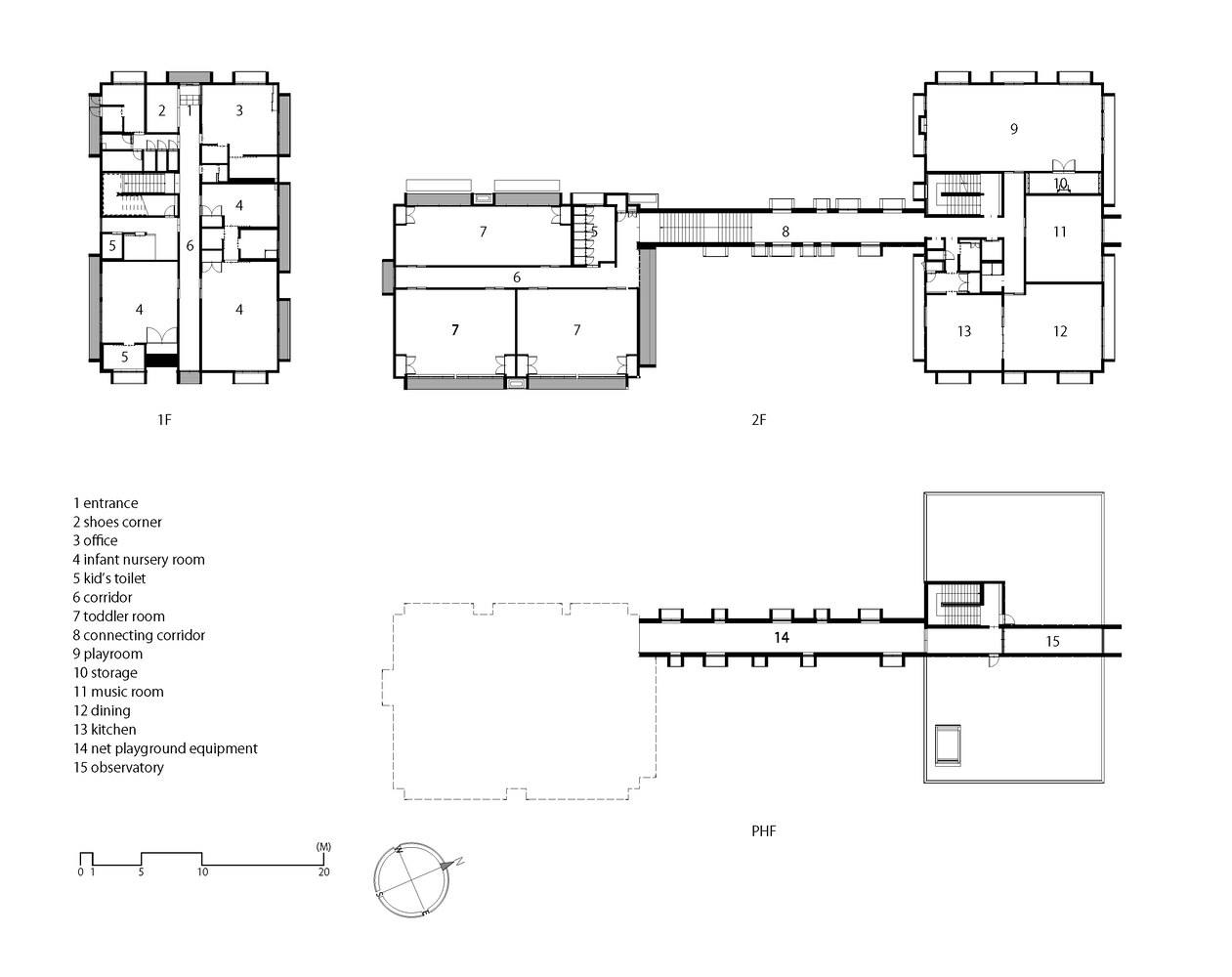
平面图

© 井上隆司
The exterior walls, interior materials, and furniture all use colors that symbolize Nagasaki. For example, the blue color symbolizing the port, the brick red color carrying the imprint of foreign culture, and the color of the historic stone road. Standing high in the courtyard, one can take in the panoramic view of the azure sea and the cityscape of Fukahori Town. Children can experience the street scenery and cultural atmosphere of Fukori cho in the daily life of the kindergarten filled with various local elements. The kindergarten fully utilizes the terrain and cultural characteristics of Fukori cho, providing children with an environment where they can have intimate contact with nature and urban landscapes and grow freely.
外墙、内饰材料及家具均采用象征长崎的色彩。例如,象征港口的蓝色、承载异国文化印记的砖红色,以及历史悠久的石板路色彩。站在庭院高处,蔚蓝大海和深堀町的街景尽收眼底。孩子们能在充满当地各种要素的园舍日常生活中感受深堀町的街道景观与文化氛围。园舍充分利用深堀町的地形与文化特色,为孩子们提供了一个与自然和城市景观亲密接触、自由成长的环境。

© 井上隆司