Marise Bastille High School Reconstruction Project/Tectoniques Architects
玛丽塞·巴斯蒂耶中学重建工程 / Tectoniques Architects
项目改造策略: 玛丽塞·巴斯蒂耶中学重建项目最令人印象深刻的是其对原有建筑的深刻理解和巧妙改造。项目并非简单推倒重建,而是充分利用现有建筑的框架和结构,通过加建、改造和重新组织,赋予其新的生命力。设计团队首先清理了多余的增建部分,恢复了原有建筑的清晰结构。 随后,扩建部分采用与原有建筑相同的建筑体系,在东西两侧进行延伸,从而使得整个建筑群的功能和空间关系更为清晰。这种“修旧如旧”的策略,不仅节约了资源,也保留了建筑的历史文脉,体现了可持续发展的设计理念。 项目对原有建筑的尊重,以及对功能的重新定义,是其核心价值所在。
空间组织与功能整合: 该项目在空间组织和功能整合方面展现了卓越的设计功底。设计团队通过重新定位入口大厅和庭院,优化了流线,提升了整体的视觉体验。特别是中庭的设计,它像一个“万向接头”,连接了建筑的各个部分,成为了整个建筑的核心和枢纽,为建筑内部提供了更好的导向功能。同时,通过将原有的混凝土结构暴露出来,配合木质扩建部分的运用,形成了一种新旧对话的视觉效果,增加了空间的层次感和趣味性。这种空间设计不仅改善了学校的交通流线,也提升了学生的学习和活动体验,打造了一个更具活力和吸引力的校园环境。 空间叙事的运用,使建筑本身充满了故事性。
可持续设计与材料运用: 该项目在可持续设计和材料运用方面也达到了较高的水准。 项目采用了本地材料,尤其是木纤维外墙保温材料,极大地提高了建筑的保温性能, 降低了能源消耗。 预制化建筑方式的使用, 减少了施工对环境的干扰, 同时也适应了分阶段施工的要求。 外立面采用绿色的竖向锁缝铝板和木材覆层,与周围环境相协调,并呼应了当地的自然特色,体现了对地域文脉的尊重。 悬挑的遮阳板设计,不仅提供了遮阳功能,也为建筑增添了美感。 这些设计细节都体现了设计团队对环境保护的关注,以及对建筑与环境和谐共生的追求,使得该项目成为一个典范的可持续建筑案例。 材料与工艺的创新,是其可持续性的重要体现。

© Maxime Verret

© Maxime Verret
This existing college was designed and built by Jouven and Phelouzat in 1974 (they also designed a nearby hospital), located in the southwest outskirts of the city center, in a suburban area that combines facilities, commercial parks, multi family homes, and single family homes. The college consists of several buildings arranged in an orthogonal system, which are completely unrelated to the surrounding environment. This functionalist style building was poorly maintained and is now in a state of disrepair. The scattered layout of the buildings and subsequent additions make the entire complex difficult to identify and dysfunctional. This existing college is a microcosm of the heritage of ordinary architecture in the 1970s. It is imperative to transform it to address contemporary environmental challenges. This means that it needs to be viewed from a new perspective, as a heritage that needs to be cared for and a resource that can be utilized, rather than a blank sheet of paper. In addition to carrying out standard renovations and updating the heating system of the building, the project also aims to clarify the layout and functional planning of the entire site to alleviate congestion in this school that can accommodate 550 students, while expanding its capacity to 600 people. The project strategy must also take into account the land requirements for site construction, therefore it needs to be carried out in stages.
这座现有学院于 1974 年由茹文(Jouven)和费卢扎(Phelouzat)设计建造(他们还设计了邻近的医院),位于市中心的西南郊外,地处一个融合了设施、商业园区、多户住宅和独户住宅的郊区地带。学院由几栋建筑组成,这些建筑按正交系统排列,与周边环境毫无关联。这种功能主义风格的建筑维护不善,如今已破败不堪。建筑的分散布局以及后续的增建,使得整个建筑群难以辨识且功能失调,这座现有学院是 20 世纪 70 年代普通建筑遗产的一个缩影。为应对当代环境挑战,对其进行改造已势在必行。这意味着需要以全新的视角看待它,将其视为需要呵护的遗产、一种可利用的资源,而非一张白纸。除了对建筑进行达标改造和更新供暖系统外,该项目还旨在理清整个场地的布局形式和功能规划,以缓解这所可容纳 550 名学生的学校的拥堵状况,同时将其容量扩大至 600 人。项目策略还必须考虑到场地施工的用地需求,因此需要分阶段进行。

© Maxime Verret

轴测图

© Maxime Verret
Tectonique aims to restore it, excavate and demonstrate the rationality of the existing building system. Therefore, the new image is not a preconceived idea, but the result of practice. This intervention aims to resolve the complexity caused by the layout of existing buildings, in order to achieve long-term optimal operational results. This goal is achieved through the simplicity and directness of architectural and structural features. Firstly, the design team removed multiple subsequent additions. Subsequently, the expansion project adopted the same system as the original building and extended eastward, adding a teaching building and a semi dining facility area; Simultaneously extending westward, reconnecting the previously isolated SEGPA (Special Educational Needs and Learning Disabilities Support Division) region. In addition, the entire building has been raised by one floor to add more classrooms. This re planning establishes clear hierarchical relationships between buildings with similar functions, creating a more unified and coordinated whole.
Tectonique 公司旨在对其进行修复,发掘并展现现有建筑体系的合理性。因此,新形象并非预设的构想,而是实践的结果。此次干预旨在化解既有建筑布局所带来的复杂性,以实现长期最优化的运营效果。这一目标通过建筑与结构特征的简洁性和直接性得以达成。首先,设计团队移除了多处后续增建的部分。随后,扩建工程采用与原有建筑相同的体系向东延伸,增设教学楼和半膳设施区域;同时向西延伸,重新连接此前被孤立的 SEGPA(特殊教育需求与学习困难学生支持部)区域。此外,建筑整体加高了一层,以增设更多教室。这一重新规划在原本功能相近的建筑之间建立了清晰的层级关系,打造出一个更为统一、协调的整体。

© Maxime Verret

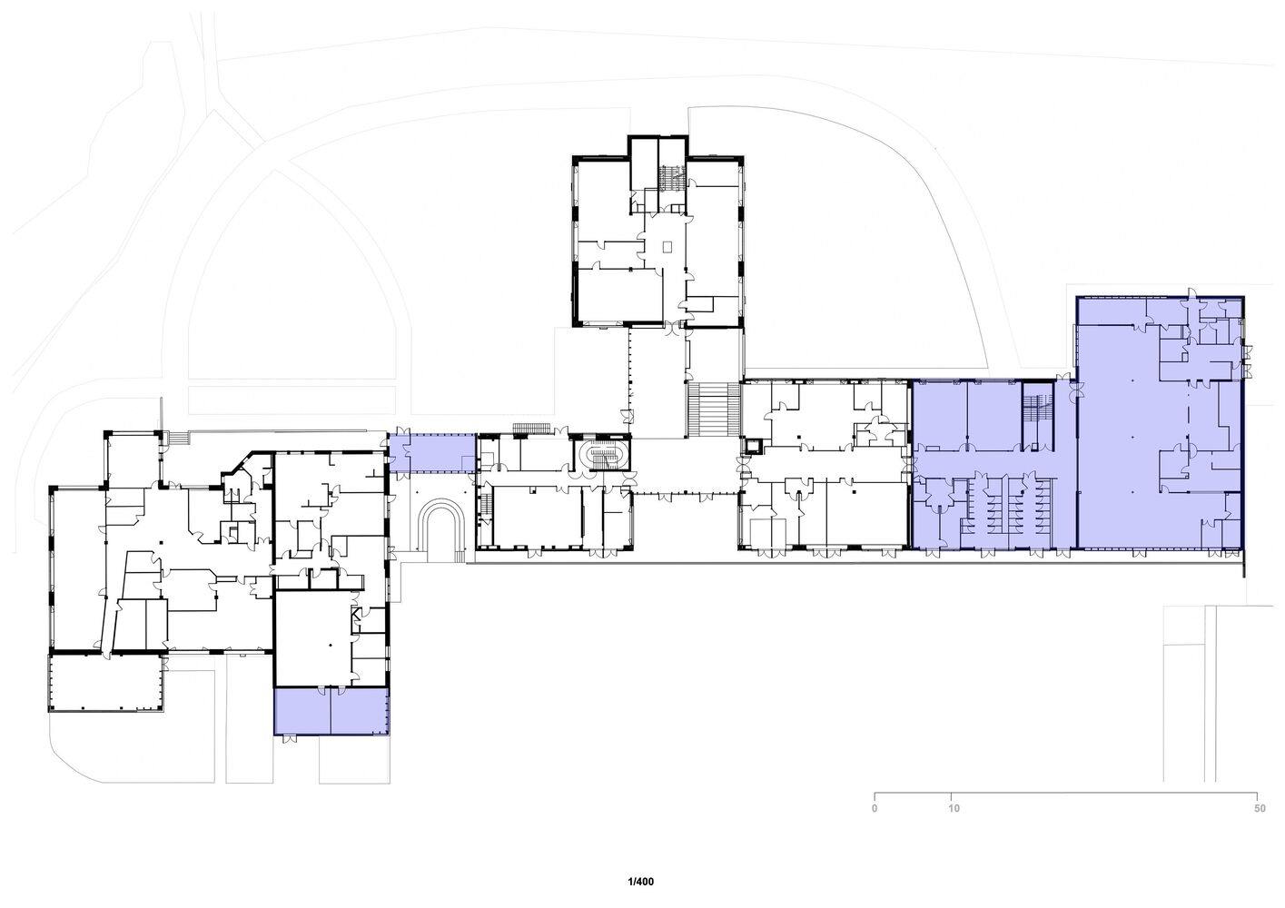
一层平面图

© Maxime Verret
The courtyard has been relocated to the south side, facing the town, where there is a new vestibule square with a sunshade that can also serve as a bicycle parking area. The entrance hall has been repositioned along the axis and placed at the center of the floor plan, redefining the clear flow sequence for entering from public spaces. The entrance hall leads to a spacious atrium, which features a grand staircase that leads directly to the expanded Cultural and Knowledge Center on the north side of the building (Phase III project). This space redefines the core position of this dispersed architectural complex. It is like a universal joint, connecting the various wing buildings of the building, and due to its openness and height facing the landscape, it provides better guidance function for the interior of the building. The exposed building structure displays the juxtaposition of different construction periods. The existing building is constructed using the "Stribick" prefabrication process, based on the concrete floor box components previously hidden beneath the false ceiling. These box shaped components have undergone sandblasting treatment. Exposing this structure not only creates a unique atmosphere and enhances the thermal inertia of the building, but also makes the construction method of the building clear at a glance. The existing building framework is envisioned as a generation system for the expansion section. The newly constructed part reinterprets the grid floor design of the original building with the same proportion of wood solution. The association between these two construction methods blurs the boundary between old and new.
庭院已被重新安置到南侧,即面向城镇的一侧,此处设有一个新的前庭广场,广场上带有遮阳棚,该遮阳棚同时也可作为自行车停放区。入口大厅已沿轴线重新定位,置于平面图的中心位置,重新界定了从公共空间进入的清晰动线序列。入口大厅通向一个宽敞的中庭,中庭内设有一座宏伟的阶梯式楼梯,该楼梯直接通向建筑北侧扩建的文化与知识中心(第三阶段工程)。这一空间重新界定了这座分散建筑群的核心地位。它如同一个万向接头,连接着建筑的各个翼楼,且因其面向景观的开放性和高度,为建筑内部提供了更好的导向功能。暴露在外的建筑结构展现了不同建造时期的并置。现有建筑采用 “Stribick” 预制工艺建造,基于此前隐藏在假天花板下方的混凝土楼板箱型构件。这些箱型构件已进行喷砂处理。将这一结构暴露出来,不仅营造了独特的氛围,增强了建筑的热惰性,还让建筑的建造方式一目了然。现有建筑框架被设想为扩建部分的生成系统。新建部分以相同比例的木材解决方案重新诠释了原有建筑的方格楼板设计。这两种建造方法之间的关联模糊了新旧之间的界限。

© Maxime Verret

剖面图及立面图

© Maxime Verret
This project is based on an ambitious environmental protection concept that advocates for using locally sourced materials. Thanks to the use of wood fibers for external insulation treatment, the insulation performance of this project has been significantly improved. The construction method that uses wood as the main building material and prefabricates most of the components not only minimizes construction interference, but also provides an appropriate solution to the problem of phased construction on occupied land. The exterior of the building is covered with green vertical seam aluminum panels, reminiscent of the metal mountain walls and local forest features of the Jura region. The south facing facade has been beautified with large sun visors suspended from a slender metal structure. These cantilevered structures not only protect the exterior facade, but also provide shelter for the external longitudinal corridors. The appearance composed of horizontal stripes alternates between aluminum panels and wood cladding, interspersed with wide windows. This new building envelope integrates the existing building with the newly constructed part.
该项目基于一项雄心勃勃的环境保护理念,该理念倡导就地取材。得益于采用木纤维进行外部隔热保温处理,该项目的保温性能已得到大幅提升。以木材为主要建材且大部分构件预制化的建筑方式,不仅最大限度减少了施工干扰,也是应对在已占用场地上分阶段施工难题的恰当方案。建筑外立面覆盖着绿色竖向锁缝铝板,让人联想到汝拉地区的金属山墙以及当地的森林特色。南向外立面通过从纤细金属结构上悬挂的大型遮阳板进行了美化。这些悬挑结构既保护了外立面,又为外部纵向走廊提供了遮蔽。水平条带构成的外观在铝板和木材覆层之间交替变换,其间穿插着宽大的窗户。这一全新的建筑围护结构将现有建筑与新建部分融为一体。

© Maxime Verret