Kyoto University of the Arts Cursive Library/Takenaka Corporation
京都艺术大学草书馆 / Takenaka Corporation
设计理念与功能性:该项目最突出的亮点在于其设计理念与功能性的完美结合。设计者深入研究了京都艺术大学学生的日常行为模式,将“注入活力”作为核心目标,并巧妙地将开放空间、室外楼梯、遮阳区域等元素融入设计。这种设计并非仅仅停留在视觉层面,而是旨在促进学生之间的互动,激发创造力。建筑师将对校园生活的记忆融入到四层楼的建筑中,创造一个学生可以深深扎根大学回忆的地方。这种设计理念既体现了对教育本质的深刻理解,也为建筑赋予了独特的生命力,将建筑本身打造成了激发灵感、促进交流的场所。
空间布局与材料运用:项目在空间布局和材料运用方面展现出高超的专业水平。建筑采用水平分层设计,公共空间、走廊和房间的简洁布局与主路平行,清晰明了。同时,垂直穿插的拱形砖墙打破了单调,增加了趣味性,并创造了视觉焦点和进入点。 材料的选择也颇具匠心,砖砌瓦面的运用既呼应了京都的传统建筑风格,又为建筑带来了温暖和亲切感。建筑中庭的巧妙设计,通透的玻璃砖天窗引入自然光,营造出开阔明亮的空间,与建筑外部的砖墙形成对比,创造了视觉冲击,也加强了建筑与环境的联系,营造了一种富有层次感的空间体验。
可持续性与社区性:该项目在可持续性和社区性方面也表现出色。建筑设计充分考虑了环境因素,例如,夏季利用地下楼层的冷空气,体现了对能源的合理利用。建筑东侧的公共空间设计旨在促进学生之间的交流与联系,并赋予他们归属感。东北部的退台设计,则创造了室内外之间的过渡空间,增强了建筑与自然的融合。这些设计元素共同营造了社区氛围,也体现了对社会责任的担当。建筑不仅是一个学习场所,更是一个凝聚人心、促进交流的社区中心,体现了建筑师对校园文化和未来发展方向的深刻思考,对当代校园建筑设计具有重要的启示意义。

© Taizo Furukawa

© Taizo Furukawa
The new academic building of Kyoto University of the Arts is located on Shirakawa Road across from its main campus, which is a major north-south transportation artery in Kyoto. There are many locally operated shops and residential areas around this building, and transportation is very convenient. The design of the cursive script building aims to inject vitality into the newly established departments of the school. This four-year art education program provides students with a place to learn, allowing them to share beautiful memories with other classmates and faculty, and cultivate a sense of belonging to this land.
京都艺术大学的新学术大楼坐落于其主校区对岸的白川路(Shirakawa Road)旁,白川路是京都一条主要的南北向交通要道。这座大楼周边有许多当地经营的商铺和住宅区,交通十分便利。草书馆大楼的设计旨在为该校新成立的院系注入活力。这个为期四年的艺术教育项目为学生们提供了一个学习场所,让他们能够与其他同学和教职员工共同留下美好的回忆,并培养对这片土地的归属感。

© Taizo Furukawa

© Taizo Furukawa
As an architect, the design concept of injecting vitality into this new teaching building stems from the lively and interesting interactions between students who create art through open space segments in the existing main campus, such as outdoor stairs leading to classrooms, shaded spaces near the entrance hall, and small recessed rooms that naturally become gathering points. We uphold the concept of spatial design coherence and connection with the outdoors, aiming to create a sense of community belonging and broaden our horizons, integrating memories of campus life into this four story building. We hope to create a place where students' college memories can deeply take root.
作为建筑师,为这栋新的教学楼注入生机活力的设计理念,源自于现有主校区中那些通过开放空间片段实现艺术创作的学生们之间生动有趣的互动,比如通往教室的室外楼梯、门厅附近有遮阳的空间,以及那些自然而然成为聚会点的小凹室。我们秉持空间设计连贯性、与户外建立联系的理念,旨在营造社区归属感,并拓展视野,将校园生活的记忆融入这栋四层建筑之中。我们希望打造一个能让学生的大学回忆深深扎根的地方。

© Taizo Furukawa
This four story brick and tile reinforced concrete building consists of three simple horizontal levels: public spaces, corridors, and rooms, which extend parallel to the main road Shirakawa Road. Taking this as the axis, the building is also vertically interspersed with brick walls with symbolic arches, which break the monotonous central corridor pattern and create entrances and exits, allowing people to glimpse the scenes of daily activities. The continuous arrangement of arches on the brick and tile surface creates a symbolic visual presentation. These intersections are connected to alleys leading to the streets, creating a cozy atmosphere for classrooms and restrooms, bringing a unique micro scale experience of a university campus.
这栋四层楼的砖砌瓦面钢筋混凝土建筑由三个简洁的水平层构成:公共空间、走廊和房间,这些楼层与主路白川路(Shirakawa road)平行延伸。以此为轴线,建筑中还垂直穿插着带有象征性拱门的砖砌墙面,这些拱门打破了单调的中部走廊格局,打造出进出的开口,让人得以一窥日常活动的场景。砖砌瓦面上连续排列的拱门设计,形成了一种具有象征意义的视觉呈现。这些交叉点与通往街道的小巷相连,为教室和洗手间营造出亲切的氛围,带来一种大学校园特有的微观尺度体验。

© Taizo Furukawa

© Taizo Furukawa

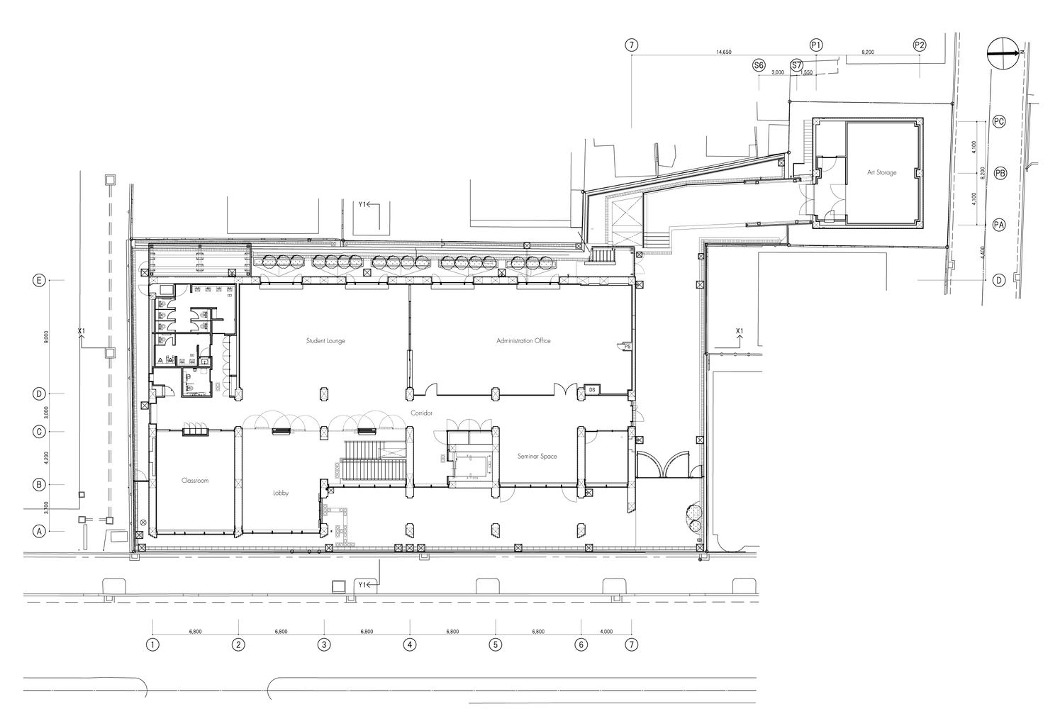
一层平面图

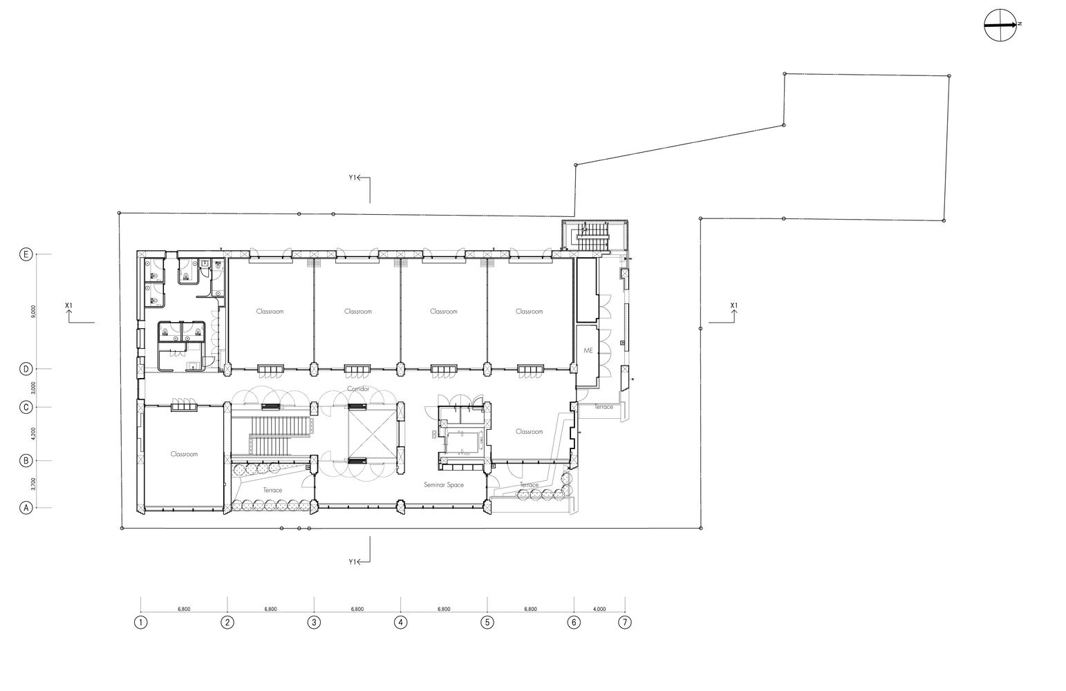
三层平面图

轴测图

© Taizo Furukawa
The design of the public space layer on the east side aims to promote students' unexpected encounters and give them a sense of connection and belonging to the collective. The core area of the building features a grand atrium that is four stories high, with a glass brick skylight at the top and interconnected brick walls inside and outside. The atrium serves as the main hub for student traffic, with soft indirect natural light from the skylight filling the entire space. In summer, cooled air from underground floors is introduced into the ventilation system to reduce external heat load; At the turn of seasons, the air handling units on each floor can switch to ventilation mode to introduce natural air. This design not only makes the atrium visually open and transparent, but also strengthens the connection between the building and the outside world.
东侧的公共空间层设计旨在促进学生的不期而遇,并赋予他们一种彼此相连、归属集体的感受。建筑的核心区域设有一个四层楼高的宏大中庭,其顶部配备玻璃砖天窗,且内部与外部的砖砌墙面相互连通。该中庭作为学生通行的主要枢纽,天窗透入的柔和间接自然光充盈着整个空间。夏季时,地下楼层冷却后的空气会被引入通风系统,以减轻外部热负荷;而在季节交替之际,各楼层的空气处理机组可切换至通风模式,引入自然空气。这一设计不仅让中庭在视觉上显得开阔通透,还强化了建筑与外界的联系。

© Taizo Furukawa

© Taizo Furukawa

剖面图

© Taizo Furukawa
Due to the limitations of the northern planning control line, the volume of the northeast part of the building was designed with a setback, forming small terraces that serve as transition areas between indoor and outdoor spaces. These terraces further enhance the connection between the building and nature, and provide informal gathering spaces. The venue is also connected to a small street perpendicular to Shirakawa Road, which serves as a friendly entrance to the underground bicycle parking area. This small campus building integrates the campus with nature, capturing the moments of interaction among students during their four years of college life and creating a sense of community belonging.
由于北部规划控制线的限制,建筑东北部的体量进行了退台设计,形成了小型露台,这些露台构成了室内与室外之间的过渡区域。这些露台进一步增强了建筑与自然的联系,并提供了非正式的聚会空间。场地还与一条垂直于白川路(Shirakawa Road)的小街相连,这条小街作为通往地下自行车停放区的友好入口。这座小型校园建筑将校园与自然融为一体,在学生四年的大学生活中,记录下他们互动的瞬间,并营造出一种社区归属感。

© Taizo Furukawa