Kalassa Senior High School Technical Learning Center/iredale pedersen hook architects
卡拉萨高级中学技术学习中心 / iredale pedersen hook architects
总体规划与文化融合:该项目最令人称道之处在于其对环境和文化的深刻尊重与融合。设计团队并没有简单地建造一个技术学习中心,而是精心制定了总体规划,将周围的古老景观和具有文化意义的遗址融入设计之中。这种策略不仅保留了现有的庭院布局,更将受到干扰的场地改造为社区聚会空间,未受干扰的场地则通过被动保护措施、艺术装置和文化阐释来丰富。这种对当地文脉的尊重,体现在对原住民文化遗产的关注,对现有地形地貌的利用,以及对社区参与的积极引导,使得该项目超越了单纯的建筑功能,成为连接历史、文化和未来的桥梁。
空间布局与可持续设计:该技术学习中心在空间布局和可持续设计方面展现出卓越的智慧。通过采用两层楼的建筑结构,设计在紧凑的占地面积内实现了功能的最大化整合,同时保留了宝贵的外部休闲活动空间。宽敞的中央风廊不仅连接了不同的功能区域,还巧妙地引导人们的视线,远眺古老山丘。在飓风频发和炎热半干旱气候的背景下,项目注重被动式设计,如遮阳、通风以及自然采光的最大化利用,并充分考虑了建筑结构的耐久性和抗风化能力。这些都体现了对气候适应性、环境保护和社会可持续发展的追求,为学校的长远发展奠定了坚实的基础。
材料创新与感官体验:项目的材料运用和感官体验是其点睛之笔。独特的砖材混搭设计,灵感来源于当地标志性的侵蚀峡谷,通过不同颜色砖块的堆叠,营造出丰富的质感和引人入胜的视觉效果。延伸的砖砌座椅,为人们提供了在自然凉爽环境中休憩、聚集与沉思的空间。空间设计也注重引导人们的视线,引入自然光线,营造出专注的学习环境。超大型的抽象化工具造型,色彩与机械设备相呼应,激发学生的创造力。东西向轴线及彩色入口的设计,更是将学生的视线引向远方,营造出充满活力和欢迎氛围,创造了一个兼具实用性与艺术性的学习空间。

© Peter Bennetts

© Peter Bennetts
Kalasa Senior High School is located in Zone D, which is a hurricane prone area with a hot and semi-arid climate. During regular hurricanes, it may experience heavy rainfall and strong winds. The school is located on an alluvial plain, backed by ancient hills. The water from the alluvial plain flows into the Nickel Bay and is connected to the Yabulala Cultural Heritage Trail, which includes indigenous sites of significant cultural significance along the trail.
卡拉萨高级中学位于 D 区,即飓风频发区,这里属于炎热半干旱气候,在常规飓风期间会遭遇强降雨和大风。学校坐落于一处冲积平原上,背靠古老山丘,该冲积平原的水流汇入尼克尔湾,并与亚布拉拉文化遗产步道相连,步道沿线包含具有重要文化意义的原住民遗址。

分析图
The design team has developed a master plan that focuses on the surrounding ancient landscapes and culturally significant sites while preserving the existing courtyard layout. Sites with significant cultural value have been identified in the plan and integrated into the design. The previously disturbed venues will be transformed into community gathering spaces, while the remaining undisturbed venues will be enriched and enhanced through passive protection measures, art installations, and cultural interpretations.
设计团队制定了一项总体规划,在保留现有庭院布局的同时,将重点引向周边古老的景观以及具有文化意义的遗址。规划中明确了具有重要文化价值的遗址,并将其融入设计之中。之前受到干扰的场地将被改造为社区聚会空间,而其余未受干扰的场地则将通过被动保护措施、艺术装置和文化阐释来加以丰富和提升。

© Peter Bennetts

© Peter Bennetts
This brand new technology learning facility is connected to the existing outdoor sports field, providing a sheltered viewing space, changing rooms, and a place for people to rest and cool off during exercise breaks. An existing rock depression has been transformed into a landscaped leisure space shared by the campus and the public.
这座全新的技术学习设施与现有的室外运动场地相连,提供了遮风避雨的观赛空间、更衣室,以及供人们在锻炼间隙休息纳凉的场所。一处现有的岩石洼地被改造成了校园与公众共享的景观化休闲空间。

© Peter Bennetts

© Peter Bennetts

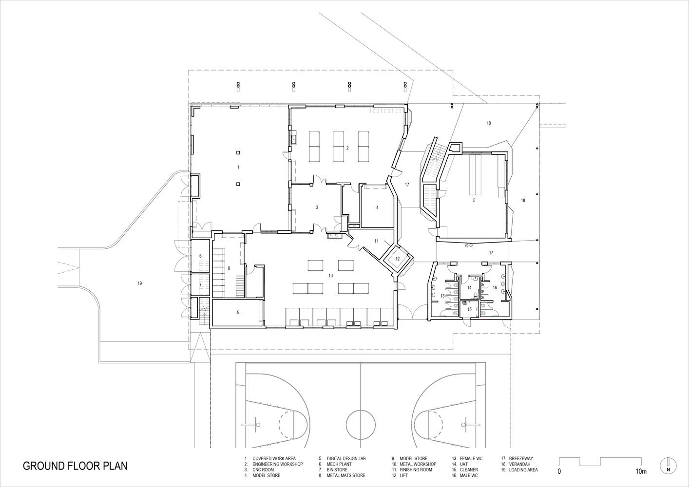
一层平面图

© Peter Bennetts
This technology learning facility includes multiple functional spaces that require comprehensive internal and external service support, good sound insulation separation, and passive safety monitoring measures. By adopting a two-story building layout, the facility achieves functional integration within a compact footprint, while not occupying valuable external leisure activity space. The economically efficient design scheme also makes it possible to add more external space. A spacious central windward corridor not only connects different functional areas, but also guides people's attention to the ancient hills in the distance.
这座技术学习设施包含多种功能空间,这些空间需要完善的内部与外部服务配套、良好的隔音分隔以及无源安全监控措施。通过采用两层建筑布局,该设施在紧凑的占地面积内实现了功能整合,同时未占用宝贵的外部休闲活动空间。经济高效的设计方案还使得增设更多外部空间成为可能。一条宽大的中央有顶风廊不仅连接了不同功能区域,还引导人们的视线聚焦于远处的古老山丘。

© Peter Bennetts
The unique brick mix and match design draws inspiration from the iconic erosion canyons in the area, such as the Karigini Canyon. Different colored bricks are stacked to create layers, shadows, and staggered effects, creating a rich texture and an eternal erosion image. The extended brick seats provide people with a space to rest, gather, and contemplate in a naturally cool environment.
独特的砖材混搭设计借鉴了当地标志性的侵蚀峡谷(如卡里吉尼峡谷)的风貌,运用不同颜色的砖块堆叠形成层理、阴影与错落有致的效果,营造出丰富的纹理感与一种永恒不息的侵蚀意象。延伸而出的砖砌座椅为人们提供了在自然凉爽环境中休憩、聚集与沉思的空间。

© Peter Bennetts

© Peter Bennetts

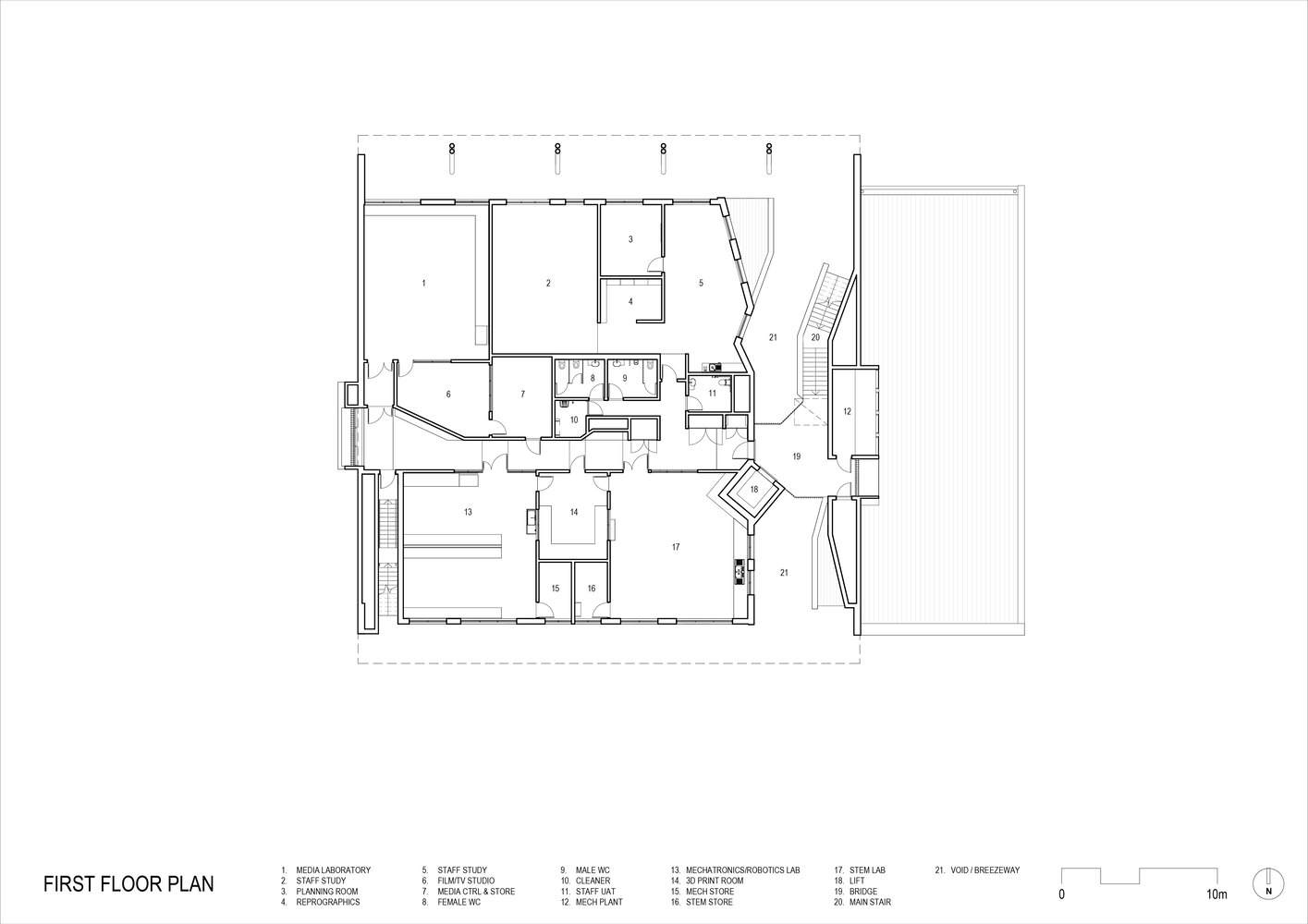
二层平面图

© Peter Bennetts
The design of all spaces focuses on directing people's gaze towards the surrounding landscape, creating a focused learning environment while introducing natural light. As German architect Hans Scharoun once said, "Young people crave enlightenment, not preaching." This visual design allows students to perceive the beauty of the natural environment that other school spaces cannot provide, enabling them to place themselves in a broader context. The colors, patterns, and symbols applied in the space gradually unfold, giving meaning to the space and enriching students' experiences. The ultra large abstract tool shape echoes the functional characteristics of the handmade art space, and its color corresponds to the mechanical equipment.
所有空间的设计都注重将人们的视线引向周边的景观,在引入自然光线的同时营造出一种专注的学习环境。正如德国建筑师汉斯·夏隆(Hans Scharoun)所言:“年轻人渴望被启迪,而非被说教。”这样的视野设计让学生能够感知到其他学校空间所无法提供的自然环境之美,使他们能够将自己置于更广阔的背景之中。空间中应用的色彩、图案与符号逐步展开,赋予空间以意义,并丰富学生的体验。超大型的抽象化工具造型,呼应了手工艺术空间的功能特性,其色彩与机械设备相呼应。

© Peter Bennetts
The east-west axis on the upper level directs people's gaze towards the distant horizon, interspersed with a series of colored entrances extending from adjacent learning spaces. These entrances not only allow people to glimpse the scenery inside the teaching space, but also create a warm welcoming atmosphere when students enter.
上层的东西向轴线将人们的视线引向遥远的地平线,其间穿插着从相邻学习空间延伸而出的一系列彩色入口,这些入口既让人得以一窥教学空间内的景象,又在学生进入时营造出热情的迎宾氛围。

© Peter Bennetts
To carry out construction in remote and harsh climate conditions, it is necessary to adopt design strategies that can simultaneously create multiple benefits and outcomes. Specifically, it means flexibly transforming the building structure into shading and recreational facilities, transforming low-lying areas into leisure spaces, creating ventilation corridors that are livable and reminiscent of important local landmarks, maximizing the use of views and natural lighting, while also considering the durability and long-term weathering resistance of the building structure. These considerations are not only related to economic benefits, but also reflect the pursuit of climate adaptability, environmental protection, and social sustainability, providing strategic planning for the long-term development and expansion of the school.
在偏远且气候条件恶劣的地区开展建设,需要采用能够同时创造多重效益与成果的设计策略。具体而言,就是灵活地将建筑结构转化为遮阳与休憩设施,把洼地改造成休闲空间,打造可供居住且能让人联想到当地重要地标的通风廊道,最大化地利用视野与自然采光,同时兼顾建筑结构的耐久性与长期抗风化能力。这些考量不仅关乎经济效益,更体现了对气候适应性、环境保护以及社会可持续发展的追求,为学校的长远发展与扩建提供了战略性规划。

© Peter Bennetts
The design concept of combining leisure activities with technological learning and providing a multifunctional external space has exceeded the initial expectations of the project scope. This building creates a learning environment that allows students to engage in self reflection, integrate themselves into the surrounding environment and landscape, gaze at the broader horizon, and become a part of the community.
将休闲活动与技术学习相结合,并提供多功能外部空间,这样的设计理念使项目的范畴超出了最初的预期。这座建筑营造出一种学习环境,让学生能够进行自我反思,将自己融入周边环境与景观之中,眺望更广阔的地平线,并成为社区的一部分。

© Peter Bennetts