Heroius School/Architectural Bureau G. Natkevicius&Partners
赫罗尤斯学校 / Architectural Bureau G.Natkevicius & Partners
历史文脉的尊重与创新:该项目最令人印象深刻的特质在于其对场地历史文脉的深刻尊重与巧妙利用。 建筑师没有选择推倒重建,而是保留了这座具有历史意义的印刷厂建筑,并将其改造为一所现代学校。 这种策略不仅节约了资源,更重要的是,它赋予了建筑独特的文化内涵。 通过保留建筑的体积和工业结构,并结合现代设计元素,设计师成功地将历史遗产与现代功能需求融合在一起,创造出一个既具有历史韵味又充满活力的教育空间。 这种对旧建筑的再利用和创新,体现了可持续设计的理念,也为城市更新提供了宝贵的经验。
功能与空间的巧妙融合:项目在空间设计上展现了卓越的创新。 建筑师将学校的各个功能区巧妙地融合在一起,创造出灵活多变、充满活力的学习环境。 这种设计理念打破了传统学校的封闭性,鼓励学生、教师、家长以及社区居民之间的互动交流。 开放的公共空间、多功能的圆形剧场以及灵活的内部布局,都体现了设计师对现代教育理念的深刻理解。 几乎每个空间都用于多种功能,最大程度地利用了建筑空间,避免了空间的闲置。 这种对空间的高效利用和灵活设计,为学校营造了一种开放、民主和充满活力的氛围,激发了学生的创造力和学习热情。
材料与细节的精致呈现:建筑外立面采用的镀锌钢板是该项目的另一大亮点。 这种材料的选择不仅呼应了建筑的历史工业背景,也赋予了建筑独特的视觉效果。 镀锌钢板的纹理和光影变化,在不同季节和光照条件下呈现出不同的美学感受,为建筑增添了生机与活力。 室内细节的设计同样出色,镀锌板元素在室内元素和圆形剧场的运用,延续了建筑的整体风格,并营造出独特的空间氛围。 这种对材料的精准把握和细节的精致呈现,体现了设计师对建筑品质的极致追求,也为学生营造了一个充满启发性和美学价值的学习环境。 建筑师用富有质感的材料语言,赋予了学校建筑独特的个性和魅力。

© Lukas Mykolaitis

© Lukas Mykolaitis
The building is located in the picturesque central area of Kaunas and is an important industrial site. One of Lithuania's largest and most important printing machines, the Spindulys, is located here. The printing machine has been in operation since 1928 until 2009. Although this printing factory, designed and built based on typical industrial architecture between World Wars, is not considered a structure of architectural value, it is not just an industrial object, but an important part of the culture, economy, and history of Kaunas city - particularly important publications were printed here at the time, and even coins of the Republic of Lithuania were minted here (including the 1925, 1936, and 1938 series).
该建筑位于考纳斯风景如画的中心地带,是一个重要的工业场所,立陶宛最大、最重要的印刷机之一 “Spindulys” 就位于此,该印刷机从 1928 年开始运营,直到 2009 年。 尽管这座根据典型的两次世界大战之间的工业建筑设计建造的印刷厂不被认为是一个具有建筑价值的结构,但它不仅仅是一个工业对象,它是考纳斯市文化、经济和历史的重要组成部分——当时特别重要的出版物都是在这里印刷的,甚至立陶宛共和国的硬币也是在这里铸造的(包括 1925 年、1936 年和 1938 年的系列)。

© Lukas Mykolaitis

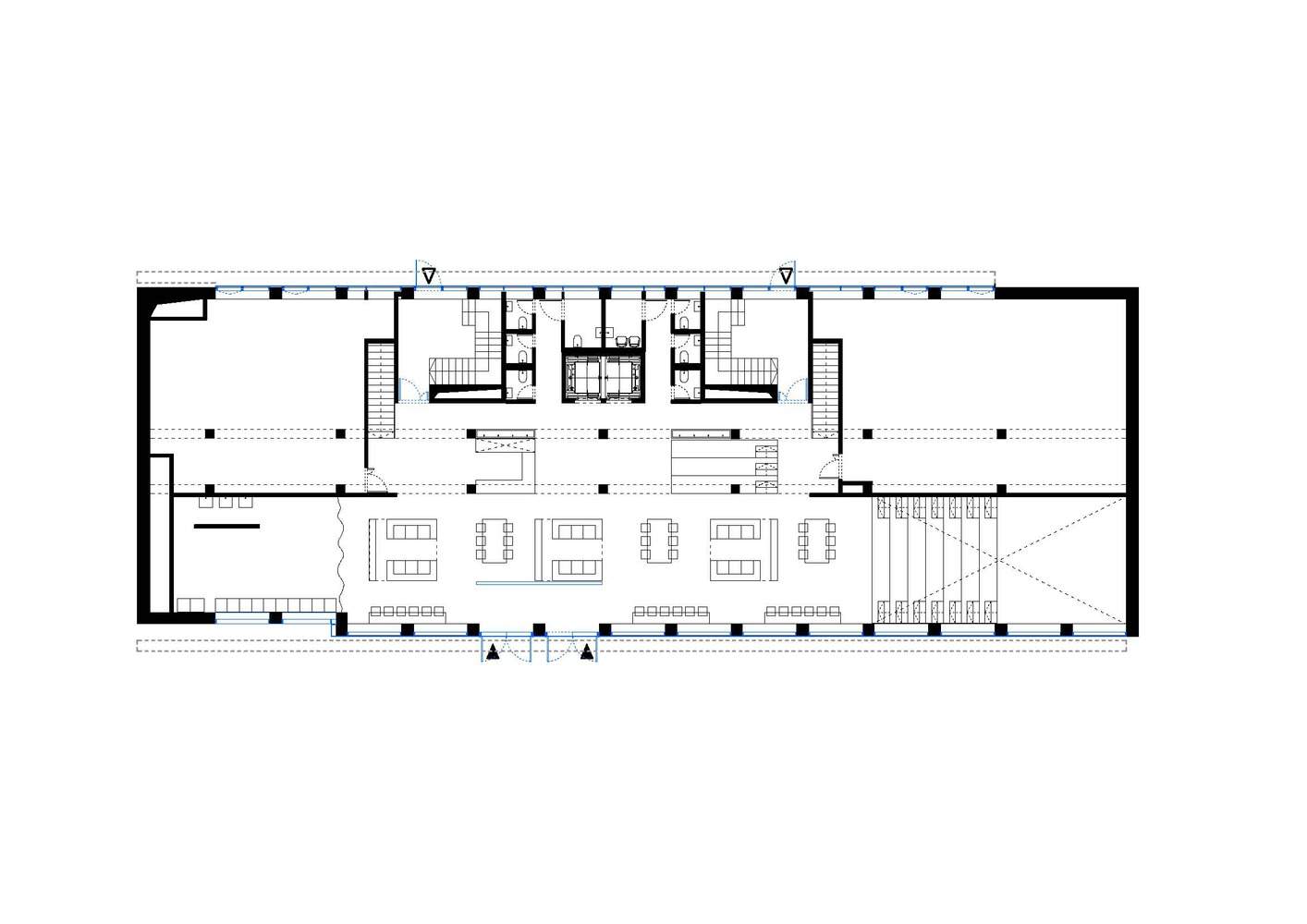
一层平面图

© Lukas Mykolaitis
Equally important, as a former industrial city, Kaunas has its unique characteristics, and well preserved buildings or their fragments help to protect this feature. Therefore, considering the historical background and potential of the building, it was decided not to demolish it, but to revitalize it by updating its exterior and adjusting its internal layout to accommodate new uses, while preserving the building's volume and unique industrial structure.
同样重要的是,考纳斯作为曾经的工业城市,具有其独特的特征,保存完好的建筑或其碎片有助于保护这一特征。 因此,考虑到历史背景和建筑物的潜力,决定不拆除它,而是通过更新外观和调整内部布局以适应新的用途来振兴它,同时保留建筑物的体积和独特的工业结构。

© Lukas Mykolaitis
The goal of architectural revival is to adapt it to the needs of modern and non-traditional schools, while retaining the characteristics of architecture: creating functional and efficient spaces for different activities, easy to transform, and creating a vibrant, democratic, and free atmosphere within the school. This is a clear spatial structure with quiet, concentration oriented rooms, but the main space encourages inspiration, creativity, and community activities in the gathering area. In this building, almost every space is used for multiple functions and is never vacant: the circular theater can be used for learning, playing, performing, and dining, and the lobby can be used for reading, creative activities, meeting with parents, and even dancing.
建筑复兴的目标是使其适应现代和非传统学校的需要,同时又不失建筑的特点:为不同的活动创造功能性强、效率高的空间,易于改造,并在学校内营造一个充满活力、民主和自由的气氛。这是一个清晰的空间结构,有安静的、以集中为导向的房间,但主要的空间鼓励灵感、创造力和社区活动在聚集区。 在这栋建筑中,几乎每个空间都用于多种功能,而且从不空置:圆形剧场可用于学习、玩耍、表演和就餐,大厅可用于阅读、创意活动、与家长会面,甚至跳舞。

© Lukas Mykolaitis

© Lukas Mykolaitis

剖面图

© Lukas Mykolaitis
This school is not just a place for classes, it strives to become a vibrant and lively space where students, teachers, parents, and even local residents can meet. Therefore, the first floor is open to the public - the public space, gymnasium, and open-air theater are not only used for teaching, but also for events, markets, seminars, and performances. All these decisions reflect a common desire to create a building that integrates with the city, not isolated from the city, but integrated into the environment, so that it can coexist harmoniously with the city and its people. The renovated building facade is made of smooth three-dimensional galvanized steel plates, giving the building industrial characteristics. Each board is unique, with different patterns and responses to the environment and seasons, creating lively visual effects through gentle strokes and shadows. In order to emphasize the inherited industrial characteristics, galvanized sheet decorative elements are also reflected in indoor elements and indoor circular theaters - these details create a different aesthetic experience and extend the school's philosophy of children enjoying growth surrounded by real materials.
这所学校不仅仅是一个上课的地方,它还努力成为一个充满活力、热闹的空间,让学生、老师、家长甚至当地居民都能在这里相遇。 因此,一楼向公众开放——公共空间、体育馆和露天剧场不仅用于教学,还用于活动、市场、研讨会和表演。 所有这些决定都反映出一种共同的愿望,即创造一座与城市融为一体的建筑,不孤立于城市,而是融入环境,使其与城市及其人民和谐共处。 翻修后的建筑立面采用光滑的立体镀锌钢板,赋予建筑工业特色。 每块板都是独一无二的,图案各异,对环境和季节的反应各不相同,通过轻柔的笔触和阴影创造出生动活泼的视觉效果。 为了强调继承的工业特征,镀锌板装饰元素也反映在室内元素和室内圆形剧场中 —— 这些细节创造了一种不同的美学体验,并延伸了学校的理念,即孩子们在真实材料的包围下享受成长。

© Lukas Mykolaitis
This project expresses a vision for architecture and education, where modern schools are not only spaces for learning, but also spaces for creating freedom, inspiring children to make progress in both academic achievement and personal development. The building has now become a key element of the recently revived urban structure, connecting the past and present, creating a unique space where teachers, children, parents, and the public can learn and grow together.
这个项目表达了一种建筑和教育的愿景,现代学校不仅是一个学习的空间,也是一个创造自由的空间,激励孩子们在学术成就和个人发展方面都取得进步。 该建筑现已成为城市结构中一个新近复兴的关键元素,连接过去与现在,创造了一个独特的空间,教师、儿童、家长和公众可以在这里共同学习、共同成长。

© Lukas Mykolaitis