Anderson Hall Renovation Project at Rice University School of Architecture/Kwong Von Glinow
莱斯大学建筑学院安德森馆翻新工程 / Kwong Von Glinow
设计理念与历史对话:该项目最引人注目的亮点在于其对“探寻”设计理念的深入实践。Kwong Von Glinow 事务所并非仅仅停留在翻新和改造的层面,而是深入挖掘了莱斯大学建筑学院安德森馆的历史脉络。他们不仅研究了 1947 年 Staub 和 Rather 的原始设计,还分析了 1981 年 James Stirling 和 Michael Wilford 的后续增建,这种对建筑历史的尊重和解读,为后续的设计提供了坚实的基础。设计师们并未试图抹去历史的痕迹,而是通过“探寻”的手法,将不同时期的设计元素有机地融合在一起,使新空间与原有建筑产生对话,从而赋予了项目独特的生命力。
空间重塑与功能革新:该项目巧妙地将空间重塑与功能革新相结合。设计师们在安德森馆内设计了迎宾中心、学生与社区论坛和教职员工休息室,每个空间都经过精心考量,以满足不同的使用需求。迎宾中心的设计利用玻璃幕墙和镜面柱子,营造出通透、友好的氛围;学生与社区论坛通过圆形座椅和木纹图案,打造了既开放又私密的交流场所;而教职员工休息室则通过“楔形”结构,实现了空间的合理划分和光线的优化。这种对功能的精准把握和对空间的创新探索,使得改造后的安德森馆焕发出新的活力,更好地服务于师生,也提升了建筑的整体品质。
细节处理与整体协调:该项目在细节处理方面也体现了卓越的设计水平。设计师们不仅注重空间的功能性和美观性,还关注到每一个细节的精雕细琢。例如,迎宾中心的镜面柱子,既是对 Stirling 和 Wilford 设计的致敬,又增强了空间的层次感;教职员工休息室的一体化接待台,在造型和布局上与原有建筑遥相呼应;此外,平面图的呈现和照片的选取也十分专业,清晰地展现了设计意图和空间效果。这种对细节的关注,加上整体的协调统一,使得整个项目呈现出精致而富有内涵的特质,充分体现了建筑设计师的专业素养。

© Mikael Olsson

© Mikael Olsson
Exploring Design: Three new spaces within MD Anderson Hall - Rice University School of Architecture commissioned Kwong Von Glinow to design three new spaces within MD Anderson Hall: a welcome center, a student and community forum, and a faculty lounge. These new spaces are all located on the central axis of the campus. Our design process begins with a deep exploration of the architectural history, aimed at understanding the original appearance of the building designed by Staub and Rather in 1947, as well as the subsequent additions made by James Stirling and Michael Wilford in 1981. In relevant literature, Philip Johnson's evaluation of the addition of James Sterling's building is mentioned: "I came looking for Jim's (James Sterling's nickname) building, but I couldn't find it no matter what." (quoted from Cite's autumn 1992 winter 1993 issue) This concept of "exploring" space has become a core element of our design methodology.
探索中设计:安德森医学中心大楼(MD Anderson Hall)内的三处新空间 —— 莱斯大学建筑学院委托 Kwong Von Glinow 事务所,在安德森医学中心大楼内设计三处新空间:一个迎宾中心、一个学生与社区论坛以及一个教职员工休息室。这些新空间均位于校园中轴线上。我们的设计流程始于对建筑历史的深度挖掘,旨在了解 Staub 和 Rather 于 1947 年设计的建筑原貌,以及詹姆斯·斯特林(James Stirling)和迈克尔·威尔福德(Michael Wilford)于 1981 年后续增建的部分。相关文献中提及了菲利普·约翰逊(Philip Johnson)对詹姆斯·斯特林增建部分的评价:“我来找吉姆(詹姆斯·斯特林的昵称)的建筑,却怎么也找不到。” (引自《Cite》1992 年秋季刊 - 1993 年冬季刊)这种“探寻”空间的概念,成为了我们设计方法的核心要素。

© Mikael Olsson

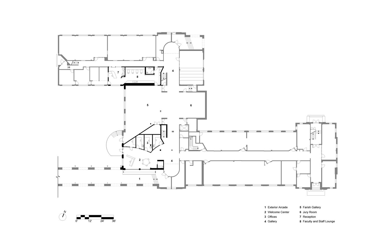
一层平面图

© Mikael Olsson

© Mikael Olsson
The concept of "exploration" (meaning discovery or encounter) played a crucial role in this renovation project, and its value was particularly highlighted when interpreting the works of Stirling and Wilford. The three spaces we designed are all adjacent to the Farish Gallery, the main public space of the School of Architecture at Rice University. There is a unique sloping wall in the Farish Gallery, which shapes the room into a trapezoid shape. In the sloping wall added in 1981, there is also a protruding exposed column beam from the original 1947 building. Through the study of the original design drawings, we found that this trapezoidal room and exposed column beams were intentionally designed by James Stirling to indicate the intersection of the original Anderson Medical Center building with the Sterling and Wilford additions. Our design approach for the renovation and functional reshaping of these three spaces is to reveal and showcase the rich history of the architectural background by recognizing and strengthening specific intervention contexts.
“探寻”(发现、偶遇之意)这一概念,在此次翻新项目中发挥了至关重要的作用,在解读斯特林(Stirling)与威尔福德(Wilford)作品时,其价值尤为凸显。我们设计的三个空间均毗邻法瑞什画廊(Farish Gallery)—— 莱斯大学建筑学院的主要公共空间。法瑞什画廊内有一面独特的斜墙,将房间塑造成梯形,1981 年增建的斜墙中还凸出一根原 1947 年建筑的裸露柱梁。通过对原始设计图纸的研究,我们发现,这个梯形房间和裸露柱梁是詹姆斯·斯特林(James Stirling)的刻意设计,用以标示原安德森医学中心大楼与斯特林和威尔福德增建部分的交汇之处。针对这三个空间的翻新及功能重塑,我们的设计方法是,通过认可并强化特定干预背景,来揭示并展现建筑背景的丰富历史。

© Mikael Olsson
The Welcome Center is located at the southeast corner of MD Anderson Hall, consisting of four main elements: a large glass curtain wall facing the atrium, mirrored columns, internal curved glass partitions forming the four offices, and an integrated welcome service desk. The previously opaque brick wall on the south facade has been replaced with two large glass panels, creating a warm, friendly, and well connected experience for people coming from the atrium. Internally, two curved glass walls form the facades of four offices, guiding visitors into the welcome center and facilitating staff reception. The mirrored structural columns draw inspiration from the iconic design of the western fa ç ade of Sterling and Wilford's addition, while reflecting the surrounding environment and adding a sense of spatial hierarchy.
The newly built Student and Community Forum is located directly above the Welcome Center, connecting the Anderson Medical Center building with the newly built Cannady Hall. The accessible ramp and staircase compensate for the height difference between the two buildings. Two layers of embedded circular seats form the central forum for students' informal gatherings, while the prominent pillars and wood grain patterns echo the sloping walls designed by Sterling and Wilford, while creating a more private communication corner in the large space.
迎宾中心位于安德森医学中心大楼(MD Anderson Hall)的东南角,由四大元素构成:面向中庭的大面积玻璃幕墙、覆有镜面的立柱、构成四间办公室的内部曲线玻璃隔断,以及一体化的迎宾服务台。原南立面不透光的砖墙被替换为两大块玻璃面板,为从中庭前来的人们营造出热情友好且四通八达的体验。内部,两道弯曲的玻璃墙构成了四间办公室的内立面,既引导访客进入迎宾中心,又便于工作人员接待。覆有镜面的结构立柱借鉴了斯特林与威尔福德增建部分西立面的标志性设计,同时反射周围环境,增添空间层次感。
新建的学生与社区论坛位于迎宾中心正上方,连接安德森医学中心大楼与新建的坎纳迪楼(Cannady Hall)。无障碍坡道和楼梯弥补了两座建筑之间的高度差。两层嵌入式圆形座椅构成学生非正式聚会的中心论坛,而突出的墩柱与木纹图案则呼应了斯特林与威尔福德设计的斜墙,同时在大空间内营造出更为私密的交流角落。

© Mikael Olsson

二层平面图

© Mikael Olsson
The faculty and staff lounge has redefined the reception area of the Dean's office. The integrated reception desk created by Corian draws inspiration from the original designs of Sterling and Wilford, while also echoing them in both form and interior layout. A three sided "wedge-shaped" structure divides the private and public areas of the rest room, separating the reception area from the convenient facilities used by faculty, including a small kitchen, rest area, and accessible bathroom. The design of the "wedge-shaped" structure is inclined to the west to direct light into the windowless rear area of the faculty and staff lounge. In the design of these three spaces, we use shapes that echo and collaborate with the original building to create a unique spatial experience, rather than relying solely on walls to divide each area.
教职员工休息室对院长办公室接待区进行了重新定义。由可丽耐(Corian)打造的一体化接待台借鉴了斯特林与威尔福德的原始设计,同时在造型与室内布局上与其遥相呼应。一个三面呈“楔形”的结构划分出休息室内的私密与公共区域,将接待区与教职工使用的便利设施区域分隔开来,这些设施区域包括小厨房、休息区和无障碍卫生间等。“楔形”结构的设计使得其西面呈倾斜状,以便将光线引入教职员工休息室无窗的后部区域。在这三个空间的设计中,我们均采用与原建筑相呼应且能协同作用的造型来打造独特的空间体验,而非单纯依靠墙体来划分各个区域。

© Mikael Olsson