Original Ecological Residential/Order Matter
原生态住宅 / Order Matter
项目设计理念的精髓:这座“原生态住宅”的核心在于其对“减法”哲学的极致运用。设计师摒弃了浮华的装饰和繁复的堆砌,转而专注于材料的本真呈现。混凝土、石材和木材都以其原始状态示人,不加修饰,营造出一种静谧、质朴的空间氛围。这种设计理念并非为了追求视觉奇观,而是旨在创造一个能够让人感到真实、自在和踏实的居所。通过对建筑材料、空间布局和光线设计的精细考量,项目打造出一种与周围环境和谐共生的状态,最终实现建筑与居住者之间的情感共鸣,体现了对人本主义的深刻理解。
建筑语言与空间布局的亮点:项目的建筑语言简洁而有力,通过对比手法凸显结构美学。南立面巧妙地引入自然景观,而北立面则形成缓冲,构建了开放与私密的平衡。空间布局上,设计师精心考量每一个细节,例如半圆形楼梯休息平台,既节约空间又成为视觉焦点。室内设计中,统一的网格系统串联各个空间,使墙壁和家具犹如独立物件般呈现。这种设计手法避免了传统建筑中常出现的视觉干扰,并通过间接照明营造出温馨舒适的氛围。这种对空间、光线和细节的极致关注,使得整个项目散发着一种宁静、和谐的气质,与喧嚣的城市环境形成鲜明对比。
可持续性和居住体验的和谐统一:“Raw House”并非炫耀技术,而是强调建筑的可持续性与居住者的生活体验。建筑师通过被动式设计策略,例如建筑朝向和材料选择,来提高建筑对环境的适应性。项目提倡在有限空间内实现最佳居住品质,并关注对使用者身心健康的积极影响。通过精心设计的照明系统,以及对材料的理性使用,项目不仅减少了对环境的负担,也提升了居住的舒适度和自主性。这种设计理念揭示了在城市环境中,通过微小而精确的选择,也能有效促进人与自然的和谐共生,实现了建筑的长期价值和对居住者的深刻关怀。

© Simone Bossi

© Simone Bossi
From the architect. Raw House is a multifunctional integrated development project located in the eastern part of Seoul, South Korea, designed to harmoniously blend with the surrounding natural environment and urban landscape. The project includes a caf é, residential apartments, and a top floor apartment with office functions. The south facade of the building cleverly frames the surrounding lush vegetation landscape, introducing the beauty of nature into the indoor space; The northern facade adopts a more restrained design approach, creating a buffer barrier between the building and the street. This contrasting design highlights the structural aesthetics of the project, with bold material use and concise lines outlining a strong sense of architectural presence, finding a perfect balance between openness and privacy. The architect clearly stated in the project introduction that the goal is to create a durable building that emphasizes spatial clarity and living experience, rather than catering to market expectations or pursuing visual extravagance.
来自建筑师。Raw House 是一座位于韩国首尔东部的多功能综合开发项目,其设计旨在与周边的自然环境和城市景观和谐相融。该项目包含一家咖啡馆、住宅公寓以及一间兼具办公功能的顶层公寓。建筑南立面巧妙地框定了周边郁郁葱葱的植被景观,将自然之美引入室内空间;而北立面则采用了更为内敛的设计手法,为建筑与街道之间营造了一道缓冲屏障。这种对比鲜明的设计凸显了项目的结构美学,大胆的材质运用与简洁的线条勾勒出强烈的建筑存在感,在开放性与私密性之间找到了完美平衡。建筑师在项目简介中明确提出,要打造一座经久耐用的建筑,注重空间清晰度和居住体验,而非迎合市场期待或追求视觉上的浮华。

© Simone Bossi
In this era where the boundary between reality and illusion is blurred and overly stimulated, people are increasingly forced to conform to appearances or disguise themselves, but this project provides a secluded place - a home where people can feel real and at ease. To achieve this, the materials are kept in their original state. Concrete, stone, and wood all show their original appearance, not deliberately to create any effect, but exist in a quiet and simple way. There is no cover up or disguise here; Architecture does not intentionally highlight anything - it simply silently supports.
在这个现实与虚幻界限模糊、过度刺激的时代,人们愈发被迫去迎合表现或伪装自己,而这个项目却提供了一处隐居之所 —— 一个让人能感受到真实与自在的家。为了实现这一点,材料都保持其原始状态。混凝土、石材和木材都展现出它们原本的模样,并非为了刻意营造某种效果,而是以一种静谧、质朴的方式存在着。这里没有遮掩,没有伪装;建筑并不刻意彰显什么 —— 它只是默默支撑。

© Simone Bossi

© Simone Bossi

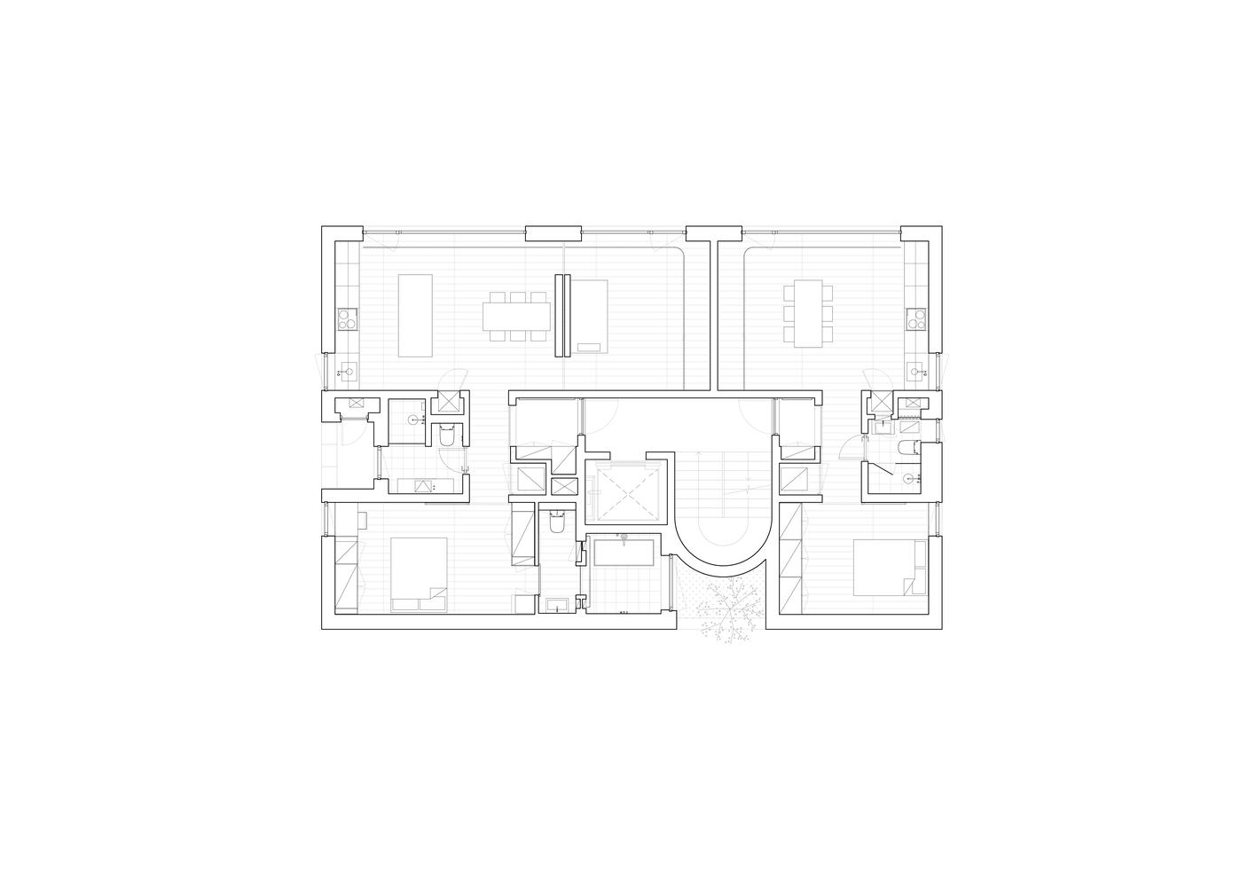
一层平面图

© Simone Bossi
In the design and construction process, not only are materials carefully selected, but their placement is also carefully considered. Every wall and ceiling has undergone precise drawing and construction guidance: from the exposed European template lines in the concrete, to the separation treatment of plywood and stone, to the layout of the floor slab and the laying direction of the wooden floor, every one reflects ingenuity. A unified grid system has been established on the ceiling and floor to connect various spaces and present walls and furniture as independent objects placed in a broader field. When conditions permit, joints are minimized as much as possible to make the surface of the stone and wood look like a seamless whole, rather than spliced panels. This design brings a sense of unity and continuity to the entire space. The design philosophy of Raw House is not to pursue complex stacking, but to create a space that feels down-to-earth, realistic, and full of humanistic care by subtracting with more delicate thoughts.
在设计和施工过程中,不仅对材料精挑细选,对其摆放位置也倾注了细致的考量。每一面墙和天花板都经过了精确的绘图与施工指导:从暴露混凝土中的欧式模板线条,到胶合板与石材的分隔处理,再到楼板布局和木地板的铺设方向,无一不体现出匠心独运。在天花板和地板上建立了一个统一的网格系统,以此连接各个空间,并让墙壁和家具如同被放置在一个更广阔场域中的独立物件般呈现。在条件允许的情况下,接缝被尽可能减少,使得石材和木材表面看起来像是浑然一体的整体,而非拼接的板块。这样的设计为整个空间带来了一种统一感和连续性。Raw House 的设计理念并非追求繁复堆砌 —— 而是以更细腻的心思做减法,旨在打造一个让人感觉脚踏实地、真实可感且充满人文关怀的空间。

© Simone Bossi

剖面图

© Simone Bossi

© Simone Bossi

© Simone Bossi
Raw House rethought how architecture can provide people with peaceful, focused spaces and connections to nature in dense urban environments without creating a sense of isolation or visual clutter. It challenges the traditional notion that "more rooms, higher density, or decorative decoration determine value" and instead emphasizes the quality of living and a clear sensory experience. One clever innovation of this project is the careful utilization of every square meter of space. The semi-circular staircase rest platform reduces unused corner space and serves as a visual identifier facing the street, with an opening on the north side that not only frames the geometric beauty of the building itself, but also softly introduces light without infringing on privacy. The southward layout of the building dominates the entire spatial planning. The living area is placed in a location that can fully enjoy sunlight and enjoy the beautiful scenery of the tree covered hillside; The private room is located on the north side to isolate noise and light interference.
Raw House 重新思考了在密集的城市环境中,建筑如何能在不造成孤立感或视觉杂乱的情况下,为人们提供宁静、专注的空间以及与自然的联结。它挑战了“更多房间、更高密度或装饰性装修决定价值”的传统观念,转而强调居住品质与感官的清晰体验。该项目的一个巧妙创新之处,在于对每一平方米空间的精心利用。半圆形的楼梯休息平台减少了未被利用的角落空间,同时作为面向街道的视觉标识,并在北侧开设了一个开口,既框定了建筑自身的几何美感,又能柔和地引入光线,同时不侵犯隐私。建筑的南向布局主导了整个空间规划。起居区域被安置在能够充分享受阳光照射的位置,并可欣赏到被树木覆盖的山坡美景;而私密房间则被设置在北侧,以隔绝噪音和光线干扰。

© Simone Bossi

三层平面图

© Simone Bossi

© Simone Bossi
The ceiling eliminates direct lighting, thus eliminating visual interference. Instead, indirect lighting gently illuminates the walls at the junction of the ceiling and walls, creating a warm and peaceful atmosphere. This design also allows residents to freely choose lighting fixtures and furniture to personalize their space according to their personal preferences. The innovation of Raw House lies not in the technical aspect, but in the spatial design and experience creation. It returns architecture to its essence, while enhancing user autonomy and strengthening emotional resonance. This project demonstrates how design can respond to complex needs in a quiet and precise way, creating a place where people can slow down, feel grounded, and shape their personal lifestyle.
天花板摒弃了直接照明,从而消除了视觉上的干扰。取而代之的是,间接照明从天花板与墙面的交接处柔和地照亮墙壁,营造出一种温馨而宁静的氛围。这样的设计也让住户能够根据个人喜好,自由选择照明灯具和家具来个性化布置空间。Raw House 的创新之处不在于技术层面,而在于空间设计与体验营造。它将建筑回归本质,同时提升了使用者的自主性,并增强了情感共鸣。该项目展现了设计如何以静谧而精准的方式回应复杂需求,打造出一个让人能够放慢脚步、感受踏实,并塑造个人生活方式的场所。

© Simone Bossi
© Simone Bossi
Raw House provides a small but well conceived model for improving urban living environments. It enhances the adaptability of buildings to the environment and promotes the physical and mental health of users by carefully planning building orientations, carefully selecting building materials, and creating a peaceful spatial atmosphere. The passive design strategy dominates the entire spatial layout. The public living area and kitchen are arranged facing south to fully absorb natural light and seasonal warmth. The bedroom is located on the north side, avoiding direct sunlight, which helps improve sleep quality and reduce dependence on air conditioning cooling. The concrete structure of a building has thermal capacity characteristics, which can absorb heat during the day and release it at night, while also helping to regulate indoor humidity.
Raw House 为改善城市居住环境提供了一个规模虽小却构思周全的典范。它通过精心规划建筑朝向、审慎选用建筑材料以及营造宁静的空间氛围,来提升建筑对环境的适应性,并增进使用者的身心健康。被动式设计策略主导了整个空间布局。公共生活区域和厨房朝南布置,以充分汲取自然光照和季节性的温暖。卧室则位于北侧,避开阳光直射,有助于提升睡眠质量,并降低对空调制冷的依赖。建筑的混凝土结构具有热容量特性,能在白天吸收热量并于夜间释放,同时也有助于调节室内湿度。
© Simone Bossi
© Simone Bossi
The lighting design has been carefully considered to promote rest and reduce cognitive burden. This design abandons the direct lighting fixtures installed on the ceiling and instead adopts hidden indirect lighting. The light gently pours down from the edge of the ceiling, making the space more warm and helping to relax both body and mind. This design creates a visually peaceful and physiologically comfortable environment, especially at night. Although plywood was used in the project, it was only selectively applied in specific areas and paired with more durable materials such as reinforced concrete and stone. The surface treatment is simple and minimalistic, minimizing the need for replacement, coating, or maintenance. The use of built-in components is kept to a minimum to reduce material waste and allow residents to personalize the space over time.
照明设计经过精心考量,旨在促进休息和减轻认知负担。该设计摒弃了天花板安装的直接照明灯具,转而采用隐藏式间接照明,灯光从天花板边缘柔和地洒下,使空间更显温馨,并有助于放松身心。这样的设计营造出一个在视觉上宁静且在生理上令人舒适的环境,尤其在夜晚时分效果更佳。尽管项目中使用了胶合板,但仅在特定区域选择性应用,并搭配了钢筋混凝土和石材等更为耐用的材料。表面处理简洁朴素,尽量减少了对更换、涂层或维护的需求。内置构件的使用被控制在最低限度,以减少材料浪费,并允许住户随着时间的推移对空间进行个性化布置。
© Simone Bossi
This is not a green technology exhibit to show off, but a quiet and durable building that upholds the concepts of moderation, long-term durability, and flexible adaptation. The value of Raw House lies precisely in the fact that it does not pursue perfection in every detail, but rather acts in a way that is just right. It reveals the possibility that making small and precise choices in design can also effectively benefit the Earth and the people who inhabit it.
这并非一座用以炫耀的绿色科技展品,而是一座静谧且耐用的建筑,它秉持着适度、长久耐用与灵活适应的理念。Raw House 之所以具有价值,恰恰在于它并非事无巨细地追求极致,而是以一种恰到好处的方式行事。它揭示了这样一种可能性:在设计中做出微小而精准的选择,同样能够切实地惠及地球以及居住其中的人们。