La Sir è ne Pavilion and Madeleine Pelletier Youth Apartment/Avenier Cornejo Architects
La Sirène 展馆与 Madeleine Pelletier 青年公寓/ Avenier Cornejo Architectes
项目亮点:该项目最显著的亮点在于其对城市肌理的巧妙回应。它不仅尊重了周边建筑的历史文脉,更是通过对勒梅里迪安住宅区的回应,构建了一种对话。设计师运用阶梯式体量设计,既保留了邻近建筑的视线通廊,又在视觉上丰富了建筑的层次。建筑外立面裸露的混凝土,通过不同的纹理处理,在致敬装饰艺术的同时,也融入了现代主义的审美。这种将历史、现代与周边环境巧妙结合的设计手法,是项目在设计理念上的一个重要体现,赋予了建筑独特的个性和生命力。
设计精髓:项目的精髓在于对多功能的融合与可持续理念的实践。它巧妙地将音乐厅、学生公寓和青年公寓融为一体,促进了文化与居住的共生。同时,项目在可持续性方面也做出了卓越的贡献,采用暴露的混凝土结构,减少了材料浪费,并赋予建筑独特的质感。通过设置遮阳板、引入自然光以及使用高效节能的隔热材料,项目实现了建筑的生物气候设计。绿色露台的设计则提升了建筑的隔热性能,并促进了城市生物多样性,这些都体现了设计师对可持续发展的深刻理解。
空间体验:从空间体验的角度来看,该项目也展现了卓越的设计水平。音乐厅内部的无柱设计提供了开阔的表演空间,同时也确保了声学效果的优化。公寓楼的模块化家具设计,为住户提供了灵活的居住体验。大面积落地窗的运用,最大程度地引入了自然光线,营造了舒适宜人的居住环境。共享空间的设计,如用餐区、健身房和露台,促进了居民之间的互动,增强了社区的凝聚力。整体而言,该项目创造了一个充满活力,兼具文化性和实用性的空间,为使用者带来了卓越的体验。

© Maxime Delvaux

© Maxime Delvaux
The project began with the La Sir è ne de Paris Orchestra, one of the oldest independent amateur symphony orchestras in France, founded in 1874. For decades, the band has been rehearsing at 20 Rue Dareau, but the venue has gradually become outdated. In order to ensure the future development of the orchestra, the association envisions building a multifunctional building that combines the concert hall with housing for students and young workers, ensuring cultural continuity while stimulating urban vitality. The design concept aims to deeply root this historic institution in the city. The project draws inspiration from the decorative art details of the neighborhood and the modernist level layout of the Le M é ridien hotel, seeking a balance between solidity and transparency. Through carved concrete, terraces, and framed openings, it creates a space where music and daily life intertwine.
该项目始于巴黎拉西雷讷(La Sirène de Paris)乐团,这是法国历史最悠久的独立业余交响乐团之一,成立于 1874 年。几十年来,该乐团一直在达罗街 20 号(20 Rue Dareau)排练,但该场地已逐渐过时。为了确保乐团的未来发展,该协会设想建造一座多功能建筑,将音乐厅与学生和年轻工人的住房相结合,既保障文化的延续性,又激发城市的活力。设计理念旨在将这一历史悠久的机构深深扎根于城市之中。该项目从该街区的装饰艺术细节和勒梅里迪安酒店(Le Méridien)的现代主义水平布局中汲取灵感,在坚固性与通透性之间寻求平衡,通过雕琢的混凝土、露台以及框架式开口设计,打造出一个音乐与日常生活交织的空间。

© Maxime Delvaux

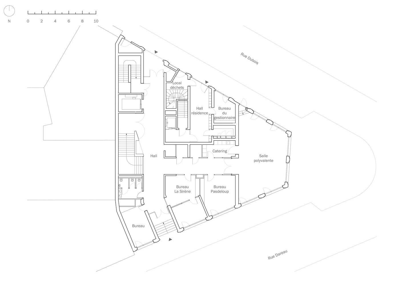
一层平面图

© Maxime Delvaux
The project is located at the intersection of Rue Dareau and Rue É mile Dubois, complementing the diverse architectural styles of the block, where Ottoman, modernist, and contemporary architecture coexist. The new building carefully integrates into this diverse environment while enhancing the unique style of the community. One important reference is the Le M é ridien residential area, which is a Y-shaped residential complex built in 1968.
该项目坐落于达罗街(Rue Dareau)与埃米尔·杜布瓦街(Rue Émile Dubois)的交汇处,与该街区多样化的建筑风格相得益彰,这里奥斯曼式、现代主义以及当代风格的建筑并存。新建筑精心融入了这一多元化的环境,同时强化了社区的独特风貌。其中一个重要的参照对象是勒梅里迪安(Le Méridien)住宅区,这是一座建于 1968 年、呈 Y 形设计的住宅建筑群。

© Maxime Delvaux

© Simone Bossi

轴测分析图

© Maxime Delvaux
The project continues the architectural language of Le M é ridien, echoing its horizontally extending balcony lines, while introducing terraces and green areas to enhance the city's greenery level. The stepped architectural volume design ensures that the existing visual corridors of adjacent buildings are preserved, while minimizing the impact of new buildings on the surrounding environment and adding multi-level architectural dialogue to the area.
该项目延续了勒梅里迪安(Le Méridien)的建筑语言,与其水平延伸的阳台线条相呼应,同时引入了露台和绿化区域,以提升城市绿化水平。阶梯式的建筑体量设计确保了邻近建筑现有的视线通廊得以保留,在最大程度降低新建筑对周边环境影响的同时,也为该区域增添了多层次的建筑对话。

© Maxime Delvaux
This project prioritizes sustainability and has obtained E3C1 and BBC Effinergie 2017 certifications. One key decision is to expose the reinforced concrete structure to avoid unnecessary cladding, thereby reducing material waste and enhancing the durability of the building. The concrete surface is treated with various textures such as chiseling, indentation, and smoothing, providing aesthetic diversity while preserving its original texture. The concert hall adopts advanced load transfer technology to create an open space up to 6 meters high without columns. The bioclimate strategy includes setting sun visors to control sunlight, introducing natural light through large french window, and using energy-efficient thermal insulation materials. The residential area is equipped with compact and modular furniture, optimizing space utilization and reducing material waste. Green terraces enhance the thermal insulation performance of buildings and help maintain urban biodiversity.
该项目将可持续性置于首位,并已获得 E3C1 以及 BBC Effinergie 2017 认证。其中一个关键决策是暴露钢筋混凝土结构,避免不必要的包覆层,以此减少材料浪费并增强建筑的耐久性。混凝土表面采用了凿毛(bouchardé)、压痕(matricé)和平滑等多种纹理处理,既提供了美学上的多样性,又保留了其原始质感。音乐厅采用先进的荷载传递技术,打造出一个高达 6 米且无立柱的开阔空间。生物气候策略包括设置遮阳板以控制日照、采用大型落地窗引入自然光,以及使用高效节能的隔热材料。住宅部分配备了紧凑且模块化的家具,优化了空间利用并减少了材料浪费。绿色露台则提升了建筑的隔热性能,并有助于维护城市生物多样性。

© Maxime Delvaux

剖面图

© Maxime Delvaux
Pavillon de la Sir è ne is an innovative architectural project that cleverly integrates cultural and residential functions. This six story building has replaced the outdated rehearsal venue with a modern music hall and affordable housing for students and young workers, adding new vitality to the local community and cultural landscape of Paris. One major advantage of this project is its integration with the urban environment. It is adjacent to the architecture of Le M é ridien, and its design respects the style and language of the surrounding buildings while showcasing its unique personality.
拉西雷讷馆(Pavillon de la Sirène)是一个创新性的建筑项目,它将文化功能与居住功能巧妙融合。这座六层高的建筑取代了原先过时的排练场地,新建了一座现代音乐厅以及为学生和年轻工作者提供的经济适用房,为当地社区和巴黎的文化景观增添了新的活力。该项目的一大优势在于其与城市环境的融合。它毗邻勒梅里迪安(Le Méridien)建筑,设计上既尊重了周边建筑的风格语言,又彰显出自身独特的个性。

© Maxime Delvaux
The exposed concrete facade has rich and diverse textures, drawing inspiration from the aesthetic style of Art Deco and incorporating modernist aesthetic concepts. The stepped architectural volume design not only preserves the visual corridor, but also introduces terraces, enhancing the level of urban greening. The concert hall features a spacious and acoustic optimized column free performance hall. Its exquisite entrance design is inspired by decorative art patterns, leading to a grand staircase that sets the tone for a high-quality cultural experience.
裸露的混凝土外立面纹理丰富多样,既借鉴了装饰艺术(Art Deco)的美学风格,又融入了现代主义的审美理念。阶梯式的建筑体量设计既保留了视线通廊,又引入了露台,提升了城市的绿化水平。音乐厅内设有一个宽敞且经过声学优化的无柱表演大厅。其精致的入口设计灵感源自装饰艺术图案,由此可通往一座宏伟的楼梯,为高品质的文化体验奠定了基调。
© Maxime Delvaux
The Madeleine Pelletier apartment building located on the upper level consists of 51 studio apartments, designed to balance flexibility and comfort. The large-area french window maximize the introduction of natural light, while customized modular furniture allows residents to personalize the space according to their own preferences. The shared dining area, gym, and terrace promote community interaction among residents. This project has been certified by E3C1 and BBC Effinergie 2017, with a design that prioritizes bioclimatic principles, energy efficiency, and the application of green terraces. While reducing environmental impact, it also enhances the integrity of the building.
位于上层的玛德琳·佩勒蒂耶(Madeleine Pelletier)公寓楼包含 51 间单间公寓,设计兼顾灵活性与舒适性。大面积的落地窗最大限度地引入自然光,而定制的模块化家具则让住户能够根据自己的喜好个性化布置空间。共享用餐区、健身房和露台促进了住户间的社区互动。该项目已获得 E3C1 和 BBC Effinergie 2017 认证,其设计优先考虑生物气候原则、能源效率以及绿色露台的应用,在减少对环境影响的同时,也强化了建筑的完整性。
© Maxime Delvaux