Nabi House / Todot Architects and Partners
Nabi House / Todot Architects and Partners
场地与功能的巧妙融合: 项目最引人注目的地方在于其对场地条件的深刻理解与巧妙回应。建筑师将一块被认为不便的三角形地块,巧妙地转化为项目的核心优势。通过分析场地北侧的城市喧嚣与南侧的自然环境,建筑师将建筑的立面设计成鲜明的对比。北侧采用L型粗糙混凝土墙,应对城市噪音,同时强化了商业空间的吸引力;南侧则以柔和的曲线岩体呼应自然,为居住空间创造了舒适宁静的氛围。这种设计策略不仅解决了实际问题,也赋予了建筑独特的个性,充分体现了建筑师对环境的尊重与对功能的极致追求。
空间设计的丰富层次: 建筑内部的空间设计同样精彩,展现了建筑师对居住体验的深刻思考。项目将商业空间与租赁住房相结合,充分利用了有限的场地资源。不同楼层空间的设计各具特色,比如业主单元拥有面向绿植的阳台,三楼的出租单元则配备了防雨的保护檐,这些细节都提升了居住的舒适度。更重要的是,建筑师赋予了建筑一种动态的、三维的体验感,仿佛置身于一个“茧”中,充满了生机与活力。这种设计理念跳脱了传统建筑的束缚,为居住者创造了独特的、充满记忆的居住体验,突出了项目的人文关怀。
设计语言的创新表达: Nabi House的设计语言充满创新性,体现了建筑师对建筑形态的独特理解。项目充分利用了三角形地块的特殊性,通过不同立面的交汇,强化了土地的双重属性。建筑师巧妙地将原本可能被忽视的边缘,转化为设计意图的有力表达,使建筑在视觉上更具张力。同时,建筑师的想象力也贯穿于整个设计过程中,从“茧”的意象到“弹出式卡片”的设计灵感,都展现了设计师对建筑形态的探索与创新。这种充满想象力的设计手法,赋予了建筑更深层次的文化内涵,使得Nabi House不仅仅是一个居住空间,更是一个充满艺术气息的生活载体。

© Choi Jinbo

© Choi Jinbo
When the customer showed us a concerned expression about a recently removed triangular piece of land from the green belt, we felt it was a decisive moment - an exploration of the triangular plot began. For this young couple, they are looking forward to building a home for themselves and their children, but the land seems not big enough and inconvenient. But we see the potential to enjoy the city and nature at the edge of the city boundary.
当客户带着关切的表情向我们展示最近从绿化带中移走的一块三角形土地时,我们觉得这是一个决定性的时刻 —— 一个对三角形地块展开的探索开始了。 对于这对年轻夫妇来说,他们期待着为自己和孩子建立一个家,土地似乎不够大,也不方便。 但我们从中看到了在城市边界边缘享受城市和自然的潜力。

© Choi Jinbo
Under the same area, triangular parcels naturally have longer side lengths than rectangular parcels. We found that one of the long sides is facing a 25 meter wide road, which is an advantage. This block itself has two sides, like the two-sided god Janus: on the north side of the new road, sparse factories and low buildings exude a sense of desolation; On the south side, a small hill with lush forests creates a comfortable and peaceful atmosphere. This site happens to be located at this junction, leaning south against the wooded hill and facing north towards the wide city road.
在面积相同的情况下,三角形地块自然比矩形地块的边长更长。我们发现其中一条长边正对着一条 25 米宽的道路,这是一个优势。这片街区本身具有两面性,宛如双面神雅努斯一般:新路的北侧,稀疏的工厂和低矮的建筑透着荒凉之感;而南侧,一座林木葱茏的小山丘营造出一种舒适宁静的氛围。这块场地恰好位于这个交界处,向南倚靠着那座林木繁茂的小山丘,同时朝北面对着宽阔的城市道路。

© Choi Jinbo

© Choi Jinbo

四层平面图

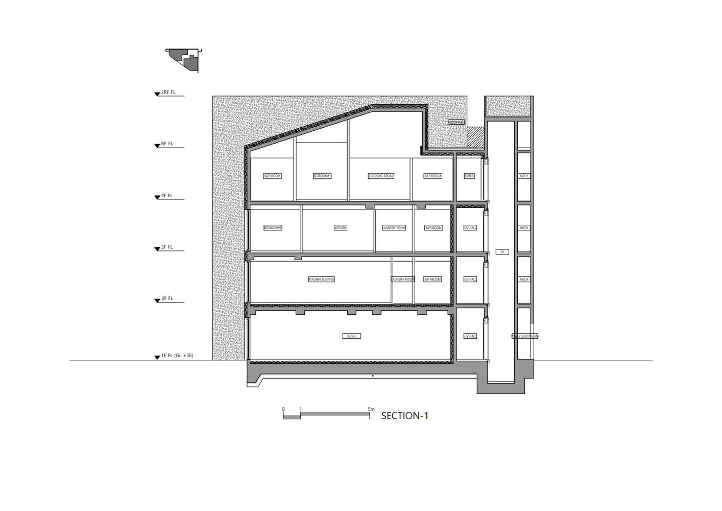
剖面图

© Choi Jinbo

© Choi Jinbo
This four story mixed use building combines community commercial space with rental housing, truly expressing a response to site conditions and functional requirements. To the north and east, facing the noise of traffic and the arid urban landscape, rough concrete walls stand firmly in an L-shape. These walls blur the distinction between floors, provide a unified facade, and attract people's attention to the commercial space on the first floor.
这座四层混合用途建筑将社区商业空间与租赁住房相结合,真实地表达了对场地条件和功能要求的回应。 在北面和东面,面对着交通的噪音和干旱的城市景观,粗糙的混凝土墙以 L 形牢牢地矗立着。 这些墙壁模糊了楼层之间的区别,提供了一个统一的立面,吸引了人们对一楼商业空间的关注。

© Choi Jinbo
In contrast, the south and west sides of the forest are composed of layers of gently curved rock masses stacked on top of each other. The concave middle layer is mainly designed to provide more space for the owner's fourth floor unit within the limited building area regulations.
相比之下,靠着森林的南面和西面由一层层堆叠的平缓弯曲的岩体组成。 凹进的中间层,主要目的是在有限的建筑面积规定下为业主的四楼单元提供更多空间。

© Choi Jinbo
Thanks to this configuration, the homeowner's unit has a balcony with trees and lawn, while the rental unit on the third floor benefits from a rain proof protective eave. These contrasting facades converge at the corners of the triangle, visually highlighting the dual nature of the land. The edges that could have been forgotten have instead become powerful expressions of design intent.
得益于这种配置,业主的单元有一个带树木和草坪的阳台,而三楼的出租单元则受益于一个可以挡雨的防护檐。 这些对比鲜明的立面在三角形的角落汇聚,在视觉上突出了土地的双重性质。 原本可能被遗忘的边缘反而成为设计意图的有力表达。

© Choi Jinbo

© Choi Jinbo
When designing this house, we imagined soft cocoon like forms attached to sturdy tree branches - like cocoons - and even thought of pop-up cards that display three-dimensional shapes when opened. We envisioned a vibrant three-dimensional experience, rather than repetitive and mundane daily life, filled with memories created by a family living together.
在设计这座房子时,我们想象着柔软的茧状形式依附在坚固的树枝上 —— 就像蚕茧一样 —— 甚至想到了打开时显示三维形状的弹出式卡片。 我们设想了一个充满活力的三维体验,而不是重复和平淡的日常生活,这个体验充满了由一个共同生活的家庭创造的回忆。

© Choi Jinbo