Cloud House/ROOM+Design&Build
云之屋 / ROOM+ Design & Build
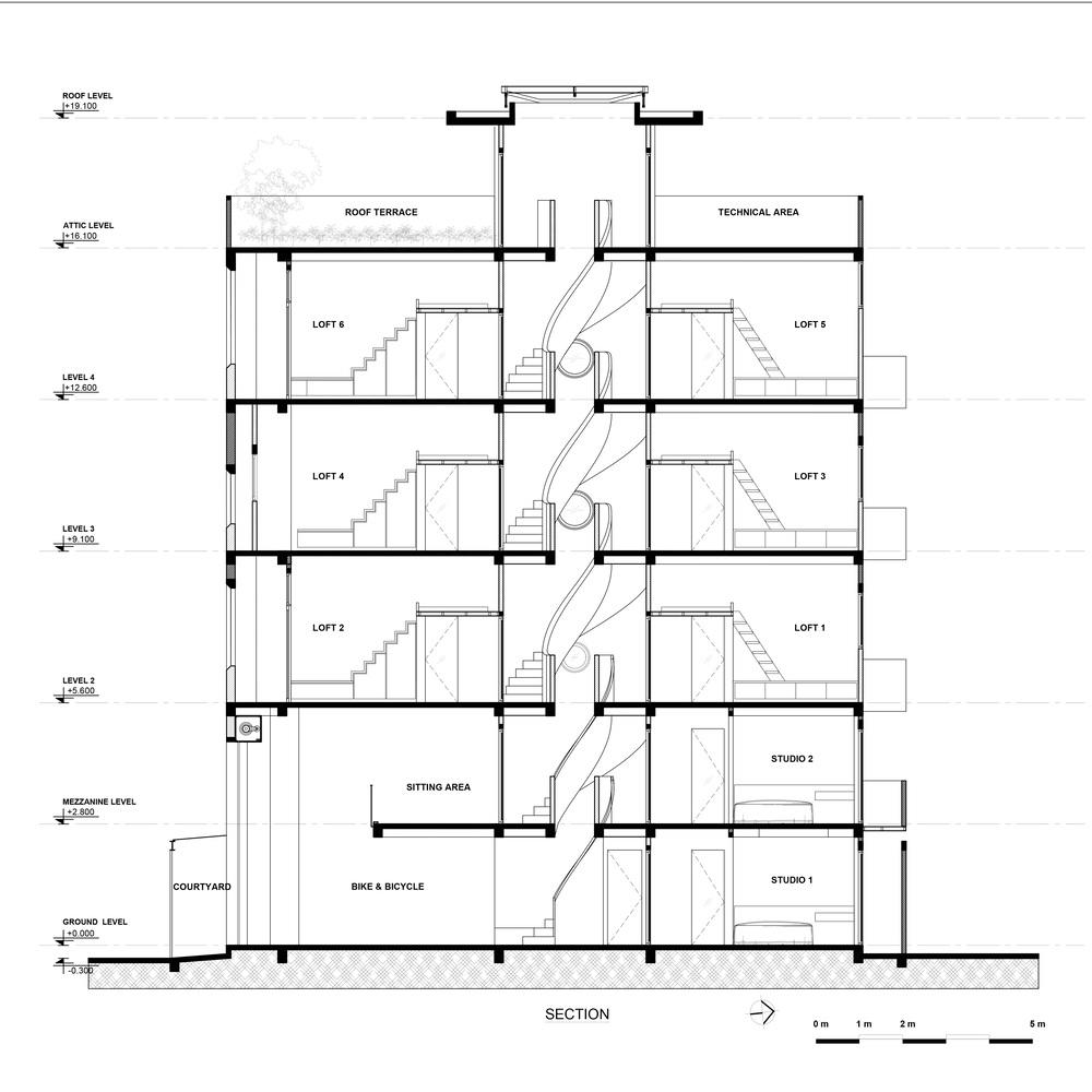
空间利用的精妙:该项目最显著的亮点在于其对有限空间的极致利用。在胡志明市中心寸土寸金的环境下,设计团队巧妙地将70平方米的场地打造成了精品合住建筑。通过采用阁楼式套房设计,并在入口和浴室上方设置小型阁楼空间,设计师最大限度地利用了3.5米高的层高,从而在有限的空间内创造出宽敞舒适的居住体验。这种设计策略不仅提升了居住品质,也体现了对高密度城市居住环境的深刻理解和适应。此外,多功能家具的巧妙运用,例如长椅、衣柜和储物柜等,也进一步提升了空间的实用性和灵活性,是小户型设计中的典范。
公共空间的社区营造:除了对私人空间的精心设计,该项目在公共空间的设计上同样出彩。设计师充分考虑了合住建筑的特点,精心打造了多个共享半公共空间,例如庭院、螺旋楼梯、公共休息区和屋顶露台。特别是螺旋楼梯的设计,它不仅是连接各楼层的通道,更是一个充满趣味性和互动性的社交场所,促进了居民之间的交流。公共空间的设置有效地打破了单调的居住环境,增强了社区氛围,为居住者提供了社交和休闲的场所。这种对公共空间的重视,是该项目区别于传统出租公寓的重要特征,也体现了对现代居住需求的深刻理解。
光影与自然的诗意:“云之屋”项目在设计中融入了对自然元素的巧妙运用,创造出独特的视觉体验。项目立面上的圆形和云形开口,以及屋顶天窗,不仅提供了充足的采光和自然通风,更巧妙地将外部的自然景观引入室内。这些独特的设计元素与建筑内部的曲线空间相结合,营造出光影的互动,唤起了居住者的想象力和对自然的向往。通过这种方式,项目成功地将高密度城市环境与诗意的自然意境融为一体,让居住者在繁华都市中也能体验到轻松愉悦的生活感受。这种对自然光和通风的巧妙运用,是该项目的一大亮点,也体现了设计师对建筑与环境关系的深刻思考。

© Sonmeo Nguyen Art Studio

© Sonmeo Nguyen Art Studio
In recent years, housing prices in major cities in Vietnam have been soaring, leaving most young, middle-income singles and couples without the ability to purchase a house. They have no choice but to live in small, poorly designed, and uncomfortable rental homes squeezed into typical tube houses. Therefore, improving the quality of life for residents while ensuring economic affordability has always been the dual goal of designing rental co living projects in the city center. Cloud House is a boutique co living building located in the bustling city center of Ho Chi Minh City. The 70 square meter site is located in a 4-meter-wide alley, surrounded by many townhouses of different sizes and heights. The design scheme is driven by three interrelated concepts: contemporary loft style private suites, multifunctional semi public spaces, and glimpsing nature in high-density urban environments.
近年来,越南大城市的房价一直在飙升,大多数年轻、中等收入的单身人士和夫妇没有购买房子的能力,他们别无选择,只能住在挤在典型的筒子楼里的小而设计糟糕、不舒服的出租房里。 因此,在确保经济承受能力的同时提高居住者的生活质量,一直是设计市中心租赁共居项目的双重目标。 云之屋是位于胡志明市繁华市区的一座精品合住建筑。 70 平方米的场地位于一条 4 米宽的小巷中,周围环绕着许多大小和高度各异的联排别墅。 设计方案由三个相互关联的概念驱动:当代阁楼式私人套房、多功能半公共空间,以及在高密度城市环境中瞥见大自然。

© Sonmeo Nguyen Art Studio

二层和三层平面图

© Sonmeo Nguyen Art Studio

© Sonmeo Nguyen Art Studio
Firstly, six loft style suites and two standard studios are neatly arranged in a relatively small space. The entrance area and bathroom ceiling of each rental suite are equipped with the smallest attic space to maximize the use of the 3.5-meter-high floor space, providing spacious and comfortable living space for the main living space. It is recommended to use neutral materials and color palettes, while cleverly designing multifunctional furniture such as benches, wardrobes, and storage cabinets, harmoniously combining with secondary structural elements, including the smallest wooden staircase and lightweight flooring made of steel frames and standard cement boards.
首先,六间阁楼式套房和两间标准工作室整齐地排列在相对较小的场地内。 每个出租套房的入口区和浴室顶部都设有最小的阁楼空间,以最大限度地利用 3.5 米高的落地空间,为主生活空间提供宽敞舒适的空间。 建议采用中性材料和调色板,而设计巧妙的多功能家具,如长椅、衣柜和储物柜,与次要结构元素和谐地结合在一起,包括由钢框架和标准水泥板制成的最小木制楼梯和轻质地板。

© Sonmeo Nguyen Art Studio

© Sonmeo Nguyen Art Studio

剖面图

© Sonmeo Nguyen Art Studio

© Sonmeo Nguyen Art Studio
Secondly, all shared semi public spaces within the building have been carefully designed to provide convenience and entertainment for residents. The courtyard and half of the first floor are used for bicycles and bike parking, and the spacious spiral staircase accommodates the central area of the building well. It is not only an interesting daily circulation route, but also an informal intimate interactive space. The public rest area and rooftop terrace located on the mezzanine floor are also happily shared by residents. These public spaces create a sense of community for people living under one roof.
其次,大楼内所有共享的半公共空间都经过精心设计,为居住者提供便利和娱乐。 庭院和一楼的一半用于自行车和脚踏车停放,宽敞的螺旋楼梯很好地容纳了建筑的中心区域,不仅是一条有趣的日常流通路线,也是一个非正式的亲密互动空间。 位于夹层楼面的公共休息区和屋顶露台也由住户愉快地共享。 这些公共空间为生活在一个屋檐下的人们创造了一种社区感。

© Sonmeo Nguyen Art Studio

大样图

© Sonmeo Nguyen Art Studio
Finally, a series of circular and cloud shaped openings and windows on the front and rear facades, as well as roof skylights, provide ideal views, sunlight, and natural ventilation while ensuring privacy and comfort. In addition, these unique openings and the curved interior space of the cloud house create interactions between entities and the void, light and shadow, strongly implying an imaginative nature and evoking a sense of wonder, allowing residents to experience a dynamic feeling as they wander between constantly changing clouds outside the hustle and bustle of the city.
最后,前后立面的一系列圆形和云形开口和窗户,以及屋顶天窗,在确保隐私和舒适的同时,也提供了理想的视野、日光和自然通风。 此外,这些独特的开口和云屋的曲线形内部空间所创造的实体与虚空、光与影之间的相互作用,强烈地暗示了一种富有想象力的自然,唤起了一种惊奇感,让居住者在喧嚣的城市之外,在不断变化的云朵之间徘徊时,体验到一种动态的感觉。

© Sonmeo Nguyen Art Studio