Apartment 1/B+P Architects
公寓1号 / B+P Architects
空间与邻里关系的巧妙融合:该项目最引人注目的亮点在于其对邻里关系的深刻理解和巧妙设计。设计师充分利用场地条件,例如开阔的绿地和狭窄的巷道,创造了既亲密又充满活力的城市肌理。通过精心规划的入口序列、共享阳台以及错落有致的住宅单元布局,项目打破了传统公寓的封闭性,鼓励居民之间的互动。绿化元素的融入,尤其是种植在住宅单元之间的树木,不仅美化了环境,更在视觉和心理上营造出一种缓冲,促进了公共与私密空间的和谐共存,构建了富有生机的社区氛围。
功能与形式的创新性统一:项目的精髓在于它成功地将功能性需求与创新性的形式语言完美结合。建筑采用混合功能设计,将商业与住宅分区,并通过独立的入口和垂直交通核心,确保了居住的私密性和舒适性。地下室坡道的设置、单元内部的独特布局,以及住宅单元在垂直方向上的错位排布,都体现了设计师对空间利用效率的极致追求。更重要的是,这些设计并非仅仅为了满足功能需求,而是为了创造一种全新的居住体验,促进居民与周围环境的互动,并赋予建筑独特的个性和魅力,展现了建筑设计的深层价值。
对城市文脉的深刻回应:该项目不仅是对当代建筑设计的探索,更是对城市文脉的深刻回应。设计师从嘉义市的小城生活中汲取灵感,将对质朴街道、绿树庭院和邻里关系的记忆融入设计之中。通过对“共享空间”的细致划分,项目构建了社区层面和住宅层面的双重互动模式,增强了居民的归属感和社区认同感。这种设计理念超越了单纯的建筑,更是一种对城市生活方式的思考和实践。它鼓励居民在现代都市中重拾邻里情谊,塑造一个充满活力、富有人情味的居住环境,体现了建筑对社会责任的担当。

© Studio Millspace

© Studio Millspace
Apartment 1 is located in a quiet corner behind a school district, facing a park and connected to narrow alleys on both sides. The conditions of the site are quite attractive - with open green spaces in front and closely arranged row houses on both sides - forming an intimate and clearly defined urban texture. Through a carefully planned sequence of home spaces and a layout of shared balconies, this project aims to create a friendly neighborhood lifestyle in a compact urban environment.
公寓1号坐落于一个学区后方静谧的角落,正对着一座公园,两侧则与狭窄的小巷相连。该场地的条件颇具吸引力 —— 前方是开阔的绿地,两侧则是紧密排列的连排住宅 —— 形成了一种既亲密又界限分明的城市肌理。通过精心规划的归家空间序列以及共享阳台的布局,该项目旨在紧凑的城市环境中塑造一种友好邻里生活方式。

© Studio Millspace

© Studio Millspace

© Studio Millspace
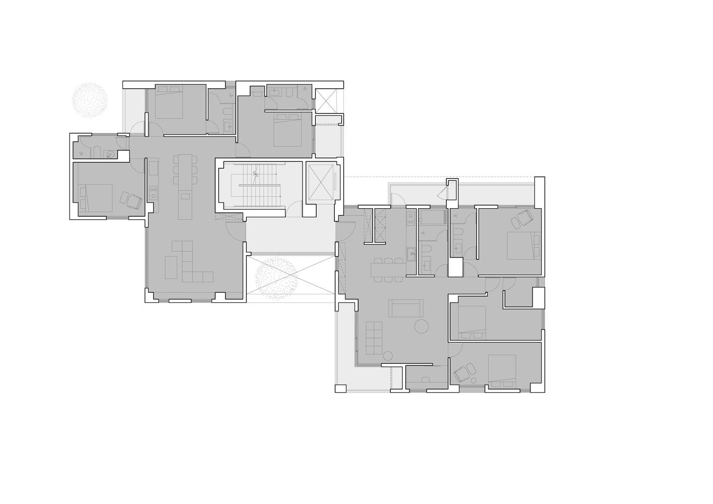
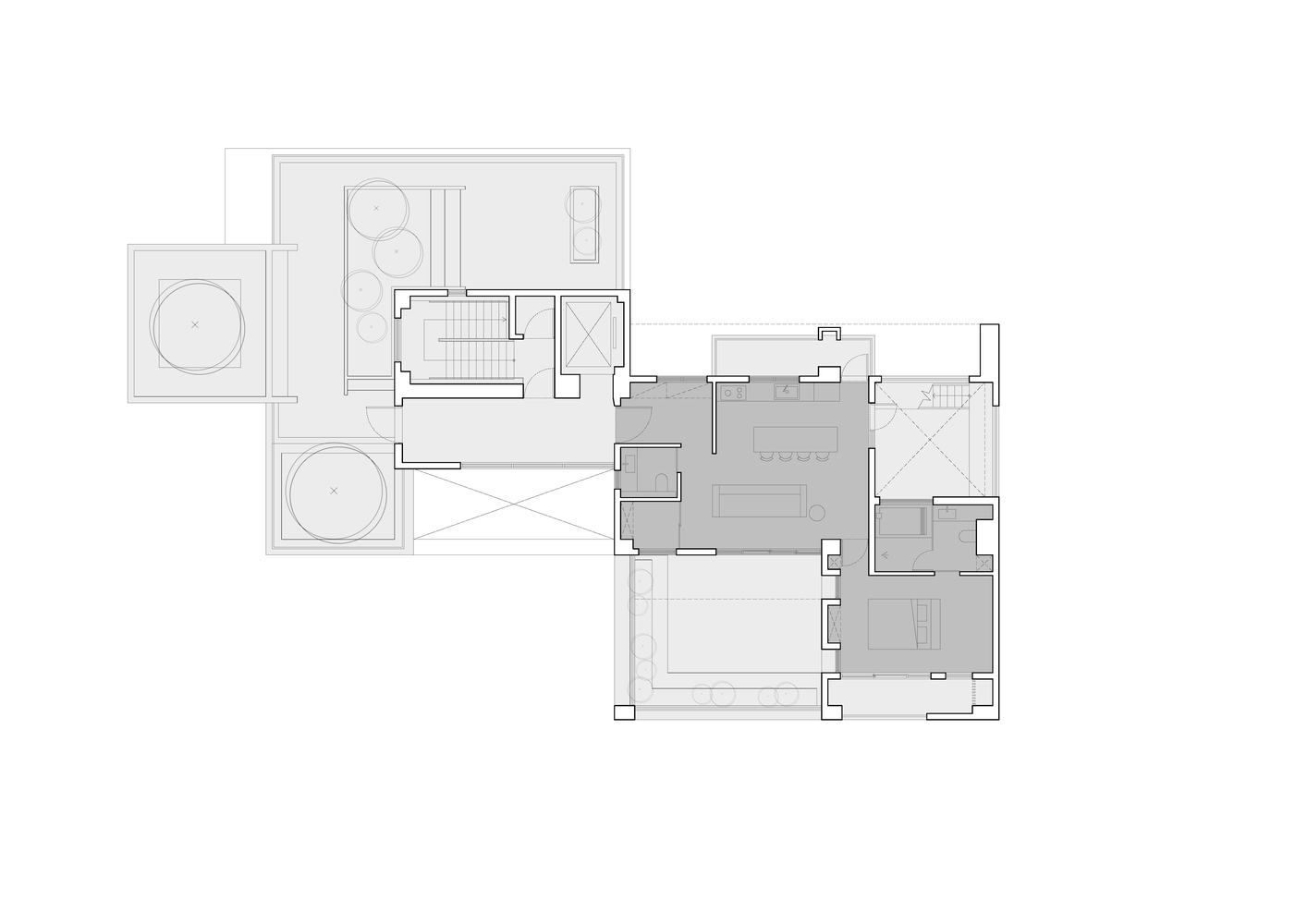
The building consists of one basement level and six above ground levels, consisting of two volumes - a typical mixed use building type commonly seen in southern Taiwanese cities. The front unit is a two-story commercial residential building, facing the street and park, while the residential entrance is located at the back of the building, along a relatively quiet side alley, achieving the separation of the commercial and residential areas.
该建筑包含一层地下室和地上六层,由两个体量构成 —— 这是台湾南部城市常见的典型混合用途建筑类型。前部的单元是两层楼的商铺住宅,正对着街道和公园,而住宅入口则设在建筑后方,沿着一条较为安静的侧巷,这样的设计实现了商业区和住宅区的分离。

© Studio Millspace
Residents enter a landscaped ground floor lobby through a side alley. From there, they ascend to the third floor and above, where residential units are located, through a vertical transportation core - a stairwell and elevator shaft surrounded by greenery and facing the park.
居民从侧巷进入一个经过景观设计的首层大堂。从那里,他们通过一个垂直交通核心 —— 被绿植环绕且朝向公园的楼梯井和电梯井 —— 上行至三楼及以上,那里是住宅单元所在之处。

© Studio Millspace

© Studio Millspace

三层平面图

五层平面图

© Studio Millspace
To maximize space utilization efficiency on a compact site, a sloping ramp has been installed in the basement for parking. On the ground floor, the building extends completely to the street, while slightly retreating from the rear boundary line to maintain a certain distance from adjacent buildings. Above, two residential wing buildings are arranged in a staggered manner in the vertical direction. This subtle misalignment design creates a certain degree of separation between each unit, ensuring the privacy of residents and promoting gentle spatial interaction between neighbors.
为在紧凑的场地上实现空间利用效率最大化,地下室设置了一个带坡度的坡道用于停车。在地面层,建筑体量完全延伸至街道,同时从后方地界线稍作退让,与相邻建筑保持一定距离。在上方,两座住宅翼楼在垂直方向上呈交错布局。这种微妙的错位设计在各单元之间形成了一定程度的分隔,既保证了住户的隐私,又促进了邻里之间柔和的空间互动。

© Studio Millspace

© Studio Millspace
This design distinguishes between two different levels of 'shared space'. At the community level, the first level of shared space begins with a green alleyway leading to the lobby, creating a gentle and pleasant entrance experience sequence. At the residential level, the shared staircase hall, balcony space, and green buffer zone in the middle form a vertical extension of neighborhood life.
该设计区分了两种不同层级的“共享空间”。在社区层面,第一层级的共享空间始于通往大堂的绿色小巷,营造出一种温和且宜人的入口体验序列。在住宅层面,共享的楼梯大厅、阳台空间以及中间的绿化缓冲区域,则构成了邻里生活的垂直延伸。

© Studio Millspace
Trees are planted in the gaps between paired residential units, forming a natural buffer zone. These intermediate spaces allow the balcony and living dining area to face the stairwell and open to each other, establishing a horizontal and vertical, public and private interactive connection between the residence and the community.
成对的住宅单元之间的空隙处种植了树木,形成了一道天然的缓冲带。这些中间空间使得阳台和起居-用餐区域能够朝向楼梯井以及彼此敞开,从而在住宅与社区之间建立了一种既水平又垂直、既公共又私密的互动联系。

© Studio Millspace

© Studio Millspace
From the third to the sixth floor, each unit adopts a unique layout design rather than relying on standardized templates. The shared stairwell is located in the center of each unit, while private rooms are distributed at both ends of each unit, facing either the street or the back alley, allowing each residential unit to blend in slightly different ways with the surrounding urban environment.
从三楼到六楼,每个单元都采用了独特的布局设计,而非基于标准化模板。共享的楼梯井位于单元中央,而私人房间则分布在每个单元的两端,或朝向街道,或朝向后巷,使得每户住宅都能以略有不同的方式与周边城市环境相融合。

© Studio Millspace
Residential buildings reflect people's way of life in the city. As a form of collective living, apartment buildings must transform individual living habits into a shared spatial system. The design inspiration for this project comes from memories of small town life - the simple streets, tree lined courtyards, and urban life shaped by daily activities and neighborly closeness. Although Chiayi City is not large, it has a unique neighborhood scale.
住宅建筑体现了人们在城市中的生活方式。公寓楼作为一种集体居住形式,必须将个人的生活习惯转化为共享的空间体系。这一项目的设计灵感源自对小城生活的记忆 —— 那些质朴的街道、绿树成荫的庭院,以及由日常活动和邻里亲近所塑造的城市生活。嘉义市虽不大,却拥有独特的邻里尺度。

© Studio Millspace