Bundle Villa/NOMO STUDIO
Bundle 别墅 / NOMO STUDIO
场地适应与空间布局:这座别墅最显著的亮点在于其对场地环境的巧妙适应。项目选址于狭长的梯形地块,设计团队并未简单地将建筑置于其上,而是采用了一种富有策略性的方式。通过将建筑体量分解为九个不同高度的矩形单元,并顺应斜坡地形延伸,建筑得以与周围环境和谐共生。这种设计手法不仅优化了视野,也创造了丰富的空间层次感。退台式的布局与梯田地貌相呼应,在花园中营造出私密的口袋空间,实现了室内外空间的无缝过渡,体现了设计者对环境的深刻理解和尊重。
光线、通风与空间体验:在内部空间设计上,该项目展现了卓越的创新能力。中央露台是核心亮点,它不仅为室内引入自然光线,还通过双层天花板的反射,营造出通透而明亮的空间氛围。更重要的是,这个露台作为一个多功能的生活空间,在不同季节发挥着不同的作用,兼具遮阳、通风和避风的功能。全高窗户的运用,将门廊、起居区和露台融为一体,拓展了空间边界,提供了开阔的海景视野。此外,设计中巧妙利用的几何形态,创造出自然烟囱效应,促进了空气流通,提升了居住的舒适度,体现了对舒适度和可持续性的关注。
材料、质感与细节处理:该项目在材料运用和细节处理上同样可圈可点。建筑外立面采用裸露混凝土梁、坚固的砌体墙和细长的金属柱,形成了一种坚固而富有现代感的结构语言,搭配浅沙色外墙,与周围环境融为一体。室内设计则大胆采用了柔软的泥土色调和天然材料,如砂岩、陶瓷、花岗岩和木材,营造出温馨而富有质感的氛围。与极简主义的立面形成鲜明对比的是,室内展示了丰富的纹理、复杂的图案和公开的施工方法,例如双层高的展厅和金属雕塑般的楼梯,这些都极大地提升了空间的艺术性和居住体验,展现了设计者对材料、质感和细节的精湛掌控。

© Adrià Goula

© Adrià Goula
This villa, covering an area of 350 square meters, is located on a narrow trapezoidal plot of land, and its design cleverly utilizes the surrounding environment, with a very wide view. In order to coordinate with the natural environment, the design strategy includes subdividing the vast scheme into nine rectangular volumes of different heights, cleverly extending downwards along the slope. The stepped setback closely follows the terraced layout, creating a private pocket space in the garden, seamlessly integrating indoor and outdoor spaces.
这座占地 350 平方米的别墅坐落在狭长的梯形地块上,其设计巧妙地利用了周围环境,视野十分开阔。 为了与自然环境相协调,设计策略包括将广阔的方案细分为九个不同高度的矩形体量,巧妙地沿着斜坡向下延伸。 阶梯状的退台紧随梯田形状的布局,在花园中创造了私密的口袋空间,将室内和室外空间无缝融合。

© Adrià Goula

© Adrià Goula

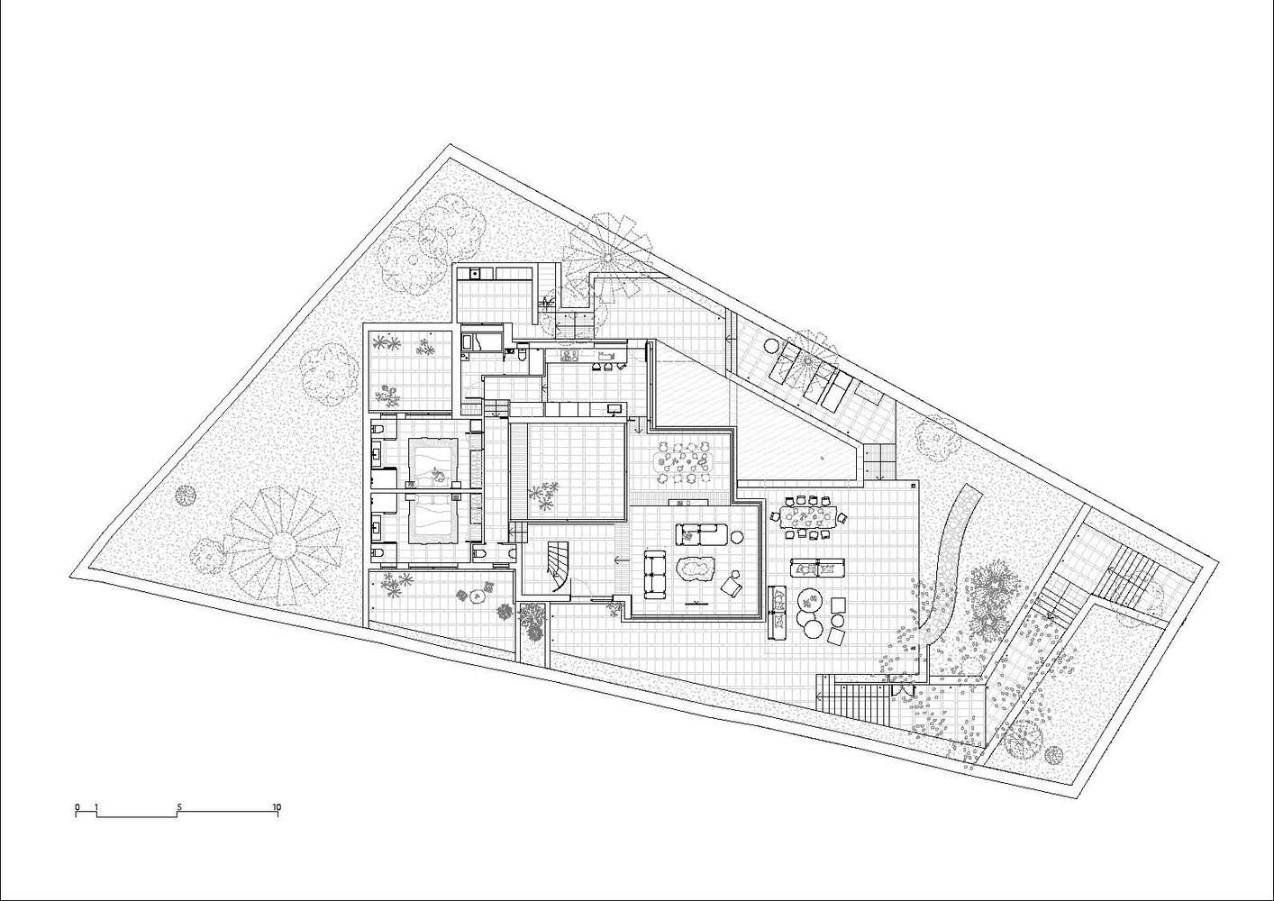
一层平面图

© Adrià Goula
Internally, a 6x6 meter central terrace brings natural light to the interior, which is reflected from the double layered ceiling in the surrounding daytime area. This courtyard is equipped with built-in sofas and lounge puffs, making it a multifunctional living space that provides shade and cross ventilation in summer, transforming into a sheltered outdoor space in cold months. The innovative design allows for seamless integration of the porch, living area, and terrace into a spacious space, achieved by sliding open full height windows in both corners. The design team boldly extended the overhanging edge as part of the indoor experience, providing a spacious sea view. By utilizing the dual height geometric shape of the terrace, they create a natural chimney effect that draws in fresh air and effectively cools the interior. In addition, tall spaces and low openings promote natural ventilation as warm air rises, helping to create a comfortable indoor environment.
在内部,一个 6x6 米的中央露台为室内带来了自然光,这些自然光从周围日间区域的双层天花板反射出来。 这个庭院配有内置沙发和休息室泡芙,是一个多功能的生活空间,在夏季提供遮阳和交叉通风,在寒冷的月份转变为一个避风的户外空间。 创新的设计允许将门廊、起居区和露台无缝集成到一个宽敞的空间中,通过滑动打开两个角落的全高窗户来实现。 设计团队将悬挑边缘大胆延伸,作为室内体验的一部分,提供开阔的海景。 利用露台的双重高度几何形状,它们产生了一种自然的烟囱效应,吸入新鲜空气,有效地冷却了室内。 此外,高大空间和低位开口促进了自然通风,因为暖空气会上升,有助于营造舒适的室内环境。

© Adrià Goula
The architectural performance is defined by the exposed concrete beams between sturdy masonry walls and slender metal columns, forming a continuous glass curtain wall foundation that seamlessly connects indoor and outdoor spaces. The geometric shape of the villa is adjusted according to its construction technology, with ceramic arched ceilings and concrete blocks creating a cohesive design language. The light sand colored exterior walls harmonize with the surrounding environment while keeping the interior cool.
建筑表现由坚固的砌体墙和细长的金属柱之间的裸露混凝土梁定义,形成了一个连续的玻璃幕墙基础,无缝连接室内和室外空间。 别墅的几何形状根据其建造技术进行调整,陶瓷拱形天花板和混凝土砌块创造了一种有凝聚力的设计语言。 浅沙色的外墙与周围环境相协调,同时保持室内凉爽。

© Adrià Goula

© Adrià Goula
Indoors, soft earthy tones and natural materials create a warm atmosphere, while sandstone, ceramics, granite, and wood add rich colors to the tactile and visual experience. In sharp contrast to the minimalist facade, the interior showcases rich textures, complex patterns, and publicly displayed construction methods. After entering the double height exhibition hall, people will feel ample sunlight, and a metal sculpture like curved staircase spirals up, connecting the upper and lower floors. The space on the first floor flows smoothly around the courtyard, while the corridor upstairs becomes a bright open hall, visually connected to other areas of the house. The suite bedroom is spacious, equipped with an open washbasin, a large mirror, and a bathroom and shower with grooved glass. The wardrobe is designed as an open cabinet with curtains, adding a soft touch to the interior design and optimizing space utilization.
在室内,柔和的泥土色调和天然材料营造出温馨的氛围,砂岩、陶瓷、花岗岩和木材为触觉和视觉体验增添了丰富的色彩。 与极简主义立面形成鲜明对比的是,内部展示了丰富的纹理、复杂的图案和公开展示的施工方法。 进入双层高的展厅后,人们会感受到充足的日光,而一个金属雕塑般的弧形楼梯盘旋而上,连接上下两层。 一楼的空间在庭院周围流畅地流动,而楼上的走廊则变成了明亮的开放式大厅,在视觉上与房子的其他区域相连。 套房卧室空间宽敞,设有开放式洗脸盆、大镜子和带凹槽玻璃的卫生间和淋浴间。 衣柜设计为带窗帘的开放式橱柜,为室内设计增添了柔和感,并优化了空间利用率。

© Adrià Goula

剖面图

© Adrià Goula
The swimming pool seamlessly integrates with the building, becoming an indispensable space surrounding the dining area, creating a charming visual effect. A quirky staggered staircase leads to a rooftop terrace, where users can enjoy the magnificent scenery of Mallorca.
游泳池与建筑无缝融合,成为环绕用餐区的一个不可或缺的空间,营造出一种迷人的视觉效果。 一个古怪的交错楼梯通向屋顶露台,在这里用户可以欣赏到马略卡岛的壮丽景色。

© Adrià Goula