Mashhad 'Mian' Residential Project/Pi Architects
马什哈德“Mian”住宅项目 / Pi architects
设计理念与创新:“Mian”住宅项目最引人注目的地方在于其对传统城市住宅概念的颠覆。项目打破了常规的建筑模式,大胆采用多样的户型设计,而非仅仅依赖于面积大小。这种创新体现在五种独特的平面布局上,每一种都赋予了不同的空间体验。通过这种多样性,住户可以根据自己的生活方式和偏好选择最适合自己的居住空间,体现了以人为本的设计理念。此外,建筑师有意打破建筑中点的形式和结构,创造出错层单元,进一步丰富了空间层次,增强了室内空间的定义,这在千篇一律的城市住宅中独树一帜,展现了建筑师对空间设计的深刻理解和大胆尝试。
空间组织与功能布局:项目在空间组织和功能布局上的匠心独运值得称赞。建筑南侧的功能性露台,不仅增强了居住的舒适性和私密性,更重要的是,它连接了建筑内外的视觉联系,形成了与周边环境的互动。露台的凹进式设计巧妙地在实用性和隐私性之间找到了平衡。同时,这种设计也促进了建筑与周围环境的融合,将马利卡巴德花园的绿色景观和南部山脉的壮丽景色引入视野。此外,建筑入口处的下沉式花园和悬梯设计,则赋予了入口独特的空间特征,并实现了与外部环境的视觉连续性,进一步提升了项目的整体品质。
立面设计与可持续性:“Mian”住宅项目的立面设计突出了对三维空间的关注,实现了复式单元和其他单元在视觉上的分离,创造了独特的视觉效果。半开放的露台设计也响应了现代人对户外连接、自然通风和宜居体验的需求。通过这种设计,有效地分隔了建筑内的公共区域和私人区域,让居民在享受私密性的同时,也能便捷地使用公共空间。这种考虑周到的布局不仅保护了隐私和舒适性,还在减少不必要的能源使用方面发挥了作用,体现了对可持续设计的重视。这种对建筑空间、功能和环境的综合考量,使“Mian”住宅项目成为一个兼具创新性和实用性的优秀案例。

© diman studio

© diman studio
The "Mian" residential project is located on one of the main roads in Mashhad - the Kalantari Expressway. The project aims to rethink the concept of urban housing by breaking traditional patterns and providing a unique nine unit residential structure.
“Mian”住宅项目位于马什哈德的主要干道之一 —— Kalantari 高速公路上。该项目旨在通过打破传统模式,提供独特的九单元住宅结构,重新思考城市住房的概念。

© diman studio
This design includes five unique types of floor plans, each providing its own spatial quality. This diversity allows users to choose from various options based on spatial experience and personal living preferences, rather than just area, while maintaining overall coherence of the project.
该设计包括五种独特的平面布局类型,每种类型都提供了其空间质量。 这种多样性在保持项目整体连贯性的同时,允许用户根据空间体验和个人生活偏好,而不仅仅是面积,在各种选项中进行选择。

© diman studio

© diman studio

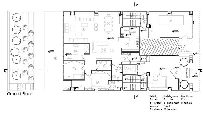
一层平面图

© diman studio
A prominent feature of this project is intentionally breaking the form, volume, and structure of the building's midpoint. This decision not only enhances the definition of indoor space, but also creates units with staggered structures: two duplex units, one triple unit, and three units with fragmented internal layouts.
该项目的一个突出特点是故意打破建筑中点的形式、体积和结构。 这一决定不仅增强了室内空间的定义,还产生了错层结构的单元:两个复式单元、一个三式单元和三个内部布局零碎的单元。

© diman studio
There is a functional terrace on the south side of the building, which extends deep into the building volume. These terraces have two main purposes: firstly, their recessed design enhances usability while maintaining privacy; Secondly, they allow for horizontal visual connections from south to north, forming a framework for the green landscape of the Malikabad Garden in the northern part of the site and the southern mountains.
建筑南侧设有功能性的露台,深入到建筑体量中。这些露台有两个主要用途:首先,它们的凹进设计增强了可用性,同时保持了隐私性; 其次,它们允许从南到北的水平视觉连接,形成南部山脉和场地北部马利卡巴德花园绿色景观的框架。

© diman studio

© diman studio

五楼平面图

六楼复式单元平面图

© diman studio
As a semi open space, the terrace responds to the growing demand of modern users for outdoor connectivity, natural ventilation, and a more livable experience in dense urban environments. This three-dimensional connection effectively separates the public and private areas within the building. It enables residents to live comfortably in private areas and only use public spaces when needed, such as entertaining guests. This thoughtful layout not only protects privacy and comfort, but also improves energy efficiency by reducing unnecessary energy usage.
露台作为半开放空间,回应了现代用户对与户外连接、自然通风以及在密集的城市环境中获得更宜居体验的日益增长的需求。 这种立体连接也有效地将建筑内的公共区域和私人区域分隔开来。 它使居民能够在私人区域舒适地生活,只在需要时使用公共空间,例如招待客人。 这种周到的布局不仅保护了隐私和舒适性,而且通过减少不必要的能源使用,提高了能源效率。

© diman studio
The focus on the third dimension in facade design emphasizes the separation between duplex and triple units and other units, creating a three-dimensional visual image that is detached from the plane. There are two sunken gardens at the entrance of the building, connected to the lobby through a suspended staircase. This creates a unique spatial feature for the entrance while maintaining visual continuity with the outside.
立面设计中对第三维的关注强调了复式和三联式单元与其他单元之间的分离,创造了一个脱离平面的三维视觉形象。 建筑入口有两个下沉式花园,通过悬梯与大厅相连。 这为入口创造了一个独特的空间特征,同时保持了与外部的视觉连续性。
© diman studio