Matsuyama Cottage/Ogawa Nishikori Architects
松山小屋 / Ogawa Nishikori Architects
统一的社区氛围:该项目最显著的亮点在于其对社区氛围的营造。建筑师巧妙地运用大型山墙屋顶,赋予了建筑“大房子”的亲切外观,瞬间拉近了与社区居民的距离。内部空间以中央大厅为核心展开,这种布局不仅保证了流畅的动线,也为不同规模的活动提供了灵活的空间。设计师成功地将亲密聚会与大型活动的需求统一起来,创造了一种既有社区感,又不失人性化尺度的独特氛围。这种设计理念体现了对使用者需求的深刻理解,以及对社区联系的重视。
光线与通风的巧妙结合:建筑师对自然光的运用和通风的设计堪称精妙。通过抬升部分山墙结构,巧妙地引入了高侧窗,不仅提升了建筑的采光性能,还增强了空气的流通。这些开口的设计充分考虑了当地的风向,保证了室内空气的自然交换,同时,光线的投射也随着时间的变化而不断变幻,为室内空间带来了活力。此外,向外延伸的深檐形成半遮蔽的室外空间,模糊了室内外边界,为使用者提供了更舒适、更具互动性的活动场所,进一步增强了社区的开放性和包容性。
结构与空间的和谐统一:该项目的结构设计同样值得称赞。密集的梁布局和膝盖支架的应用,在节约材料的同时,也赋予了建筑独特的视觉韵律。这种有节奏的框架巧妙地划分了空间单元,打破了整体屋顶带来的单调感,并创造了光影的动态变化,丰富了空间的层次。设计师在结构逻辑与空间表现之间找到了完美的平衡,创造了一个既实用又充满魅力的环境。这种设计既满足了建筑的功能需求,又为使用者带来了丰富的使用体验,充分体现了建筑师对细节的关注和对空间的深刻理解。

© Nao Takahashi

© Nao Takahashi
The project aims to rebuild a community-based facility and share knowledge about family affairs and children's education. The new building is located in the suburbs of Matsuyama City, Ehime Prefecture, and can accommodate various users from infants to the elderly, creating space for various activities aimed at improving family life.
该项目旨在重建一个以社区为基础的设施,分享有关家庭事务和儿童教育方面的知识。 新建筑位于爱媛县松山市郊区,可容纳从婴儿到老年人的各种用户,为旨在改善家庭生活的各种活动营造空间。

© Nao Takahashi

© Nao Takahashi

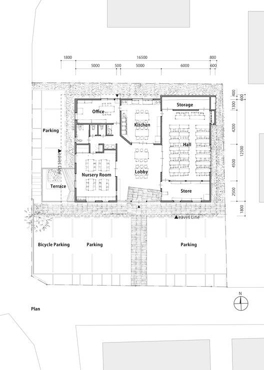
平面图

© Nao Takahashi

© Nao Takahashi
The large gable roof defines the existence of the building, giving it a familiar "big house" appearance. In this unified form, the space is arranged around the central hall, ensuring seamless movement and flexible use. This layout is suitable for both intimate gatherings and large-scale events, creating a sense of community while maintaining a humanized atmosphere.
大型山墙屋顶定义了建筑的存在,使其具有熟悉的“大房子”外观。在这种统一的形式下,空间围绕中央大厅布置,确保了无缝移动和灵活使用。 这种布局既适合亲密聚会,也适合大型活动,在保持人性化氛围的同时,营造出一种社区感。

© Nao Takahashi

© Nao Takahashi

剖面图

© Nao Takahashi
The roof incorporates high side windows by lifting some of the gable structures, introducing natural light and enhancing ventilation. These openings are positioned to cope with prevailing wind patterns, allowing for gentle airflow while projecting constantly changing patterns of light throughout the day. The deep eaves extend southward and westward, forming a semi shaded outdoor space that blurs the boundaries between indoors and outdoors. These spaces are both open extensions of indoor spaces and more enclosed, comfortable, and interactive areas.
屋顶通过抬升部分山墙结构,引入自然光并加强通风,从而融入了高侧窗。 这些开口的位置是为了应对盛行风模式,它们允许温和的气流,同时全天投射出不断变化的光线图案。 深檐向南和向西延伸,形成半遮蔽的室外空间,模糊了室内外的界限。 这些空间既是室内空间的开放式延伸,也是更封闭、更舒适、更便于互动的区域。

© Nao Takahashi
The structural system features a dense beam layout with knee supports, minimizing the need for large-span timber and allowing for the use of standard materials. This rhythmic framework cleverly defines the spatial units beneath the overall roof, visually breaking its scale while maintaining a cohesive whole. The repetition of beams and brackets creates a dynamic interaction between light and shadow, changing the perception of space based on the observation angle. By balancing clear structural logic and rich space, this design creates an adaptable and engaging environment that supports daily activities and promotes connections between users.
结构系统具有密集的梁布局,配有膝盖支架,最大限度地减少了对大跨度木材的需求,并允许使用标准材料。 这种有节奏的框架巧妙地定义了总体屋顶下的空间单元,在视觉上打破了其规模,同时保持了一个有凝聚力的整体。 梁和支架的重复创造了光和影的动态相互作用,根据观察角度改变对空间的感知。 通过平衡清晰的结构逻辑和丰富的空间,该设计创造了一个适应性强的、引人入胜的环境,支持日常活动,并促进用户之间的联系。

© Nao Takahashi