Apartment 16, Blooming Crimson Apartment/Wuuu Studio
Apartment 16,绽放的绯红色公寓/ Wuuu Studio
设计理念与空间规划:该项目最显著的亮点在于其对20世纪中期现代主义风格的致敬与对当代生活方式的巧妙结合。设计师大胆运用鲜艳的色彩,如红、蓝、黄,营造出充满活力与个性的空间氛围,是对那个时代乐观精神的致敬。更重要的是,在有限的马来西亚居住空间内,项目对空间进行了精细的规划与优化。开放式的布局打破了传统隔断,增强了空间的流动性和通透性,同时促进了社交互动。这种对空间的高效利用和对生活方式的积极回应,体现了设计师对现代居住需求的深刻理解。
材料运用与细节处理:项目的精髓在于对材料的精心选择和运用,以及对细节的极致追求。深红色调的染色胶合板与不锈钢的冷冽光泽形成鲜明对比,这种材料的碰撞产生了独特的视觉效果。定制的弯曲钢制扶手在楼梯处轻盈悬浮,既实现了功能性,又增添了雕塑般的艺术美感。此外,ALPI木饰面的天然纹理、&Tradition Flowerpot VP1 灯具的哑光质感,都为空间带来了丰富的感官体验,营造出富有层次感的视觉韵律。这些精心挑选的材质与细节,共同构建了一个既现代又充满怀旧氛围的居住空间。
“压缩与释放”与功能至上:设计师巧妙地运用了弗兰克·劳埃德·赖特的“压缩与释放”设计理念,在入口处营造出具有仪式感的过渡空间。红色墙面的包裹感,引导人们进入内部的开放空间,实现了视觉上的戏剧性过渡。同时,该项目也深刻地践行了20世纪中期设计的核心理念——“形式追随功能”。从空间布局到材料选择,都以实用性和舒适性为出发点。卧室改造成步入式衣帽间,不仅提升了功能性,也让空间更显宽敞。这种设计理念的坚持,使得住宅既美观实用,又充满生活气息,最终营造出一种和谐、温馨的居住氛围,真正体现了“家”的意义。

© TWJPTO

© TWJPTO
A heartfelt tribute to mid-20th century modernism and a fresh interpretation of contemporary life - this residence is like a vivid painting, a deep tribute to the enduring charm of mid-20th century aesthetics, and has been carefully reconstructed to fit contemporary life. Its style is bold and fearless, with bright red, blue, and yellow colors interwoven throughout the interior - this is a tribute to the optimistic spirit, colorful colors, and dynamic composition demonstrated in mid-20th century design. These color tones not only serve a decorative purpose, but also infuse the space with a warm, personalized, and cheerful nostalgic atmosphere.
向 20 世纪中期现代主义致以深情礼赞,为当下生活焕新演绎——这座住宅宛如一幅鲜活的画卷,是对 20 世纪中期美学持久魅力的深情致敬,并经过精心重构以契合当代生活。其风格大胆无畏,室内随处可见明艳的红、蓝、黄三色交织 —— 这正是对 20 世纪中期设计所彰显的乐观精神、缤纷色彩与灵动构图的礼赞。这些色调不仅起到装饰作用,更让空间洋溢着温馨、个性与欢快的怀旧气息。

© TWJPTO

© TWJPTO

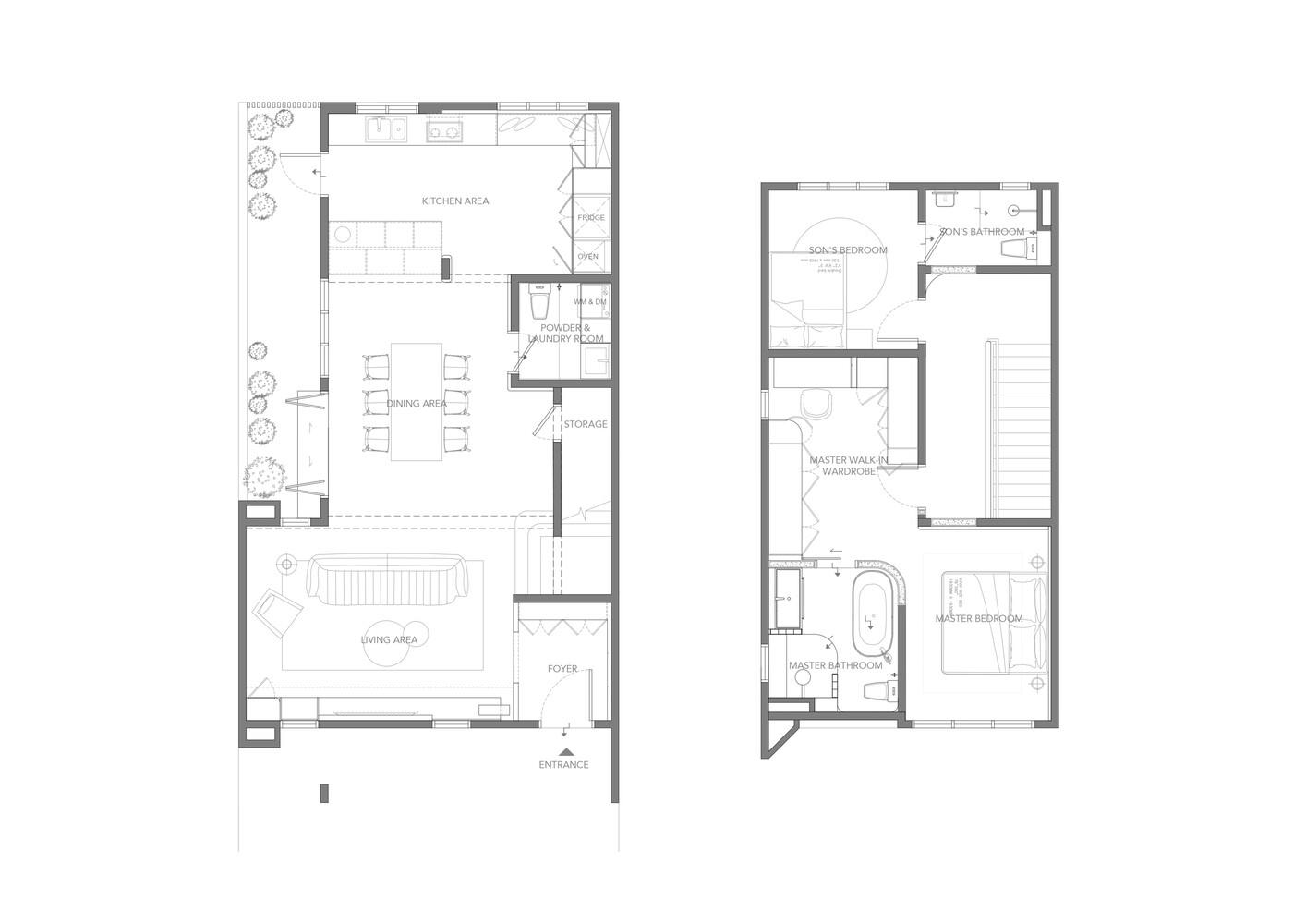
平面图

© TWJPTO
The core of this design is to respond sensitively to the high-density and compact living environment commonly seen in Malaysia today. In a situation where space is extremely valuable, comprehensive spatial planning has become the cornerstone of this project. The original layout has been reimagined to create a sense of openness, fluidity, and transparency. By removing the partition walls between the living room, dining room, and kitchen areas, this residence has now become a cohesive open space that, despite its limited footprint, promotes social interaction and conveys a sense of openness and grandeur.
这一设计的核心在于,对当下马来西亚常见的高密度紧凑居住环境做出敏锐回应。在空间极为宝贵的情况下,周全的空间规划成为了该项目的基石。原有布局被重新构思,以营造开阔感、流动感和通透感。通过拆除客厅、餐厅和厨房区域之间的隔墙,如今,这座住宅成为一个连贯的开放式空间,尽管占地面积有限,却促进了社交互动,传递出一种豁达大气的空间感受。

© TWJPTO
Upstairs, the boundaries of spatial layout have been reconsidered once again. A bedroom has been transformed into a walk-in closet, enhancing the functionality of the master bedroom suite and making it feel more spacious. These subtle yet highly strategic changes enhance the practicality of the residence, creating a luxurious and transparent atmosphere that is completely different from being in a small space.
楼上,空间布局的界限再次被重新考量。一间卧室被改造成了步入式衣帽间,增强了主卧套房的功能性,也让人感觉其空间更为宽敞。这些微妙却极具策略性的改动,提升了住宅的实用性,营造出一种奢华且通透的氛围,全然不似身处狭小空间之中。

© TWJPTO
At the same time, the entrance is carefully designed as a ceremonial transitional space. Inspired by Frank Lloyd Wright's "compression and release" design philosophy, the foyer uses color rather than form to create spatial tension. The walls are painted in a strong red color, creating a sense of wrapping and privacy, which then leads people into an open and peaceful space inside. Stepping into it, the soft beige background becomes a neutral canvas for expressing personality. This visual tranquility allows carefully selected objects in the home - each chosen for its shape, story, or temperament - to shine brightly. These elements are not deliberately eye-catching, but are harmoniously integrated with each other. They are like freckles that adorn the home, showcasing their charm in a low-key way, yet never overshadowing the crowd.
与此同时,入口处被精心设计成一个颇具仪式感的过渡空间。受弗兰克·劳埃德·赖特(Frank Lloyd Wright)“压缩与释放”设计理念的启发,门厅运用色彩而非造型来营造空间张力。其墙面被涂以浓烈的红色,营造出一种包裹感和私密感,随后将人引入内部开阔宁静的空间。步入其中,柔和的米色背景成为表达个性的中性画布。这种视觉上的宁静,让家中精心挑选的物件 —— 每一件都因其造型、故事或气质而被选中 —— 得以大放异彩。这些元素并不刻意夺人眼球,而是彼此和谐相融。它们如同点缀在家中的雀斑,以低调的方式展现韵味,却从不喧宾夺主。

© TWJPTO
The core of this design lies in the carefully selected combination of materials, which deeply roots the residence in the style heritage of the mid-20th century. The dyed plywood with a deep red tone presents the rich texture and touch of classic wooden veneer, forming a sharp contrast with the cold and bright stainless steel, and the stainless steel surface is also treated with exquisite hair texture. These materials collide with each other at the staircase, creating dynamic sparks - custom curved steel handrails float lightly like sculptural ribbons, achieving a perfect balance and tension between warmth and modernity.
该设计的核心在于精心挑选的材料组合,这些材料让住宅深深扎根于 20 世纪中期的风格底蕴之中。带有深红色调的染色胶合板,呈现出经典木质饰面的丰富质感与触感,与不锈钢的冷冽明快形成鲜明对比,而不锈钢表面还采用了精致的发丝纹理处理。这些材料在楼梯处碰撞出灵动的火花 —— 定制弯曲的钢制扶手宛如雕塑般的丝带般轻盈悬浮,在温暖质感与现代气息之间达成完美的平衡与张力。

© TWJPTO

© TWJPTO

© TWJPTO
Texture also plays a crucial role in design language. From the natural texture of ALPI wood veneer to; The soft matte texture of the Tradition Flowerpot VP1 lighting fixture creates a layered visual rhythm for the space on every surface. These elements together construct rich sensory experiences, elevating daily life into a poetic realm.
质感在设计语言中也扮演着至关重要的角色。从ALPI木饰面的天然纹理,到 &Tradition Flowerpot VP1 灯具柔和的哑光质感,每一处表面都为空间营造出富有层次感的视觉韵律。这些元素共同构建出丰富的感官体验,将日常生活升华为诗意之境。

© TWJPTO
However, beneath this captivating beauty lies a deeper design philosophy - the eternal creed of mid-20th century design: form follows function. Every decision, from spatial layout to material selection, is deeply rooted in this belief. The final presentation of the residence is not only visually captivating, but also carefully considered - the design blends harmoniously with daily life, creating a peaceful and harmonious atmosphere. Home, sweet home - here it is most vividly interpreted.
然而,在这令人着迷的美感之下,蕴含着更深层次的设计理念—— 20 世纪中期设计永恒的信条:形式追随功能。从空间布局到材料选择,每一个决策都深深植根于这一信念。最终呈现的住宅不仅在视觉上引人入胜,更经过深思熟虑——设计与日常生活在此和谐共融,静谧而默契。家,甜蜜的家——在此处得到了最真切的诠释。

© TWJPTO