S House/建筑师事务所
S House / PL.Architekci
与环境共生的设计理念:“S House”项目最令人印象深刻的特质在于其与周围环境的和谐共生。建筑师巧妙地将房屋设计成蜿蜒的“S”形,不仅巧妙避开了对现有树木的砍伐,更是让建筑本身融入了周围的森林和花园景观。这种设计理念超越了简单的建筑外观,将房屋变成了一个与自然对话的场所。通过大面积的玻璃幕墙,室内外空间相互渗透,模糊了室内与室外的界限。居住者可以从房屋的任何位置都享受到与自然的直接接触,这种设计体现了对环境的尊重和对居住体验的深刻理解。
创新的空间解决方案与结构表达:该项目在面对限制条件时展现了设计师的创造力。由于当地规划对屋顶角度的要求,设计师并未简单妥协,而是创造性地设计了手风琴式的屋顶。这种结构不仅满足了规范要求,更成为了室内设计的核心元素,定义了内部空间的高度和形态。屋顶的几何线条与极简主义的室内设计相辅相成,赋予了空间独特的韵律感。同时,设计者将照明和通风系统巧妙地融入结构之中,实现了功能与美学的统一,创造了卓越的声学效果。这种创新不仅体现在外部形态上,更贯穿于整个室内设计,体现了设计师对细节的极致追求。
整体设计理念与材料运用:“S House”项目突出了建筑与室内设计的整体性。设计师将房屋视为一个整体,而非割裂的建筑与室内部分,两者相互依存、互相塑造。这种理念体现在材料的选择和运用上。白色树脂地板与建筑周围的混凝土带无缝衔接,营造出一种纯粹、宁静的氛围。深棕色橡木饰面的结构则为空间增添了温暖与活力,打破了单调的白色基调。这种对比和统一的材料运用,以及对极简主义风格的精准把握,共同营造了一个既现代又舒适、既安静又充满艺术氛围的居住空间。这种整体设计理念是项目成功的关键。

© Tom Kurek

© Tom Kurek
建筑师提供的文字描述。S House是一座与周围环境共生的极简主义房屋。它的形状类似于字母S,是由于以不砍伐一棵树的方式刻下了丰富的功能布局而形成的。在我们第一次参观投资者的地块时,我们就觉得这所房子必须是一个简单的玻璃亭,通向一个美丽的花园,一片森林。当发现复杂的函数程序不适合在允许开发的区域中想象的长方体时,问题就出现了,而且几乎不适合一半!于是,通过在两个地方扭曲这个长方体来“挤压”它的想法出现了。
Text description provided by the architects. S House is a minimalist house living in symbiosis with its surroundings. Its shape, similar to the letter S, was created as a result of inscribing a rich functional layout in such a way as not to cut down a single tree. Already during our first visit to the investors' plot, we felt that this house had to be a simple, glazed pavilion open to a beautiful garden, a forest. The problem arose when it turned out that the complex functional program did not fit into the imagined cuboid in the area where development is permitted, and by almost half! And here came the idea to "squeeze" this cuboid by twisting it in two places.

© Tom Kurek

© Tom Kurek
因此,房子蜿蜒在树林之间,让居民几乎直接与周围环境接触。这房子已成为花园的一部分。它简单而单色的形状就像一个现代的大型花园雕塑。因此,这座房子不仅是一座建筑,而且本身就是一个同时展示内部和外部的正式框架。穿过房子,沿着一条蜿蜒的玻璃走廊,我们仿佛穿过一个花园;房子和花园没有经典的划分。里面的东西也构成了建筑的立面!有趣的是,投资者的姓氏也以“S”开头。房子的整个概念是紧密相连的。
So the house winds between the trees, giving the residents almost direct contact with the surroundings. The house has become a part of the garden. Its simple and monochromatic shape is like a modern, large garden sculpture. The house is therefore not only a building here, but in itself is a formal frame for displaying the interior and exterior simultaneously. Walking through the house, along a winding glass corridor, we walk as if through a garden; there is no classic division into house and garden. What is inside also forms the elevation of the building! Interestingly, the investors' surname also begins with "S". The whole concept of the house is strongly connected.

© Tom Kurek

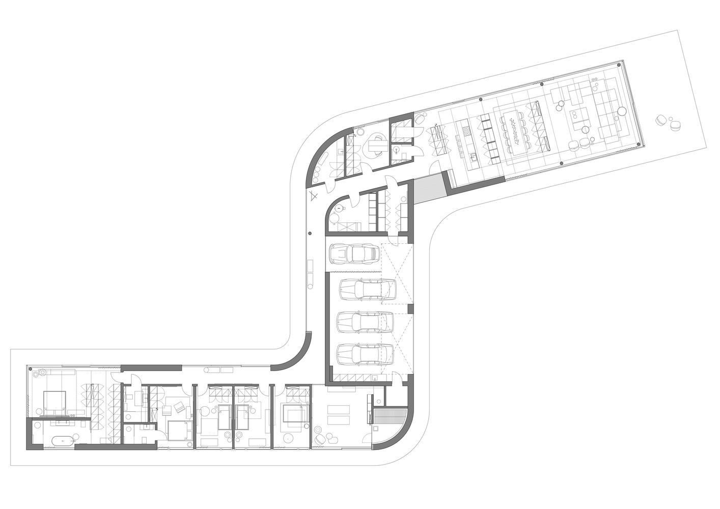
Ground Floor Plan

© Tom Kurek
这应该是一栋单层房子,但当地计划的规定谈到了“屋顶坡度的倾斜形状为20度”。因此,整个建筑都设计了一个手风琴式屋顶,不仅从外面可以看到,而且我们决定在里面也展示出来,这让投资者感到高兴,因为他们想在当地拥有更高的房间。这个过程定义了整个内部。再一次,建筑塑造了室内!然而,这不仅仅是纯粹的装饰:极简主义的照明和机械通风出现在弯道的线条中;这种布置还促进了玻璃室的更好的声学效果。
It was supposed to be a single-story house, but the provisions of the local plan spoke of "sloping shaping of roof slopes with an angle of 20 degrees". So a concertina roof was designed for the entire building, which is not only visible from the outside, but we decided to show it inside as well, to the delight of the investors, because they wanted to have locally higher rooms. And this very procedure defined the entire interior. Again, architecture shaped the interior! However, this is not just pure decoration: minimalist lighting and mechanical ventilation appeared in the lines of the bends; such an arrangement also promotes better acoustics of the glass rooms.

© Tom Kurek

© Tom Kurek
这座房子(其建筑和室内设计)从一开始就被设计成一个安静和沉思的地方:自然和艺术。极简主义的方法在材料、颜色和艺术的选择上显而易见。白色树脂地板与建筑周围的混凝土带无缝融合。深棕色橡木贴面结构打破了无处不在的白色。
This house (its architecture and interiors) was designed from the very beginning as a place of silence and contemplation: of nature and art. The minimalist approach is visible in the sparing choice of materials, colors, and art. White resin floors blend seamlessly with the concrete band around the building. The omnipresent whiteness has been broken by dark brown oak-veneered structures.

© Tom Kurek
对我们来说,室内设计和建筑之间没有界限;我们进行整体设计,因为室内设计创造建筑,建筑创造室内设计。我们喜欢这两个方面交织在一起。S HOUSE无疑是我们工作中这一理念最先进的例子。
For us, there is no division between interiors and architecture; we design holistically, because interiors create architecture, and architecture creates interiors. We like it when these two aspects intertwine and combine. S HOUSE is undoubtedly the most advanced example of this philosophy in our work.

© Tom Kurek