雨果之家/伊恩·摩尔建筑师事务所
Hugo’s House / Ian Moore Architects
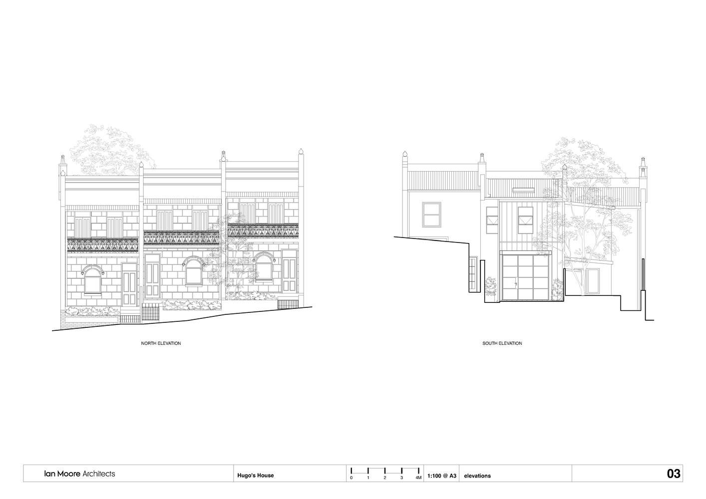
亮点:新旧对比的和谐统一:该项目最引人注目的特点在于其新旧建筑元素的巧妙融合。在遗产保护区,设计师通过明确区分新旧建筑,避免了对原有维多利亚风格建筑的过度侵扰,这体现了对历史文脉的尊重。新扩建部分采用轻质钢框架结构和钢框架窗户,与原始的抹灰砖墙形成鲜明对比,这种对比不仅赋予了建筑现代感,也突出了历史建筑的特征。这种“新”与“旧”的对话,在视觉上和谐统一,既保留了历史的记忆,又满足了现代生活的需求。
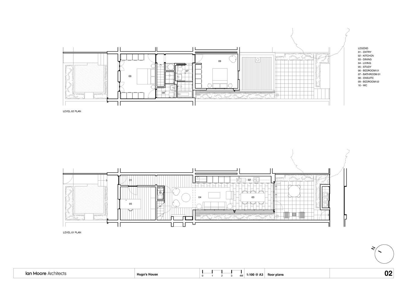
精髓:空间利用与光线设计的巧妙结合:项目在空间利用方面展现了极高的智慧。由于原始建筑的楼梯结构限制了底层空间的开放性,设计师选择在后部扩建中打造新的生活空间。更值得称道的是对光线的巧妙运用。主卧室套间淋浴上方的天窗,解决了无窗空间的采光问题,体现了对室内舒适度的关注。而新扩建部分的软木地板,以及厨房的镜面后挡板,都通过材料的选择与空间的互动,实现了对光线的有效引导和反射,使室内空间更通透明亮。
亮点:材料与细节的精致呈现:项目的细节处理体现了设计师对材料的深入理解和对品质的追求。软木地板与原有木地板在色彩上的呼应,厨房细木工制品与钢框架门的色彩搭配,以及浴室水磨石瓷砖和日本手指瓷砖的运用,都呈现出统一的风格和精致的质感。此外,侧院灰色的铝制花盆与后院水磨石砖的运用,在视觉上实现了室内外空间的连接。这些细节不仅提升了建筑的美学价值,也体现了设计师对居住者生活品质的关注和对整体设计的把控能力。

© Clinton Weaver

© Clinton Weaver
建筑师提供的文字描述。该项目涉及对一排6栋相同的维多利亚式联排别墅中的一栋进行改建和扩建,这些别墅在上层的两间原始卧室之间有一个十字楼梯。交叉楼梯的类型使得打开较低楼层的前两个房间以形成一个大的生活和用餐空间变得更加困难,因此决定在新的后部扩建中创造更多的生活空间。以前的后扩建部分,包括厨房和洗衣房,与后院的连接很差,被拆除为新的扩建部分让路,其中还包括上层的一间新卧室。
Text description provided by the architects. This project involved alterations and additions to one of a row of 6 identical Victorian terrace houses, which have a cross stair between the two original bedrooms on the upper level. The cross stair typology makes opening up the front two rooms on the lower level to form a large living and dining space more difficult, so it was decided instead to create more living space in a new rear extension. The former rear extension, containing the kitchen and laundry had a poor connection to the rear courtyard and was demolished to make way for a new extension, which also included a new bedroom on the upper level.

© Clinton Weaver

Elevations

Floor Plans

© Clinton Weaver

© Clinton Weaver
位于遗产保护区,当地议会希望新作品与原来的房子有明显的区别。新作品表现为两层轻质钢框架复合结构,带有钢框架窗户,与原始房屋的抹灰砖墙形成对比。新的钢架门窗将房子打开,通往后院和侧院,侧院全长用灰色铝制花盆进行景观美化,因为围墙有一个大的混凝土基脚,可以防止任何挖掘。
Located in a Heritage Conservation Area, the local Council wanted the new work to be clearly differentiated from the original house. The new work is expressed as a two storey lightweight, steel framed and clad structure, with steel framed windows, contrasting with the rendered brickwork of the original house. The new steel framed windows and doors open the house to both the rear and side courtyards, with the side courtyard landscaped along its full length with grey aluminium planters, due to the presence of a large concrete footing for the boundary wall preventing any excavation.

© Clinton Weaver

Section

© Clinton Weaver
在上层,前后卧室被改造成了两间浴室,一间是主卧室的套间,主卧室的淋浴上方有一个天窗,可以让没有窗户的空间充满光线。软木地板用于较低楼层的新扩建,在视觉上与原始房屋的木地板颜色相关联。厨房的细木工制品是淡灰色的,与钢架门相匹配,并有一个镜面后挡板,以反映侧庭院中的植物。浴室采用了水磨石瓷砖和日本手指瓷砖,后院也使用了水磨石砖。
On the upper level the former rear bedroom has been converted to two bathrooms, one an ensuite to the main bedroom, which has a skylight over the shower to flood the windowless space with light. Cork flooring is used in the new extension of the lower level, to visually relate to the colour of the timber floor of the original house. Kitchen joinery is a pale grey to match the steel framed doors and has a mirrored splash back to reflect the planting in the side courtyard. Terrazzo tiles and Japanese finger tiles have been used for bathrooms, with the terrazzo tiles also used in the rear courtyard.

© Clinton Weaver