MK之家/工作室12
MK House / Atelier 12
空间利用与开放性:MK House 在狭小场地上的设计展现了卓越的空间利用技巧。面对河内拥挤的城市环境,设计师并未选择封闭,而是通过开放式平面布局,尽可能减少隔断,将自然光和通风引入室内。这种设计策略打破了传统住宅的封闭感,促进了家庭成员之间的互动,并创造出一种“家”的整体感。透明的地板走廊和中空钢梯的设计,不仅解决了垂直交通问题,也提供了自然光和通风的通道,同时增强了空间的通透性和连贯性,体现了设计师对狭小空间内居住体验的深入思考。
立面设计与文化传承:项目的立面设计是其另一大亮点。设计者巧妙地利用规划法规中的后退空间,采用了轻盈的空心钢地板系统,结合模拟“李ếp tre”竹百叶窗的薄钢带编织立面,为建筑赋予了独特的视觉效果。这种设计不仅实现了阳台、季节性缓冲区和垂直花园的多重功能,还在建筑与街景之间形成了一种微妙的过渡。更重要的是,它巧妙地运用了越南传统建筑的元素,传达了对自然的敬畏和对本土文化的尊重,使建筑在现代语境下焕发出独特的韵味,体现了对地域文脉的深刻理解。
精神内核与生活方式:MK House 的精髓在于它不仅仅是一个居住空间,更是一个体现家庭生活方式和精神追求的场所。设计师在满足功能需求的同时,也关注到家庭成员的精神生活。通过开放的空间、充足的自然光、清晰的视野以及家人之间的互动,营造出一个健康、积极的生活环境。项目通过对“足够”的追求,而非过度奢华,强调了人与空间、人与自然之间的联系。这种设计理念是对现代城市生活中快节奏、碎片化的一种反思,也为在拥挤的城市中创造舒适、温馨的家园提供了值得借鉴的经验,体现了建筑师对居住者精神世界的关怀。

© Chimnon studio

© Chimnon studio
建筑师提供的文字描述。对于那些熟悉河内的人来说,漫步在36条古老的街道上可能仍然会让人感到诗意,但这不再掩盖这座城市变得更加拥挤的事实。在拥挤的房屋中,MK House是为一个紧凑的4x11平方米的三口之家设计的,有一个简单的愿望:一个足够生活、工作和玩耍而没有障碍的家。
Text description provided by the architects. For those familiar with Hanoi, a stroll through the 36 ancient streets may still feel poetic, but it no longer masks the fact that the city has grown more congested. Among the tightly packed houses, MK House was designed for a small family of three on compact 4x11-meter squares, guided by a simple wish: a home that is enough for living, working, and playing without barriers.

© Chimnon studio

© Chimnon studio

© Chimnon studio

Facade

© Chimnon studio
在像河内这样的大城市,家庭生活空间的碎片化已经变得普遍。随着密度的增加,房屋从外立面到内部和单个房间都变得更加封闭,保护居民免受外界入侵。然而,这样做也扩大了家庭成员之间的情感和空间距离。外界越受约束,人们就越渴望从内部开放。此外,典型的河内房屋的封闭性也是房主期望开放空间的原因,这样房子就不会被孤立,并与街道生活建立一种软连接。这就是为什么我们以不同的方式对待MK House:开放式平面图、最小的隔断,以及对阳光和风流等自然元素的强烈强调,我们创造了一个感觉完整的生活环境,让家庭成员保持联系。
In big cities like Hanoi, the fragmentation of family living spaces has become common. As density increases, homes grow more enclosed, from the façade to the interiors and individual rooms, shielding their inhabitants from outside intrusion. However, in doing so, they also widen the emotional and spatial distance between family members. The more constrained the outside world becomes, the more people desire openness from the inside. In addition, the closedness of typical Hanoi houses is also the reason why the homeowner expected open spaces so that the house would not be isolated, and create a soft connection with the street life. That's why we approached MK House differently: an open floor plan, minimal partitions, and a strong emphasis on natural elements like sunlight and wind flow, we created a living environment that feels whole, and keeps the family members connected.

© Chimnon studio

© Chimnon studio

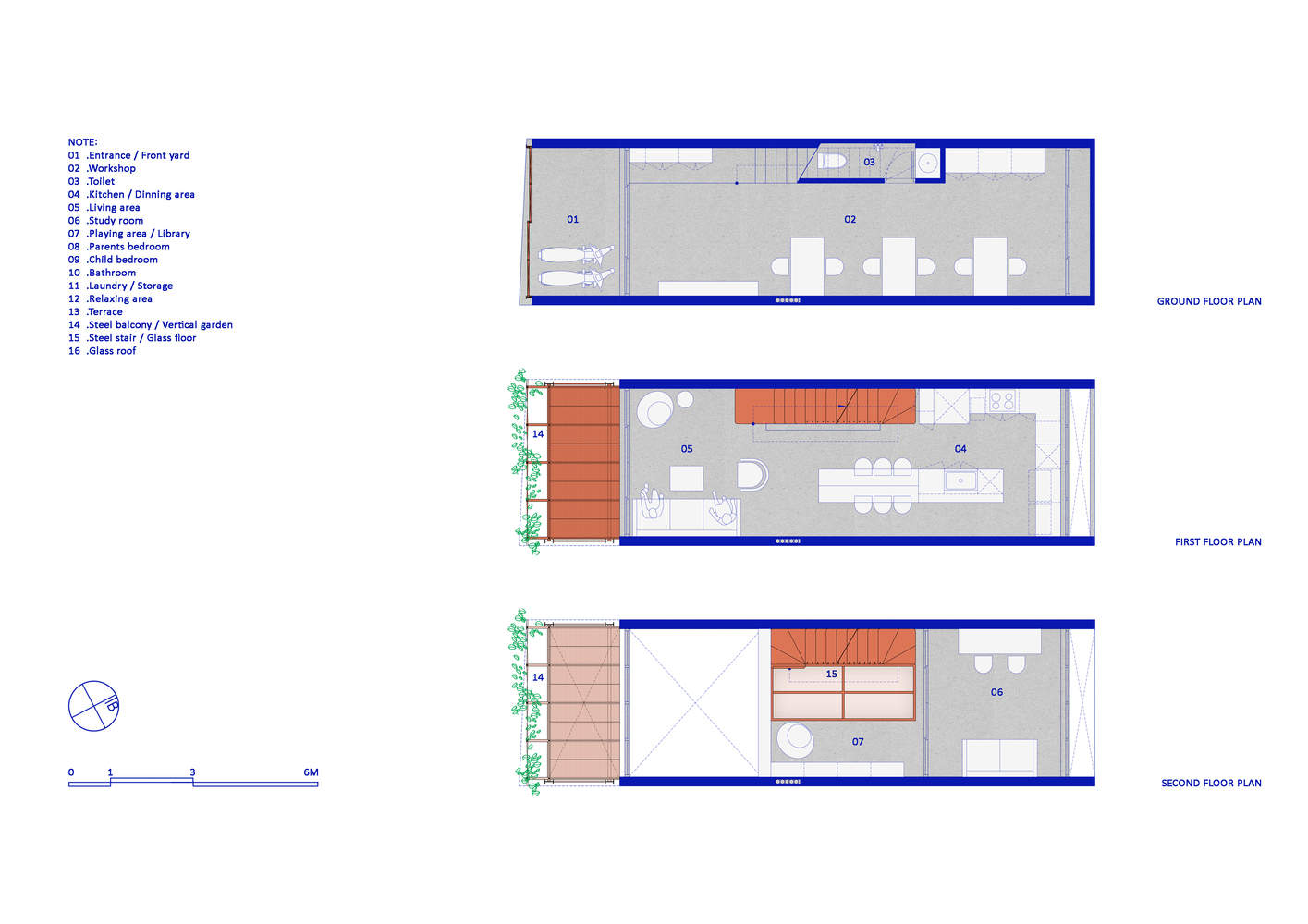
Ground, First, Second Floor Plan

© Chimnon studio
在较低的楼层,业主的工作场所是开放的,几乎使用了整个区域。家庭的功能区,如客厅、厨房、餐桌、卧室等,都放在上层。空间组织解决方案的宽度仅为4米,需要效率、保持通风和内部连接。相反,我们设计了一个透明的地板走廊,结合了一个中空钢梯,这是一个灵活的结构,起着交通平台的作用,是一个获得自然光和通风的地方,同时在整个房子里开辟了一个无缝的垂直连接。这不仅提高了空间清晰度,还促进了家庭成员之间的日常互动。
On the lower floor, the owner's workplace is open, using almost the entire area. The functional areas, such as the living room, kitchen, dining table, bedroom, etc., of the family are placed on the upper floors. Having a limited width of only 4 meters, the space organization solution requires efficiency, maintaining ventilation, and internal connectivity. Instead, we designed a transparent-floored corridor combined with a hollow steel ladder, a flexible structure that plays the role of a traffic platform, a place to get natural light and ventilation, while opening up a seamless vertical connection throughout the house. This not only enhances spatial clarity but also fosters everyday interaction among family members.

© Chimnon studio

© Chimnon studio

Section

© Chimnon studio
根据规划规定,房子的前部是一个后退区域,在那里不可能用混凝土建造,但为更轻的结构提供了机会。我们选择安装一个空心钢地板系统,其立面由薄钢带编织而成,模拟“李”的外观ếp tre”-传统的竹百叶窗。这种结构具有多种作用:它可以作为阳台、季节性缓冲区、垂直花园,也可以简单地作为房屋和街景之间的流动钢帘。它也是越南传统建筑如何温柔、周到、适应性地与自然互动的安静隐喻。
The front of the house is a setback area according to planning regulations, where it is impossible to build with concrete, but opens up opportunities for a lighter structure. We chose to install a hollow steel floor system with a facade woven with thin steel strips, simulating the appearance of "liếp tre" - traditional bamboo blinds. This structure serves multiple roles: it functions as a balcony, a seasonal buffer, a vertical garden, or simply as a flowing steel curtain mediating between the house and the streetscape. It is also a quiet metaphor for how traditional Vietnamese architecture engages with nature softly, thoughtfully, and adaptably.

© Chimnon studio

© Chimnon studio
除了功能要求外,MK House还反映了房主生活中的私人文化层,多年来培养了丰富的精神和审美生活。这种培养通过他们的生活方式、保护和珍惜价值观来创造房子的灵魂属于他们的记忆和身份。
Besides the functional requirements, MK House also reflects a private cultural layer in the homeowner's life, which is cultivated over the years with a rich spiritual and aesthetic life. This cultivation creates the soul of the house through the way they live, preserve, and cherish the values belonging to their memories and identity.

© Chimnon studio

© Chimnon studio
MK House不炫耀舒适,而是选择充足。重点是自然光以及人与地方之间的联系。简单的元素,如清晰的视野、从门缝透进来的阳光,或者即使在不同的房间里也有亲戚的存在,都能培养健康的精神生活。
MK House does not show off comfort, but chooses sufficiency. The emphasis is on natural light and the connection between people and their place. Simple elements such as clear views, sunlight coming through the cracks of the doors, or the presence of relatives even in different rooms, nurture a healthy spiritual life.

© Chimnon studio